ケイアイフィット名古屋市緑区徳重3丁目 全2棟 1号棟 新築
掲載情報更新日:2026年02月23日 次回更新予定日:2026年03月09日
- 5,599万円
-
- 借入ご希望金額
万円 - 借入期間
年 - 借入金利
% - 月々のお支払い金額
円
- 借入ご希望金額
※ 月々のお支払例は目安の試算となりますので、実際の金額とは異なる場合がございます。詳しくは店舗までお問合わせください。
- 名古屋市緑区徳重3丁目
-
名古屋市桜通線『徳重』 徒歩16分 (約1280m)
名古屋市桜通線『神沢』 徒歩31分 (約2480m)
名古屋市営バス『「鳴海町笹塚」停』 徒歩3分 (約240m)
ケイアイフィット名古屋市緑区徳重3丁目 全2棟 1号棟 新築一戸建て | 物件情報
【5LDKの新築戸建て】ゆとりのある空間で快適に過ごせる♪
\あれこれ不動産サイトを見なくても当店で解決/
当店はエリア内の物件の大半を最・新・情・報で掲載!
ほかのページで気になる物件もご相談ください。
◆徳重小学校/扇台中学校
◆名古屋市営バス「鳴海町笹塚」停 徒歩約3分
◆ウォークインクローゼット付き
◆食器洗浄乾燥機ありで家事楽々
◆浴室暖房・乾燥機完備
※写真をクリックすると、詳細をご覧いただけます。
=========================
《ぜひ、現地をご見学してみてください》
やはり「立地」は重要です。
現地見学で「立地」をリアルに体感してみてください。
=========================
物件の設備
- 電気
- 上水道
- 公共下水
- 都市ガス
- 給湯
- 食器洗浄乾燥機
- コンロ三口
- カウンターキッチン
- システムキッチン
- オートバス
- 追焚機能
- 浴室暖房
- 浴室乾燥機
- 浴室に窓
- トイレ2箇所
- 温水洗浄便座
- 室内洗濯機置場
- 洗髪洗面化粧台
- 洗面所独立
- モニタ付インターホン
- 火災警報器/報知機
- LDK18畳以上
- 2面採光
- 複層ガラス
- シャッター雨戸
- クローゼット2箇所
- ウォークインクローゼット
- 床下収納
- バルコニー
物件の特徴
- スーパーが近い
- 2階建
- 外壁サイディング
- 設計住宅性能評価付
- 即入居可
- フラット35Sに対応
物件詳細情報
| 価格 | 5,599万円 | 間取り | 5LDK |
|---|---|---|---|
| 物件種別 | 新築一戸建て | ||
| 所在地 | 愛知県名古屋市緑区徳重3丁目 1号棟 | ||
| アクセス |
|
||
| 建物面積 | 106.2㎡ | 駐車場 | あり 普通:3台 |
| 築年月 | 2026年(令和8年)01月築 | 建築確認 | 第KS125-0420-56792号 |
| 建物構造 | 木造 アスファルトシングル葺 2階建 | 工法 | |
| 主要採光 | 南西向 | バルコニー | 南西向8.08㎡ |
| 保証・評価 | 設計住宅性能評価書 |
||
| 分譲情報 | |||
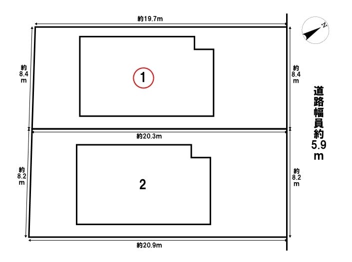
| 土地面積 | 168.96㎡(51.11坪) | 接道 | 北東側(公道)幅 約5.9m 間口 約8.41m |
| 私道 | セットバック | ||
| 地目 | 宅地 | 地勢 | |
| 権利 | 所有権 |
||
| 都市計画 | 市街化区域 |
用途地域 | 1種低層 |
| 建ぺい/容積率 | 40% / 80% | 土地国土法 | |
| 許可番号 | 建築基準法 | ||
| 法令制限 | 宅地造成工事規制区域・法22条区域 | ||
| 小学区 | 徳重小学校 徒歩11分 (約850m) | 中学区 | 扇台中学校 徒歩15分 (約1160m) |
| 現況 | 完工済 | 引渡 | 即 |
| その他費用 | |||
| 周辺環境 | 名古屋市立徳重小学校 徒歩11分 (約850m) 名古屋市立扇台中学校 徒歩15分 (約1160m) 徳重幼稚園 徒歩13分 (約1000m) 社会福祉法人多治見清涼会 徳重清涼保育園 徒歩12分 (約920m) アピタ 緑店 徒歩8分 (約620m) V・drug徳重店 徒歩12分 (約930m) 徳重ながさわクリニック 徒歩13分 (約1030m) みどりが丘公園 徒歩7分 (約490m) セブンイレブン名古屋徳重3丁目店 徒歩4分 (約310m) 徳重郵便局 徒歩12分 (約890m) |
||
| 備考 | ※その他規制:日影規制3h-2h/1.5m、10m高さ制限、10m高度地区、名古屋市都市景観条例、外壁後退1.0m、緑笹塚地区計画、下水道処理区域、緑化地域 | ||
| 物件番号 | 4426816 | 取引態様 | 媒介 |
取扱店舗情報
ハウスドゥ みどり市民病院前 ファミリアホームサービス株式会社 店舗詳細ページへ
| 電話番号 | 052-875-8705 |
|---|---|
| 所在地 | 〒458-0037 愛知県名古屋市緑区潮見が丘2丁目290番地1 |
| 営業時間 | 9:00~18:00 |
| 定休日 | 水曜日、年末年始 |
| 宅建免許番号 | 国土交通大臣(2)第9218号 |
| アクセス | 店舗への地図はこちら |

来店ご予約
愛知県名古屋市緑区で価格が似ている物件はこちら
- 愛知県
マイページ物件数 - 32,645件
愛知県新築一戸建て新着物件
- お近くの店舗を探す
-
おすすめ物件
-
-

-
- 新築一戸建て
- 3,392万円
-
名古屋市緑区浦里1丁目
-
名鉄名古屋本線本星崎
-
-
-

-
- 新築一戸建て
- 2,599万円
-
知多郡美浜町河和台3丁目
-
名鉄河和線河和
-
-
-

-
- 新築一戸建て
- 5,999万円
-
名古屋市千種区清明山1丁目
-
名古屋市名城線砂田橋
-
-
-

-
- 新築一戸建て
- 2,977万円
-
高浜市呉竹町6丁目
-
名鉄三河線三河高浜
-
-
-

-
- 新築一戸建て
- 3,240万円
-
津島市立込町2丁目
-
名鉄津島線津島
-
-
-

-
- 新築一戸建て
- 2,180万円
-
知多郡美浜町大字奥田字儀路
-
名鉄知多新線知多奥田
-
-
-

-
- 新築一戸建て
- 2,999万円
-
愛西市草平町江ノ田
-
名鉄尾西線六輪
-
-
-

-
- 新築一戸建て
- 4,780万円
-
岡崎市上地6丁目
-
JR東海道本線相見
-
-
-

-
- 新築一戸建て
- 2,790万円
-
清須市春日弐屋敷
-
JR東海道本線清洲
-
-
-

-
- 新築一戸建て
- 4,999万円
-
名古屋市緑区浦里5丁目
-
名鉄名古屋本線本星崎
-



































担当エージェント:土肥 琴菜
《お問合せからすぐご案内!》
見るだけOK、聞くだけOK。
実際に現地を体感してみてください。