宇都宮市山本2丁目の新築戸建
掲載情報更新日:2025年11月17日 次回更新予定日:2025年12月01日
- 2,490万円
-
- 借入ご希望金額
万円 - 借入期間
年 - 借入金利
% - 月々のお支払い金額
円
- 借入ご希望金額
※ 月々のお支払例は目安の試算となりますので、実際の金額とは異なる場合がございます。詳しくは店舗までお問合わせください。
- 宇都宮市山本2丁目
-
東武宇都宮線『東武宇都宮』 車13分(約3.8km)
東武宇都宮線『東武宇都宮』 バス乗車13分 山本 停 徒歩13分 (約1040m)
JR東北本線『宇都宮』 車17分(約5.7km)
宇都宮市山本2丁目一戸建て | 物件情報
*子育てグリーン住宅対象物件* LDK18帖(^^♪ 防犯カメラ付き
全室2面採光(^^♪
テレワークルーム有(^^♪
セキュリティ対策もしっかり・モニター付きインターホン・防犯カメラ・人感センサー・ディンプルキーと安心(^^♪
物件の設備
- 電気
- 公営水道
- 公共下水
- プロパンガス
- 個別プロパン
- コンロ三口
- 浴室暖房
- 温水洗浄便座
物件の特徴
- 2階建
物件詳細情報
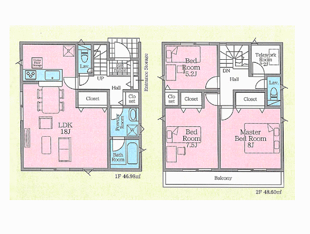
| 価格 | 2,490万円 | 間取り | 3LDK |
|---|---|---|---|
| 物件種別 | 新築一戸建て | ||
| 所在地 | 栃木県宇都宮市山本2丁目 | ||
| アクセス |
|
||
| 建物面積 | 95.58㎡ | 駐車場 | あり 普通:2台 |
| 築年月 | 2025年(令和7年)12月予定 | 建築確認 | 第HPA-25-10064-1号 |
| 建物構造 | 木造 2階建 | 工法 | |
| 主要採光 | バルコニー | ||
| 保証・評価 | |||
| 土地面積 | 132.04㎡(39.94坪) | 接道 | 北側幅 約5.9m |
| 私道 | セットバック | ||
| 地目 | 宅地 | 地勢 | |
| 権利 | 所有権 |
||
| 都市計画 | 市街化区域 |
用途地域 | 1種低層 |
| 建ぺい/容積率 | 50% / 80% | 土地国土法 | |
| 許可番号 | 建築基準法 | ||
| 法令制限 | 宅地造成工事規制区域・高さ最高限度有・日影制限有・法22条区域 | ||
| 小学区 | 豊郷中央小学校 徒歩39分 (約3100m) | 中学区 | 豊郷中学校 徒歩40分 (約3200m) |
| 現況 | 建築中 | 引渡 | 期日指定:2025年12月下旬 |
| その他費用 | |||
| 周辺環境 | 八幡山台認定こども園 徒歩10分 (約760m) こめりハード&グリーン宇都宮山本店 徒歩13分 (約990m) ウエルシア宇都宮戸祭店 徒歩17分 (約1290m) セブンイレブン宇都宮山本1丁目店 徒歩15分 (約1130m) 業務スーパー戸祭店 徒歩18分 (約1410m) 宇都宮市立豊郷中央小学校 徒歩41分 (約3260m) 宇都宮市立豊郷中学校 徒歩42分 (約3350m) |
||
| 備考 | |||
| 物件番号 | 4429870 | 取引態様 | 媒介 |
取扱店舗情報
ハウスドゥ 中戸祭 株式会社ケイズ・ネクスト 店舗詳細ページへ
| 電話番号 | 028-680-4339 |
|---|---|
| 所在地 | 〒320-0052 栃木県宇都宮市中戸祭町867-3 イステートハイツ中戸祭 |
| 営業時間 | 9:00~18:00 |
| 定休日 | 水曜日・夏休暇・GW・年末年始 |
| 宅建免許番号 | 栃木県知事(1)第5469号 |
| アクセス | 店舗への地図はこちら |

来店ご予約
栃木県宇都宮市で価格が似ている物件はこちら
- 栃木県
マイページ物件数 - 6,628件
最近見た物件
-
-

-
- 新築一戸建て
- 2,990万円
-
奈良市杏町
-
JR関西本線奈良
-
栃木県新築一戸建て新着物件
-
-

-
- 新築一戸建て
- 2,290万円
-
宇都宮市雀の宮4丁目
-
JR東北本線雀宮駅
-
-
-

-
- 新築一戸建て
- 2,980万円
-
宇都宮市今宮1丁目
-
東武宇都宮線西川田駅
-
-
-

-
- 新築一戸建て
- 3,280万円
-
宇都宮市今宮1丁目
-
東武宇都宮線江曾島駅
-
-
-

-
- 新築一戸建て
- 3,490万円
-
宇都宮市岩曽町
-
JR東北本線宇都宮駅
-
-
-

-
- 新築一戸建て
- 3,290万円
-
宇都宮市岩曽町
-
JR東北本線宇都宮駅
-
-
-

-
- 新築一戸建て
- 2,899万円
-
下都賀郡壬生町幸町1丁目
-
東武宇都宮線おもちゃのまち駅
-
-
-

-
- 新築一戸建て
- 1,780万円
-
大田原市末広2丁目
-
JR東北本線西那須野駅
-
- お近くの店舗を探す
-










