明石市魚住町長坂寺の新築戸建
NEW 09.30掲載情報更新日:2025年09月30日 次回更新予定日:2025年10月14日
- 4,380万円
-
- 借入ご希望金額
万円 - 借入期間
年 - 借入金利
% - 月々のお支払い金額
円
- 借入ご希望金額
※ 月々のお支払例は目安の試算となりますので、実際の金額とは異なる場合がございます。詳しくは店舗までお問合わせください。
- 明石市魚住町長坂寺
-
JR山陽本線『魚住』 徒歩17分 (約1360m)
明石市魚住町長坂寺一戸建て | 物件情報
不動産会社のイメージを変えたい。全国700店舗展開中!不動産はハウスドゥ明石藤江におまかせください!
【ハウスドゥ明石藤江】おすすめ
□長期優良住宅認定物件
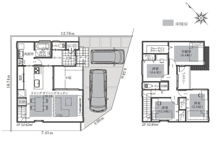
□LDK約20.5帖
□床暖房6か所
□2台駐車可能
現地へ行って陽当りや周辺環境、街並みを確かめよう!
お気軽にお問合せください!
魚住小学校 約450m(徒歩約6分)
魚住東中学校 約550m(徒歩約7分)
【ハウスドゥ明石藤江】ご来店サービス♪
♪お客様を駅まで送迎いたします!JR「西明石」「大久保」駅 山陽電鉄線もご相談ください♪
♪ご来店のお客様へウェルカムドリンクのご提供♪ゆっくりと店内でご相談ください♪
どんな小さな事でもご相談ください!エージェントが全力でお手伝い・サポートさせていただきます!
【ハウスドゥ明石藤江】はお客様のより近くにある安心・便利・信頼されるお店づくりを展開中!
【ハウスドゥ明石藤江】はすべての物件情報を公開中!
お問合せはこちらまで →0120-077-712
物件の設備
- 電気
- 上水道
- 公営水道
- 下水道
- 公共下水
- 給湯
- コンロ三口
- カウンターキッチン
- システムキッチン
- バス
- オートバス
- バス1坪以上
- 浴室に窓
- トイレ
- トイレ2箇所
- 温水洗浄便座
- 高機能トイレ
- 室内洗濯機置場
- 洗髪洗面化粧台
- 洗面所独立
- 床暖房
- 省エネ給湯器
- モニタ付インターホン
- LDK20畳以上
- 2面採光
- 3面採光
- 複層ガラス
- クローゼット
- ウォークインクローゼット
- 床下収納
- 全居室収納
- シューズインクローク
- 庭
- 中庭
物件の特徴
- 前道6m以上
- 閑静な住宅街
- 周辺交通量少なめ
- 通風良好
- 陽当り良好
- 2階建
- 平坦地
- フラット35Sに対応
物件詳細情報
価格 | 4,380万円 | 間取り | 4LDK |
---|---|---|---|
物件種別 | 新築一戸建て | ||
所在地 | 兵庫県明石市魚住町長坂寺 1号地 | ||
アクセス |
|
||
建物面積 | 105.47㎡ | 駐車場 | あり 普通:2台 |
築年月 | 2025年(令和7年)05月築 | 建築確認 | |
建物構造 | 木造 2階建 | 工法 | |
主要採光 | 南向 | バルコニー | |
保証・評価 | |||
土地面積 | 公118.93㎡(35.97坪) | 接道 | 南西側(公道)幅 約6.0m |
私道 | セットバック | ||
地目 | 宅地 | 地勢 | 平坦 |
権利 | 所有権 |
||
都市計画 | 市街化区域 |
用途地域 | 1種中高 |
建ぺい/容積率 | 60% / 200% | 土地国土法 | |
許可番号 | 建築基準法 | ||
法令制限 | |||
小学区 | 魚住小学校 徒歩6分 (約450m) | 中学区 | 魚住東中学校 徒歩7分 (約550m) |
現況 | 空 | 引渡 | 相談 |
その他費用 | |||
周辺環境 | 魚住小学校 徒歩6分 (約470m) 魚住みんな公園 徒歩10分 (約770m) ココカラファイン魚住店 徒歩8分 (約640m) 洋服の青山 明石魚住店 徒歩11分 (約860m) 明石西郵便局 徒歩15分 (約1140m) |
||
備考 | □長期優良住宅認定物件 □LDK約20.5帖 □床暖房6か所 □2台駐車可能 |
||
物件番号 | 4430340 | 取引態様 | 媒介 |
取扱店舗情報
電話番号 | 078-962-7712 |
---|---|
所在地 | 〒673-0044 兵庫県明石市藤江927-5 |
営業時間 | 10:00~18:00 |
定休日 | 水曜日 |
宅建免許番号 | 兵庫県知事(1)第401744号 |
アクセス | 店舗への地図はこちら |
来店ご予約
兵庫県明石市で価格が似ている物件はこちら
- 兵庫県
マイページ物件数 - 2,770件
最近見た物件
-
-
-
- 中古一戸建て
- 900万円
-
三養基郡みやき町大字江口
-
JR長崎本線中原
-
-
-
-
- 新築一戸建て
- 3,398万円
-
熊本市東区長嶺西2丁目
-
JR豊肥本線東海学園前
-
-
-
-
- 新築一戸建て
- 2,699万円
-
熊本市東区長嶺東1丁目
-
JR豊肥本線竜田口
-
兵庫県新築一戸建て新着物件
- お近くの店舗を探す
-
おすすめ物件
-
-
-
- 新築一戸建て
- 3,980万円
-
尼崎市武庫町2丁目
-
阪急電鉄神戸線武庫之荘
-
-
-
-
- 新築一戸建て
- 2,080万円
-
高砂市百合丘
-
JR山陽本線宝殿
-
-
-
-
- 新築一戸建て
- 2,080万円
-
揖保郡太子町太田
-
JR山陽本線網干
-
-
-
-
- 新築一戸建て
- 3,580万円
-
姫路市飾磨区三和町
-
山陽電鉄本線飾磨
-
-
-
-
- 新築一戸建て
- 2,898万円
-
姫路市上大野4丁目
-
JR播但線野里
-
-
-
-
- 新築一戸建て
- 2,998万円
-
姫路市上大野4丁目
-
JR播但線野里
-
-
-
-
- 新築一戸建て
- 1,980万円
-
揖保郡太子町太田
-
JR山陽本線網干
-
-
-
-
- 新築一戸建て
- 3,480万円
-
加古川市新神野2丁目
-
JR加古川線神野
-
-
-
-
- 新築一戸建て
- 2,680万円
-
姫路市上大野4丁目
-
JR山陽本線姫路
-
-
-
-
- 新築一戸建て
- 1,930万円
-
揖保郡太子町太田
-
JR山陽本線網干
-
担当エージェント:春木 宏友
納得のお住まい購入をお手伝い。より多くの住まい情報をお客様に迅速にお届けし、お住まいをご自由にお選びいただける環境を作り出すよう最善を尽くします。お客様の10年後、20年後の将来を考えたお住まいのご提案を目指します。お住まいのご購入が終わった後も、末永いお付き合いをお約束し誠意を持って対応させていただくことを誓います。全国のネットワークを通じ、情報収集し、お客様に最良のお住まいをご提案いたします。