清須市西枇杷島町小田井3 新築 38坪 中小田井駅 歩9分
掲載情報更新日:2025年11月06日 次回更新予定日:2025年11月20日
- 3,380万円
-
- 借入ご希望金額
万円 - 借入期間
年 - 借入金利
% - 月々のお支払い金額
円
- 借入ご希望金額
※ 月々のお支払例は目安の試算となりますので、実際の金額とは異なる場合がございます。詳しくは店舗までお問合わせください。
- 清須市西枇杷島町小田井3丁目
-
名鉄犬山線『中小田井』 徒歩9分 (約690m)
名鉄犬山線『下小田井』 徒歩13分 (約1040m)
名古屋市鶴舞線『庄内緑地公園』 徒歩21分 (約1620m)
清須市西枇杷島町小田井3 新築 38坪 中小田井駅 歩9分一戸建て | 物件情報
■清須市専門店!ハウスドゥ 清須■ 当物件ご成約の方にエアコン等プレゼント実施中!※諸条件あり"
◇◆◇現地案内受付中◇◆◇
お客様のご指定して頂いた日時にスタッフがご案内させて頂きます。
【無料通話】0120-661-671へお気軽にお電話ください!
どこよりも【早く・誠実に・親切に】を心がけて対応させて頂きます。
■当該物件のご質問や資金計画など些細なお問い合わせでもOKです。
例えば…
(1)住所を教えて欲しい!!
(2)学校はどこですか??
(3)勤続年数が短いけど住宅ローンを借りれるかな??
(4)頭金がないんだけど??
などなど…その他なんでもお気軽にお問い合わせください。
あなたの家探しにきっと役に立つ【ハウスドゥ】にお任せ下さい!
物件の設備
- 電気
- 上水道
- 公営水道
- 浄化槽
- 個別浄化槽
- 都市ガス
- 給湯
- 浄水器
- 食器洗浄乾燥機
- コンロ三口
- グリル
- システムキッチン
- バス
- ユニットバス
- オートバス
- バス1坪以上
- 浴室に窓
- トイレ
- トイレ2箇所
- 室内洗濯機置場
- 洗髪洗面化粧台
- 省エネ給湯器
- モニタ付インターホン
- 火災警報器/報知機
- LDK18畳以上
- 2面採光
- 全室2面採光
- 複層ガラス
- フローリング
- 全室フローリング
- シャッター雨戸
- 電動シャッター
- 24時間換気システム
- クローゼット
- クローゼット3箇所
- ウォークインクローゼット
- 全居室収納
物件の特徴
- 耐震構造
- 小学校徒歩10分以内
- 前道6m以上
- 陽当り良好
- 2階建
- 整形地
- 長期優良住宅
物件詳細情報
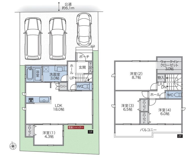
| 価格 | 3,380万円 | 間取り | 4LDK |
|---|---|---|---|
| 物件種別 | 新築一戸建て | ||
| 所在地 | 愛知県清須市西枇杷島町小田井3丁目 | ||
| アクセス |
|
||
| 建物面積 | 104.7㎡ | 駐車場 | あり 普通:2台 軽:1台 |
| 築年月 | 2026年(令和8年)05月予定 | 建築確認 | 第KS125-0420-58653号 |
| 建物構造 | 木造 ガルバリウム鋼板葺き 2階建 | 工法 | |
| 主要採光 | バルコニー | ||
| 保証・評価 | 長期優良住宅認定通知書 |
||
| 分譲情報 | |||
| 土地面積 | 実127㎡(38.41坪) | 接道 | 北側(公道)幅 約6.1m |
| 私道 | セットバック | ||
| 地目 | 田 | 地勢 | |
| 権利 | 所有権 |
||
| 都市計画 | 市街化区域 |
用途地域 | 1種中高 |
| 建ぺい/容積率 | 60% / 200% | 土地国土法 | |
| 許可番号 | 建築基準法 | ||
| 法令制限 | |||
| 小学区 | 古城小学校 徒歩9分 (約650m) | 中学区 | 西枇杷島中学校 徒歩33分 (約2570m) |
| 現況 | 未着工 | 引渡 | 期日指定:2026年05月以降 |
| その他費用 | |||
| 周辺環境 | 中小田井駅 徒歩9分 (約690m) 名鉄犬山線「下小田井」駅 徒歩13分 (約1040m) 清須市立古城小学校 徒歩7分 (約560m) 清須市立西枇杷島中学校 徒歩33分 (約2570m) 善光寺別院幼稚園 徒歩11分 (約850m) 業務スーパー清須店 徒歩10分 (約740m) セブンイレブン清須城並2丁目店 徒歩8分 (約600m) サンドラッグ 西枇杷島店 徒歩11分 (約840m) 名古屋中小田井郵便局 徒歩12分 (約930m) 城跡公園 徒歩5分 (約380m) |
||
| 備考 | ・長期優良住宅!地震に強い家、耐震等級3等級! ・ZEH基準の断熱使用!断熱等性能等級5等級! ・駐車並列3台可能♪ ・2WAY導線の洗面所♪WIC3帖と多機能のお家! |
||
| 物件番号 | 4431343 | 取引態様 | 専任 |
取扱店舗情報
| 電話番号 | 052-325-2001 |
|---|---|
| 所在地 | 〒452-0943 愛知県清須市新清洲2-3-15 |
| 営業時間 | 9:30~18:30 |
| 定休日 | 水曜日 |
| 宅建免許番号 | 国土交通大臣(2)第9483号 |
| アクセス | 店舗への地図はこちら |

来店ご予約
愛知県清須市で価格が似ている物件はこちら
- 愛知県
マイページ物件数 - 30,067件
愛知県新築一戸建て新着物件
-
-

-
- 新築一戸建て
- 2,480万円
-
津島市越津町字中之郷
-
名鉄津島線津島駅
-
-
-

-
- 新築一戸建て
- 2,880万円
-
津島市越津町字中之郷
-
名鉄津島線津島駅
-
-
-

-
- 新築一戸建て
- 2,780万円
-
津島市越津町字中之郷
-
名鉄津島線津島駅
-
-
-

-
- 新築一戸建て
- 4,690万円
-
名古屋市緑区旭出2丁目
-
名古屋市桜通線鳴子北駅
-
-
-

-
- 新築一戸建て
- 4,090万円
-
豊田市東山町4丁目
-
名鉄三河線豊田市駅
-
-
-

-
- 新築一戸建て
- 3,990万円
-
豊田市東山町4丁目
-
名鉄三河線豊田市駅
-
-
-

-
- 新築一戸建て
- 5,790万円
-
名古屋市昭和区川名本町3丁目
-
名古屋市桜通線御器所駅
-
- お近くの店舗を探す
-
おすすめ物件
-
-

-
- 新築一戸建て
- 3,180万円
-
清須市春日上須ケ田
-
JR東海道本線清洲
-
-
-

-
- 新築一戸建て
- 3,790万円
-
豊田市大林町13丁目
-
愛知環状鉄道末野原
-
-
-

-
- 新築一戸建て
- 2,590万円
-
瀬戸市坂上町
-
名鉄瀬戸線三郷
-
-
-

-
- 新築一戸建て
- 3,280万円
-
海部郡蟹江町宝3丁目
-
近鉄名古屋線近鉄蟹江
-
-
-

-
- 新築一戸建て
- 4,780万円
-
岡崎市上地6丁目
-
JR東海道本線相見
-
-
-

-
- 新築一戸建て
- 2,290万円
-
あま市七宝町鯰橋1丁目
-
JR関西本線蟹江
-
-
-

-
- 新築一戸建て
- 3,080万円
-
海部郡蟹江町桜3丁目
-
JR関西本線蟹江
-
-
-

-
- 新築一戸建て
- 3,000万円
-
高浜市論地町1丁目
-
名鉄三河線高浜港
-
-
-

-
- 新築一戸建て
- 2,280万円
-
海部郡大治町大字西條字笠見立
-
名鉄津島線七宝
-
-
-

-
- 新築一戸建て
- 2,630万円
-
海部郡大治町大字堀之内字深田
-
名古屋市東山線中村公園
-









担当エージェント:岩元 雄大
【清須市専門店】地域に密着した情報量の多い不動産会社です。
お問い合わせから最短15分でご案内致します!
先ずはお気軽にお問い合わせください。