長野市川中島町原の新築戸建
掲載情報更新日:2025年12月01日 次回更新予定日:2025年12月15日
- 3,480万円
-
- 借入ご希望金額
万円 - 借入期間
年 - 借入金利
% - 月々のお支払い金額
円
- 借入ご希望金額
※ 月々のお支払例は目安の試算となりますので、実際の金額とは異なる場合がございます。詳しくは店舗までお問合わせください。
- 長野市川中島町原
-
JR信越本線『今井』 徒歩14分 (約1120m)
JR信越本線『篠ノ井』 徒歩28分 (約2240m)
長野市川中島町原一戸建て | 物件情報
小中学校徒歩圏内でお子さんの通学も安心の立地です! 周辺にはコンビニや西友など利便性も高いです♪
■駐車場2台
■南向き
■高気密高断熱
■外壁サイディング
■天井高2.5M以上
■バス1坪以上
■全室2面採光
■3面採光
■24時間換気システム
■閑静な住宅街
■オール電化
■隣接建物距離2m以上
■分譲地内
物件の設備
- 電気
- 上水道
- 下水道
- 浄水器
- 食器洗浄乾燥機
- IHクッキングヒータ
- コンロ三口
- システムキッチン
- オープンキッチン
- 追焚機能
- 浴室暖房
- 浴室乾燥機
- 浴室に窓
- トイレ2箇所
- 温水洗浄便座
- 洗髪洗面化粧台
- エアコン
- 照明器具
- ダウンライト
- フットライト
- 省エネ給湯器
- ディンプルキー
- モニタ付インターホン
- 火災警報器/報知機
- 和室
- 複層ガラス
- クッションフロア
- クローゼット
- ウォークインクローゼット
- 全居室収納
- シューズインクローク
- インナーバルコニー
物件の特徴
- 南側道路面す
- 2階建
- 即入居可
物件詳細情報
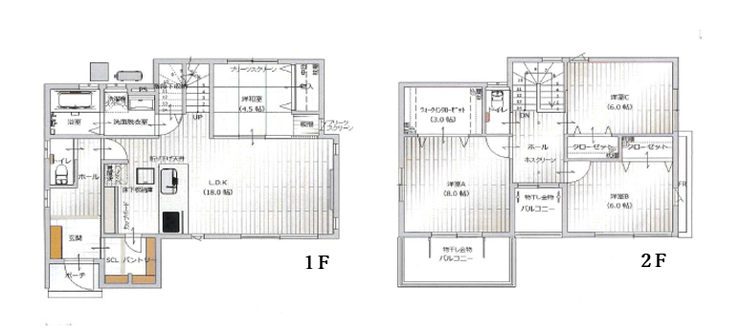
| 価格 | 3,480万円 | 間取り | 4LDK |
|---|---|---|---|
| 物件種別 | 新築一戸建て | ||
| 所在地 | 長野県長野市川中島町原 3号棟 | ||
| アクセス |
|
||
| 建物面積 | 112.61㎡ | 駐車場 | あり 普通:2台 |
| 築年月 | 2025年(令和7年)08月築 | 建築確認 | 第25NJK-10-00074号他 |
| 建物構造 | 木造 2階建 | 工法 | |
| 主要採光 | 南西向 | バルコニー | |
| 保証・評価 | |||
| 分譲情報 | 【販売戸数】:2戸 【価格】:3,880万円 ~4,180万円 【土地面積】:130.54㎡ ~171.12㎡ |
||
| 土地面積 | 公171.12㎡(51.76坪) | 接道 | 南側(公道)幅 約4.0m |
| 私道 | セットバック | ||
| 地目 | 宅地 | 地勢 | 平坦 |
| 権利 | 所有権 |
||
| 都市計画 | 市街化区域 |
用途地域 | 2種中高 |
| 建ぺい/容積率 | 60% / 200% | 土地国土法 | |
| 許可番号 | 建築基準法 | ||
| 法令制限 | |||
| 小学区 | 昭和小学校 徒歩4分 (約300m) | 中学区 | 川中島中学校 徒歩19分 (約1500m) |
| 現況 | 完工済 | 引渡 | 即 |
| その他費用 | |||
| 周辺環境 | 昭和保育園 徒歩5分 (約400m) 昭和小学校 徒歩4分 (約300m) 川中島中学校 徒歩19分 (約1500m) 西友川中島店 徒歩9分 (約700m) セブンイレブン長野南原店 徒歩4分 (約280m) ローソン川中島原店 徒歩7分 (約500m) デイリーヤマザキ長野川中島今井店 徒歩10分 (約750m) ドン・キホーテ川中島店 徒歩14分 (約1100m) |
||
| 備考 | ■全4区画の分譲地(残り1棟) | ||
| 物件番号 | 4431992 | 取引態様 | 媒介 |
取扱店舗情報
ハウスドゥ 西尾張部 株式会社アークビルド 店舗詳細ページへ
| 電話番号 | 026-217-7920 |
|---|---|
| 所在地 | 〒381-0031 長野県長野市西尾張部1003-1 |
| 営業時間 | 9:00~18:00 |
| 定休日 | 水曜日、年末年始 |
| 宅建免許番号 | 長野県知事(1)第5762号 |
| アクセス | 店舗への地図はこちら |

来店ご予約
長野県長野市で価格が似ている物件はこちら
- 長野県
マイページ物件数 - 1,295件
長野県新築一戸建て新着物件
-
-

-
- 新築一戸建て
- 3,490万円
-
松本市沢村3丁目
-
JR大糸線北松本駅
-
-
-

-
- 新築一戸建て
- 4,480万円
-
長野市川中島町今井
-
JR信越本線今井駅
-
-
-

-
- 新築一戸建て
- 4,680万円
-
長野市川中島町今井
-
JR信越本線今井駅
-
-
-

-
- 新築一戸建て
- 2,360万円
-
上田市上塩尻
-
しなの鉄道西上田駅
-
-
-

-
- 新築一戸建て
- 3,380万円
-
松本市村井町南3丁目
-
JR篠ノ井線村井駅
-
-
-

-
- 新築一戸建て
- 3,280万円
-
松本市村井町南3丁目
-
JR篠ノ井線村井駅
-
-
-

-
- 新築一戸建て
- 3,480万円
-
長野市川中島町原
-
JR信越本線今井駅
-
- お近くの店舗を探す
-
おすすめ物件
-
-

-
- 新築一戸建て
- 4,700万円
-
長野市川中島町上氷鉋
-
JR信越本線川中島
-
-
-

-
- 新築一戸建て
- 2,480万円
-
上田市大屋
-
しなの鉄道大屋
-
-
-

-
- 新築一戸建て
- 3,990万円
-
長野市大字川合新田
-
JR北陸新幹線長野
-
-
-

-
- 新築一戸建て
- 3,230万円
-
塩尻市大門八番町
-
JR中央本線塩尻
-
-
-

-
- 新築一戸建て
- 3,180万円
-
塩尻市大字大門
-
JR中央本線塩尻
-
-
-

-
- 新築一戸建て
- 3,290万円
-
長野市三本柳東3丁目
-
JR信越本線川中島
-
-
-

-
- 新築一戸建て
- 3,740万円
-
塩尻市大字広丘原新田
-
JR篠ノ井線広丘
-
-
-

-
- 新築一戸建て
- 2,630万円
-
塩尻市大字塩尻町
-
JR中央本線みどり湖
-
-
-

-
- 新築一戸建て
- 2,690万円
-
上田市下之条
-
上田電鉄別所線上田原
-
-
-

-
- 新築一戸建て
- 3,750万円
-
上田市住吉
-
しなの鉄道上田
-




















