八王子市子安町1丁目 全2棟 1号棟 新築分譲住宅
掲載情報更新日:2025年12月01日 次回更新予定日:2025年12月15日
- 4,590万円
-
- 借入ご希望金額
万円 - 借入期間
年 - 借入金利
% - 月々のお支払い金額
円
- 借入ご希望金額
※ 月々のお支払例は目安の試算となりますので、実際の金額とは異なる場合がございます。詳しくは店舗までお問合わせください。
- 八王子市子安町1丁目
-
JR中央本線『八王子』 徒歩11分 (約880m)
京王線『京王八王子』 徒歩10分 (約800m)
八王子市子安町1丁目 全2棟 1号棟 新築分譲住宅一戸建て | 物件情報
【新築仲介手数料無料のハウスドゥ立川北】八王子市子安町1丁目 全2棟 1号棟
こちらの物件は【ハウスドゥ立川北限定のゼロキャンペーン対象物件】です。ご購入の際の仲介手数料が【無料】の0円です。中古住宅ご購入のお客様には【Wキャンペーン対象物件】でギフト券をプレゼント!大変お得なキャンペーンなのでぜひご利用ください。さらにローンシュミレーションからライフプランの設計も【無料】で作成いたします。賢く買うならハウスドゥ 立川北で検索!
物件の設備
- 電気
- 公営水道
- 公共下水
- プロパンガス
- 集中プロパン
- 給湯
- 食品庫
- コンロ三口
- グリル
- カウンターキッチン
- システムキッチン
- ユニットバス
- 追焚機能
- 浴室に窓
- トイレ2箇所
- 温水洗浄便座
- 室内洗濯機置場
- 洗髪洗面化粧台
- 洗面所独立
- リビング階段
- ディンプルキー
- モニタ付インターホン
- 火災警報器/報知機
- LDK18畳以上
- 2面採光
- 全居室複層ガラス
- 全室フローリング
- クッションフロア
- シャッター雨戸
- 24時間換気システム
- クローゼット
- クローゼット3箇所
- ウォークインクローゼット
- シューズボックス
物件の特徴
- 2沿線利用可
- スーパーが近い
- 閑静な住宅街
- 市街地が近い
- 通風良好
- 陽当り良好
- 2階建
- 平坦地
- 建築確認完了検査済証
- フラット35
- S適合証明書
- 新築
- 増改築設計図書
- 瑕疵保証(不動産会社独自)有
- 即入居可
- フラット35Sに対応
物件詳細情報
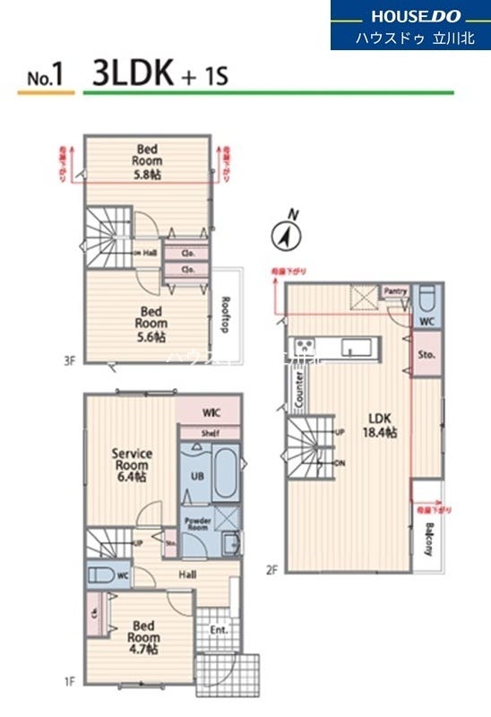
| 価格 | 4,590万円 | 間取り | 3LDK+S |
|---|---|---|---|
| 物件種別 | 新築一戸建て | ||
| 所在地 | 東京都八王子市子安町1丁目 1号棟 | ||
| アクセス |
|
||
| 建物面積 | 公98㎡ | 駐車場 | あり 普通:1台 |
| 築年月 | 2025年(令和7年)11月築 | 建築確認 | 第2025SBC-確00157Y号 |
| 建物構造 | 木造 2階建 | 工法 | 軸組工法 |
| 主要採光 | 東向 | バルコニー | |
| 保証・評価 | 建物 フラット35S適合証明書 |
||
| 分譲情報 | 【販売戸数】:2戸 |
||
| 土地面積 | 公75.7㎡(22.89坪) | 接道 | 東側(公道)幅 約5.0m 間口 約2.80m |
| 私道 | セットバック | ||
| 地目 | 宅地 | 地勢 | 平坦 |
| 権利 | 所有権 |
||
| 都市計画 | 市街化区域 |
用途地域 | 2種住居 |
| 建ぺい/容積率 | 60% / 200% | 土地国土法 | 届出不要 |
| 許可番号 | 建築基準法 | ||
| 法令制限 | 高度地区・準防火地域・第2種高度地区 | ||
| 小学区 | いずみの森義務教育学校(小学校学区) 徒歩12分 (約950m) | 中学区 | いずみの森義務教育学校(中学校学区) 徒歩12分 (約950m) |
| 現況 | 完工済 | 引渡 | 即 |
| その他費用 | |||
| 備考 | ミニストップ八王子子安町店・・・徒歩約7分/クリエイトエスディー・・・徒歩約9分/ルームズ大正堂八王子店・・・徒歩約10分/オーパ八王子・・・徒歩約12分/スーパーアルプス・・・徒歩約12分/セレオ八王子・・・徒歩約13分 | ||
| 物件番号 | 4434052 | 取引態様 | 媒介 |
取扱店舗情報
ハウスドゥ 立川北 株式会社シティリノベーション 店舗詳細ページへ
| 電話番号 | 042-537-9361 |
|---|---|
| 所在地 | 〒190-0004 東京都立川市柏町3-19-14 フレンテ1F |
| 営業時間 | 9:00~18:00 |
| 定休日 | GW、夏季、冬季 |
| 宅建免許番号 | 東京都知事(2)第100954号 |
| アクセス | 店舗への地図はこちら |

来店ご予約
東京都八王子市で価格が似ている物件はこちら
- 東京都
マイページ物件数 - 5,175件
東京都新築一戸建て新着物件
-
-

-
- 新築一戸建て
- 2億1,800万円
-
世田谷区尾山台2丁目
-
東急大井町線尾山台駅
-
-
-

-
- 新築一戸建て
- 7,999万円
-
小金井市東町1丁目
-
JR中央本線東小金井駅
-
-
-

-
- 新築一戸建て
- 7,999万円
-
小金井市東町1丁目
-
JR中央本線東小金井駅
-
-
-

-
- 新築一戸建て
- 5,280万円
-
西東京市下保谷3丁目
-
西武池袋・豊島線保谷駅
-
-
-

-
- 新築一戸建て
- 5,280万円
-
調布市深大寺南町1丁目
-
京王線国領駅
-
-
-

-
- 新築一戸建て
- 3,280万円
-
八王子市泉町
-
JR中央本線西八王子駅
-
-
-

-
- 新築一戸建て
- 3,780万円
-
八王子市横川町
-
JR中央本線西八王子駅
-
- お近くの店舗を探す
-
おすすめ物件
-
-

-
- 新築一戸建て
- 8,999万円
-
練馬区東大泉7丁目
-
西武池袋・豊島線大泉学園
-
-
-

-
- 新築一戸建て
- 5,180万円
-
足立区千住柳町
-
JR常磐線北千住
-
-
-

-
- 新築一戸建て
- 9,980万円
-
世田谷区砧1丁目
-
小田急小田原線祖師ヶ谷大蔵
-
-
-

-
- 新築一戸建て
- 5,999万円
-
国分寺市北町5丁目
-
西武国分寺線鷹の台
-
-
-

-
- 新築一戸建て
- 5,990万円
-
調布市深大寺北町1丁目
-
京王相模原線調布
-
-
-

-
- 新築一戸建て
- 4,780万円
-
調布市上石原3丁目
-
京王線西調布
-
-
-

-
- 新築一戸建て
- 7,880万円
-
横浜市青葉区たちばな台2丁目
-
東急田園都市線青葉台
-
-
-

-
- 新築一戸建て
- 6,390万円
-
三鷹市中原4丁目
-
京王線つつじヶ丘
-
-
-

-
- 新築一戸建て
- 6,590万円
-
狛江市東野川2丁目
-
小田急小田原線喜多見
-
-
-

-
- 新築一戸建て
- 5,090万円
-
調布市佐須町1丁目
-
京王線布田
-































担当エージェント:板谷 和友樹
ハウスドゥ立川北のホームページをご覧頂きありがとうございます。
お客様の多くがお家を買うのに不安があるかと思われます。ハウスドゥではお客様の不安や問題解決に一つ一つ誠心誠意お答えいたします。また、お家探しに役立つ多くの物件に関する情報を掲載しております。
ハウスドゥ立川北ではお客様お一人お一人にあったご提案を心がけており、ローンシュミレーションや人工知能を使ったライフプランの作成(要予約)を行いお客様の不安を解決いたします
■頭金は必要なのか?
■ローンは払っていけるのか?
■どのタイミングで住み替えや引越しが出来るのか?etc
お気軽に相談できるハウスドゥ立川北へお問い合わせ下さい
◆ご予約方法◆
直接お電話ください。【0120-537-936】
メールでのご予約も承ります。お気軽にご来店ください。
物件によっては事前に鍵の手配が必要な場合がありますので、お早目にご連絡をいただけるとご案内がスムーズです。
◆ご案内方法◆
①最寄駅や周辺地での待ち合わせ②ハウスドゥ立川北へのご来店などご相談ください。