宇都宮市今泉町の新築戸建
掲載情報更新日:2026年02月24日 次回更新予定日:2026年03月10日
- 2,990万円
-
- 借入ご希望金額
万円 - 借入期間
年 - 借入金利
% - 月々のお支払い金額
円
- 借入ご希望金額
※ 月々のお支払例は目安の試算となりますので、実際の金額とは異なる場合がございます。詳しくは店舗までお問合わせください。
- 宇都宮市今泉町
-
JR東北本線『宇都宮』 バス乗車15分 バイパス東 停 徒歩4分 (約320m)
宇都宮市今泉町一戸建て | 物件情報
物件の設備
- 電気
- 上水道
- 公営水道
- 下水道
- 公共下水
- 都市ガス
- カウンターキッチン
- システムキッチン
- 浴室乾燥機
- 浴室に窓
- トイレ2箇所
- モニタ付インターホン
- LDK18畳以上
- 全居室6畳以上
- 複層ガラス
- 全居室複層ガラス
- フローリング
- 全室フローリング
- ウォークインクローゼット
- 床下収納
- 全居室収納
- ワイドバルコニー
- L字型バルコニー
物件の特徴
- 小学校徒歩10分以内
- スーパーが近い
- 2階建
物件詳細情報
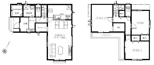
| 価格 | 2,990万円 | 間取り | 3LDK |
|---|---|---|---|
| 物件種別 | 新築一戸建て | ||
| 所在地 | 栃木県宇都宮市今泉町 C号棟 | ||
| アクセス |
|
||
| 建物面積 | 102.67㎡ | 駐車場 | あり |
| 築年月 | 2025年(令和7年)12月予定 | 建築確認 | 第HPA-25-10859-1号 |
| 建物構造 | 木造 2階建 | 工法 | |
| 主要採光 | バルコニー | ||
| 保証・評価 | |||
| 土地面積 | 160.35㎡(48.50坪) | 接道 | 北側(公道)幅 約4.2m 西側(私道)幅 約2.7m |
| 私道 | セットバック | ||
| 地目 | 宅地 | 地勢 | |
| 権利 | 所有権 |
||
| 都市計画 | 市街化区域 |
用途地域 | 1種住居 |
| 建ぺい/容積率 | 60% / 200% | 土地国土法 | |
| 許可番号 | 建築基準法 | ||
| 法令制限 | |||
| 小学区 | 泉が丘小学校 徒歩10分 (約800m) | 中学区 | 泉が丘中学校 徒歩10分 (約800m) |
| 現況 | 建築中 | 引渡 | 期日指定:2025年12月 |
| その他費用 | |||
| 備考 | |||
| 物件番号 | 4437373 | 取引態様 | 媒介 |
取扱店舗情報
| 電話番号 | 028-678-2888 |
|---|---|
| 所在地 | 〒320-0826 栃木県宇都宮市西原町466-1 |
| 営業時間 | 10:00~18:30 |
| 定休日 | 火曜日・水曜日 |
| 宅建免許番号 | 栃木県知事(2)第5075号 |
| アクセス | 店舗への地図はこちら |

来店ご予約
栃木県宇都宮市で価格が似ている物件はこちら
![]()
![]()
-
- 新築一戸建て 2024.09.06
-
-
- 2,899万円
-
宇都宮市戸祭町
-
東武宇都宮線「東武宇都宮駅」まで徒歩31分
- 4LDK
-
-
- 新築一戸建て 2024.09.16
-
-
- 3,058万円
-
宇都宮市山本1丁目
-
JR東北本線「宇都宮駅」バス乗車21分 バス停「JR宇都宮駅 西口山本」まで徒歩6分
- 4LDK
-
-
- 新築一戸建て 2025.03.07
-
-
- 2,980万円
-
宇都宮市新富町
-
湘南新宿ライン宇須「雀宮駅」まで徒歩16分
- 4LDK
-
-
- 新築一戸建て 2025.06.06
-
-
- 2,990万円
-
宇都宮市上戸祭町
-
東武宇都宮線「東武宇都宮駅」バス乗車13分 バス停「関東バス中戸祭」まで徒歩4分
- 4LDK
-
-
- 新築一戸建て 2025.07.13
-
-
- 3,090万円
-
宇都宮市岩曽町
-
JR東北本線「宇都宮駅」まで車11分
- 4LDK
-
-
- 新築一戸建て 2025.08.31
-
-
- 3,090万円
-
宇都宮市中久保2丁目
-
宇都宮芳賀ライト線「陽東3丁目駅」まで徒歩3分
- 4LDK
-
-
- 新築一戸建て 2025.09.05
-
-
- 3,090万円
-
宇都宮市岩曽町
-
JR東北本線「宇都宮駅」バス乗車16分 バス停「堀切」まで徒歩8分
- 4LDK
-
-
- 新築一戸建て 2025.09.30
-
-
- 2,990万円
-
宇都宮市御幸ケ原町
-
JR東北本線「宇都宮駅」バス乗車27分 バス停「ヨークベニマル前」まで徒歩5分
- 4LDK
-
-
- 新築一戸建て 2025.09.30
-
-
- 3,090万円
-
宇都宮市今泉町
-
JR東北本線「宇都宮駅」まで車12分
- 3LDK+S
-
-
- 新築一戸建て 2025.10.02
-
-
- 2,998万円
-
宇都宮市駒生町
-
東武宇都宮線「東武宇都宮駅」まで車15分
- 4LDK
-
-
- 新築一戸建て 2025.10.03
-
-
- 2,998万円
-
宇都宮市駒生町
-
東武宇都宮線「東武宇都宮駅」まで徒歩69分
- 4LDK
-
-
- 新築一戸建て 2025.10.05
-
-
- 3,090万円
-
宇都宮市今泉新町
-
JR東北本線「宇都宮駅」バス乗車10分 バス停「今泉新町」まで徒歩4分
- 3LDK
-
-
- 新築一戸建て 2025.10.05
-
-
- 3,090万円
-
宇都宮市今泉新町
-
JR東北本線「宇都宮駅」まで徒歩33分
- 3LDK
-
-
- 新築一戸建て 2025.10.09
-
-
- 3,080万円
-
宇都宮市岩曽町
-
JR東北本線「岡本駅」まで車11分
- 3LDK
-
-
- 新築一戸建て 2025.10.14
-
-
- 2,990万円
-
宇都宮市上戸祭町
-
東武宇都宮線「東武宇都宮駅」バス乗車13分 バス停「中戸祭」まで徒歩4分
- 4LDK
-
-
- 新築一戸建て 2025.10.14
-
-
- 2,990万円
-
宇都宮市上戸祭町
-
東武宇都宮線「東武宇都宮駅」バス乗車13分 バス停「中戸祭」まで徒歩4分
- 4LDK
-
-
- 新築一戸建て 2025.10.20
-
-
- 2,990万円
-
宇都宮市上戸祭町
-
東武宇都宮線「東武宇都宮駅」バス乗車13分 バス停「中戸祭」まで徒歩4分
- 4LDK
-
-
- 新築一戸建て 2025.10.24
-
-
- 2,998万円
-
宇都宮市下川俣町
-
JR東北本線「岡本駅」まで徒歩40分
- 3LDK
-
-
- 新築一戸建て 2025.10.25
-
-
- 2,990万円
-
宇都宮市簗瀬3丁目
-
JR東北本線「宇都宮駅」バス乗車6分 バス停「中央市場前」まで徒歩18分
- 4LDK
-
-
- 新築一戸建て 2025.10.28
-
-
- 3,090万円
-
宇都宮市中岡本町
-
JR東北本線「岡本駅」まで徒歩29分
- 3LDK
-
-
- 新築一戸建て 2025.10.30
-
-
- 2,990万円
-
宇都宮市今泉町
-
JR東北本線「宇都宮駅」まで徒歩40分
- 3LDK
-
-
- 新築一戸建て 2025.11.01
-
-
- 3,090万円
-
宇都宮市駒生町
-
東武宇都宮線「東武宇都宮駅」まで車21分
- 4LDK
-
-
- 新築一戸建て 2025.11.01
-
-
- 3,090万円
-
宇都宮市駒生町
-
東武宇都宮線「東武宇都宮駅」まで車21分
- 4LDK
-
-
- 新築一戸建て 2025.11.01
-
-
- 2,990万円
-
宇都宮市細谷町
-
東武宇都宮線「東武宇都宮駅」まで車16分
- 3LDK
-
-
- 新築一戸建て 2025.11.01
-
-
- 2,990万円
-
宇都宮市細谷町
-
東武宇都宮線「東武宇都宮駅」まで車16分
- 3LDK
-
-
- 新築一戸建て 2025.11.01
-
-
- 3,090万円
-
宇都宮市細谷町
-
東武宇都宮線「東武宇都宮駅」まで車16分
- 4LDK
-
-
- 新築一戸建て 2025.11.02
-
-
- 2,990万円
-
宇都宮市細谷町
-
東武宇都宮線「東武宇都宮駅」まで車16分
- 3LDK
-
-
- 新築一戸建て 2025.11.09
-
-
- 3,090万円
-
宇都宮市今泉新町
-
JR東北本線「宇都宮駅」バス乗車10分 バス停「今泉新町」まで徒歩4分
- 3LDK
-
-
- 新築一戸建て 2025.11.13
-
-
- 3,090万円
-
宇都宮市中岡本町
-
JR東北本線「岡本駅」まで徒歩29分
- 3LDK
-
-
- 新築一戸建て 2025.11.14
-
-
- 3,090万円
-
宇都宮市駒生町
-
東武宇都宮線「東武宇都宮駅」まで徒歩77分
- 4LDK
-
-
- 新築一戸建て 2025.12.14
-
-
- 3,090万円
-
宇都宮市中久保2丁目
-
宇都宮芳賀ライト線「陽東3丁目駅」まで徒歩6分
- 4LDK
-
-
- 新築一戸建て 2026.01.05
-
-
- 3,090万円
-
宇都宮市鶴田町
-
JR東北本線「宇都宮駅」バス乗車24分 バス停「陽西中西」まで徒歩10分
- 4LDK
-
-
- 新築一戸建て 2026.01.05
-
-
- 3,090万円
-
宇都宮市鶴田町
-
JR東北本線「宇都宮駅」バス乗車24分 バス停「陽西中西」まで徒歩10分
- 4LDK
-
-
- 新築一戸建て 2026.01.08
-
-
- 2,990万円
-
宇都宮市今宮1丁目
-
東武宇都宮線「西川田駅」まで徒歩28分
- 4LDK+S
-
-
- 新築一戸建て 2026.01.15
-
-
- 2,990万円
-
宇都宮市御幸ケ原町
-
JR東北本線「宇都宮駅」バス乗車27分 バス停「ヨークベニマル前」まで徒歩5分
- 4LDK
-
-
- 新築一戸建て 2026.01.20
-
-
- 3,090万円
-
宇都宮市鶴田町
-
東武宇都宮線「東武宇都宮駅」まで車10分
- 4LDK
-
-
- 新築一戸建て 2026.01.30
-
-
- 2,890万円
-
宇都宮市宮本町
-
東武宇都宮線「江曾島駅」まで徒歩3分
- 3LDK
-
-
- 新築一戸建て 2026.01.30
-
-
- 3,090万円
-
宇都宮市中久保2丁目
-
宇都宮芳賀ライト線「陽東3丁目駅」まで徒歩6分
- 4LDK
-
-
- 新築一戸建て 2026.01.31
-
-
- 3,090万円
-
宇都宮市中久保2丁目
-
宇都宮芳賀ライト線「陽東3丁目駅」まで徒歩6分
- 4LDK
-
-
-
新築一戸建て
2026.02.06
-
-
- 2,990万円
-
宇都宮市南一の沢町
-
東武宇都宮線「東武宇都宮駅」まで徒歩26分
- 4LDK
-
-
新築一戸建て
2026.02.06
-
-
新築一戸建て
2026.02.19
-
-
- 2,990万円
-
宇都宮市南一の沢町
-
東武宇都宮線「東武宇都宮駅」まで徒歩26分
- 4LDK
-
-
新築一戸建て
2026.02.19
-
-
新築一戸建て
2026.02.19
-
-
- 2,998万円
-
宇都宮市鶴田町
-
JR東北本線「宇都宮駅」まで車15分
- 3LDK
-
-
新築一戸建て
2026.02.19
-
-
新築一戸建て
2026.02.21
-
-
- 2,890万円
-
宇都宮市上戸祭4丁目
-
東武宇都宮線「東武宇都宮駅」まで車17分
- 4LDK
-
-
新築一戸建て
2026.02.21
-
-
新築一戸建て
2026.02.21
-
-
- 3,090万円
-
宇都宮市上戸祭4丁目
-
東武宇都宮線「東武宇都宮駅」まで車17分
- 4LDK
-
-
新築一戸建て
2026.02.21
-
-
新築一戸建て
2026.02.22
-
-
- 2,990万円
-
宇都宮市中一の沢町
-
東武宇都宮線「東武宇都宮駅」バス乗車8分 バス停「関東自動車整備前」まで徒歩5分
- 4LDK
-
-
新築一戸建て
2026.02.22
-
-
新築一戸建て
2026.02.23
-
-
- 2,998万円
-
宇都宮市鶴田町
-
JR日光線「鶴田駅」まで徒歩10分
- 3LDK
-
-
新築一戸建て
2026.02.23
-
-
新築一戸建て
2026.02.23
-
-
- 2,990万円
-
宇都宮市簗瀬3丁目
-
JR東北本線「宇都宮駅」バス乗車4分 バス停「中央市場前」まで徒歩6分
- 4LDK
-
-
新築一戸建て
2026.02.23
-
-
新築一戸建て
2026.02.23
-
-
- 2,990万円
-
宇都宮市南一の沢町
-
東武宇都宮線「東武宇都宮駅」バス乗車11分 バス停「睦町」まで徒歩3分
- 4LDK
-
-
新築一戸建て
2026.02.23
-
-
新築一戸建て
2026.02.24
-
-
- 2,990万円
-
宇都宮市簗瀬3丁目
-
JR東北本線「宇都宮駅」バス乗車4分 バス停「中央市場前」まで徒歩6分
- 4LDK
-
-
新築一戸建て
2026.02.24
-
-
新築一戸建て
2026.02.24
-
-
- 2,990万円
-
宇都宮市南一の沢町
-
東武宇都宮線「東武宇都宮駅」バス乗車11分 バス停「睦町」まで徒歩3分
- 4LDK
-
-
新築一戸建て
2026.02.24
-
-
新築一戸建て
2026.03.02
-
-
- 2,890万円
-
宇都宮市鶴田町
-
東武宇都宮線「東武宇都宮駅」まで徒歩35分
- 4LDK
-
-
新築一戸建て
2026.03.02
- 栃木県
マイページ物件数 - 6,869件
栃木県新築一戸建て新着物件
-
-

-
- 新築一戸建て
- 3,998万円
-
宇都宮市平松本町
-
JR東北本線宇都宮駅
-
-
-

-
- 新築一戸建て
- 4,198万円
-
宇都宮市清住3丁目
-
JR東北本線宇都宮駅
-
-
-

-
- 新築一戸建て
- 3,998万円
-
宇都宮市清住3丁目
-
JR東北本線宇都宮駅
-
-
-

-
- 新築一戸建て
- 2,890万円
-
宇都宮市鶴田町
-
東武宇都宮線東武宇都宮駅
-
-
-

-
- 新築一戸建て
- 3,998万円
-
宇都宮市中戸祭1丁目
-
東武宇都宮線東武宇都宮駅
-
-
-

-
- 新築一戸建て
- 3,598万円
-
宇都宮市中戸祭1丁目
-
東武宇都宮線東武宇都宮駅
-
-
-

-
- 新築一戸建て
- 3,598万円
-
宇都宮市中戸祭1丁目
-
東武宇都宮線東武宇都宮駅
-
- お近くの店舗を探す
-








