鳥栖市宿町 2号棟 DSK
掲載情報更新日:2026年04月09日 次回更新予定日:2026年04月23日
- 3,899万円
-
- 借入ご希望金額
万円 - 借入期間
年 - 借入金利
% - 月々のお支払い金額
円
- 借入ご希望金額
※ 月々のお支払例は目安の試算となりますので、実際の金額とは異なる場合がございます。詳しくは店舗までお問合わせください。
- 鳥栖市宿町
-
JR九州新幹線『新鳥栖』 車8分(約26.0km)
鳥栖市宿町 2号棟 DSK一戸建て | 物件情報
■頭金0円!ボーナス払いゼロ、 ■住宅ローンご相談ください。 ■夜10時まで当日ご案内可能!
おススメその1 パノラマ画像♪
HPにて360度パノラマ画像をご覧いただけます。
おススメその2 住宅ローンのご相談♪
購入時または購入後に掛かる費用まで、ご不明点は
しっかりサポート致しますのでご安心ください。
おススメその3 全国展開700店舗のネットワーク!
新築も中古もお客様のご希望のエリア、予算に合わせてお探し致します♪
物件の設備
- 電気
- オール電化
- 上水道
- 公営水道
- 下水道
- 給湯
- 浄水器
- 食器乾燥機
- 食器洗浄乾燥機
- IHクッキングヒータ
- カウンターキッチン
- システムキッチン
- バス
- オートバス
- 追焚機能
- 浴室乾燥機
- 浴室に窓
- トイレ
- トイレ2箇所
- 温水洗浄便座
- 室内洗濯機置場
- 洗髪洗面化粧台
- モニタ付インターホン
- LDK15畳以上
- 複層ガラス
- 全居室複層ガラス
- フローリング
- 全室フローリング
- シャッター雨戸
- 24時間換気システム
- クローゼット
- クローゼット3箇所
- 床下収納
- 全居室収納
- シューズボックス
物件の特徴
- 前道6m以上
- 2階建
物件詳細情報
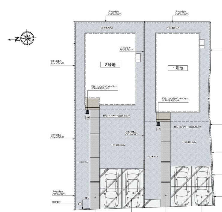
| 価格 | 3,899万円 | 間取り | 4LDK |
|---|---|---|---|
| 物件種別 | 新築一戸建て | ||
| 所在地 | 佐賀県鳥栖市宿町 | ||
| アクセス |
|
||
| 建物面積 | 101.02㎡ | 駐車場 | あり |
| 築年月 | 2026年(令和8年)03月予定 | 建築確認 | 第12504490号 |
| 建物構造 | 木造 2階建 | 工法 | |
| 主要採光 | バルコニー | ||
| 保証・評価 | |||
| 分譲情報 | 【販売戸数】:2戸 |
||
| 土地面積 | 215.37㎡(65.14坪) | 接道 | 西側幅 約8.9m |
| 私道 | セットバック | ||
| 地目 | 宅地 | 地勢 | |
| 権利 | 所有権 |
||
| 都市計画 | 市街化区域 |
用途地域 | 1種低層 |
| 建ぺい/容積率 | 50% / 80% | 土地国土法 | |
| 許可番号 | 建築基準法 | ||
| 法令制限 | |||
| 小学区 | 鳥栖北小学校 徒歩11分 (約880m) | 中学区 | 鳥栖中学校 徒歩17分 (約1300m) |
| 現況 | 建築中 | 引渡 | 期日指定:2026年03月以降 |
| その他費用 | |||
| 周辺環境 | ローソン 鳥栖養父町店 徒歩5分 (約380m) 鳥栖市役所 徒歩10分 (約780m) セブンイレブン宿町 徒歩8分 (約590m) 鳥栖土井郵便局 徒歩8分 (約610m) 鳥栖市立鳥栖北小学校 徒歩14分 (約1090m) 業務スーパー 鳥栖店 徒歩13分 (約980m) ローソン 鳥栖神辺店 徒歩13分 (約1000m) 西鉄バスセンター 徒歩14分 (約1100m) セブンイレブン 鳥栖古賀町店 徒歩13分 (約1020m) 鳥栖市立鳥栖中学校 徒歩17分 (約1320m) |
||
| 備考 | |||
| 物件番号 | 4439071 | 取引態様 | 媒介 |
取扱店舗情報
| 電話番号 | 0942-50-5735 |
|---|---|
| 所在地 | 〒841-0051 佐賀県鳥栖市元町1246番地3 |
| 営業時間 | 10:00~18:00 |
| 定休日 | 水曜日 |
| 宅建免許番号 | 佐賀県知事(2)第2561号 |
| アクセス | 店舗への地図はこちら |

来店ご予約
佐賀県鳥栖市で価格が似ている物件はこちら
- 佐賀県
マイページ物件数 - 1,587件
最近見た物件
-
-

-
- 中古マンション
- 2,090万円
-
福岡市東区奈多1丁目
-
JR香椎線奈多
-
-
-

-
- 中古マンション
- 4,480万円
-
鹿児島市照国町
-
市電唐湊線天文館通
-
-
-

-
- 中古一戸建て
- 3,780万円
-
甲府市緑が丘1丁目
-
JR中央本線甲府
-
佐賀県新築一戸建て新着物件
-
-

-
- 新築一戸建て
- 2,998万円
-
佐賀市巨勢町大字牛島
-
バス停「モラージュ佐賀前」
-
-
-

-
- 新築一戸建て
- 2,998万円
-
佐賀市高木瀬町大字東高木
-
JR長崎本線佐賀駅
-
-
-

-
- 新築一戸建て
- 2,998万円
-
佐賀市高木瀬町大字東高木
-
JR長崎本線佐賀駅
-
-
-

-
- 新築一戸建て
- 3,080万円
-
三養基郡上峰町大字坊所
-
JR長崎本線吉野ヶ里公園駅
-
-
-

-
- 新築一戸建て
- 2,998万円
-
佐賀市高木瀬町大字東高木
-
JR長崎本線佐賀駅
-
-
-

-
- 新築一戸建て
- 2,998万円
-
佐賀市高木瀬町大字東高木
-
JR長崎本線佐賀駅
-
-
-

-
- 新築一戸建て
- 2,998万円
-
佐賀市多布施4丁目
-
JR長崎本線佐賀駅
-
- お近くの店舗を探す
-
おすすめ物件
-
-

-
- 新築一戸建て
- 3,460万円
-
鳥栖市山浦町
-
JR九州新幹線新鳥栖
-
-
-

-
- 新築一戸建て
- 2,798万円
-
鳥栖市鎗田町
-
JR鹿児島本線田代
-
-
-

-
- 新築一戸建て
- 3,298万円
-
鳥栖市姫方町
-
JR鹿児島本線田代
-
-
-

-
- 新築一戸建て
- 3,300万円
-
三養基郡上峰町大字前牟田字上米多
-
JR長崎本線吉野ヶ里公園
-
-
-

-
- 新築一戸建て
- 3,680万円
-
佐賀市本庄町大字袋
-
バス停「八田橋」
-
-
-

-
- 新築一戸建て
- 2,698万円
-
三養基郡みやき町大字白壁
-
JR長崎本線中原
-
-
-

-
- 新築一戸建て
- 2,798万円
-
鳥栖市宿町
-
JR鹿児島本線鳥栖
-
-
-

-
- 新築一戸建て
- 2,498万円
-
鳥栖市平田町
-
JR長崎本線肥前麓
-
-
-

-
- 新築一戸建て
- 2,798万円
-
鳥栖市曽根崎町
-
JR鹿児島本線鳥栖
-
-
-

-
- 新築一戸建て
- 4,380万円
-
佐賀市高木瀬西5丁目
-
佐賀市営バス「高木瀬公民館前」
-





















担当エージェント:今里
土地・新築、中古戸建、全国700店舗以上の
ネットワークでお手伝い致します!
0942-50-5735鳥栖郵便局そば、お気軽にご相談ください♪