新築戸建 大谷本郷第7
掲載情報更新日:2025年12月08日 次回更新予定日:2025年12月22日
- 2,880万円
-
- 借入ご希望金額
万円 - 借入期間
年 - 借入金利
% - 月々のお支払い金額
円
- 借入ご希望金額
※ 月々のお支払例は目安の試算となりますので、実際の金額とは異なる場合がございます。詳しくは店舗までお問合わせください。
- 上尾市大字大谷本郷
-
JR高崎線『上尾』 徒歩38分 (約3040m)
新築戸建 大谷本郷第7一戸建て | 物件情報
小中学校徒歩10分圏内 和室 ルーフバルコニー WIC2カ所 対面式システムキッチン
1階リビンング横に和室が備わっている為、来客用スペースとしてもよし!お子様のお昼寝スペースとしてもよし!使い勝手の良いお部屋となっております。
玄関収納や全居室収納スペースがあり、内2カ所はWICとなっている為、収納力豊富な物件です!
~Life Information~
・上尾市立大谷小学校 約202m(徒歩約3分)
・上尾市立南中学校 約757m(徒歩約10分)
・コープ今泉店 約1,657m(徒歩約21分)
・医療法人社団愛友会上尾中央第二病院 約1,523m(徒歩約20分)
・ウエルシア上尾大谷本郷店 約753m(徒歩約10分)
物件の設備
- 電気
- 公営水道
- 下水道
- プロパンガス
- 個別プロパン
- 給湯
- システムキッチン
- バス
- オートバス
- 浴室暖房
- 浴室乾燥機
- トイレ
- トイレ2箇所
- 温水洗浄便座
- 室内洗濯機置場
- 洗面所独立
- 人感照明センサー
- 防犯カメラ
- 火災警報器/報知機
- LDK15畳以上
- 2面採光
- 全居室複層ガラス
- 24時間換気システム
- クローゼット
- ウォークインクローゼット
- ウォークインクローゼット2箇所
- 全居室収納
- シューズボックス
- ルーフバルコニー
- インナーバルコニー
物件の特徴
- スーパーが近い
- 閑静な住宅街
- 周辺交通量少なめ
- 眺望良好
- 陽当り良好
- 2階建
- 平坦地
物件詳細情報
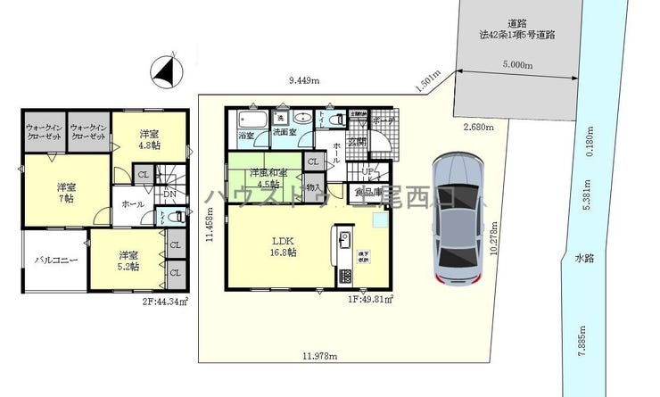
| 価格 | 2,880万円 | 間取り | 4LDK |
|---|---|---|---|
| 物件種別 | 新築一戸建て | ||
| 所在地 | 埼玉県上尾市大字大谷本郷 4号棟 | ||
| アクセス |
|
||
| 建物面積 | 公93.95㎡ | 駐車場 | あり 普通:1台 |
| 築年月 | 2025年(令和7年)10月築 | 建築確認 | 第25UDI1W建03128号 |
| 建物構造 | 木造 2階建 | 工法 | 軸組工法 |
| 主要採光 | 南東向 | バルコニー | 7.29㎡ |
| 保証・評価 | |||
| 土地面積 | 公138.83㎡(41.99坪) | 接道 | 北西側(私道)幅 約5.0m(位置指定) |
| 私道 | セットバック | ||
| 地目 | 宅地 | 地勢 | |
| 権利 | 所有権 |
||
| 都市計画 | 市街化区域 |
用途地域 | 準工業 |
| 建ぺい/容積率 | 60% / 200% | 土地国土法 | |
| 許可番号 | 建築基準法 | ||
| 法令制限 | 景観法・宅地造成及び特定盛土等規制法 | ||
| 小学区 | 大谷小学校 徒歩3分 (約202m) | 中学区 | 南中学校 徒歩10分 (約757m) |
| 現況 | 完工済 | 引渡 | 相談 |
| その他費用 | |||
| 周辺環境 | 上尾市立大谷小学校 徒歩5分 (約360m) ウェルシア上尾大谷本郷店 徒歩8分 (約630m) ローソン上尾大谷本郷店 徒歩9分 (約660m) 上尾市立南中学校 徒歩12分 (約890m) セブンイレブン上尾向山店 徒歩11分 (約830m) アリオ上尾 徒歩13分 (約1020m) セブンイレブン上尾西宮下店 徒歩16分 (約1220m) エンゼル愛児園 徒歩17分 (約1340m) セブンイレブン上尾壱丁目南店 徒歩17分 (約1290m) アスレチックパーク 徒歩17分 (約1360m) |
||
| 備考 | ※敷地内に電柱及び支線が入る場合があります。 ※図面と現況が相違する場合は、現況を優先とします。 |
||
| 物件番号 | 4439215 | 取引態様 | 媒介 |
取扱店舗情報
ハウスドゥ 上尾西口 武蔵都市開発株式会社 店舗詳細ページへ
| 電話番号 | 048-729-4025 |
|---|---|
| 所在地 | 〒362-0042 埼玉県上尾市谷津2丁目4-5 小川第一ビル102号室 |
| 営業時間 | 9:30~18:30 |
| 定休日 | 水曜日、年末年始 |
| 宅建免許番号 | 埼玉県知事(1)第25246号 |
| アクセス | 店舗への地図はこちら |

来店ご予約
埼玉県上尾市で価格が似ている物件はこちら
- 埼玉県
マイページ物件数 - 3,118件
埼玉県新築一戸建て新着物件
-
-

-
- 新築一戸建て
- 4,150万円
-
さいたま市見沼区大和田町2丁目
-
東武野田線大和田駅
-
-
-

-
- 新築一戸建て
- 4,999万円
-
さいたま市見沼区東大宮6丁目
-
JR東北本線東大宮駅
-
-
-

-
- 新築一戸建て
- 4,790万円
-
さいたま市見沼区東大宮6丁目
-
JR東北本線東大宮駅
-
-
-

-
- 新築一戸建て
- 5,390万円
-
さいたま市見沼区東大宮6丁目
-
JR東北本線東大宮駅
-
-
-

-
- 新築一戸建て
- 7,380万円
-
さいたま市緑区原山1丁目
-
JR京浜東北・根岸線浦和駅
-
-
-

-
- 新築一戸建て
- 4,980万円
-
川口市元郷4丁目
-
埼玉高速鉄道川口元郷駅
-
-
-

-
- 新築一戸建て
- 5,398万円
-
蓮田市馬込2丁目
-
JR東北本線蓮田駅
-
- お近くの店舗を探す
-
おすすめ物件
-
-

-
- 新築一戸建て
- 4,499万円
-
戸田市美女木2丁目
-
JR埼京線北戸田
-
-
-

-
- 新築一戸建て
- 3,190万円
-
戸田市笹目7丁目
-
都営三田線西高島平
-
-
-

-
- 新築一戸建て
- 4,180万円
-
川口市鳩ヶ谷本町4丁目
-
埼玉高速鉄道鳩ヶ谷
-
-
-

-
- 新築一戸建て
- 2,880万円
-
上尾市大字大谷本郷
-
JR高崎線上尾
-
-
-

-
- 新築一戸建て
- 4,880万円
-
川口市朝日3丁目
-
埼玉高速鉄道南鳩ヶ谷
-
-
-

-
- 新築一戸建て
- 3,880万円
-
越谷市東越谷6丁目
-
東武伊勢崎・大師線越谷
-
-
-

-
- 新築一戸建て
- 5,880万円
-
戸田市下戸田1丁目
-
JR埼京線戸田公園
-
-
-

-
- 新築一戸建て
- 3,680万円
-
越谷市東越谷6丁目
-
東武伊勢崎・大師線越谷
-
-
-

-
- 新築一戸建て
- 6,188万円
-
越谷市瓦曽根1丁目
-
東武伊勢崎・大師線越谷
-
-
-

-
- 新築一戸建て
- 3,100万円
-
東松山市新宿町
-
東武東上線東松山
-














担当エージェント:平田 杏弥
本物件は日程調整の上、ご案内可能です。お気軽にお問い合わせください。
不動産の事から住宅ローンの事まで幅広くご相談可能です。
会社選び+担当者=安心の住まい探し。全国700店舗展開・東証プライム上場のハウスドゥへお任せください。