千葉市稲毛区山王町の新築戸建
NEW 10.09掲載情報更新日:2025年10月03日 次回更新予定日:2025年10月17日
- 3,390万円
-
- 借入ご希望金額
万円 - 借入期間
年 - 借入金利
% - 月々のお支払い金額
円
- 借入ご希望金額
※ 月々のお支払例は目安の試算となりますので、実際の金額とは異なる場合がございます。詳しくは店舗までお問合わせください。
- 千葉市稲毛区山王町
-
JR総武本線『四街道』 徒歩24分 (約1920m)
千葉市稲毛区山王町一戸建て | 物件情報
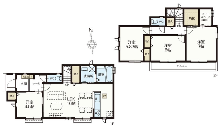
◇カースペース2台 ◇4SLDK・LDK16帖 ◇WIC・納戸・各居室収納 ◇ワイドバルコニー
◇エアコン1台プレゼント中◇
本物件をご成約のお客様へプレゼント!
※本プレゼントはご成約物件のみが対象です。
※ご成約時期によりモデルが変更となる場合がございます。
※取付費用別途
物件の設備
- 公営水道
- 公共下水
- 都市ガス
- コンロ三口
- カウンターキッチン
- システムキッチン
- ユニットバス
- 浴室乾燥機
- 浴室に窓
- トイレ2箇所
- 温水洗浄便座
- 室内洗濯機置場
- 洗髪洗面化粧台
- 洗面所独立
- 室内物干機
- 照明器具
- リビング階段
- モニタ付インターホン
- 火災警報器/報知機
- LDK15畳以上
- フローリング
- 24時間換気システム
- クローゼット
- ウォークインクローゼット
- 納戸
- 床下収納
- 全居室収納
- シューズボックス
- ワイドバルコニー
物件の特徴
- 全室南向
- 小学校徒歩10分以内
- 前道6m以上
- 2階建
- BELS/省エネ基準適合
- フラット35Sに対応
物件詳細情報
価格 | 3,390万円 | 間取り | 4LDK+S |
---|---|---|---|
物件種別 | 新築一戸建て | ||
所在地 | 千葉県千葉市稲毛区山王町1-2 | ||
アクセス |
|
||
建物面積 | 97.71㎡ | 駐車場 | あり 普通:1台 軽:1台 |
築年月 | 2025年(令和7年)08月予定 | 建築確認 | 第HPA-25-09809-1号 |
建物構造 | 木造 2階建 | 工法 | |
主要採光 | バルコニー | ||
保証・評価 | |||
土地面積 | 142.39㎡(43.07坪) | 接道 | 西側(公道)幅 約7.2m |
私道 | セットバック | ||
地目 | 宅地 | 地勢 | |
権利 | 所有権 |
||
都市計画 | 市街化区域 |
用途地域 | 1種中高 |
建ぺい/容積率 | 60% / 200% | 土地国土法 | |
許可番号 | 建築基準法 | ||
法令制限 | 法22条区域 | ||
小学区 | 山王小学校 徒歩10分 (約750m) | 中学区 | 山王中学校 徒歩25分 (約2000m) |
現況 | 建築中 | 引渡 | 期日指定:2025年08月末 |
その他費用 | |||
備考 | ◇カースペース2台 ◇4SLDK・LDK16帖 ◇WIC・納戸・各居室収納あり ◇ワイドバルコニー ◇全室南向き |
||
物件番号 | 4441435 | 取引態様 | 媒介 |
取扱店舗情報
ハウスドゥ 東習志野 株式会社Delta company 店舗詳細ページへ
電話番号 | 047-411-6912 |
---|---|
所在地 | 〒275-0001 千葉県習志野市東習志野5丁目19-17 宮澤マンションC号室 |
営業時間 | 平日9:30~18:30 土日祝日8:30~17:30 |
定休日 | 水曜日 |
宅建免許番号 | 千葉県知事(1)第18367号 |
アクセス | 店舗への地図はこちら |
来店ご予約
千葉県千葉市稲毛区で価格が似ている物件はこちら
- 千葉県
マイページ物件数 - 2,752件
最近見た物件
-
-
-
- 新築一戸建て
- 4,499万円
-
船橋市芝山5丁目
-
京成電鉄松戸線高根公団
-
千葉県新築一戸建て新着物件
-
-
-
- 新築一戸建て
- 3,490万円
-
船橋市丸山3丁目
-
東武野田線馬込沢駅
-
-
-
-
- 新築一戸建て
- 3,390万円
-
船橋市丸山3丁目
-
東武野田線馬込沢駅
-
-
-
-
- 新築一戸建て
- 4,499万円
-
船橋市芝山5丁目
-
京成電鉄松戸線高根公団駅
-
-
-
-
- 新築一戸建て
- 5,199万円
-
柏市西原5丁目
-
東武野田線初石駅
-
-
-
-
- 新築一戸建て
- 5,599万円
-
流山市鰭ケ崎
-
JR武蔵野線南流山駅
-
-
-
-
- 新築一戸建て
- 4,599万円
-
流山市三輪野山1丁目
-
つくばエクスプレス流山セントラルパーク駅
-
-
-
-
- 新築一戸建て
- 4,799万円
-
流山市三輪野山1丁目
-
つくばエクスプレス流山セントラルパーク駅
-
- お近くの店舗を探す
-
おすすめ物件
-
-
-
- 新築一戸建て
- 3,780万円
-
成田市寺台
-
JR成田線成田
-
-
-
-
- 新築一戸建て
- 3,680万円
-
成田市寺台
-
JR成田線成田
-
-
-
-
- 新築一戸建て
- 4,499万円
-
柏市西原3丁目
-
東武野田線江戸川台
-
-
-
-
- 新築一戸建て
- 3,390万円
-
船橋市松が丘4丁目
-
東葉高速鉄道船橋日大前
-
-
-
-
- 新築一戸建て
- 4,280万円
-
流山市駒木台
-
つくばエクスプレス柏の葉キャンパス
-
-
-
-
- 新築一戸建て
- 3,680万円
-
成田市寺台
-
JR成田線成田
-
-
-
-
- 新築一戸建て
- 4,499万円
-
松戸市平賀
-
JR千代田・常磐緩行線北小金
-
-
-
-
- 新築一戸建て
- 8,780万円
-
流山市野々下3丁目
-
東武野田線豊四季
-
-
-
-
- 新築一戸建て
- 4,980万円
-
流山市野々下5丁目
-
東武野田線豊四季
-
-
-
-
- 新築一戸建て
- 4,290万円
-
松戸市常盤平2丁目
-
京成電鉄松戸線常盤平
-
□当社は住宅ローンに『自信』があります。是非一度ご相談下さい□
「他社で断られた」 「頭金が無いからな」
「他の返済があるからな」
住宅ローンがご不安な方もお気軽にご相談下さい♪
親身にご相談させていただき、お客様に最適な金融機関をご紹介いたします。
◇頭金0円からのご購入可能(諸費用もOK)
◇他の物件も見てみたい!などお気軽にお申し付け下さい♪
■現地案内会
平日のご見学もお電話1本で駆けつけます。
047-411-6912までお電話下さい。
■ご案内方法
ご来店できないお客様は、ご自宅への送迎やご指定の場所で待ち合わせてご案内。ご希望に合わせ周辺情報もご案内!
■キッズスペース
お子様が退屈しないようDVD、ぬりえ、おもちゃなどをご用意していますので安心してご来店ください。
■専用駐車場
お客様専用駐車場完備!お気軽にご来店お待ちいたしております。
■売却査定買取
仲介による売却はもちろん、ご近所に知られたくない、急いで売却したいときには高額査定で買取します!!
地元密着の情報量とフットワークの良さでお手伝いさせて頂きます。