豊田市堤町宮崎の新築戸建
掲載情報更新日:2025年11月18日 次回更新予定日:2025年12月02日
- 3,770万円
-
- 借入ご希望金額
万円 - 借入期間
年 - 借入金利
% - 月々のお支払い金額
円
- 借入ご希望金額
※ 月々のお支払例は目安の試算となりますので、実際の金額とは異なる場合がございます。詳しくは店舗までお問合わせください。
- 豊田市堤町宮崎
-
名鉄三河線『若林』 バス乗車7分 高岡ふれあいバス 堤下町 停 徒歩5分 (約400m)
名鉄名古屋本線『知立』 バス乗車58分 堤町平松 停 徒歩4分 (約320m)
名鉄三河線『竹村』 徒歩46分 (約3680m)
豊田市堤町宮崎一戸建て | 物件情報
長期優良住宅◆地震に強い家
〇2階の洋室に間仕切り壁用下地あり
○広々パントリー
○収納スペース充実
―――――――――――――――
◆自営業の方・転職後間もない方・母子家庭の方・年収がご不安な方・外国人の方・過去に延滞のある方など、 たくさんの成約事例があります。
◆「自己資金はないけど大丈夫?」「住宅ローンの変動・固定どっちが良いの?金利はどこの銀行が安い?」 など、 お気軽にご相談ください。経験豊富なスタッフがサポートいたします。
物件の設備
- 電気
- 上水道
- 公営水道
- 浄化槽
- 個別浄化槽
- プロパンガス
- 給湯
- 浄水器
- コンロ三口
- グリル
- ガスコンロ付
- カウンターキッチン
- システムキッチン
- バス
- ユニットバス
- オートバス
- バス1坪以上
- 追焚機能
- 浴室暖房
- 浴室乾燥機
- トイレ
- トイレ2箇所
- 温水洗浄便座
- 室内洗濯機置場
- 洗髪洗面化粧台
- 洗面所独立
- 省エネ給湯器
- ディンプルキー
- ダブルロックキー
- モニタ付インターホン
- 火災警報器/報知機
- LDK15畳以上
- 2面採光
- 複層ガラス
- 全室フローリング
- シャッター雨戸
- 24時間換気システム
- クローゼット
- クローゼット3箇所
- ウォークインクローゼット
- 床下収納
- 全居室収納
- シューズボックス
- バルコニー
- 南面バルコニー
物件の特徴
- 地盤調査済
- 耐震構造
- 制震構造
- 始発駅
- セットバック要
- 南側道路面す
- 陽当り良好
- 2階建
- 平坦地
- 整形地
- 外壁サイディング
- 長期優良住宅
- 建設住宅性能評価付
- 設計住宅性能評価付
- フラット35
- S適合証明書
- フラット35Sに対応
物件詳細情報
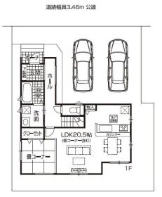
| 価格 | 3,770万円 | 間取り | 3LDK |
|---|---|---|---|
| 物件種別 | 新築一戸建て | ||
| 所在地 | 愛知県豊田市堤町宮崎 3号棟 | ||
| アクセス |
|
||
| 建物面積 | 98.94㎡ | 駐車場 | あり 普通:2台 |
| 築年月 | 2026年(令和8年)01月予定 | 建築確認 | 第HPA-25-11788-1号 |
| 建物構造 | 木造 2階建 | 工法 | |
| 主要採光 | 南向 | バルコニー | |
| 保証・評価 | 長期優良住宅認定通知書・フラット35S適合証明書・設計住宅性能評価書・建設住宅性能評価書(新築時) |
||
| 分譲情報 | 【販売戸数】:3戸 |
||
| 土地面積 | 公164.99㎡(49.90坪) | 接道 | 南側(公道)幅 約3.1m 間口 約6.80m |
| 私道 | セットバック | 要 | |
| 地目 | 宅地 | 地勢 | |
| 権利 | 所有権 |
||
| 都市計画 | 調整区域 |
用途地域 | 指定無 |
| 建ぺい/容積率 | 60% / 200% | 土地国土法 | |
| 許可番号 | 建築基準法 | ||
| 法令制限 | 法22条区域 | ||
| 小学区 | 堤小学校 徒歩13分 (約1000m) | 中学区 | 前林中学校 徒歩27分 (約2100m) |
| 現況 | 建築中 | 引渡 | 期日指定:2026年02月 |
| その他費用 | |||
| 周辺環境 | 豊田市立堤小学校 徒歩12分 (約940m) 豊田市立前林中学校 徒歩28分 (約2240m) 堤ケ丘こども園 徒歩6分 (約430m) 豊田堤郵便局 徒歩9分 (約690m) セブンイレブン豊田市高岡町店 徒歩9分 (約720m) スギ薬局堤本町店 徒歩13分 (約1010m) 細口公園 徒歩22分 (約1750m) うめもとクリニック 徒歩36分 (約2880m) メグリアミニ星ケ丘店 徒歩46分 (約3610m) |
||
| 備考 | ※私道持分あり ■長期優良住宅■住宅性能評価■耐震等級3 ■地盤調査済■並列駐車2台可■陽当たり良好 ■TV付モニターホン■1坪バス■シャワートイレ■ベタ基礎 ■24時間換気システム■浴室乾燥機■床下収納 ■ペアガラス■ウォークインクローゼット■フラット35S対応 |
||
| 物件番号 | 4441939 | 取引態様 | 媒介 |
取扱店舗情報
ハウスドゥ みよし・刈谷北 株式会社名東木材 店舗詳細ページへ
| 電話番号 | 0561-33-2375 |
|---|---|
| 所在地 | 〒470-0224 愛知県みよし市三好町半野木1-97 |
| 営業時間 | 9:00~18:00 |
| 定休日 | 毎週水曜日他(会社カレンダーに準ずる) |
| 宅建免許番号 | 愛知県知事(4)第20719号 |
| アクセス | 店舗への地図はこちら |

来店ご予約
愛知県豊田市で価格が似ている物件はこちら
![]()
![]()
-
- 新築一戸建て 2024.03.18
-
-
- 3,799万円
-
豊田市細谷町1丁目
-
愛知環状鉄道「新上挙母駅」まで徒歩23分
- 4LDK
-
-
- 新築一戸建て 2024.03.18
-
-
- 3,799万円
-
豊田市細谷町1丁目
-
愛知環状鉄道「新上挙母駅」まで徒歩23分
- 4LDK
-
-
- 新築一戸建て 2024.12.02
-
-
- 3,690万円
-
豊田市水源町2丁目
-
名鉄三河線「豊田市駅」バス乗車33分 バス停「おいでんバス「水源平和」」まで徒歩5分
- 4LDK
-
-
- 新築一戸建て 2024.12.02
-
-
- 3,690万円
-
豊田市水源町2丁目
-
名鉄三河線「豊田市駅」バス乗車33分 バス停「おいでんバス「水源平和」」まで徒歩5分
- 4LDK
-
-
- 新築一戸建て 2024.12.03
-
-
- 3,690万円
-
豊田市水源町2丁目
-
名鉄三河線「豊田市駅」バス乗車33分 バス停「おいでんバス「水源平和」」まで徒歩5分
- 4LDK
-
-
- 新築一戸建て 2024.12.10
-
-
- 3,690万円
-
豊田市水源町2丁目
-
愛知環状鉄道「三河豊田駅」バス乗車11分 バス停「平山」まで徒歩10分
- 4LDK
-
-
- 新築一戸建て 2024.12.12
-
-
- 3,690万円
-
豊田市水源町2丁目
-
愛知環状鉄道「三河豊田駅」まで徒歩41分
- 4LDK
-
-
- 新築一戸建て 2025.01.16
-
-
- 3,699万円
-
豊田市明和町4丁目
-
愛知環状鉄道「三河豊田駅」まで徒歩18分
- 3LDK
-
-
- 新築一戸建て 2025.01.16
-
-
- 3,699万円
-
豊田市明和町4丁目
-
愛知環状鉄道「三河豊田駅」まで徒歩18分
- 3LDK
-
-
- 新築一戸建て 2025.01.17
-
-
- 3,699万円
-
豊田市明和町4丁目
-
愛知環状鉄道「三河豊田駅」まで徒歩18分
- 3LDK
-
-
- 新築一戸建て 2025.01.20
-
-
- 3,699万円
-
豊田市明和町4丁目
-
愛知環状鉄道「三河豊田駅」まで徒歩19分
- 3LDK
-
-
- 新築一戸建て 2025.02.13
-
-
- 3,699万円
-
豊田市明和町4丁目
-
愛知環状鉄道「三河豊田駅」まで徒歩18分
- 3LDK
-
-
- 新築一戸建て 2025.03.15
-
-
- 3,799.50万円
-
豊田市野見山町1丁目
-
名鉄豊田線「豊田市駅」まで徒歩50分
- 4LDK
-
-
- 新築一戸建て 2025.03.15
-
-
- 3,699.50万円
-
豊田市野見山町1丁目
-
名鉄豊田線「豊田市駅」まで徒歩50分
- 4LDK
-
-
- 新築一戸建て 2025.03.15
-
-
- 3,799.50万円
-
豊田市野見山町1丁目
-
名鉄三河線「豊田市駅」バス乗車9分 バス停「おいでんバス「神池町」」まで徒歩4分
- 4LDK
-
-
- 新築一戸建て 2025.03.15
-
-
- 3,699.50万円
-
豊田市野見山町1丁目
-
名鉄三河線「豊田市駅」バス乗車9分 バス停「おいでんバス「神池町」」まで徒歩4分
- 4LDK
-
-
- 新築一戸建て 2025.03.16
-
-
- 3,799.50万円
-
豊田市野見山町1丁目
-
名鉄三河線「豊田市駅」バス乗車9分 バス停「おいでんバス「神池町」」まで徒歩4分
- 4LDK
-
-
- 新築一戸建て 2025.03.16
-
-
- 3,699.50万円
-
豊田市野見山町1丁目
-
名鉄三河線「豊田市駅」バス乗車9分 バス停「おいでんバス「神池町」」まで徒歩4分
- 4LDK
-
-
- 新築一戸建て 2025.03.16
-
-
- 3,799.50万円
-
豊田市野見山町1丁目
-
名鉄三河線「豊田市駅」バス乗車9分 バス停「おいでんバス「神池町」」まで徒歩4分
- 4LDK
-
-
- 新築一戸建て 2025.03.16
-
-
- 3,699.50万円
-
豊田市野見山町1丁目
-
名鉄三河線「豊田市駅」バス乗車9分 バス停「おいでんバス「神池町」」まで徒歩4分
- 4LDK
-
-
- 新築一戸建て 2025.05.27
-
-
- 3,790万円
-
豊田市平戸橋町永和
-
名鉄三河線「平戸橋駅」まで徒歩5分
- 3LDK+S
-
-
- 新築一戸建て 2025.05.28
-
-
- 3,790万円
-
豊田市平戸橋町永和
-
名鉄三河線「平戸橋駅」まで徒歩5分
- 3LDK+S
-
-
- 新築一戸建て 2025.05.29
-
-
- 3,790万円
-
豊田市平戸橋町永和
-
名鉄三河線「平戸橋駅」まで徒歩5分
- 3LDK+S
-
-
- 新築一戸建て 2025.05.30
-
-
- 3,790万円
-
豊田市平戸橋町永和
-
名鉄三河線「平戸橋駅」まで徒歩5分
- 3LDK+S
-
-
- 新築一戸建て 2025.06.20
-
-
- 3,799万円
-
豊田市細谷町1丁目
-
愛知環状鉄道「新上挙母駅」まで徒歩22分
- 4LDK
-
-
- 新築一戸建て 2025.06.20
-
-
- 3,799万円
-
豊田市細谷町1丁目
-
愛知環状鉄道「新上挙母駅」まで徒歩22分
- 4LDK
-
-
- 新築一戸建て 2025.06.21
-
-
- 3,799万円
-
豊田市細谷町1丁目
-
愛知環状鉄道「新上挙母駅」まで徒歩22分
- 4LDK
-
-
- 新築一戸建て 2025.06.21
-
-
- 3,799万円
-
豊田市細谷町1丁目
-
愛知環状鉄道「新上挙母駅」まで徒歩22分
- 4LDK
-
-
- 新築一戸建て 2025.06.21
-
-
- 3,799万円
-
豊田市細谷町1丁目
-
愛知環状鉄道「新上挙母駅」まで徒歩22分
- 4LDK
-
-
- 新築一戸建て 2025.06.21
-
-
- 3,799万円
-
豊田市細谷町1丁目
-
愛知環状鉄道「新上挙母駅」まで徒歩22分
- 4LDK
-
-
- 新築一戸建て 2025.06.26
-
-
- 3,690万円
-
豊田市水源町2丁目
-
愛知環状鉄道「三河豊田駅」まで車9分
- 4LDK
-
-
- 新築一戸建て 2025.07.07
-
-
- 3,799万円
-
豊田市細谷町1丁目
-
愛知環状鉄道「新上挙母駅」まで徒歩23分
- 4LDK
-
-
- 新築一戸建て 2025.07.07
-
-
- 3,799万円
-
豊田市細谷町1丁目
-
愛知環状鉄道「新上挙母駅」まで徒歩23分
- 4LDK
-
-
- 新築一戸建て 2025.09.27
-
-
- 3,680万円
-
豊田市美里2丁目
-
名鉄三河線「豊田市駅」バス乗車11分 バス停「おいでんバス「神池台」」まで徒歩5分
- 4LDK
-
-
- 新築一戸建て 2025.09.27
-
-
- 3,680万円
-
豊田市美里2丁目
-
名鉄三河線「豊田市駅」バス乗車11分 バス停「おいでんバス「神池台」」まで徒歩5分
- 4LDK
-
-
- 新築一戸建て 2025.09.27
-
-
- 3,680万円
-
豊田市美里2丁目
-
名鉄三河線「豊田市駅」バス乗車11分 バス停「おいでんバス「神池台」」まで徒歩5分
- 4LDK
-
-
- 新築一戸建て 2025.09.30
-
-
- 3,790万円
-
豊田市市木町1丁目
-
名鉄三河線「豊田市駅」バス乗車14分 バス停「名鉄バス「市木町」」まで徒歩5分
- 4LDK
-
-
- 新築一戸建て 2025.09.30
-
-
- 3,790万円
-
豊田市市木町1丁目
-
名鉄三河線「豊田市駅」バス乗車14分 バス停「名鉄バス「市木町」」まで徒歩5分
- 4LDK
-
-
- 新築一戸建て 2025.10.02
-
-
- 3,790万円
-
豊田市市木町1丁目
-
名鉄三河線「豊田市駅」バス乗車14分 バス停「名鉄バス「市木町」」まで徒歩5分
- 4LDK
-
-
- 新築一戸建て 2025.10.02
-
-
- 3,790万円
-
豊田市市木町1丁目
-
名鉄三河線「豊田市駅」バス乗車14分 バス停「名鉄バス「市木町」」まで徒歩5分
- 4LDK
-
-
- 新築一戸建て 2025.10.02
-
-
- 3,790万円
-
豊田市市木町1丁目
-
名鉄三河線「豊田市駅」バス乗車14分 バス停「名鉄バス「市木町」」まで徒歩5分
- 4LDK
-
-
- 新築一戸建て 2025.10.02
-
-
- 3,790万円
-
豊田市市木町1丁目
-
名鉄三河線「豊田市駅」バス乗車14分 バス停「名鉄バス「市木町」」まで徒歩5分
- 4LDK
-
-
- 新築一戸建て 2025.10.07
-
-
- 3,870万円
-
豊田市堤町宮崎
-
名鉄三河線「若林駅」バス乗車7分 バス停「おいでんバス「堤下町」」まで徒歩7分
- 4LDK
-
-
- 新築一戸建て 2025.10.07
-
-
- 3,770万円
-
豊田市堤町宮崎
-
名鉄三河線「若林駅」バス乗車7分 バス停「おいでんバス「堤下町」」まで徒歩7分
- 3LDK
-
-
- 新築一戸建て 2025.10.07
-
-
- 3,870万円
-
豊田市堤町宮崎
-
名鉄三河線「若林駅」バス乗車7分 バス停「おいでんバス「堤下町」」まで徒歩7分
- 4LDK
-
-
- 新築一戸建て 2025.10.07
-
-
- 3,770万円
-
豊田市堤町宮崎
-
名鉄三河線「若林駅」バス乗車7分 バス停「おいでんバス「堤下町」」まで徒歩7分
- 3LDK
-
-
- 新築一戸建て 2025.10.09
-
-
- 3,790万円
-
豊田市大林町13丁目
-
愛知環状鉄道「末野原駅」まで徒歩14分
- 3LDK+S
-
-
- 新築一戸建て 2025.10.09
-
-
- 3,790万円
-
豊田市大林町13丁目
-
愛知環状鉄道「末野原駅」まで徒歩14分
- 3LDK
-
-
- 新築一戸建て 2025.10.09
-
-
- 3,870万円
-
豊田市堤町宮崎
-
名鉄三河線「若林駅」バス乗車7分 バス停「高岡ふれあいバス堤下町」まで徒歩5分
- 4LDK
-
-
- 新築一戸建て 2025.10.09
-
-
- 3,790万円
-
豊田市大林町13丁目
-
愛知環状鉄道「末野原駅」まで徒歩14分
- 3LDK+S
-
-
- 新築一戸建て 2025.10.09
-
-
- 3,790万円
-
豊田市大林町13丁目
-
愛知環状鉄道「末野原駅」まで徒歩14分
- 3LDK
-
-
- 新築一戸建て 2025.10.09
-
-
- 3,870万円
-
豊田市堤町宮崎
-
名鉄三河線「若林駅」バス乗車7分 バス停「おいでんバス「堤下町」」まで徒歩7分
- 4LDK
-
-
- 新築一戸建て 2025.10.09
-
-
- 3,770万円
-
豊田市堤町宮崎
-
名鉄三河線「若林駅」バス乗車7分 バス停「おいでんバス「堤下町」」まで徒歩7分
- 3LDK
-
-
- 新築一戸建て 2025.10.09
-
-
- 3,790万円
-
豊田市大林町13丁目
-
愛知環状鉄道「末野原駅」まで徒歩14分
- 3LDK
-
-
- 新築一戸建て 2025.10.14
-
-
- 3,790万円
-
豊田市野見山町3丁目
-
名鉄三河線「豊田市駅」バス乗車13分 バス停「おいでんバス「神池町」」まで徒歩9分
- 4LDK+S
-
-
- 新築一戸建て 2025.10.14
-
-
- 3,690万円
-
豊田市野見山町3丁目
-
名鉄三河線「豊田市駅」バス乗車13分 バス停「おいでんバス「神池町」」まで徒歩9分
- 4LDK
-
-
- 新築一戸建て 2025.10.14
-
-
- 3,790万円
-
豊田市野見山町3丁目
-
名鉄三河線「豊田市駅」バス乗車13分 バス停「おいでんバス「神池町」」まで徒歩9分
- 4LDK+S
-
-
- 新築一戸建て 2025.10.14
-
-
- 3,690万円
-
豊田市野見山町3丁目
-
名鉄三河線「豊田市駅」バス乗車13分 バス停「おいでんバス「神池町」」まで徒歩9分
- 4LDK
-
-
- 新築一戸建て 2025.10.16
-
-
- 3,790万円
-
豊田市野見山町3丁目
-
名鉄三河線「豊田市駅」バス乗車13分 バス停「おいでんバス「神池町」」まで徒歩9分
- 4LDK+S
-
-
- 新築一戸建て 2025.10.16
-
-
- 3,690万円
-
豊田市野見山町3丁目
-
名鉄三河線「豊田市駅」バス乗車13分 バス停「おいでんバス「神池町」」まで徒歩9分
- 4LDK
-
-
- 新築一戸建て 2025.10.20
-
-
- 3,790万円
-
豊田市大林町13丁目
-
愛知環状鉄道「末野原駅」まで徒歩13分
- 3LDK
-
-
- 新築一戸建て 2025.10.21
-
-
- 3,790万円
-
豊田市野見山町3丁目
-
名鉄三河線「上挙母駅」まで徒歩56分
- 4LDK+S
-
-
- 新築一戸建て 2025.10.21
-
-
- 3,690万円
-
豊田市野見山町3丁目
-
名鉄三河線「上挙母駅」まで徒歩56分
- 4LDK
-
-
- 新築一戸建て 2025.10.21
-
-
- 3,790万円
-
豊田市大林町13丁目
-
愛知環状鉄道「末野原駅」まで徒歩12分
- 3LDK
-
-
-
新築一戸建て
2025.11.03
-
-
- 3,790万円
-
豊田市市木町1丁目
-
名鉄三河線「越戸駅」まで徒歩40分
- 4LDK
-
-
新築一戸建て
2025.11.03
-
-
新築一戸建て
2025.11.03
-
-
- 3,790万円
-
豊田市市木町1丁目
-
名鉄三河線「越戸駅」まで徒歩40分
- 4LDK
-
-
新築一戸建て
2025.11.03
-
-
新築一戸建て
2025.11.04
-
-
- 3,870万円
-
豊田市堤町宮崎
-
名鉄三河線「竹村駅」まで徒歩41分
- 4LDK
-
-
新築一戸建て
2025.11.04
-
-
新築一戸建て
2025.11.04
-
-
- 3,770万円
-
豊田市堤町宮崎
-
名鉄三河線「竹村駅」まで徒歩41分
- 3LDK
-
-
新築一戸建て
2025.11.04
-
-
新築一戸建て
2025.11.06
-
-
- 3,680万円
-
豊田市美里2丁目
-
名鉄豊田線「豊田市駅」まで徒歩42分
- 4LDK
-
-
新築一戸建て
2025.11.06
-
-
新築一戸建て
2025.11.10
-
-
- 3,690万円
-
豊田市東新町3丁目
-
名鉄三河線「豊田市駅」バス乗車13分 バス停「名鉄バス豊田東新町」まで徒歩3分
- 3LDK
-
-
新築一戸建て
2025.11.10
-
-
新築一戸建て
2025.11.22
-
-
- 3,690万円
-
豊田市東新町3丁目
-
名鉄三河線「土橋駅」まで徒歩36分
- 3LDK
-
-
新築一戸建て
2025.11.22
-
-
新築一戸建て
2025.11.22
-
-
- 3,690万円
-
豊田市東新町3丁目
-
名鉄三河線「豊田市駅」バス乗車13分 バス停「名鉄バス「豊田東新町」」まで徒歩3分
- 3LDK
-
-
新築一戸建て
2025.11.22
-
-
新築一戸建て
2025.11.22
-
-
- 3,690万円
-
豊田市東新町3丁目
-
名鉄三河線「豊田市駅」バス乗車13分 バス停「名鉄バス「豊田東新町」」まで徒歩3分
- 3LDK
-
-
新築一戸建て
2025.11.22
-
-
新築一戸建て
2025.11.22
-
-
- 3,690万円
-
豊田市東新町3丁目
-
名鉄三河線「豊田市駅」バス乗車13分 バス停「名鉄バス「豊田東新町」」まで徒歩3分
- 3LDK
-
-
新築一戸建て
2025.11.22
- 愛知県
マイページ物件数 - 30,388件
最近見た物件
-
-

-
- 中古一戸建て
- 3,597万円
-
八王子市南陽台1丁目
-
京王線長沼
-
-
-

-
- 新築一戸建て
- 4,280万円
-
京都市西京区嵐山山ノ下町
-
阪急電鉄嵐山線嵐山
-
愛知県新築一戸建て新着物件
-
-

-
- 新築一戸建て
- 3,390万円
-
名古屋市港区船頭場1丁目
-
名古屋市東山線高畑駅
-
-
-

-
- 新築一戸建て
- 3,590万円
-
名古屋市港区船頭場1丁目
-
名古屋市東山線高畑駅
-
-
-

-
- 新築一戸建て
- 3,690万円
-
名古屋市港区船頭場1丁目
-
名古屋市東山線高畑駅
-
-
-

-
- 新築一戸建て
- 3,290万円
-
名古屋市港区船頭場1丁目
-
名古屋市東山線高畑駅
-
-
-

-
- 新築一戸建て
- 3,280万円
-
碧南市宮後町1丁目
-
名鉄三河線碧南中央駅
-
-
-

-
- 新築一戸建て
- 2,790万円
-
小牧市大字二重堀
-
名鉄小牧線小牧原駅
-
-
-

-
- 新築一戸建て
- 3,690万円
-
名古屋市港区船頭場1丁目
-
名古屋市東山線高畑駅
-
- お近くの店舗を探す
-
おすすめ物件
-
-

-
- 新築一戸建て
- 4,180万円
-
知多市八幡字東大平地
-
名鉄河和線八幡新田
-
-
-

-
- 新築一戸建て
- 4,599万円
-
名古屋市南区赤坪町
-
名鉄名古屋本線本笠寺
-
-
-

-
- 新築一戸建て
- 3,280万円
-
知多郡阿久比町大字福住字六反田
-
名鉄河和線坂部
-
-
-

-
- 新築一戸建て
- 3,760万円
-
あま市甚目寺東大門
-
名鉄津島線甚目寺
-
-
-

-
- 新築一戸建て
- 2,580万円
-
愛西市諸桑町東浦
-
名鉄津島線藤浪
-
-
-

-
- 新築一戸建て
- 3,090万円
-
小牧市大字東田中
-
名鉄小牧線小牧原
-
-
-

-
- 新築一戸建て
- 2,480万円
-
津島市江東町3丁目
-
名鉄尾西線日比野
-
-
-

-
- 新築一戸建て
- 5,299万円
-
名古屋市瑞穂区萩山町2丁目
-
名古屋市名城線瑞穂運動場東
-
-
-

-
- 新築一戸建て
- 5,699万円
-
名古屋市瑞穂区萩山町2丁目
-
名古屋市名城線瑞穂運動場東
-
-
-

-
- 新築一戸建て
- 4,280万円
-
名古屋市中川区八神町4丁目
-
名古屋臨海高速鉄道荒子
-






担当エージェント:今井 芳宜
みよし市・刈谷市、その周辺の物件を多数取り扱っております。 1つ1つお客様のご不安を取り除き、安心をご提供します! 資金計画、住宅ローンのお申込、リフォームのご相談まで住まいに関する事は何でもお任せください。