三郷市後谷 新築戸建
掲載情報更新日:2026年02月03日 次回更新予定日:2026年02月17日
- 4,590万円
-
- 借入ご希望金額
万円 - 借入期間
年 - 借入金利
% - 月々のお支払い金額
円
- 借入ご希望金額
※ 月々のお支払例は目安の試算となりますので、実際の金額とは異なる場合がございます。詳しくは店舗までお問合わせください。
- 三郷市後谷
-
JR武蔵野線『新三郷』 徒歩14分 (約1100m)
JR武蔵野線『三郷』 徒歩30分 (約2400m)
三郷市後谷 新築戸建一戸建て | 物件情報
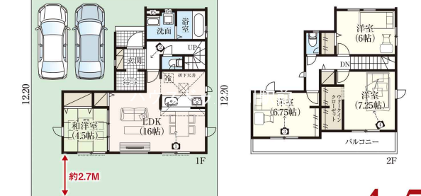
■カースペース並列2台可! ■家族の絆深まる対面キッチン♪ ■生活動線配慮した間取り♪
周辺にお買い物施設や幼稚園など子育てにはうれしい住環境です♪
ウォークインクローゼット+全居室収納付きですので収納スペース豊富です♪
物件の設備
- 公営水道
- 浄化槽
- プロパンガス
- 浄水器
- コンロ三口
- グリル
- ガスオーブン
- カウンターキッチン
- システムキッチン
- ユニットバス
- バス1坪以上
- 追焚機能
- 浴室暖房
- 浴室乾燥機
- 浴室に窓
- トイレ2箇所
- 温水洗浄便座
- 室内洗濯機置場
- 洗髪洗面化粧台
- 洗面所独立
- ダウンライト
- ディンプルキー
- 非接触型ICカードキー
- モニタ付インターホン
- 火災警報器/報知機
- LDK15畳以上
- 複層ガラス
- 全居室複層ガラス
- 全室フローリング
- シャッター雨戸
- 24時間換気システム
- クローゼット2箇所
- ウォークインクローゼット
- 床下収納
- シューズボックス
- シューズインクローク
- バルコニー
- ワイドバルコニー
- 南面バルコニー
物件の特徴
- 南向
- ノンホルムアルデヒド
- 前道6m以上
- 2階建
- 整形地
- 外壁サイディング
- BELS/省エネ基準適合
- フラット35Sに対応
物件詳細情報
| 価格 | 4,590万円 | 間取り | 4LDK |
|---|---|---|---|
| 物件種別 | 新築一戸建て | ||
| 所在地 | 埼玉県三郷市後谷 | ||
| アクセス |
|
||
| 建物面積 | 101.02㎡ | 駐車場 | あり 普通:2台 |
| 築年月 | 2026年(令和8年)02月予定 | 建築確認 | 第HPA-25-10081-1号 |
| 建物構造 | 木造 2階建 | 工法 | |
| 主要採光 | 南向 | バルコニー | 南向9.40㎡ |
| 保証・評価 | |||
| 土地面積 | 公139.28㎡(42.13坪) | 接道 | 北側(私道)幅 約6.0m 間口 約11.41m |
| 私道 | 別:公34.82㎡ | セットバック | |
| 地目 | 宅地 | 地勢 | 平坦 |
| 権利 | 所有権 |
||
| 都市計画 | 調整区域 |
用途地域 | 指定無 |
| 建ぺい/容積率 | 60% / 200% | 土地国土法 | |
| 許可番号 | 建築基準法 | ||
| 法令制限 | |||
| 小学区 | 桜小学校 徒歩23分 (約1800m) | 中学区 | 早稲田中学校 徒歩10分 (約750m) |
| 現況 | 建築中 | 引渡 | 期日指定:2026年02月上旬 |
| その他費用 | |||
| 周辺環境 | 三郷市立早稲田中学校 徒歩10分 (約730m) ウエルシア三郷早稲田店 徒歩17分 (約1290m) 三郷市立早稲田図書館 徒歩18分 (約1410m) 三郷丹後郵便局 徒歩19分 (約1460m) マツモトキヨシ 早稲田団地店 徒歩19分 (約1490m) コープみらい コープ早稲田店 徒歩20分 (約1560m) 三郷市立桜小学校 徒歩23分 (約1800m) IKEA 新三郷 徒歩23分 (約1810m) 新三郷駅 徒歩25分 (約1960m) ららぽーと新三郷 徒歩26分 (約2030m) |
||
| 備考 | 電波障害等によるケーブルTV、共聴アンテナ申込はお客様の負担となります。 電力供給の為、敷地内に電柱及び支線が入る場合があります。 TVアンテナ、網戸、照明器具、カーテンレール、面格子はつきません。 表題登記別途93,500円(税込) フラット35ご利用の場合における各証明書取得代金が別途必要になります。 浄化槽検査手数料が別途必要になります。 |
||
| 物件番号 | 4445380 | 取引態様 | 媒介 |
取扱店舗情報
ハウスドゥ 吉川駅前 不二光エステート株式会社 店舗詳細ページへ
| 電話番号 | 048-940-2747 |
|---|---|
| 所在地 | 〒342-0045 埼玉県吉川市木売1丁目9番地4-101 |
| 営業時間 | 10:00~18:30 |
| 定休日 | 水曜日、GW、夏季、年末年始 |
| 宅建免許番号 | 埼玉県知事(1)第25510号 |
| アクセス | 店舗への地図はこちら |

来店ご予約
埼玉県三郷市で価格が似ている物件はこちら
- 埼玉県
マイページ物件数 - 3,161件
最近見た物件
埼玉県新築一戸建て新着物件
-
-

-
- 新築一戸建て
- 5,580万円
-
蕨市北町5丁目
-
JR埼京線北戸田駅
-
-
-

-
- 新築一戸建て
- 5,780万円
-
蕨市北町5丁目
-
JR埼京線北戸田駅
-
-
-

-
- 新築一戸建て
- 5,880万円
-
蕨市北町5丁目
-
JR埼京線北戸田駅
-
-
-

-
- 新築一戸建て
- 3,180万円
-
さいたま市岩槻区大字新方須賀
-
東武野田線岩槻駅
-
-
-

-
- 新築一戸建て
- 3,180万円
-
さいたま市岩槻区大字新方須賀
-
東武野田線岩槻駅
-
-
-

-
- 新築一戸建て
- 3,280万円
-
さいたま市岩槻区大字徳力
-
東武野田線豊春駅
-
-
-

-
- 新築一戸建て
- 3,099万円
-
さいたま市岩槻区本丸1丁目
-
東武野田線岩槻駅
-
- お近くの店舗を探す
-
おすすめ物件
-
-

-
- 新築一戸建て
- 2,990万円
-
越谷市大成町7丁目
-
JR武蔵野線越谷レイクタウン
-
-
-

-
- 新築一戸建て
- 5,230万円
-
戸田市喜沢1丁目
-
JR京浜東北・根岸線西川口
-
-
-

-
- 新築一戸建て
- 5,490万円
-
戸田市喜沢2丁目
-
JR京浜東北・根岸線西川口
-
-
-

-
- 新築一戸建て
- 3,780万円
-
越谷市東越谷6丁目
-
東武伊勢崎・大師線越谷
-
-
-

-
- 新築一戸建て
- 3,290万円
-
吉川市大字保
-
JR武蔵野線吉川
-
-
-

-
- 新築一戸建て
- 3,680万円
-
越谷市大字大林
-
東武伊勢崎・大師線北越谷
-
-
-

-
- 新築一戸建て
- 2,180万円
-
北葛飾郡松伏町田中3丁目
-
東武伊勢崎・大師線北越谷
-
-
-

-
- 新築一戸建て
- 3,100万円
-
東松山市新宿町
-
東武東上線東松山
-
-
-

-
- 新築一戸建て
- 3,680万円
-
越谷市東越谷6丁目
-
東武伊勢崎・大師線越谷
-
-
-

-
- 新築一戸建て
- 2,380万円
-
北葛飾郡松伏町大字松伏
-
東武伊勢崎・大師線北越谷
-













担当エージェント:島田 諭
【今だけ!新築戸建×仲介手数料“無料”キャンペーン中!!】
新築戸建をご検討中の方へ。当社では、仲介手数料“無料”でご案内しております。初期費用を抑えながら、理想のマイホームを実現。丁寧なサポートで、安心の住まい探しをお手伝いします。仲介手数料“無料”でご案内できる物件を多数取り揃えております。