高槻市山手町1丁目の新築戸建
掲載情報更新日:2026年02月07日 次回更新予定日:2026年02月21日
- 4,790万円
-
- 借入ご希望金額
万円 - 借入期間
年 - 借入金利
% - 月々のお支払い金額
円
- 借入ご希望金額
※ 月々のお支払例は目安の試算となりますので、実際の金額とは異なる場合がございます。詳しくは店舗までお問合わせください。
- 高槻市山手町1丁目
-
阪急電鉄京都線『高槻市』 徒歩24分 (約1920m)
高槻市山手町1丁目一戸建て | 物件情報
物件の設備
- 電気
- 上水道
- 下水道
- 都市ガス
- 給湯
- 食品庫
- カウンターキッチン
- システムキッチン
- バス
- 浴室に窓
- トイレ2箇所
- 室内洗濯機置場
- 洗髪洗面化粧台
- 洗面所独立
- LDK18畳以上
- フローリング
- クローゼット
- ウォークインクローゼット
物件の特徴
- 2階建
- 即入居可
物件詳細情報
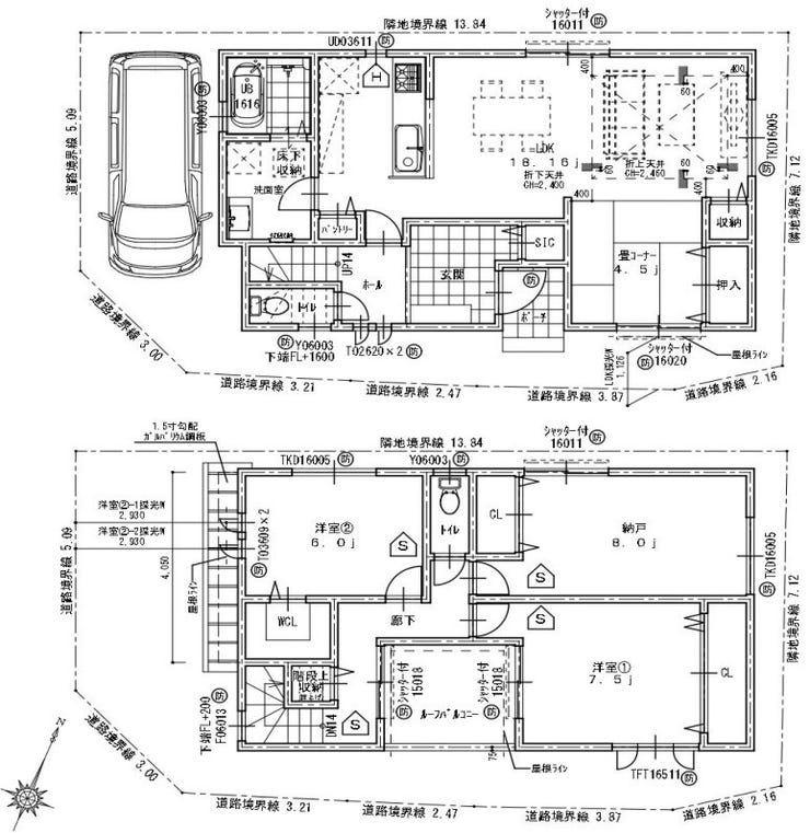
| 価格 | 4,790万円 | 間取り | 4LDK |
|---|---|---|---|
| 物件種別 | 新築一戸建て | ||
| 所在地 | 大阪府高槻市山手町1丁目5-13 6号地 | ||
| アクセス |
|
||
| 建物面積 | 109.75㎡ | 駐車場 | あり 普通:1台 |
| 築年月 | 2025年(令和7年)07月築 | 建築確認 | |
| 建物構造 | 木造 2階建 | 工法 | |
| 主要採光 | バルコニー | ||
| 保証・評価 | |||
| 土地面積 | 公100.33㎡(30.34坪) | 接道 | |
| 私道 | セットバック | ||
| 地目 | 宅地 | 地勢 | |
| 権利 | 所有権 |
||
| 都市計画 | 市街化区域 |
用途地域 | 1種中高 |
| 建ぺい/容積率 | 60% / 200% | 土地国土法 | |
| 許可番号 | 建築基準法 | ||
| 法令制限 | |||
| 小学区 | 中学区 | ||
| 現況 | 完工済 | 引渡 | 即 |
| その他費用 | |||
| 備考 | |||
| 物件番号 | 4448037 | 取引態様 | 媒介 |
取扱店舗情報
ハウスドゥ 高槻富田 株式会社コンフォート住宅販売 店舗詳細ページへ
| 電話番号 | 072-668-2246 |
|---|---|
| 所在地 | 〒569-0814 大阪府高槻市富田町3丁目15-15 |
| 営業時間 | 10:00~19:00 |
| 定休日 | 水曜日、年末年始 |
| 宅建免許番号 | 大阪府知事(2)第61490号 |
| アクセス | 店舗への地図はこちら |

来店ご予約
大阪府高槻市で価格が似ている物件はこちら
- 大阪府
マイページ物件数 - 17,037件
最近見た物件
-
-

-
- 土地
- 1,000万円
-
豊川市下長山町堺
-
JR飯田線牛久保
-
-
-

-
- 中古一戸建て
- 1,290万円
-
松山市越智3丁目
-
伊予鉄道横河原線福音寺
-
-
-

-
- 新築一戸建て
- 3,780万円
-
額田郡幸田町大字菱池字菅田
-
JR東海道本線幸田
-
大阪府新築一戸建て新着物件
-
-

-
- 新築一戸建て
- 2,898万円
-
東大阪市東石切町5丁目
-
近鉄難波・奈良線石切駅
-
-
-

-
- 新築一戸建て
- 2,998万円
-
東大阪市東石切町5丁目
-
近鉄難波・奈良線石切駅
-
-
-

-
- 新築一戸建て
- 4,680万円
-
東大阪市東石切町5丁目
-
近鉄難波・奈良線石切駅
-
-
-

-
- 新築一戸建て
- 4,680万円
-
東大阪市東石切町5丁目
-
近鉄難波・奈良線石切駅
-
-
-

-
- 新築一戸建て
- 4,480万円
-
大阪市東住吉区北田辺4丁目
-
大阪市谷町線文の里駅
-
-
-

-
- 新築一戸建て
- 3,480万円
-
大阪市東住吉区公園南矢田4丁目
-
大阪市御堂筋線あびこ駅
-
-
-

-
- 新築一戸建て
- 4,980万円
-
豊中市千成町1丁目
-
阪急電鉄神戸線神崎川駅
-
- お近くの店舗を探す
-
おすすめ物件
-
-

-
- 新築一戸建て
- 3,850万円
-
泉大津市昭和町
-
南海電鉄本線泉大津
-
-
-

-
- 新築一戸建て
- 3,680万円
-
東大阪市水走2丁目
-
近鉄けいはんな線吉田
-
-
-

-
- 新築一戸建て
- 3,380万円
-
茨木市橋の内1丁目
-
阪急電鉄京都線総持寺
-
-
-

-
- 新築一戸建て
- 4,680万円
-
茨木市島2丁目
-
阪急電鉄京都線南茨木
-
-
-

-
- 新築一戸建て
- 3,780万円
-
堺市西区鳳西町2丁
-
JR阪和線鳳
-
-
-

-
- 新築一戸建て
- 3,380万円
-
東大阪市花園東町2丁目
-
近鉄難波・奈良線東花園
-
-
-

-
- 新築一戸建て
- 3,080万円
-
泉大津市下条町
-
南海電鉄本線泉大津
-
-
-

-
- 新築一戸建て
- 3,180万円
-
東大阪市花園東町2丁目
-
近鉄難波・奈良線東花園
-
-
-

-
- 新築一戸建て
- 4,580万円
-
茨木市島2丁目
-
阪急電鉄京都線南茨木
-
-
-

-
- 新築一戸建て
- 5,180万円
-
高槻市北昭和台町
-
阪急電鉄京都線総持寺
-


