福岡市西区今津の新築戸建
NEW 10.14掲載情報更新日:2025年10月24日 次回更新予定日:2025年11月07日
- 4,298万円
-
- 借入ご希望金額
万円 - 借入期間
年 - 借入金利
% - 月々のお支払い金額
円
- 借入ご希望金額
※ 月々のお支払例は目安の試算となりますので、実際の金額とは異なる場合がございます。詳しくは店舗までお問合わせください。
- 福岡市西区今津
-
JR筑肥線『九大学研都市』 徒歩60分 (約4800m)
福岡市西区今津一戸建て | 物件情報
物件の設備
- 公営水道
- 下水道
- プロパンガス
- 個別プロパン
- 給湯
- コンロ三口
- カウンターキッチン
- 追焚機能
- 浴室暖房
- 浴室乾燥機
- 温水洗浄便座
- 洗髪洗面化粧台
- 省エネ給湯器
- ダブルロックキー
- 非接触型ICカードキー
- モニタ付インターホン
- 火災警報器/報知機
- LDK18畳以上
- シャッター雨戸
- クローゼット
- ウォークインクローゼット
物件の特徴
- 南側道路面す
物件詳細情報
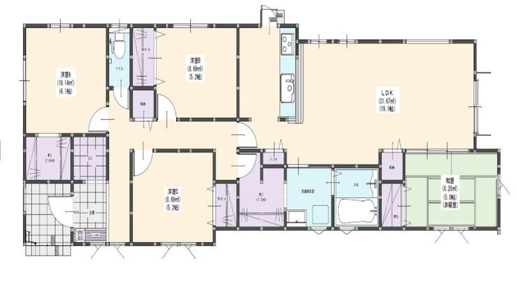
| 価格 | 4,298万円 | 間取り | 4LDK |
|---|---|---|---|
| 物件種別 | 新築一戸建て | ||
| 所在地 | 福岡県福岡市西区今津 | ||
| アクセス |
|
||
| 建物面積 | 101.23㎡ | 駐車場 | あり 普通:4台 |
| 築年月 | 2026年(令和8年)01月予定 | 建築確認 | 第KJH25-01712-1号 |
| 建物構造 | 木造 1階建 | 工法 | |
| 主要採光 | バルコニー | ||
| 保証・評価 | |||
| 土地面積 | 319.75㎡(96.72坪) | 接道 | 西側(公道)幅 約5.5m 南側(公道)幅 約5.3m |
| 私道 | セットバック | ||
| 地目 | 宅地 | 地勢 | |
| 権利 | 所有権 |
||
| 都市計画 | 調整区域 |
用途地域 | 指定無 |
| 建ぺい/容積率 | 40% / 60% | 土地国土法 | |
| 許可番号 | 建築基準法 | ||
| 法令制限 | |||
| 小学区 | 今津小学校 徒歩15分 (約1200m) | 中学区 | 玄洋中学校 徒歩57分 (約4500m) |
| 現況 | 建築中 | 引渡 | 期日指定:2026年02月 |
| その他費用 | |||
| 備考 | |||
| 物件番号 | 4448477 | 取引態様 | 媒介 |
取扱店舗情報
ハウスドゥ 筑前前原駅前 株式会社エフォール 店舗詳細ページへ
| 電話番号 | 092-332-8839 |
|---|---|
| 所在地 | 〒819-1116 福岡県糸島市前原中央1丁目1-17 筑前前原駅ビル1F |
| 営業時間 | 9:30~18:30 |
| 定休日 | 火曜日・水曜日 |
| 宅建免許番号 | 福岡県知事(4)第16400号 |
| アクセス | 店舗への地図はこちら |

来店ご予約
福岡県福岡市西区で価格が似ている物件はこちら
- 福岡県
マイページ物件数 - 8,869件
最近見た物件
-
-

-
- 中古一戸建て
- 4,450万円
-
福岡市早良区小田部4丁目
-
福岡市七隈線橋本
-
-
-

-
- 中古マンション
- 2,380万円
-
大阪市平野区加美南4丁目
-
JR関西本線加美
-
-
-

-
- 新築一戸建て
- 3,080万円
-
福山市手城町2丁目
-
JR山陽本線東福山
-
福岡県新築一戸建て新着物件
-
-

-
- 新築一戸建て
- 3,780万円
-
福岡市東区高美台1丁目
-
JR香椎線和白駅
-
-
-

-
- 新築一戸建て
- 3,880万円
-
福岡市東区高美台1丁目
-
JR香椎線和白駅
-
-
-

-
- 新築一戸建て
- 3,698万円
-
宗像市自由ヶ丘9丁目
-
JR鹿児島本線赤間駅
-
-
-

-
- 新築一戸建て
- 4,098万円
-
春日市白水ヶ丘2丁目
-
JR博多南線博多南駅
-
-
-

-
- 新築一戸建て
- 3,199万円
-
北九州市八幡西区屋敷1丁目
-
JR鹿児島本線黒崎駅
-
-
-

-
- 新築一戸建て
- 4,098万円
-
春日市白水ヶ丘2丁目
-
JR博多南線博多南駅
-
-
-

-
- 新築一戸建て
- 3,780万円
-
福岡市東区高美台1丁目
-
JR香椎線和白駅
-
- お近くの店舗を探す
-
おすすめ物件
-
-

-
- 新築一戸建て
- 3,488万円
-
糟屋郡篠栗町田中1丁目
-
JR篠栗線篠栗
-
-
-

-
- 新築一戸建て
- 2,798万円
-
北九州市小倉北区寿山町
-
西鉄バス 広寿山
-
-
-

-
- 新築一戸建て
- 3,788万円
-
春日市白水池2丁目
-
JR鹿児島本線春日
-
-
-

-
- 新築一戸建て
- 4,980万円
-
福岡市東区美和台6丁目
-
西鉄貝塚線三苫
-
-
-

-
- 新築一戸建て
- 3,598万円
-
北九州市小倉南区北方3丁目
-
北九州高速鉄道北方
-
-
-

-
- 新築一戸建て
- 4,698万円
-
福岡市早良区原4丁目
-
福岡市空港線室見
-
-
-

-
- 新築一戸建て
- 4,080万円
-
宗像市田久3丁目
-
JR鹿児島本線赤間
-
-
-

-
- 新築一戸建て
- 2,698万円
-
宗像市ひかりヶ丘4丁目
-
JR鹿児島本線東郷
-
-
-

-
- 新築一戸建て
- 3,498万円
-
宗像市赤間1丁目
-
JR鹿児島本線教育大前
-
-
-

-
- 新築一戸建て
- 2,698万円
-
宗像市ひかりヶ丘4丁目
-
JR鹿児島本線東郷
-


