越谷市瓦曽根2丁目の新築戸建
NEW 10.17掲載情報更新日:2025年10月23日 次回更新予定日:2025年11月06日
- 6,399万円
-
- 借入ご希望金額
万円 - 借入期間
年 - 借入金利
% - 月々のお支払い金額
円
- 借入ご希望金額
※ 月々のお支払例は目安の試算となりますので、実際の金額とは異なる場合がございます。詳しくは店舗までお問合わせください。
- 越谷市瓦曽根2丁目
-
東武伊勢崎・大師線『越谷』 徒歩8分 (約640m)
越谷市瓦曽根2丁目一戸建て | 物件情報
越谷駅徒歩8分!カースペース2台分!角地!生活必需施設は徒歩圏内!
◆東武スカイツリーライン急行停車駅『越谷』駅徒歩8分!「北千住」「押上」「錦糸町」「大手町」「渋谷」など乗換えなし!通勤通学に便利♪
◆スーパー「カスミ」や100均、飲食店・クリニック等入った便利な越谷ツインシティが徒歩8分♪
◆快適な暮らしを守るTVモニター付インターフォン!
◆家族の絆が深まる対面キッチン♪食洗機付きでお片付けも楽々♪
◆家族間のコミュニケーションが深まるリビングイン階段♪
◆洗濯物もお布団もたっぷり干せるワイドバルコニー!
◆浴室乾燥付きで雨の日でも気にせずお洗濯!
◆安全に配慮した階段手摺を標準装備!
◆収納タップリ!スッキリとしたお住まいに♪
物件の設備
- 電気
- 公営水道
- 公共下水
- 都市ガス
- 給湯
- 浄水器
- 食器洗浄乾燥機
- コンロ三口
- グリル
- カウンターキッチン
- システムキッチン
- ユニットバス
- 浴室暖房
- 浴室乾燥機
- トイレ2箇所
- 温水洗浄便座
- 室内洗濯機置場
- 洗面所独立
- 床暖房
- 可動間仕切
- リビング階段
- 省エネ給湯器
- モニタ付インターホン
- LDK20畳以上
- 3面採光
- 24時間換気システム
- クローゼット3箇所
- 納戸
- 床下収納
- 全居室収納
- シューズボックス
- ワイドバルコニー
物件の特徴
- 駅まで平坦
- 前道6m以上
- スーパーが近い
- 陽当り良好
- 2階建
- 角地
- 平坦地
- 整形地
- BELS/省エネ基準適合
- フラット35Sに対応
物件詳細情報
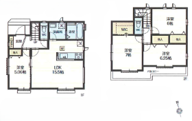
| 価格 | 6,399万円 | 間取り | 3LDK+S |
|---|---|---|---|
| 物件種別 | 新築一戸建て | ||
| 所在地 | 埼玉県越谷市瓦曽根2丁目 1号棟 | ||
| アクセス |
|
||
| 建物面積 | 公108.47㎡ | 駐車場 | あり 普通:2台 |
| 築年月 | 2026年(令和8年)01月予定 | 建築確認 | 第25UDI1W建06495号 |
| 建物構造 | 木造 2階建 | 工法 | |
| 主要採光 | 南西向 | バルコニー | |
| 保証・評価 | |||
| 土地面積 | 公124.49㎡(37.65坪) | 接道 | 南西側(公道)幅 約4.0m 北西側(公道)幅 約6.0m |
| 私道 | セットバック | ||
| 地目 | 宅地 | 地勢 | |
| 権利 | 所有権 |
||
| 都市計画 | 市街化区域 |
用途地域 | 1種住居 |
| 建ぺい/容積率 | 70% / 200% | 土地国土法 | |
| 許可番号 | 建築基準法 | ||
| 法令制限 | |||
| 小学区 | 西方小学校 徒歩12分 (約900m) | 中学区 | 大相模中学校 徒歩27分 (約2100m) |
| 現況 | 建築中 | 引渡 | 未記入 |
| その他費用 | |||
| 周辺環境 | マミー保育室 徒歩4分 (約300m) 萩原第一幼稚園 徒歩8分 (約580m) イングリッシュガーデン保育園 徒歩8分 (約630m) 越谷駅西口公園 徒歩6分 (約430m) Big-A 赤山本町店 徒歩8分 (約580m) ヨークマート 越谷赤山店 徒歩8分 (約640m) ミニストップ 越谷駅西口店 徒歩8分 (約580m) ローソン 越谷赤山町一丁目店 徒歩9分 (約680m) 新越谷病院 徒歩6分 (約450m) 越谷眼科クリニック 徒歩9分 (約710m) |
||
| 備考 | |||
| 物件番号 | 4451736 | 取引態様 | 媒介 |
取扱店舗情報
ハウスドゥ 蒲生駅前 株式会社アイホームコンサルティング 店舗詳細ページへ
| 電話番号 | 048-919-2980 |
|---|---|
| 所在地 | 〒343-0843 埼玉県越谷市蒲生茜町19-1 井上ビル1F |
| 営業時間 | 9:00~18:00 |
| 定休日 | 火曜日、水曜日、年末年始 |
| 宅建免許番号 | 埼玉県知事(3)第22227号 |
| アクセス | 店舗への地図はこちら |

来店ご予約
埼玉県越谷市で価格が似ている物件はこちら
- 埼玉県
マイページ物件数 - 3,698件
最近見た物件
埼玉県新築一戸建て新着物件
- お近くの店舗を探す
-
おすすめ物件
-
-

-
- 新築一戸建て
- 4,380万円
-
川口市鳩ヶ谷本町4丁目
-
埼玉高速鉄道鳩ヶ谷
-
-
-

-
- 新築一戸建て
- 3,599万円
-
桶川市大字上日出谷
-
JR高崎線桶川
-
-
-

-
- 新築一戸建て
- 5,999万円
-
戸田市喜沢2丁目
-
JR京浜東北・根岸線西川口
-
-
-

-
- 新築一戸建て
- 5,680万円
-
戸田市喜沢1丁目
-
JR京浜東北・根岸線西川口
-
-
-

-
- 新築一戸建て
- 4,480万円
-
蕨市錦町2丁目
-
JR埼京線戸田
-
-
-

-
- 新築一戸建て
- 3,990万円
-
三郷市幸房
-
JR武蔵野線三郷
-
-
-

-
- 新築一戸建て
- 2,680万円
-
越谷市蒲生4丁目
-
東武伊勢崎・大師線蒲生
-
-
-

-
- 新築一戸建て
- 4,280万円
-
吉川市大字保
-
JR武蔵野線吉川
-
-
-

-
- 新築一戸建て
- 6,780万円
-
志木市幸町3丁目
-
東武東上線志木
-
-
-

-
- 新築一戸建て
- 3,280万円
-
三郷市彦成2丁目
-
JR武蔵野線新三郷
-












担当エージェント:井上 嵩久
弊社は一人一人のお客様の幸せを第一に、少しでもお力になれるよう住宅に関するご質問、住宅以外の資金面、諸費用に関するお悩みなど、ご一緒に考えていきたいと思っております。お気軽にご相談ください!