Loading
  1. TOP>
  2. 一戸建て>
  3. 北海道・東北>
  4. 福島県>
  5. 郡山市>
  6. 大槻町普門寺坦>
  7. 郡山市大槻町字普門寺坦の新築戸建

郡山市大槻町字普門寺坦の新築戸建

NEW 10.17

掲載情報更新日:2025年10月15日 次回更新予定日:2025年10月29日

  • 3,080万円
    • 借入ご希望金額
      万円
    • 借入期間
    • 借入金利
    • 月々のお支払い金額

※ 月々のお支払例は目安の試算となりますので、実際の金額とは異なる場合がございます。詳しくは店舗までお問合わせください。

  • 郡山市大槻町字普門寺坦
  • JR東北本線『郡山』 バス乗車21分 大槻旭町 停 徒歩9分 (約720m)
取扱会社:ハウスドゥ 郡山菜根  株式会社Good Agency
  • この物件に資料請求・問い合わせをする
  • ■お電話はこちら 024-954-3122

郡山市大槻町字普門寺坦一戸建て | 物件情報

\限定1棟!敷地なんと約70坪!/ 駐車スペース広々4~5台!設備も充実しています♪

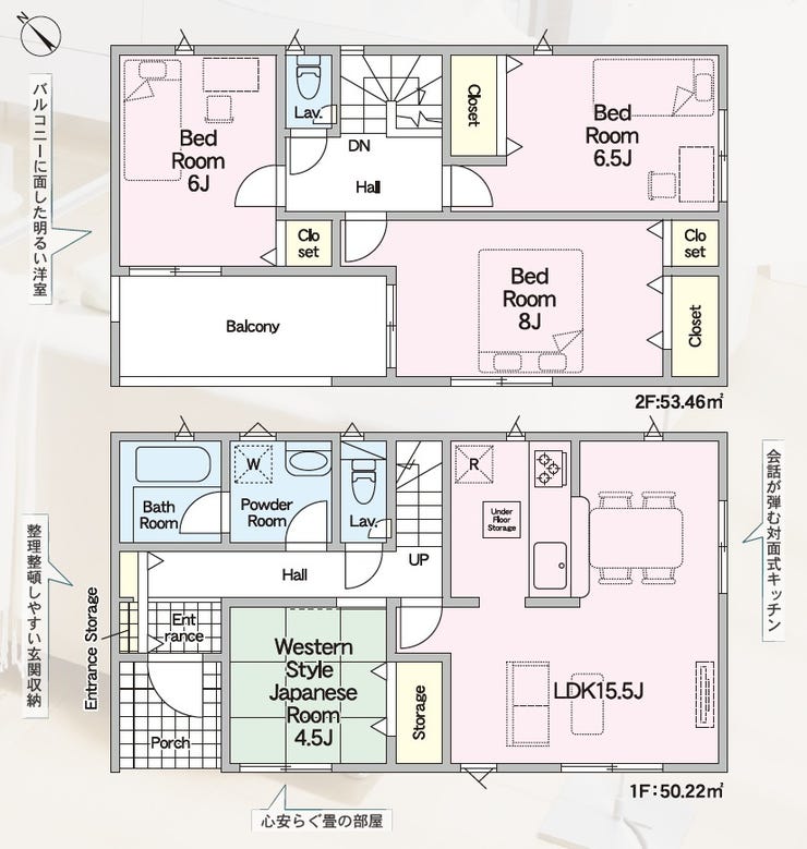
【間取り】

【間取り】

【同型写真(リビング)】
同ビルダー参考写真

【同型写真(リビング)】
同ビルダー参考写真

取扱会社
ハウスドゥ 郡山菜根  
  • この物件に資料請求・問い合わせをする
  • ■お電話はこちら 024-954-3122

アピールポイント

◆建売住宅の敷地約70坪は魅力的♪

□家事スペースとしても大活躍間違いなしの単独和室。
 お子様のお昼寝や書斎スペースとしてもオススメ♪
□全居室に収納クローゼットを完備!居室空間をより広く隅々までお使いいただけます 
□浴室暖房乾燥完備で毎日のお洗濯もバッチリ!
□急な雨でも安心のインナーバルコニー
□ファミリーマート郡山大槻西ノ宮店へ徒歩6分!
  ブイチェーン大槻店へ徒歩10分!
□新さくら通り、コスモス通りへアクセス◎!通勤・通学も楽々♪
□地震の揺れを吸収する家 『 QUIE 』 
□お得感満載!駐車場4~5台可能!

「お家探し」は全国700店舗展開中の
地域密着型不動産ハウスドゥ郡山菜根店におまかせ下さい!

物件の設備

  • 電気
  • 公営水道
  • 公共下水
  • プロパンガス
  • 個別プロパン
  • コンロ三口
  • カウンターキッチン
  • システムキッチン
  • ユニットバス
  • バス1坪以上
  • 浴室乾燥機
  • 浴室に窓
  • トイレ2箇所
  • 温水洗浄便座
  • 室内洗濯機置場
  • 洗髪洗面化粧台
  • 人感照明センサー
  • EV車充電設備
  • モニタ付インターホン
  • 防犯カメラ
  • LDK15畳以上
  • 和室
  • 2面採光
  • 複層ガラス
  • 全居室複層ガラス
  • クローゼット
  • 床下収納
  • 全居室収納
  • インナーバルコニー

物件の特徴

  • 南向
  • 地盤調査済
  • 2沿線利用可
  • 陽当り良好
  • 2階建
  • 整形地
  • 外壁サイディング
  • フラット35Sに対応

物件詳細情報

価格 3,080万円 間取り 4LDK
物件種別 新築一戸建て
所在地 福島県郡山市大槻町字普門寺坦
アクセス
  • JR東北本線『郡山』 バス乗車21分 大槻旭町 停 徒歩9分 (約720m)
建物面積 103.68㎡ 駐車場 あり 普通:4台
築年月 2025年(令和7年)10月予定 建築確認 第R07SHC111394号
建物構造 木造 サイデイング貼 2階建 工法
主要採光 南向 バルコニー
保証・評価
土地面積 232.6㎡(70.36坪) 接道 南西側(公道)幅 約4.0m 間口 約13.53m
私道 セットバック
地目 宅地 地勢
権利 所有権
都市計画 市街化区域
用途地域 1種中高
建ぺい/容積率 60% / 200% 土地国土法
許可番号 建築基準法
法令制限 宅地造成工事規制区域・法22条区域
小学区 大成小学校 徒歩17分 (約1307m) 中学区 大槻中学校 徒歩5分 (約359m)
現況 建築中 引渡 期日指定:2025年10月以降
その他費用
備考
物件番号 4452068 取引態様 媒介

取扱店舗情報

ハウスドゥ 郡山菜根  株式会社Good Agency 店舗詳細ページへ

電話番号 024-954-3122
所在地 〒963-8862
福島県郡山市菜根1丁目11-7
営業時間 10:00~18:00
定休日 火曜日、水曜日
宅建免許番号 福島県知事(2)第3409号
アクセス 店舗への地図はこちら

ハウスドゥ  郡山菜根の外観

この物件に関する資料請求・お問合せ

024-954-3122

お問い合わせの際に「ホームページを見た」といっていただくとお話がスムーズになります。

来店ご予約

ウィンドウを閉じる

ハウスドゥ 郡山菜根  株式会社Good Agencyへの地図

  • ハウスドゥ  郡山菜根の地図
  • ハウスドゥ  郡山菜根の外観

GoogleMapで地図を見る

ウィンドウを閉じる

福島県郡山市で価格が似ている物件はこちら

戻る

次へ

  • 新築一戸建て 2024.12.05
    • 概観画像
    • 2,980万円
    • 郡山市深沢2丁目

    • JR東北本線「郡山駅」バス乗車8分 バス停「第三中学校」まで徒歩1分

    • 4LDK

    詳細を見る

  • 新築一戸建て 2025.07.24
    • 概観画像
    • 3,099万円
    • 郡山市静町

    • JR東北本線「郡山駅」バス乗車19分 バス停「大成小学校入口」まで徒歩2分

    • 3LDK

    詳細を見る

  • 新築一戸建て 2025.09.01

    詳細を見る

  • 新築一戸建て 2025.09.06
    • 概観画像
    • 2,980万円
    • 郡山市開成5丁目

    • JR東北本線「郡山駅」バス乗車18分 バス停「安積高校」まで徒歩5分

    • 4LDK

    詳細を見る

  • 新築一戸建て 2025.09.18

    詳細を見る

  • 新築一戸建て 2025.09.20
    • 概観画像
    • 2,980万円
    • 郡山市字賀庄

    • JR東北本線「郡山駅」バス乗車11分 バス停「川向」まで徒歩6分

    • 4LDK

    詳細を見る

  • 新築一戸建て 2025.09.20

    詳細を見る

  • 新築一戸建て 2025.09.20

    詳細を見る

  • 新築一戸建て 2025.10.10 new
    • 概観画像
    • 3,180万円
    • 郡山市字城清水

    • JR東北本線「郡山駅」バス乗車11分 バス停「城清水」まで徒歩4分

    • 4LDK+S

    詳細を見る

  • 新築一戸建て 2025.10.20 new

    詳細を見る

  • 新築一戸建て 2025.10.20 new

    詳細を見る

福島県郡山市の 新築一戸建て 一覧から探す

福島県郡山市で種別を変更して探す

福島県
マイページ物件数
391

マイページサービス

新規登録(無料)
  • 物件探しがもっと便利に
  • 希望情報をいち早くお届け
  • マイページ物件が閲覧可能

最近見た物件

福島県新築一戸建て新着物件

お近くの店舗を探す
無料アプリ