札幌市西区山の手六条5丁目の新築戸建
掲載情報更新日:2026年04月10日 次回更新予定日:2026年04月24日
- 4,880万円
-
- 借入ご希望金額
万円 - 借入期間
年 - 借入金利
% - 月々のお支払い金額
円
- 借入ご希望金額
※ 月々のお支払例は目安の試算となりますので、実際の金額とは異なる場合がございます。詳しくは店舗までお問合わせください。
- 札幌市西区山の手六条5丁目
-
札幌市東西線『発寒南』 徒歩20分 (約1600m)
JR函館本線『琴似』 徒歩29分 (約2320m)
札幌市東西線『琴似』 徒歩23分 (約1840m)
札幌市西区山の手六条5丁目一戸建て | 物件情報
発寒河畔公園徒歩1分の環境。小学校にも近く子育て世帯におすすめです。
■山の手の住宅街で静かな環境ですが、近くに学校、病院、コンビニもある利便性の良い環境です。
■地下鉄発寒南駅まで徒歩17分、琴似駅にも22分で、札幌駅まではバスで乗り換えなく行けます。
■近くにある発寒河畔公園は四季折々の景色を見せてくれる素敵な散歩コースです。
物件の設備
- 電気
- 上水道
- 公営水道
- 下水道
- 公共下水
- 都市ガス
- 給湯
- 食器乾燥機
- コンロ三口
- グリル
- システムキッチン
- オープンキッチン
- バス
- ユニットバス
- バス1坪以上
- 浴室に窓
- トイレ2箇所
- 温水洗浄便座
- 室内洗濯機置場
- 洗髪洗面化粧台
- ガス暖房
- セントラルヒーティング
- 照明器具
- モニタ付インターホン
- LDK20畳以上
- 吹抜
- 複層ガラス
- 全居室複層ガラス
- フローリング
- 全室フローリング
- 24時間換気システム
- クローゼット
- クローゼット3箇所
- ウォークインクローゼット
- 床下収納
- 全居室収納
- シューズボックス
- シューズインクローク
物件の特徴
- 高気密高断熱住宅
- 免震構造
- 耐震構造
- 制震構造
- 駅まで平坦
- 総合病院徒歩10分以内
- 小学校徒歩10分以内
- 前道6m以上
- テニスコートが近い
- 閑静な住宅街
- 市街地が近い
- 山が見える
- 通風良好
- 2階建
- 平坦地
- 整形地
- 開発分譲地内
- 区画整理地内
- 設計住宅性能評価付
- 建築確認完了検査済証
- 耐震基準適合証明書有
- フラット35
- S適合証明書
- 新築
- 増改築設計図書
- BELS/省エネ基準適合
- 設備保証利用可
- 設備保証付
- 即入居可
- フラット35Sに対応
物件詳細情報
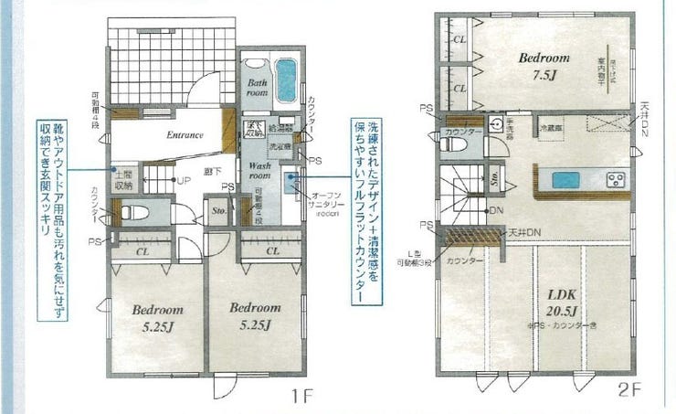
| 価格 | 4,880万円 | 間取り | 3LDK |
|---|---|---|---|
| 物件種別 | 新築一戸建て | ||
| 所在地 | 北海道札幌市西区山の手六条5丁目4-17 27 | ||
| アクセス |
|
||
| 建物面積 | 公98.53㎡ | 駐車場 | あり 普通:2台 |
| 築年月 | 2026年(令和8年)01月予定 | 建築確認 | 第R07SHC117659・第R07SHC117660 |
| 建物構造 | 木造 2階建 | 工法 | |
| 主要採光 | バルコニー | ||
| 保証・評価 | フラット35適合証明書・フラット35S適合証明書・耐震基準適合証明書・設計住宅性能評価書 |
||
| 分譲情報 | 【販売戸数】:2戸 【価格】:4,880万円 ~4,930万円 【土地面積】:130.14㎡ ~130.14㎡ |
||
| 土地面積 | 公130.14㎡(39.36坪) | 接道 | 北西側(公道)幅 約8.0m |
| 私道 | セットバック | ||
| 地目 | 宅地 | 地勢 | 平坦 |
| 権利 | 所有権 |
||
| 都市計画 | 市街化区域 |
用途地域 | 1種中高 |
| 建ぺい/容積率 | 60% / 200% | 土地国土法 | |
| 許可番号 | 建築基準法 | ||
| 法令制限 | 高度地区・景観法・宅地造成工事規制区域・宅地造成及び特定盛土等規制法・容積率最低限度有・法22条区域 | ||
| 小学区 | 山の手小学校 徒歩4分 (約270m) | 中学区 | 琴似中学校 徒歩10分 (約750m) |
| 現況 | 完工済 | 引渡 | 即 |
| その他費用 | |||
| 備考 | |||
| 物件番号 | 4452159 | 取引態様 | 媒介 |
取扱店舗情報
ハウスドゥ 札幌手稲富丘 株式会社オチアイ 店舗詳細ページへ
| 電話番号 | 011-688-3880 |
|---|---|
| 所在地 | 〒006-0013 北海道札幌市手稲区富丘3条2丁目10-45 |
| 営業時間 | 9:00~18:00 |
| 定休日 | 水曜日 |
| 宅建免許番号 | 北海道知事 石狩(3)第8169号 |
| アクセス | 店舗への地図はこちら |

来店ご予約
北海道札幌市西区で価格が似ている物件はこちら
- 北海道
マイページ物件数 - 6,381件
最近見た物件
-
-

-
- 土地
- 1,250万円
-
豊橋市往完町字往還東
-
JR東海道本線豊橋
-
-
-

-
- 中古一戸建て
- 1,780万円
-
泉佐野市南中安松
-
南海電鉄本線羽倉崎
-
-
-

-
- 中古一戸建て
- 598万円
-
北九州市若松区波打町
-
JR筑豊本線若松
-
北海道新築一戸建て新着物件
-
-

-
- 新築一戸建て
- 4,698万円
-
札幌市東区北十九条東10丁目
-
札幌市東豊線東区役所前駅
-
-
-

-
- 新築一戸建て
- 4,590万円
-
札幌市東区本町一条1丁目
-
札幌市東豊線環状通東駅
-
-
-

-
- 新築一戸建て
- 3,790万円
-
札幌市西区西野十条7丁目
-
札幌市東西線発寒南駅
-
-
-

-
- 新築一戸建て
- 2,810万円
-
河東郡音更町緑陽台南区
-
拓殖バス【音更病院前】停
-
-
-

-
- 新築一戸建て
- 2,810万円
-
河東郡音更町緑陽台南区
-
拓殖バス【音更病院前】停
-
-
-

-
- 新築一戸建て
- 4,698万円
-
札幌市東区北十九条東10丁目
-
札幌市東豊線東区役所前駅
-
-
-

-
- 新築一戸建て
- 4,380万円
-
札幌市東区伏古八条3丁目
-
札幌市東豊線元町駅
-
- お近くの店舗を探す
-
おすすめ物件
-
-

-
- 新築一戸建て
- 4,480万円
-
札幌市豊平区月寒西五条8丁目
-
札幌市東豊線月寒中央
-
-
-

-
- 新築一戸建て
- 2,642.50万円
-
帯広市西十九条南2丁目
-
JR根室本線柏林台
-
-
-

-
- 新築一戸建て
- 2,880万円
-
北見市東相内町
-
JR石北本線西北見
-
-
-

-
- 新築一戸建て
- 4,580万円
-
札幌市豊平区福住二条9丁目
-
札幌市東豊線福住
-

















