久留米市東櫛原 6号棟 DSK
掲載情報更新日:2025年12月08日 次回更新予定日:2025年12月22日
- 4,299万円
-
- 借入ご希望金額
万円 - 借入期間
年 - 借入金利
% - 月々のお支払い金額
円
- 借入ご希望金額
※ 月々のお支払例は目安の試算となりますので、実際の金額とは異なる場合がございます。詳しくは店舗までお問合わせください。
- 久留米市東櫛原町
-
西鉄天神大牟田線『櫛原』 徒歩7分 (約560m)
久留米市東櫛原 6号棟 DSK一戸建て | 物件情報
■頭金0円!ボーナス払いゼロ、 ■住宅ローンご相談ください。 ■夜10時まで当日ご案内可能!
おススメその1 パノラマ画像♪
HPにて360度パノラマ画像をご覧いただけます。
おススメその2 住宅ローンのご相談♪
購入時または購入後に掛かる費用まで、ご不明点は
しっかりサポート致しますのでご安心ください。
おススメその3 全国展開700店舗のネットワーク!
新築も中古もお客様のご希望のエリア、予算に合わせてお探し致します♪
物件の設備
- 電気
- オール電化
- 上水道
- 下水道
- 浄水器
- 食器洗浄乾燥機
- IHクッキングヒータ
- コンロ三口
- カウンターキッチン
- システムキッチン
- オープンキッチン
- バス
- オートバス
- 追焚機能
- 浴室暖房
- 浴室乾燥機
- 浴室に窓
- トイレ
- トイレ2箇所
- 温水洗浄便座
- 室内洗濯機置場
- 洗髪洗面化粧台
- モニタ付インターホン
- LDK18畳以上
- 複層ガラス
- 全居室複層ガラス
- フローリング
- 全室フローリング
- シャッター雨戸
- ハイサッシ
- 24時間換気システム
- クローゼット
- ウォークインクローゼット
- 床下収納
- 全居室収納
- シューズボックス
物件の特徴
- 2階建
物件詳細情報
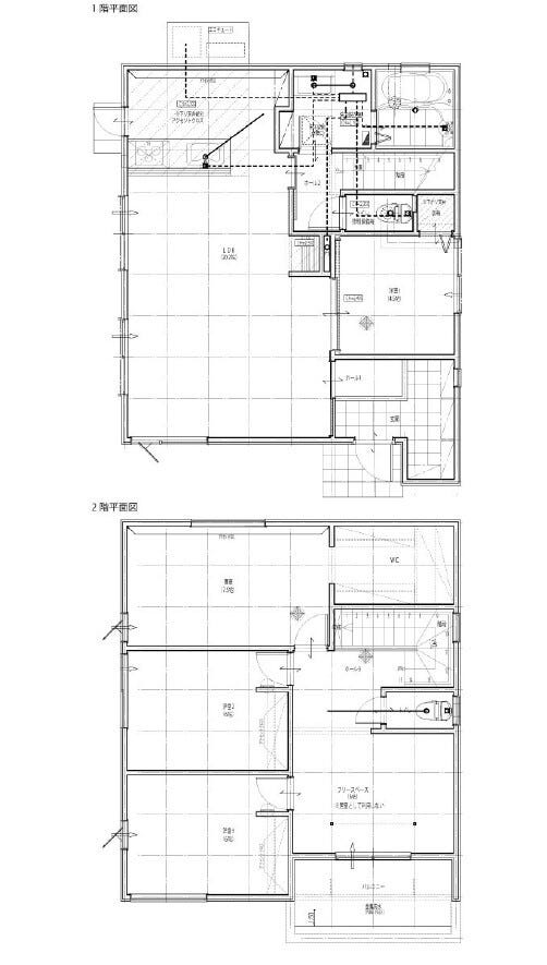
| 価格 | 4,299万円 | 間取り | 4LDK |
|---|---|---|---|
| 物件種別 | 新築一戸建て | ||
| 所在地 | 福岡県久留米市東櫛原町 | ||
| アクセス |
|
||
| 建物面積 | 120.06㎡ | 駐車場 | なし |
| 築年月 | 2026年(令和8年)03月予定 | 建築確認 | 第R07確認建築福住セ本00594号 |
| 建物構造 | 木造 2階建 | 工法 | |
| 主要採光 | バルコニー | ||
| 保証・評価 | |||
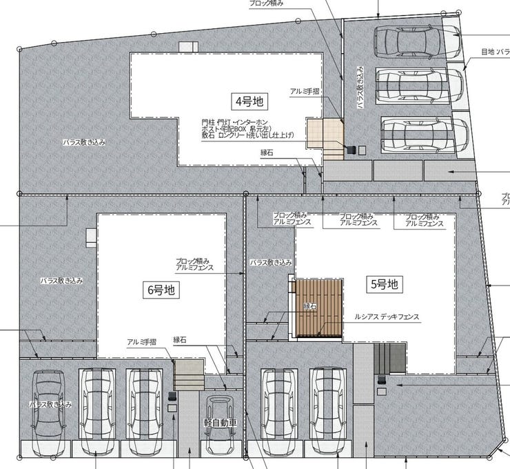
| 分譲情報 | 【販売戸数】:3戸 |
||
| 土地面積 | 120.06㎡(36.31坪) | 接道 | 北東側幅 約4.7m 間口 約11.30m |
| 私道 | セットバック | ||
| 地目 | 宅地 | 地勢 | |
| 権利 | 所有権 |
||
| 都市計画 | 市街化区域 |
用途地域 | 1種住居 |
| 建ぺい/容積率 | 60% / 190% | 土地国土法 | |
| 許可番号 | 建築基準法 | ||
| 法令制限 | |||
| 小学区 | 南薫小学校 徒歩9分 (約720m) | 中学区 | 櫛原中学校 徒歩11分 (約880m) |
| 現況 | 建築中 | 引渡 | 期日指定:2026年03月以降 |
| その他費用 | |||
| 周辺環境 | 西鉄天神大牟田線 櫛原駅 徒歩6分 (約460m) セブンイレブン 久留米中央公園前店 徒歩9分 (約650m) 久留米市立南薫小学校 徒歩9分 (約720m) 久留米市立櫛原中学校 徒歩11分 (約810m) 西鉄ストア宮の陣店 徒歩15分 (約1150m) にしてつストア 宮ノ陣店 徒歩15分 (約1140m) セブンイレブン 久留米諏訪野町店 徒歩13分 (約970m) 西鉄天神大牟田線 宮の陣駅 徒歩16分 (約1230m) 宮ノ陣郵便局 徒歩15分 (約1190m) ファミリーマート 東櫛原店 徒歩14分 (約1090m) |
||
| 備考 | |||
| 物件番号 | 4452278 | 取引態様 | 媒介 |
取扱店舗情報
| 電話番号 | 0942-50-5735 |
|---|---|
| 所在地 | 〒841-0051 佐賀県鳥栖市元町1246番地3 |
| 営業時間 | 10:00~18:00 |
| 定休日 | 水曜日 |
| 宅建免許番号 | 佐賀県知事(2)第2561号 |
| アクセス | 店舗への地図はこちら |

来店ご予約
福岡県久留米市で価格が似ている物件はこちら
- 福岡県
マイページ物件数 - 9,213件
福岡県新築一戸建て新着物件
-
-

-
- 新築一戸建て
- 3,298万円
-
遠賀郡水巻町頃末南2丁目
-
JR鹿児島本線水巻駅
-
-
-

-
- 新築一戸建て
- 3,398万円
-
北九州市八幡西区町上津役西2丁目
-
筑豊電気鉄道西山駅
-
-
-

-
- 新築一戸建て
- 2,998万円
-
遠賀郡岡垣町旭台1丁目
-
JR鹿児島本線海老津駅
-
-
-

-
- 新築一戸建て
- 3,198万円
-
北九州市門司区吉志1丁目
-
西鉄バス松ケ江中学校前停
-
-
-

-
- 新築一戸建て
- 3,198万円
-
北九州市若松区今光2丁目
-
JR筑豊本線藤ノ木駅
-
-
-

-
- 新築一戸建て
- 3,198万円
-
北九州市門司区上藤松1丁目
-
西鉄バス上藤松一丁目停
-
-
-

-
- 新築一戸建て
- 3,680万円
-
福岡市東区青葉6丁目
-
JR香椎線土井駅
-
- お近くの店舗を探す
-
おすすめ物件
-
-

-
- 新築一戸建て
- 5,600万円
-
福岡市早良区飯倉5丁目
-
福岡市七隈線金山
-
-
-

-
- 新築一戸建て
- 3,298万円
-
宗像市赤間1丁目
-
JR鹿児島本線教育大前
-
-
-

-
- 新築一戸建て
- 3,098万円
-
北九州市小倉南区津田3丁目
-
JR日豊本線下曽根
-
-
-

-
- 新築一戸建て
- 3,398万円
-
北九州市小倉南区横代北町4丁目
-
JR日田彦山線石田
-
-
-

-
- 新築一戸建て
- 3,199万円
-
福津市宮司4丁目
-
JR鹿児島本線福間
-
-
-

-
- 新築一戸建て
- 3,780万円
-
直方市大字感田
-
筑豊電気鉄道遠賀野
-
-
-

-
- 新築一戸建て
- 1,998万円
-
直方市大字感田
-
筑豊電気鉄道遠賀野
-
-
-

-
- 新築一戸建て
- 4,200万円
-
福岡市早良区野芥6丁目
-
福岡市七隈線野芥
-
-
-

-
- 新築一戸建て
- 4,798万円
-
福岡市南区皿山1丁目
-
西鉄天神大牟田線高宮
-
-
-

-
- 新築一戸建て
- 3,598万円
-
糟屋郡志免町別府2丁目
-
福岡市空港線福岡空港
-







担当エージェント:今里
土地・新築、中古戸建、全国700店舗以上の
ネットワークでお手伝い致します!
0942-50-5735鳥栖郵便局そば、お気軽にご相談ください♪