船橋市田喜野井4丁目の新築戸建
掲載情報更新日:2025年11月28日 次回更新予定日:2025年12月12日
- 3,780万円
-
- 借入ご希望金額
万円 - 借入期間
年 - 借入金利
% - 月々のお支払い金額
円
- 借入ご希望金額
※ 月々のお支払例は目安の試算となりますので、実際の金額とは異なる場合がございます。詳しくは店舗までお問合わせください。
- 船橋市田喜野井4丁目
-
京成電鉄松戸線『薬園台』 徒歩13分 (約1040m)
船橋市田喜野井4丁目一戸建て | 物件情報
★近隣モデル棟即日ご案内可能 ★資料請求のみ大歓迎 ★駅まで徒歩13分
◇エアコン1台プレゼント中◇
本物件をご成約のお客様へプレゼント!
※本プレゼントはご成約物件のみが対象です。
※ご成約時期によりモデルが変更となる場合がございます。
※取付費用別途
物件の設備
- 公営水道
- 公共下水
- 都市ガス
- コンロ三口
- システムキッチン
- バス
- バス1坪以上
- 追焚機能
- 浴室乾燥機
- 浴室に窓
- トイレ
- トイレ2箇所
- 温水洗浄便座
- 室内洗濯機置場
- 洗髪洗面化粧台
- 洗面所独立
- モニタ付インターホン
- LDK20畳以上
- フローリング
- 全室フローリング
- 24時間換気システム
- クローゼット
- クローゼット2箇所
- ウォークインクローゼット
- ウォークインクローゼット2箇所
- 床下収納
- 全居室収納
- シューズボックス
物件の特徴
- 2階建
物件詳細情報
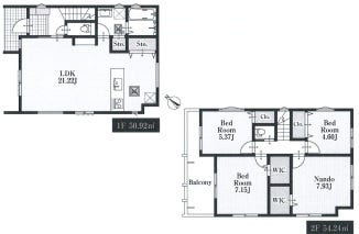
| 価格 | 3,780万円 | 間取り | 4LDK |
|---|---|---|---|
| 物件種別 | 新築一戸建て | ||
| 所在地 | 千葉県船橋市田喜野井4丁目27-4 | ||
| アクセス |
|
||
| 建物面積 | 105.16㎡ | 駐車場 | あり 普通:1台 軽:1台 |
| 築年月 | 2026年(令和8年)02月予定 | 建築確認 | 第KS125-3120-51604号 |
| 建物構造 | 木造 2階建 | 工法 | |
| 主要採光 | バルコニー | ||
| 保証・評価 | |||
| 土地面積 | 117.29㎡(35.48坪) | 接道 | |
| 私道 | セットバック | ||
| 地目 | 宅地 | 地勢 | |
| 権利 | 所有権 |
||
| 都市計画 | 市街化区域 |
用途地域 | 1種中高 |
| 建ぺい/容積率 | 60% / 200% | 土地国土法 | |
| 許可番号 | 建築基準法 | ||
| 法令制限 | |||
| 小学区 | 二宮小学校 徒歩15分 (約1170m) | 中学区 | 二宮中学校 徒歩16分 (約1220m) |
| 現況 | 建築中 | 引渡 | 期日指定:2026年02月末 |
| その他費用 | |||
| 周辺環境 | 田喜野井旭こども園 徒歩3分 (約220m) 田喜野井小学校 徒歩8分 (約570m) 田喜野井公園 徒歩5分 (約390m) シャトレーゼ船橋田喜野井店 徒歩8分 (約580m) にじいろ保育園薬円台 徒歩8分 (約630m) たきのい幼稚園 徒歩8分 (約580m) ウエルシア船橋田喜野井店 徒歩9分 (約660m) 薬円台南小学校 徒歩9分 (約680m) Big-A 船橋田喜野井店 徒歩10分 (約780m) 三田中学校 徒歩12分 (約900m) |
||
| 備考 | |||
| 物件番号 | 4454177 | 取引態様 | 媒介 |
取扱店舗情報
ハウスドゥ 東習志野 株式会社Delta company 店舗詳細ページへ
| 電話番号 | 047-411-6912 |
|---|---|
| 所在地 | 〒275-0001 千葉県習志野市東習志野5丁目19-17 宮澤マンションC号室 |
| 営業時間 | 平日9:30~18:30 土日祝日8:30~17:30 |
| 定休日 | 水曜日 |
| 宅建免許番号 | 千葉県知事(1)第18367号 |
| アクセス | 店舗への地図はこちら |

来店ご予約
千葉県船橋市で価格が似ている物件はこちら
- 千葉県
マイページ物件数 - 2,842件
最近見た物件
-
-

-
- 新築一戸建て
- 3,398万円
-
熊本市南区御幸西2丁目
-
JR鹿児島本線西熊本
-
-
-

-
- 中古マンション
- 1,280万円
-
川越市南大塚2丁目
-
西武新宿線南大塚
-
-
-

-
- 新築一戸建て
- 3,090万円
-
犬山市大字上野字兼若
-
名鉄犬山線木津用水
-
千葉県新築一戸建て新着物件
-
-

-
- 新築一戸建て
- 2,088万円
-
八街市八街に
-
JR総武本線八街駅
-
-
-

-
- 新築一戸建て
- 1,988万円
-
八街市八街に
-
JR総武本線八街駅
-
-
-

-
- 新築一戸建て
- 3,880万円
-
千葉市中央区寒川町3丁目
-
JR外房線本千葉駅
-
-
-

-
- 新築一戸建て
- 5,290万円
-
千葉市美浜区磯辺3丁目
-
JR京葉線検見川浜駅
-
-
-

-
- 新築一戸建て
- 5,290万円
-
千葉市美浜区磯辺3丁目
-
JR京葉線検見川浜駅
-
-
-

-
- 新築一戸建て
- 3,090万円
-
鎌ケ谷市南鎌ケ谷2丁目
-
京成電鉄松戸線鎌ヶ谷大仏駅
-
-
-

-
- 新築一戸建て
- 2,890万円
-
鎌ケ谷市南鎌ケ谷2丁目
-
京成電鉄松戸線鎌ヶ谷大仏駅
-
- お近くの店舗を探す
-
おすすめ物件
-
-

-
- 新築一戸建て
- 4,880万円
-
流山市野々下5丁目
-
東武野田線豊四季
-
-
-

-
- 新築一戸建て
- 4,480万円
-
流山市鰭ケ崎
-
JR武蔵野線南流山
-
-
-

-
- 新築一戸建て
- 3,780万円
-
成田市寺台
-
JR成田線成田
-
-
-

-
- 新築一戸建て
- 5,388万円
-
流山市鰭ケ崎
-
つくばエクスプレス南流山
-
-
-

-
- 新築一戸建て
- 4,399万円
-
松戸市平賀
-
JR千代田・常磐緩行線北小金
-
-
-

-
- 新築一戸建て
- 4,090万円
-
柏市西原4丁目
-
東武野田線江戸川台
-
-
-

-
- 新築一戸建て
- 4,280万円
-
流山市鰭ケ崎
-
JR武蔵野線南流山
-
-
-

-
- 新築一戸建て
- 3,680万円
-
成田市寺台
-
JR成田線成田
-
-
-

-
- 新築一戸建て
- 4,999万円
-
流山市東初石1丁目
-
東武野田線初石
-
-
-

-
- 新築一戸建て
- 3,680万円
-
成田市寺台
-
JR成田線成田
-








□当社は住宅ローンに『自信』があります。是非一度ご相談下さい□
「他社で断られた」 「頭金が無いからな」
「他の返済があるからな」
住宅ローンがご不安な方もお気軽にご相談下さい♪
親身にご相談させていただき、お客様に最適な金融機関をご紹介いたします。
◇頭金0円からのご購入可能(諸費用もOK)
◇他の物件も見てみたい!などお気軽にお申し付け下さい♪
■現地案内会
平日のご見学もお電話1本で駆けつけます。
047-411-6912までお電話下さい。
■ご案内方法
ご来店できないお客様は、ご自宅への送迎やご指定の場所で待ち合わせてご案内。ご希望に合わせ周辺情報もご案内!
■キッズスペース
お子様が退屈しないようDVD、ぬりえ、おもちゃなどをご用意していますので安心してご来店ください。
■専用駐車場
お客様専用駐車場完備!お気軽にご来店お待ちいたしております。
■売却査定買取
仲介による売却はもちろん、ご近所に知られたくない、急いで売却したいときには高額査定で買取します!!
地元密着の情報量とフットワークの良さでお手伝いさせて頂きます。