鎌ケ谷市東初富1丁目の新築戸建
掲載情報更新日:2025年12月12日 次回更新予定日:2025年12月26日
- 3,990万円
-
- 借入ご希望金額
万円 - 借入期間
年 - 借入金利
% - 月々のお支払い金額
円
- 借入ご希望金額
※ 月々のお支払例は目安の試算となりますので、実際の金額とは異なる場合がございます。詳しくは店舗までお問合わせください。
- 鎌ケ谷市東初富1丁目
-
京成電鉄松戸線『初富』 徒歩17分 (約1360m)
鎌ケ谷市東初富1丁目一戸建て | 物件情報
★即日ご案内可能!! ★資料請求のみ大歓迎 ★カースペース2台 ★各居室収納あり
物件の設備
- オール電化
- 公営水道
- 公共下水
- 食器洗浄乾燥機
- IHクッキングヒータ
- システムキッチン
- バス
- バス1坪以上
- 追焚機能
- 浴室乾燥機
- 浴室に窓
- トイレ
- トイレ2箇所
- 温水洗浄便座
- 室内洗濯機置場
- 洗髪洗面化粧台
- 洗面所独立
- モニタ付インターホン
- LDK15畳以上
- フローリング
- 全室フローリング
- 24時間換気システム
- クローゼット
- ウォークインクローゼット
- 床下収納
- シューズボックス
物件の特徴
- 小学校徒歩10分以内
- 2階建
- 即入居可
物件詳細情報
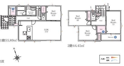
| 価格 | 3,990万円 | 間取り | 4LDK |
|---|---|---|---|
| 物件種別 | 新築一戸建て | ||
| 所在地 | 千葉県鎌ケ谷市東初富1丁目6-1 | ||
| アクセス |
|
||
| 建物面積 | 100.34㎡ | 駐車場 | あり 普通:1台 軽:1台 |
| 築年月 | 2025年(令和7年)05月築 | 建築確認 | |
| 建物構造 | 木造 2階建 | 工法 | |
| 主要採光 | バルコニー | ||
| 保証・評価 | |||
| 土地面積 | 130.94㎡(39.60坪) | 接道 | |
| 私道 | セットバック | ||
| 地目 | 宅地 | 地勢 | |
| 権利 | 所有権 |
||
| 都市計画 | 市街化区域 |
用途地域 | 1種低層 |
| 建ぺい/容積率 | 50% / 100% | 土地国土法 | |
| 許可番号 | 建築基準法 | ||
| 法令制限 | |||
| 小学区 | 初富小学校 徒歩6分 (約480m) | 中学区 | 第五中学校 徒歩19分 (約1500m) |
| 現況 | 完工済 | 引渡 | 即 |
| その他費用 | |||
| 備考 | |||
| 物件番号 | 4457881 | 取引態様 | 媒介 |
取扱店舗情報
ハウスドゥ 東習志野 株式会社Delta company 店舗詳細ページへ
| 電話番号 | 047-411-6912 |
|---|---|
| 所在地 | 〒275-0001 千葉県習志野市東習志野5丁目19-17 宮澤マンションC号室 |
| 営業時間 | 平日9:30~18:30 土日祝日8:30~17:30 |
| 定休日 | 水曜日 |
| 宅建免許番号 | 千葉県知事(1)第18367号 |
| アクセス | 店舗への地図はこちら |

来店ご予約
千葉県鎌ケ谷市で価格が似ている物件はこちら
- 千葉県
マイページ物件数 - 2,891件
最近見た物件
-
-

-
- 新築一戸建て
- 3,590万円
-
刈谷市中手町2丁目
-
JR東海道本線逢妻
-
-
-

-
- 新築一戸建て
- 3,970万円
-
大津市一里山4丁目
-
JR東海道線瀬田
-
-
-

-
- 新築一戸建て
- 2,680万円
-
鹿児島市坂之上7丁目
-
JR指宿枕崎線坂之上
-
千葉県新築一戸建て新着物件
-
-

-
- 新築一戸建て
- 3,690万円
-
鎌ケ谷市南初富2丁目
-
京成電鉄松戸線初富駅
-
-
-

-
- 新築一戸建て
- 4,190万円
-
鎌ケ谷市南初富2丁目
-
京成電鉄松戸線初富駅
-
-
-

-
- 新築一戸建て
- 5,298万円
-
松戸市松戸
-
JR常磐線松戸駅
-
-
-

-
- 新築一戸建て
- 4,199万円
-
松戸市河原塚
-
JR武蔵野線東松戸駅
-
-
-

-
- 新築一戸建て
- 3,380万円
-
柏市新逆井1丁目
-
京成電鉄松戸線五香駅
-
-
-

-
- 新築一戸建て
- 3,990万円
-
船橋市三咲7丁目
-
京成電鉄松戸線三咲駅
-
-
-

-
- 新築一戸建て
- 3,990万円
-
船橋市三咲7丁目
-
京成電鉄松戸線三咲駅
-
- お近くの店舗を探す
-
おすすめ物件
-
-

-
- 新築一戸建て
- 5,388万円
-
流山市鰭ケ崎
-
つくばエクスプレス南流山
-
-
-

-
- 新築一戸建て
- 4,788万円
-
流山市東初石1丁目
-
東武野田線初石
-
-
-

-
- 新築一戸建て
- 3,480万円
-
成田市寺台
-
JR成田線成田
-
-
-

-
- 新築一戸建て
- 4,090万円
-
柏市西原4丁目
-
東武野田線江戸川台
-
-
-

-
- 新築一戸建て
- 4,680万円
-
流山市野々下5丁目
-
東武野田線豊四季
-
-
-

-
- 新築一戸建て
- 4,299万円
-
松戸市平賀
-
JR千代田・常磐緩行線北小金
-
-
-

-
- 新築一戸建て
- 5,299万円
-
流山市江戸川台西1丁目
-
東武野田線江戸川台
-
-
-

-
- 新築一戸建て
- 4,480万円
-
流山市鰭ケ崎
-
JR武蔵野線南流山
-
-
-

-
- 新築一戸建て
- 3,680万円
-
成田市寺台
-
JR成田線成田
-
-
-

-
- 新築一戸建て
- 4,280万円
-
流山市鰭ケ崎
-
JR武蔵野線南流山
-




□当社は住宅ローンに『自信』があります。是非一度ご相談下さい□
「他社で断られた」 「頭金が無いからな」
「他の返済があるからな」
住宅ローンがご不安な方もお気軽にご相談下さい♪
親身にご相談させていただき、お客様に最適な金融機関をご紹介いたします。
◇頭金0円からのご購入可能(諸費用もOK)
◇他の物件も見てみたい!などお気軽にお申し付け下さい♪
■現地案内会
平日のご見学もお電話1本で駆けつけます。
047-411-6912までお電話下さい。
■ご案内方法
ご来店できないお客様は、ご自宅への送迎やご指定の場所で待ち合わせてご案内。ご希望に合わせ周辺情報もご案内!
■キッズスペース
お子様が退屈しないようDVD、ぬりえ、おもちゃなどをご用意していますので安心してご来店ください。
■専用駐車場
お客様専用駐車場完備!お気軽にご来店お待ちいたしております。
■売却査定買取
仲介による売却はもちろん、ご近所に知られたくない、急いで売却したいときには高額査定で買取します!!
地元密着の情報量とフットワークの良さでお手伝いさせて頂きます。