宇都宮市御幸ケ原町の新築戸建
掲載情報更新日:2026年04月13日 次回更新予定日:2026年04月27日
- 2,290万円
-
- 借入ご希望金額
万円 - 借入期間
年 - 借入金利
% - 月々のお支払い金額
円
- 借入ご希望金額
※ 月々のお支払例は目安の試算となりますので、実際の金額とは異なる場合がございます。詳しくは店舗までお問合わせください。
- 宇都宮市御幸ケ原町
-
JR東北本線『岡本』 車9分(約3.3km)
JR東北本線『宇都宮』 車15分(約4.6km)
宇都宮市御幸ケ原町一戸建て | 物件情報
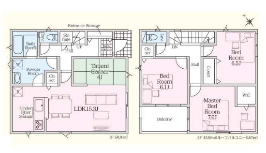
LDK15帖以上(^^♪主寝室7.6帖(^^♪
ローソン宇都宮4号御幸店 徒歩約5分
便利な立地(^^♪
物件の特徴
- 前道6m以上
- 2階建
物件詳細情報
| 価格 | 2,290万円 | 間取り | 3LDK |
|---|---|---|---|
| 物件種別 | 新築一戸建て | ||
| 所在地 | 栃木県宇都宮市御幸ケ原町 1号棟 | ||
| アクセス |
|
||
| 建物面積 | 95.97㎡ | 駐車場 | あり 普通:2台 |
| 築年月 | 2026年(令和8年)01月築 | 建築確認 | 第R07SHC119006号 |
| 建物構造 | 木造 2階建 | 工法 | |
| 主要採光 | バルコニー | ||
| 保証・評価 | |||
| 分譲情報 | |||
| 土地面積 | 143.05㎡(43.27坪) | 接道 | 北東側(公道)幅 約6.0m 間口 約10.00m 南東側(公道)幅 約4.3m 間口 約7.90m |
| 私道 | セットバック | ||
| 地目 | 宅地 | 地勢 | |
| 権利 | 所有権 |
||
| 都市計画 | 市街化区域 |
用途地域 | 1種住居 |
| 建ぺい/容積率 | 70% / 200% | 土地国土法 | |
| 許可番号 | 建築基準法 | ||
| 法令制限 | |||
| 小学区 | 御幸が原小学校 徒歩10分 (約730m) | 中学区 | 鬼怒中学校 徒歩35分 (約2800m) |
| 現況 | 完工済 | 引渡 | 期日指定:2026年01月末以降 |
| その他費用 | |||
| 周辺環境 | 宇都宮市御幸が原小学校 徒歩10分 (約730m) 岩曽保育園 徒歩16分 (約1240m) セブンイレブン宇都宮下川俣店 徒歩21分 (約1630m) 宇都宮市立鬼怒中学校 徒歩35分 (約2800m) |
||
| 備考 | |||
| 物件番号 | 4458488 | 取引態様 | 媒介 |
取扱店舗情報
ハウスドゥ 中戸祭 株式会社ケイズ・ネクスト 店舗詳細ページへ
| 電話番号 | 028-680-4339 |
|---|---|
| 所在地 | 〒320-0052 栃木県宇都宮市中戸祭町867-3 イステートハイツ中戸祭 |
| 営業時間 | 9:00~18:00 |
| 定休日 | 水曜日・夏休暇・GW・年末年始 |
| 宅建免許番号 | 栃木県知事(1)第5469号 |
| アクセス | 店舗への地図はこちら |

来店ご予約
栃木県宇都宮市で価格が似ている物件はこちら
- 栃木県
マイページ物件数 - 5,260件
最近見た物件
-
-

-
- 土地
- 7,398万円
-
島尻郡八重瀬町字富盛
-
南部工業高校前 バス停
-
-
-

-
- 新築一戸建て
- 3,549万円
-
鹿児島市和田2丁目
-
JR指宿枕崎線慈眼寺
-
栃木県新築一戸建て新着物件
- お近くの店舗を探す
-


































