熊本市東区戸島5丁目の新築戸建
掲載情報更新日:2026年02月02日 次回更新予定日:2026年02月16日
- 3,180万円
-
- 借入ご希望金額
万円 - 借入期間
年 - 借入金利
% - 月々のお支払い金額
円
- 借入ご希望金額
※ 月々のお支払例は目安の試算となりますので、実際の金額とは異なる場合がございます。詳しくは店舗までお問合わせください。
- 熊本市東区戸島5丁目
-
JR豊肥本線『武蔵塚』 徒歩64分 (約5100m)
JR豊肥本線『竜田口』 徒歩79分 (約6300m)
JR豊肥本線『東海学園前』 徒歩83分 (約6600m)
熊本市東区戸島5丁目一戸建て | 物件情報
※マウスを乗せると画像が切り替わります。
物件の設備
- 電気
- オール電化
- 浄水器
- 食器洗浄乾燥機
- IHクッキングヒータ
- カウンターキッチン
- システムキッチン
- ユニットバス
- 浴室暖房
- 浴室乾燥機
- トイレ2箇所
- 温水洗浄便座
- 室内洗濯機置場
- 洗髪洗面化粧台
- 太陽光発電システム
- 省エネ給湯器
- ダブルロックキー
- モニタ付インターホン
- 火災警報器/報知機
- LDK20畳以上
- 和室
- 吹抜
- 複層ガラス
- フローリング
- 24時間換気システム
- クローゼット
- ウォークインクローゼット2箇所
- 床下収納
- 全居室収納
- シューズボックス
- インナーバルコニー
物件の特徴
- 2階建
- BELS/省エネ基準適合
物件詳細情報
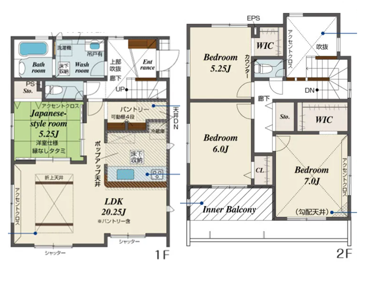
| 価格 | 3,180万円 | 間取り | 4LDK |
|---|---|---|---|
| 物件種別 | 新築一戸建て | ||
| 所在地 | 熊本県熊本市東区戸島5丁目 2号 | ||
| アクセス |
|
||
| 建物面積 | 106.4㎡ | 駐車場 | あり 普通:2台 |
| 築年月 | 2025年(令和7年)12月築 | 建築確認 | 第R07SHC115375号 |
| 建物構造 | 木造 2階建 | 工法 | |
| 主要採光 | バルコニー | ||
| 保証・評価 | |||
| 土地面積 | 206.25㎡(62.39坪) | 接道 | |
| 私道 | セットバック | ||
| 地目 | 宅地 | 地勢 | |
| 権利 | 所有権 |
||
| 都市計画 | 調整区域 |
用途地域 | 指定無 |
| 建ぺい/容積率 | 40% / 80% | 土地国土法 | |
| 許可番号 | 建築基準法 | ||
| 法令制限 | |||
| 小学区 | 託麻東小学校 徒歩11分 (約850m) | 中学区 | |
| 現況 | 完工済 | 引渡 | 未記入 |
| その他費用 | |||
| 周辺環境 | セブンイレブン 熊本小山4丁目店 徒歩9分 (約670m) 託麻東小学校 徒歩12分 (約910m) 小山戸島郵便局 徒歩14分 (約1100m) 二岡中学校 徒歩14分 (約1100m) |
||
| 備考 | |||
| 物件番号 | 4458913 | 取引態様 | 媒介 |
取扱店舗情報
ハウスドゥ 大江 まつばや百貨店不動産株式会社 店舗詳細ページへ
| 電話番号 | 096-206-1230 |
|---|---|
| 所在地 | 〒862-0971 熊本県熊本市中央区大江1丁目2-19 |
| 営業時間 | 9:00~18:00 |
| 定休日 | 水曜日 |
| 宅建免許番号 | 熊本県知事(1)第5729号 |
| アクセス | 店舗への地図はこちら |

来店ご予約
熊本県熊本市東区で価格が似ている物件はこちら
![]()
![]()
-
- 新築一戸建て 2024.01.11
-
-
- 3,098万円
-
熊本市東区三郎2丁目
-
JR豊肥本線「東海学園前駅」まで徒歩42分
- 4LDK
-
-
- 新築一戸建て 2024.10.19
-
-
- 3,190万円
-
熊本市東区戸島西7丁目
-
JR豊肥本線「東海学園前駅」まで車22分
- 4LDK
-
-
- 新築一戸建て 2025.02.12
-
-
- 3,090万円
-
熊本市東区戸島西7丁目
-
JR豊肥本線「水前寺駅」バス乗車33分 バス停「竜穴」まで徒歩8分
- 4LDK
-
-
- 新築一戸建て 2025.02.12
-
-
- 3,090万円
-
熊本市東区戸島西7丁目
-
JR豊肥本線「水前寺駅」バス乗車33分 バス停「竜穴」まで徒歩8分
- 4LDK
-
-
- 新築一戸建て 2025.03.02
-
-
- 3,199万円
-
熊本市東区戸島1丁目
-
JR豊肥本線「武蔵塚駅」まで車17分
- 4LDK
-
-
- 新築一戸建て 2025.03.24
-
-
- 3,190万円
-
熊本市東区戸島西7丁目
-
JR豊肥本線「水前寺駅」バス乗車33分 バス停「竜穴」まで徒歩7分
- 4LDK
-
-
- 新築一戸建て 2025.04.05
-
-
- 3,080万円
-
熊本市東区尾ノ上3丁目
-
熊本市健軍線「健軍校前駅」まで徒歩29分
- 3LDK
-
-
- 新築一戸建て 2025.04.06
-
-
- 3,180万円
-
熊本市東区秋津1丁目
-
熊本市健軍線「健軍町駅」まで徒歩16分
- 4LDK
-
-
- 新築一戸建て 2025.04.07
-
-
- 3,199万円
-
熊本市東区戸島1丁目
-
熊本都市バス葉山団地入口まで徒歩3分
- 4LDK
-
-
- 新築一戸建て 2025.04.13
-
-
- 3,080万円
-
熊本市東区尾ノ上3丁目
-
熊本市健軍線「健軍町駅」まで徒歩31分
- 3LDK
-
-
- 新築一戸建て 2025.04.14
-
-
- 3,090万円
-
熊本市東区水源2丁目
-
熊本市健軍線「健軍交番前駅」まで徒歩9分
- 3LDK
-
-
- 新築一戸建て 2025.05.08
-
-
- 3,080万円
-
熊本市東区尾ノ上3丁目
-
灰塚まで徒歩4分
- 3LDK
-
-
- 新築一戸建て 2025.05.19
-
-
- 3,098万円
-
熊本市東区長嶺西2丁目
-
JR豊肥本線「東海学園前駅」バス乗車26分 バス停「福祉センターグラウンド前」まで徒歩12分
- 4LDK
-
-
- 新築一戸建て 2025.06.03
-
-
- 3,090万円
-
熊本市東区月出7丁目
-
JR豊肥本線「水前寺駅」バス乗車27分 バス停「福祉センター前」まで徒歩4分
- 4LDK
-
-
- 新築一戸建て 2025.06.04
-
-
- 3,090万円
-
熊本市東区月出7丁目
-
JR豊肥本線「水前寺駅」まで徒歩49分
- 4LDK
-
-
- 新築一戸建て 2025.06.10
-
-
- 3,098万円
-
熊本市東区長嶺西2丁目
-
JR豊肥本線「東海学園前駅」まで徒歩41分
- 4LDK
-
-
- 新築一戸建て 2025.06.17
-
-
- 3,090万円
-
熊本市東区月出7丁目
-
JR豊肥本線「水前寺駅」バス乗車27分 バス停「福祉センター前」まで徒歩3分
- 4LDK
-
-
- 新築一戸建て 2025.06.24
-
-
- 3,080万円
-
熊本市東区尾ノ上3丁目
-
熊本市健軍線「神水交差点駅」まで徒歩28分
- 3LDK
-
-
- 新築一戸建て 2025.06.24
-
-
- 3,280万円
-
熊本市東区秋津1丁目
-
熊本市健軍線「健軍町駅」まで徒歩16分
- 4LDK
-
-
- 新築一戸建て 2025.06.26
-
-
- 3,198万円
-
熊本市東区八反田2丁目
-
JR豊肥本線「東海学園前駅」まで徒歩30分
- 4LDK
-
-
- 新築一戸建て 2025.06.29
-
-
- 3,080万円
-
熊本市東区尾ノ上3丁目
-
熊本市健軍線「健軍校前駅」バス乗車6分 バス停「南灰塚」まで徒歩3分
- 3LDK
-
-
- 新築一戸建て 2025.07.14
-
-
- 3,190万円
-
熊本市東区戸島西7丁目
-
熊本市健軍線「健軍町駅」まで徒歩62分
- 4LDK
-
-
- 新築一戸建て 2025.07.27
-
-
- 3,180万円
-
熊本市東区秋津1丁目
-
熊本市健軍線「健軍町駅」まで徒歩18分
- 4LDK
-
-
- 新築一戸建て 2025.08.05
-
-
- 3,100万円
-
熊本市東区戸島西1丁目
-
都市バス西戸島まで徒歩4分
- 3LDK
-
-
- 新築一戸建て 2025.08.07
-
-
- 3,190万円
-
熊本市東区戸島西7丁目
-
熊本都市バス竜穴まで徒歩7分
- 4LDK
-
-
- 新築一戸建て 2025.08.09
-
-
- 3,100万円
-
熊本市東区戸島西1丁目
-
JR豊肥本線「水前寺駅」バス乗車34分 バス停「西戸島」まで徒歩4分
- 3LDK
-
-
- 新築一戸建て 2025.09.30
-
-
- 3,198万円
-
熊本市東区花立6丁目
-
熊本市健軍線「健軍町駅」まで徒歩27分
- 4LDK
-
-
- 新築一戸建て 2025.10.14
-
-
- 3,198万円
-
熊本市東区戸島7丁目
-
九州産交バス戸島駐車場前まで徒歩3分
- 4LDK+S
-
-
- 新築一戸建て 2025.10.22
-
-
- 3,280万円
-
熊本市東区榎町
-
熊本市健軍線「健軍町駅」まで徒歩38分
- 4LDK
-
-
- 新築一戸建て 2025.10.23
-
-
- 3,280万円
-
熊本市東区戸島5丁目
-
小山団地入口まで徒歩12分
- 4LDK
-
-
- 新築一戸建て 2025.10.30
-
-
- 3,098万円
-
熊本市東区長嶺西2丁目
-
JR豊肥本線「東海学園前駅」バス乗車26分 バス停「福祉センターグラウンド前」まで徒歩12分
- 4LDK
-
-
- 新築一戸建て 2025.11.13
-
-
- 3,199万円
-
熊本市東区戸島1丁目
-
JR豊肥本線「光の森駅」まで徒歩81分
- 4LDK
-
-
- 新築一戸建て 2025.11.22
-
-
- 3,280万円
-
熊本市東区榎町
-
熊本市健軍線「健軍町駅」まで徒歩34分
- 4LDK
-
-
- 新築一戸建て 2025.11.29
-
-
- 3,180万円
-
熊本市東区戸島5丁目
-
JR豊肥本線「三里木駅」まで徒歩64分
- 4LDK
-
-
- 新築一戸建て 2025.11.30
-
-
- 3,280万円
-
熊本市東区榎町
-
熊本市健軍線「健軍町駅」まで徒歩35分
- 4LDK
-
-
- 新築一戸建て 2025.11.30
-
-
- 3,198万円
-
熊本市東区花立6丁目
-
産交バス花立5丁目まで徒歩6分
- 4LDK
-
-
- 新築一戸建て 2025.12.01
-
-
- 3,090万円
-
熊本市東区月出7丁目
-
JR豊肥本線「水前寺駅」バス乗車27分 バス停「福祉センター前」まで徒歩4分
- 4LDK
-
-
- 新築一戸建て 2025.12.14
-
-
- 3,199万円
-
熊本市東区戸島1丁目
-
熊本都市バス葉山団地入口まで徒歩3分
- 4LDK
-
-
- 新築一戸建て 2025.12.17
-
-
- 3,180万円
-
熊本市東区戸島5丁目
-
JR豊肥本線「光の森駅」まで車10分
- 4LDK
-
-
- 新築一戸建て 2025.12.21
-
-
- 3,198万円
-
熊本市東区戸島7丁目
-
JR豊肥本線「三里木駅」まで車15分
- 4LDK
-
-
- 新築一戸建て 2025.12.22
-
-
- 3,280万円
-
熊本市東区榎町
-
熊本市健軍線「健軍町駅」まで徒歩35分
- 4LDK
-
-
-
新築一戸建て
2026.01.09
-
-
- 3,198万円
-
熊本市東区八反田2丁目
-
JR豊肥本線「東海学園前駅」まで徒歩31分
- 4LDK
-
-
新築一戸建て
2026.01.09
-
-
新築一戸建て
2026.01.12
-
-
- 3,090万円
-
熊本市東区月出7丁目
-
JR豊肥本線「水前寺駅」まで車11分
- 4LDK
-
-
新築一戸建て
2026.01.12
-
-
新築一戸建て
2026.01.12
-
-
- 3,198万円
-
熊本市東区花立6丁目
-
花立五丁目まで徒歩6分
- 4LDK
-
-
新築一戸建て
2026.01.12
-
-
新築一戸建て
2026.01.12
-
-
- 3,098万円
-
熊本市東区長嶺西2丁目
-
JR豊肥本線「東海学園前駅」まで徒歩26分
- 4LDK
-
-
新築一戸建て
2026.01.12
-
-
新築一戸建て
2026.01.17
-
-
- 3,198万円
-
熊本市東区花立6丁目
-
熊本市健軍線「健軍町駅」まで徒歩35分
- 4LDK
-
-
新築一戸建て
2026.01.17
-
-
新築一戸建て
2026.01.19
-
-
- 3,198万円
-
熊本市東区戸島7丁目
-
九州産交バス戸島駐車場前まで徒歩3分
- 4LDK+S
-
-
新築一戸建て
2026.01.19
-
-
新築一戸建て
2026.02.03
-
-
- 3,080万円
-
熊本市東区尾ノ上3丁目
-
熊本市健軍線「健軍校前駅」まで徒歩29分
- 3LDK
-
-
新築一戸建て
2026.02.03
-
-
新築一戸建て
2026.02.05
-
-
- 3,198万円
-
熊本市東区花立6丁目
-
熊本市健軍線「健軍町駅」まで徒歩35分
- 4LDK
-
-
新築一戸建て
2026.02.05
-
-
新築一戸建て
2026.02.06
-
-
- 3,180万円
-
熊本市東区秋津1丁目
-
熊本市健軍線「健軍町駅」まで徒歩16分
- 4LDK
-
-
新築一戸建て
2026.02.06
- 熊本県
マイページ物件数 - 2,793件
最近見た物件
熊本県新築一戸建て新着物件
-
-

-
- 新築一戸建て
- 3,898万円
-
菊池郡菊陽町沖野3丁目
-
JR豊肥本線光の森駅
-
-
-

-
- 新築一戸建て
- 3,598万円
-
菊池郡菊陽町沖野3丁目
-
JR豊肥本線光の森駅
-
-
-

-
- 新築一戸建て
- 3,398万円
-
菊池郡大津町大字森
-
JR豊肥本線肥後大津駅
-
-
-

-
- 新築一戸建て
- 2,898万円
-
菊池郡大津町大字森
-
JR豊肥本線肥後大津駅
-
-
-

-
- 新築一戸建て
- 3,298万円
-
菊池郡大津町大字森
-
JR豊肥本線肥後大津駅
-
-
-

-
- 新築一戸建て
- 2,598万円
-
菊池郡菊陽町大字馬場楠
-
JR豊肥本線三里木駅
-
-
-

-
- 新築一戸建て
- 3,098万円
-
菊池郡菊陽町大字津久礼
-
JR豊肥本線三里木駅
-
- お近くの店舗を探す
-
おすすめ物件
-
-

-
- 新築一戸建て
- 2,580万円
-
熊本市南区御幸笛田1丁目
-
JR豊肥本線南熊本
-
-
-

-
- 新築一戸建て
- 3,280万円
-
熊本市東区榎町
-
熊本市健軍線健軍町
-
-
-

-
- 新築一戸建て
- 2,590万円
-
熊本市南区御幸笛田1丁目
-
JR豊肥本線南熊本
-
-
-

-
- 新築一戸建て
- 4,090万円
-
熊本市中央区壺川1丁目
-
熊本電気鉄道藤崎宮前
-
-
-

-
- 新築一戸建て
- 3,298万円
-
熊本市北区清水新地1丁目
-
熊本電気鉄道堀川
-
-
-

-
- 新築一戸建て
- 3,090万円
-
熊本市東区月出7丁目
-
JR豊肥本線水前寺
-
-
-

-
- 新築一戸建て
- 3,890万円
-
熊本市中央区壺川1丁目
-
熊本電気鉄道藤崎宮前
-
-
-

-
- 新築一戸建て
- 2,790万円
-
熊本市東区月出7丁目
-
JR豊肥本線水前寺
-
-
-

-
- 新築一戸建て
- 3,288万円
-
熊本市西区田崎3丁目
-
熊本市健軍線田崎橋
-


































