野々市市横宮町の新築戸建
NEW 10.22掲載情報更新日:2025年10月22日 次回更新予定日:2025年11月05日
- 3,945万円
-
- 借入ご希望金額
万円 - 借入期間
年 - 借入金利
% - 月々のお支払い金額
円
- 借入ご希望金額
※ 月々のお支払例は目安の試算となりますので、実際の金額とは異なる場合がございます。詳しくは店舗までお問合わせください。
- 野々市市横宮町
-
北陸鉄道石川線『野々市』 徒歩9分 (約720m)
『西野々市』 徒歩2分 (約160m)
野々市市横宮町一戸建て | 物件情報
野々市市横宮町に新築平屋建 2LDKが登場!野々市市の中心部で金沢市や白山市へのアクセスも便利!
【住宅地のおすすめポイント】
国道157号線へのアクセスも良く、周辺環境も充実しております。
保育園、小学校、中学校も徒歩圏内なのも子育て世代にはうれしいポイント。
住宅は大通りから少しそれているので交通量も多くありません。
【住宅のおすすめポイント】
木目の勾配天井が伸びやかに広がり、木のぬくもりを感じる床と調和します。南側の窓から注ぐやわらかな陽光が変化しながら、明るく開放的なリビングを演出し、家族の時間を豊かに彩る空間となりました。
物件の設備
- 電気
- オール電化
- 上水道
- 下水道
- 食器洗浄乾燥機
- IHクッキングヒータ
- コンロ三口
- システムキッチン
- バス1坪以上
- 追焚機能
- 室内物干機
- エアコン2基
- 照明器具
- ダウンライト
- モニタ付インターホン
- LDK15畳以上
- 24時間換気システム
- クローゼット
- ウォークインクローゼット
- 全居室収納
- サンルーム
物件の特徴
- 前道6m以上
物件詳細情報
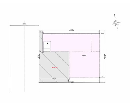
| 価格 | 3,945万円 | 間取り | 2LDK |
|---|---|---|---|
| 物件種別 | 新築一戸建て | ||
| 所在地 | 石川県野々市市横宮町43番11 | ||
| アクセス |
|
||
| 建物面積 | 85.54㎡ | 駐車場 | あり 普通:2台 |
| 築年月 | 2025年(令和7年)12月予定 | 建築確認 | 第ERI-25022223号 |
| 建物構造 | 木造 1階建 | 工法 | |
| 主要採光 | バルコニー | ||
| 保証・評価 | |||
| 土地面積 | 公150.37㎡(45.48坪) | 接道 | 東側(公道)幅 約6.0m 間口 約12.20m |
| 私道 | セットバック | ||
| 地目 | 宅地 | 地勢 | 平坦 |
| 権利 | 所有権 |
||
| 都市計画 | 市街化区域 |
用途地域 | 近隣商業 |
| 建ぺい/容積率 | 60% / 200% | 土地国土法 | |
| 許可番号 | 建築基準法 | ||
| 法令制限 | |||
| 小学区 | 館野小学校 徒歩12分 (約935m) | 中学区 | 布水中学校 徒歩10分 (約770m) |
| 現況 | 建築中 | 引渡 | 未記入 |
| その他費用 | |||
| 周辺環境 | ウエルシア野々市横宮店 徒歩3分 (約220m) 野々市郵便局 徒歩5分 (約390m) クスリのアオキ押越店 徒歩8分 (約620m) 野々市市立布水中学校 徒歩10分 (約780m) セブン-イレブン野々市押野2丁目店 徒歩11分 (約820m) 野々市市立館野小学校 徒歩11分 (約850m) クスリのアオキ菅原店 徒歩14分 (約1070m) 幼保連携型認定こども園はくさん保育園 徒歩15分 (約1180m) マックスバリュ野々市店 徒歩15分 (約1130m) 野々市駅 徒歩28分 (約2170m) |
||
| 備考 | |||
| 物件番号 | 4459129 | 取引態様 | 媒介 |
取扱店舗情報
ハウスドゥ ラスパ白山 株式会社アンビション 店舗詳細ページへ
| 電話番号 | 076-225-6461 |
|---|---|
| 所在地 | 〒924-0865 石川県白山市倉光5丁目14 ラスパ白山 A-10 |
| 営業時間 | 10:00~19:00 |
| 定休日 | 年中無休 |
| 宅建免許番号 | 石川県知事(1)第4517号 |
| アクセス | 店舗への地図はこちら |

来店ご予約
- 石川県
マイページ物件数 - 495件
石川県新築一戸建て新着物件
- お近くの店舗を探す
-















