熊本市北区高平3丁目の新築戸建
掲載情報更新日:2026年02月09日 次回更新予定日:2026年02月23日
- 2,488万円
-
- 借入ご希望金額
万円 - 借入期間
年 - 借入金利
% - 月々のお支払い金額
円
- 借入ご希望金額
※ 月々のお支払例は目安の試算となりますので、実際の金額とは異なる場合がございます。詳しくは店舗までお問合わせください。
- 熊本市北区高平3丁目
-
熊本電気鉄道『亀井』 徒歩11分 (約880m)
『高平』 徒歩3分 (約240m)
熊本市北区高平3丁目一戸建て | 物件情報
《一気見ツアー今すぐOK》☆仲介手数料無料物件(80万円相当がお得!)お気軽にお問合せください♪
※マウスを乗せると画像が切り替わります。
【内覧ツアー×最安値保証】ネットの物件、すべて当社で紹介可能!交渉力で「理想の価格」を叶えます
当社は通常かかる仲介手数料(物件価格の3%+6万円)が無料(例:3000万円の場合、90万円相当)
売主様への価格交渉も得意なので、どこよりもお安くご購入いただけるよう徹底サポートします!
他社様でお見積もりを取った後でも大丈夫!もっと安く買えるのでは?そんな悩みは当社が解決します
【内覧ツアー】
熊本県内全域の気になる物件をすべて当社でご内覧いただける『内覧ツアー』を実施中☆
新築・中古・中古マンションも!見学されたい物件を1日で内覧可能♪
窓口を一つに絞れるから、手間も時間もかかりません。
【最安値保証】
\最 安 値 徹 底 宣 言/
他社様よりも必ずお得にご購入いただけることをお約束します
当社ではオプション費用(エアコン、網戸、太陽光等)もお客様に代わり相見積もりします
トータルの費用が100万円以上変わることも!
全国700店舗以上展開!
ハウスドゥだからこその豊富な物件数・情報量でお客様のお家選びをトータルサポートいたします!
物件の設備
- 電気
- 上水道
- 公営水道
- 下水道
- 公共下水
- プロパンガス
- 個別プロパン
- 給湯
- 浄水器
- コンロ三口
- グリル
- ガスコンロ付
- カウンターキッチン
- システムキッチン
- バス
- ユニットバス
- オートバス
- バス1坪以上
- 追焚機能
- 浴室暖房
- 浴室乾燥機
- 浴室に窓
- トイレ
- トイレ2箇所
- 温水洗浄便座
- 室内洗濯機置場
- 洗髪洗面化粧台
- 洗面所独立
- 人感照明センサー
- 省エネ給湯器
- ディンプルキー
- ダブルロックキー
- モニタ付インターホン
- 防犯カメラ
- 火災警報器/報知機
- LDK15畳以上
- 和室
- 2面採光
- 複層ガラス
- 全居室複層ガラス
- フローリング
- 一部フローリング
- 24時間換気システム
- クローゼット
- クローゼット3箇所
- ウォークインクローゼット
- ウォークインクローゼット2箇所
- 納戸
- 床下収納
- シューズインクローク
- バルコニー
- 2面バルコニー
- インナーバルコニー
- 庭
物件の特徴
- 南向
- 制震構造
- スーパーが近い
- 閑静な住宅街
- 市街地が近い
- 通風良好
- 陽当り良好
- 2階建
- 即入居可
- フラット35Sに対応
オープンハウス・イベント情報
開催日時:毎週土日祝 09:00~19:00
開催場所:熊本県熊本市北区
\\現地見学会ご予約受付中// ○平日・土日祝いつでも承ります!! 〇お仕事帰りもOK!早朝・19時以降も対応致します! ◇◆◇お問い合わせ◇◆◇ 電話:096-243-3000 または 見学予約フォームにて事前にご予約をお願いします♪ ◇◆◇見学のご予約◇◆◇ 事前にご希望日時…
物件詳細情報
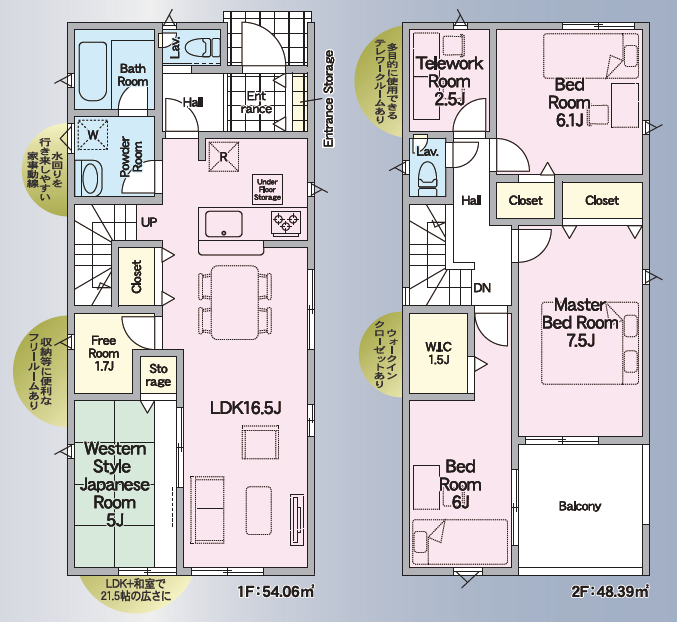
| 価格 | 2,488万円 | 間取り | 4LDK+S |
|---|---|---|---|
| 物件種別 | 新築一戸建て | ||
| 所在地 | 熊本県熊本市北区高平3丁目13-8付近 3号棟 | ||
| アクセス |
|
||
| 建物面積 | 102.45㎡ | 駐車場 | あり 普通:2台 |
| 築年月 | 2025年(令和7年)11月築 | 建築確認 | 第R07SHC116041号 |
| 建物構造 | 木造 2階建 | 工法 | |
| 主要採光 | 南向 | バルコニー | 南西向7.29㎡ |
| 保証・評価 | |||
| 分譲情報 | 【販売戸数】:3戸 【価格】:2,688万円 ~2,888万円 【最多価格】:2,600万円 ~2,700万円(1戸) 【土地面積】:132.88㎡ ~158.24㎡ |
||
| 土地面積 | 132.88㎡(40.19坪) | 接道 | |
| 私道 | セットバック | ||
| 地目 | 宅地 | 地勢 | |
| 権利 | 所有権 |
||
| 都市計画 | 市街化区域 |
用途地域 | 準工業 |
| 建ぺい/容積率 | 60% / 200% | 土地国土法 | |
| 許可番号 | 建築基準法 | ||
| 法令制限 | |||
| 小学区 | 高平台小学校 徒歩22分 (約1700m) | 中学区 | 京陵中学校清水が丘分校 徒歩47分 (約3700m) |
| 現況 | 完工済 | 引渡 | 即 |
| その他費用 | |||
| 周辺環境 | 高平台小学校 徒歩10分 (約770m) 京陵中学校清水が丘分校 徒歩19分 (約1510m) 高平幼稚園 徒歩7分 (約500m) セブンイレブン 熊本清水バイパス店 徒歩6分 (約430m) ゆめマート 清水 徒歩5分 (約390m) 城北胃腸科内科クリニック 徒歩3分 (約230m) 熊本八景水谷郵便局 徒歩11分 (約870m) 熊本市 北区役所 清水まちづくりセンター 徒歩8分 (約630m) 肥後銀行 北熊本支店 熊本機能病院出張所 徒歩13分 (約1030m) 津浦公園 徒歩16分 (約1260m) |
||
| 備考 | ・高平台小学校まで徒歩10分(約770m) ・熊本市立 京陵中学校清水が丘分校まで徒歩19分(約1510m) ・高平幼稚園まで徒歩7分(約500m) ・セブン-イレブン 熊本清水バイパス店まで徒歩6分(約430m) ・ゆめマート 清水まで徒歩5分(約390m) ・城北胃腸科内科クリニックまで徒歩3分(約230m) ・熊本八景水谷郵便局まで徒歩11分(約870m) ・熊本市 北区役所 清水まちづくりセンターまで徒歩8分(約630m) ・肥後銀行 北熊本支店 熊本機能病院出張所まで徒歩13分(約1030m) ・津浦公園まで徒歩16分(約1260m) |
||
| 物件番号 | 4459233 | 取引態様 | 媒介 |
取扱店舗情報
ハウスドゥ 御幸田迎 株式会社Remado 店舗詳細ページへ
| 電話番号 | 096-243-3000 |
|---|---|
| 所在地 | 〒861-4108 熊本県熊本市南区幸田1丁目7-20 |
| 営業時間 | 9:30~18:00 |
| 定休日 | お盆、年末年始 |
| 宅建免許番号 | 熊本県知事(1)第5556号 |
| アクセス | 店舗への地図はこちら |

来店ご予約
熊本県熊本市北区で価格が似ている物件はこちら
![]()
![]()
-
- 新築一戸建て 2024.04.30
-
-
- 2,499万円
-
熊本市北区清水東町
-
熊本電気鉄道「八景水谷駅」まで徒歩8分
- 4LDK+S
-
-
- 新築一戸建て 2024.10.06
-
-
- 2,480万円
-
熊本市北区鶴羽田4丁目
-
熊本電気鉄道「須屋駅」まで徒歩18分
- 3LDK
-
-
- 新築一戸建て 2024.12.09
-
-
- 2,498万円
-
熊本市北区植木町舞尾
-
「舞尾橋」バス停下車まで徒歩7分
- 4LDK
-
-
- 新築一戸建て 2025.01.10
-
-
- 2,498万円
-
熊本市北区植木町舞尾
-
JR鹿児島本線「田原坂駅」まで車10分
- 4LDK
-
-
- 新築一戸建て 2025.01.18
-
-
- 2,498万円
-
熊本市北区植木町舞尾
-
舞尾橋まで徒歩7分
- 4LDK+S
-
-
- 新築一戸建て 2025.04.05
-
-
- 2,480万円
-
熊本市北区鶴羽田4丁目
-
熊本電気鉄道「三ツ石駅」まで徒歩16分
- 3LDK
-
-
- 新築一戸建て 2025.05.16
-
-
- 2,498万円
-
熊本市北区龍田7丁目
-
JR豊肥本線「武蔵塚駅」バス乗車6分 バス停「武蔵塚三里木」まで徒歩8分
- 4LDK
-
-
- 新築一戸建て 2025.05.16
-
-
- 2,498万円
-
熊本市北区龍田7丁目
-
JR豊肥本線「武蔵塚駅」バス乗車6分 バス停「二里木」まで徒歩8分
- 4LDK
-
-
- 新築一戸建て 2025.06.24
-
-
- 2,499万円
-
熊本市北区鶴羽田4丁目
-
熊本電気鉄道「三ツ石駅」まで徒歩15分
- 4LDK+S
-
-
- 新築一戸建て 2025.07.26
-
-
- 2,498万円
-
熊本市北区梶尾町
-
熊本電気鉄道「黒石駅」まで徒歩23分
- 5LDK
-
-
- 新築一戸建て 2025.08.07
-
-
- 2,498万円
-
熊本市北区龍田7丁目
-
JR豊肥本線「武蔵塚駅」まで徒歩30分
- 4LDK
-
-
- 新築一戸建て 2025.08.07
-
-
- 2,498万円
-
熊本市北区龍田7丁目
-
JR豊肥本線「武蔵塚駅」まで徒歩30分
- 4LDK
-
-
- 新築一戸建て 2025.08.28
-
-
- 2,498万円
-
熊本市北区麻生田5丁目
-
熊本電気鉄道「新須屋駅」バス乗車7分 バス停「中島」まで徒歩8分
- 4LDK
-
-
- 新築一戸建て 2025.09.04
-
-
- 2,588万円
-
熊本市北区高平3丁目
-
熊本電気鉄道「亀井駅」まで徒歩11分
- 4LDK
-
-
- 新築一戸建て 2025.09.04
-
-
- 2,488万円
-
熊本市北区高平3丁目
-
熊本電気鉄道「亀井駅」まで徒歩11分
- 4LDK
-
-
- 新築一戸建て 2025.09.04
-
-
- 2,488万円
-
熊本市北区清水東町
-
熊本電気鉄道「亀井駅」まで徒歩11分
- 4LDK+S
-
-
- 新築一戸建て 2025.09.08
-
-
- 2,498万円
-
熊本市北区鶴羽田4丁目
-
熊本電気鉄道「三ツ石駅」まで徒歩13分
- 4LDK+S
-
-
- 新築一戸建て 2025.09.08
-
-
- 2,498万円
-
熊本市北区鶴羽田4丁目
-
熊本電気鉄道「三ツ石駅」まで徒歩13分
- 4LDK+S
-
-
- 新築一戸建て 2025.09.08
-
-
- 2,398万円
-
熊本市北区鶴羽田4丁目
-
熊本電気鉄道「三ツ石駅」まで徒歩13分
- 4LDK
-
-
- 新築一戸建て 2025.10.14
-
-
- 2,498万円
-
熊本市北区植木町一木
-
九州産交バス平田機工まで徒歩10分
- 4LDK+S
-
-
- 新築一戸建て 2025.10.14
-
-
- 2,498万円
-
熊本市北区植木町岩野
-
熊本産交バス植木病院・かがやき館前まで徒歩4分
- 4LDK+S
-
-
- 新築一戸建て 2025.10.20
-
-
- 2,498万円
-
熊本市北区植木町岩野
-
JR豊肥本線「肥後大津駅」まで徒歩33分
- 4LDK+S
-
-
- 新築一戸建て 2025.10.22
-
-
- 2,488万円
-
熊本市北区清水東町
-
熊本電気鉄道「亀井駅」まで徒歩9分
- 4LDK+S
-
-
- 新築一戸建て 2025.10.22
-
-
- 2,588万円
-
熊本市北区高平3丁目
-
熊本電気鉄道「亀井駅」まで徒歩11分
- 4LDK+S
-
-
- 新築一戸建て 2025.10.23
-
-
- 2,388万円
-
熊本市北区池田3丁目
-
熊本電気鉄道「池田駅」まで徒歩23分
- 4LDK
-
-
- 新築一戸建て 2025.10.24
-
-
- 2,498万円
-
熊本市北区植木町一木
-
JR鹿児島本線「植木駅」まで徒歩52分
- 4LDK+S
-
-
- 新築一戸建て 2025.11.03
-
-
- 2,498万円
-
熊本市北区植木町広住
-
JR鹿児島本線「植木駅」まで徒歩50分
- 4LDK
-
-
- 新築一戸建て 2025.11.13
-
-
- 2,498万円
-
熊本市北区鶴羽田4丁目
-
熊本電気鉄道「三ツ石駅」まで徒歩14分
- 4LDK+S
-
-
- 新築一戸建て 2025.11.13
-
-
- 2,498万円
-
熊本市北区鶴羽田4丁目
-
熊本電気鉄道「三ツ石駅」まで徒歩14分
- 4LDK+S
-
-
- 新築一戸建て 2025.11.13
-
-
- 2,398万円
-
熊本市北区鶴羽田4丁目
-
熊本電気鉄道「三ツ石駅」まで徒歩14分
- 4LDK
-
-
- 新築一戸建て 2025.11.27
-
-
- 2,488万円
-
熊本市北区清水東町
-
熊本電気鉄道「亀井駅」まで徒歩9分
- 4LDK
-
-
- 新築一戸建て 2025.11.27
-
-
- 2,388万円
-
熊本市北区池田3丁目
-
熊本電気鉄道「亀井駅」まで徒歩27分
- 4LDK
-
-
- 新築一戸建て 2025.12.14
-
-
- 2,588万円
-
熊本市北区高平3丁目
-
熊本電気鉄道「亀井駅」まで徒歩10分
- 4LDK
-
-
- 新築一戸建て 2025.12.14
-
-
- 2,488万円
-
熊本市北区高平3丁目
-
熊本電気鉄道「亀井駅」まで徒歩10分
- 4LDK
-
-
- 新築一戸建て 2025.12.23
-
-
- 2,488万円
-
熊本市北区清水東町
-
熊本電気鉄道「亀井駅」まで徒歩11分
- 4LDK+S
-
-
- 新築一戸建て 2025.12.23
-
-
- 2,588万円
-
熊本市北区清水新地2丁目
-
熊本電気鉄道「堀川駅」まで徒歩19分
- 4LDK
-
-
- 新築一戸建て 2026.01.08
-
-
- 2,588万円
-
熊本市北区清水新地2丁目
-
熊本電気鉄道「新須屋駅」まで徒歩11分
- 4LDK
-
-
-
新築一戸建て
2026.01.12
-
-
- 2,388万円
-
熊本市北区池田3丁目
-
熊本電気鉄道「池田駅」まで徒歩20分
- 4LDK
-
-
新築一戸建て
2026.01.12
-
-
新築一戸建て
2026.01.17
-
-
- 2,498万円
-
熊本市北区鶴羽田4丁目
-
熊本電気鉄道「三ツ石駅」まで徒歩13分
- 4LDK+S
-
-
新築一戸建て
2026.01.17
-
-
新築一戸建て
2026.01.17
-
-
- 2,498万円
-
熊本市北区鶴羽田4丁目
-
熊本電気鉄道「三ツ石駅」まで徒歩13分
- 4LDK+S
-
-
新築一戸建て
2026.01.17
-
-
新築一戸建て
2026.01.17
-
-
- 2,398万円
-
熊本市北区鶴羽田4丁目
-
熊本電気鉄道「三ツ石駅」まで徒歩13分
- 4LDK
-
-
新築一戸建て
2026.01.17
-
-
新築一戸建て
2026.01.28
-
-
- 2,388万円
-
熊本市北区梶尾町
-
熊本電気鉄道「三ツ石駅」まで徒歩31分
- 4LDK+S
-
-
新築一戸建て
2026.01.28
-
-
新築一戸建て
2026.01.28
-
-
- 2,488万円
-
熊本市北区清水東町
-
熊本電気鉄道「亀井駅」まで徒歩9分
- 4LDK+S
-
-
新築一戸建て
2026.01.28
-
-
新築一戸建て
2026.01.28
-
-
- 2,588万円
-
熊本市北区高平3丁目
-
熊本電気鉄道「亀井駅」まで徒歩11分
- 4LDK+S
-
-
新築一戸建て
2026.01.28
-
-
新築一戸建て
2026.01.28
-
-
- 2,488万円
-
熊本市北区高平3丁目
-
熊本電気鉄道「亀井駅」まで徒歩11分
- 4LDK+S
-
-
新築一戸建て
2026.01.28
-
-
新築一戸建て
2026.01.28
-
-
- 2,388万円
-
熊本市北区池田3丁目
-
熊本電気鉄道「池田駅」まで徒歩20分
- 4LDK
-
-
新築一戸建て
2026.01.28
-
-
新築一戸建て
2026.01.28
-
-
- 2,588万円
-
熊本市北区梶尾町
-
熊本電気鉄道「黒石駅」まで徒歩26分
- 4LDK
-
-
新築一戸建て
2026.01.28
-
-
新築一戸建て
2026.01.28
-
-
- 2,588万円
-
熊本市北区梶尾町
-
熊本電気鉄道「黒石駅」まで徒歩26分
- 4LDK+S
-
-
新築一戸建て
2026.01.28
-
-
新築一戸建て
2026.02.03
-
-
- 2,480万円
-
熊本市北区鶴羽田4丁目
-
熊本電気鉄道「須屋駅」まで徒歩18分
- 3LDK
-
-
新築一戸建て
2026.02.03
-
-
新築一戸建て
2026.02.04
-
-
- 2,498万円
-
熊本市北区植木町一木
-
JR鹿児島本線「植木駅」まで徒歩52分
- 4LDK+S
-
-
新築一戸建て
2026.02.04
-
-
新築一戸建て
2026.02.05
-
-
- 2,498万円
-
熊本市北区植木町一木
-
JR鹿児島本線「植木駅」まで徒歩52分
- 4LDK+S
-
-
新築一戸建て
2026.02.05
-
-
新築一戸建て
2026.02.05
-
-
- 2,498万円
-
熊本市北区龍田7丁目
-
JR豊肥本線「武蔵塚駅」まで徒歩30分
- 4LDK
-
-
新築一戸建て
2026.02.05
-
-
新築一戸建て
2026.02.05
-
-
- 2,498万円
-
熊本市北区植木町広住
-
JR鹿児島本線「植木駅」まで徒歩50分
- 4LDK
-
-
新築一戸建て
2026.02.05
-
-
新築一戸建て
2026.02.05
-
-
- 2,498万円
-
熊本市北区鶴羽田4丁目
-
熊本電気鉄道「三ツ石駅」まで徒歩13分
- 4LDK+S
-
-
新築一戸建て
2026.02.05
-
-
新築一戸建て
2026.02.05
-
-
- 2,498万円
-
熊本市北区鶴羽田4丁目
-
熊本電気鉄道「三ツ石駅」まで徒歩13分
- 4LDK+S
-
-
新築一戸建て
2026.02.05
-
-
新築一戸建て
2026.02.05
-
-
- 2,398万円
-
熊本市北区鶴羽田4丁目
-
熊本電気鉄道「三ツ石駅」まで徒歩13分
- 4LDK
-
-
新築一戸建て
2026.02.05
-
-
新築一戸建て
2026.02.05
-
-
- 2,498万円
-
熊本市北区龍田7丁目
-
JR豊肥本線「武蔵塚駅」まで徒歩30分
- 4LDK
-
-
新築一戸建て
2026.02.05
-
-
新築一戸建て
2026.02.08
-
-
- 2,499万円
-
熊本市北区鶴羽田4丁目
-
熊本電気鉄道「三ツ石駅」まで徒歩15分
- 4LDK+S
-
-
新築一戸建て
2026.02.08
- 熊本県
マイページ物件数 - 2,971件
最近見た物件
熊本県新築一戸建て新着物件
-
-

-
- 新築一戸建て
- 3,488万円
-
菊池郡大津町大字杉水
-
JR豊肥本線肥後大津駅
-
-
-

-
- 新築一戸建て
- 2,898万円
-
菊池郡大津町大字吹田
-
JR豊肥本線肥後大津駅
-
-
-

-
- 新築一戸建て
- 3,688万円
-
菊池郡菊陽町大字原水
-
JR豊肥本線原水駅
-
-
-

-
- 新築一戸建て
- 3,288万円
-
菊池郡菊陽町武蔵ヶ丘2丁目
-
JR豊肥本線武蔵塚駅
-
-
-

-
- 新築一戸建て
- 3,588万円
-
菊池郡菊陽町大字原水
-
JR豊肥本線原水駅
-
-
-

-
- 新築一戸建て
- 2,778万円
-
合志市御代志
-
熊本電気鉄道御代志駅
-
-
-

-
- 新築一戸建て
- 3,168万円
-
熊本市北区八景水谷1丁目
-
熊本電気鉄道堀川駅
-
- お近くの店舗を探す
-
おすすめ物件
-
-

-
- 新築一戸建て
- 3,690万円
-
熊本市中央区壺川1丁目
-
熊本電気鉄道藤崎宮前
-
-
-

-
- 新築一戸建て
- 2,580万円
-
熊本市南区御幸笛田1丁目
-
JR豊肥本線南熊本
-
-
-

-
- 新築一戸建て
- 3,090万円
-
熊本市東区月出7丁目
-
JR豊肥本線水前寺
-
-
-

-
- 新築一戸建て
- 3,298万円
-
熊本市北区清水新地1丁目
-
熊本電気鉄道堀川
-
-
-

-
- 新築一戸建て
- 2,590万円
-
熊本市南区御幸笛田1丁目
-
JR豊肥本線南熊本
-
-
-

-
- 新築一戸建て
- 3,288万円
-
熊本市西区田崎3丁目
-
熊本市健軍線田崎橋
-
-
-

-
- 新築一戸建て
- 3,890万円
-
熊本市中央区壺川1丁目
-
熊本電気鉄道藤崎宮前
-
-
-

-
- 新築一戸建て
- 3,280万円
-
熊本市東区榎町
-
熊本市健軍線健軍町
-



























担当エージェント:堀川 颯太
【月々の支払い例】
2500万円借り入れの場合
月々50,331円(頭金・ボーナス払いなし)
金利0.780%の場合(SBI新生銀行、金利優遇有)
変動金利 返済期間50年
※あくまで一例。条件有。
【周辺環境】
・高平台小学校まで徒歩10分(約770m)
・熊本市立 京陵中学校清水が丘分校まで徒歩19分(約1510m)
・高平幼稚園まで徒歩7分(約500m)
・セブン-イレブン 熊本清水バイパス店まで徒歩6分(約430m)
・ゆめマート 清水まで徒歩5分(約390m)
・城北胃腸科内科クリニックまで徒歩3分(約230m)
・熊本八景水谷郵便局まで徒歩11分(約870m)
・熊本市 北区役所 清水まちづくりセンターまで徒歩8分(約630m)
・肥後銀行 北熊本支店 熊本機能病院出張所まで徒歩13分(約1030m)
・津浦公園まで徒歩16分(約1260m)
いつでもお気軽にご連絡ください☆彡
お問い合わせは『株式会社Remado』まで♪