三郷彦糸1丁目 新築戸建 3号棟
NEW 10.25掲載情報更新日:2025年10月25日 次回更新予定日:2025年11月08日
- 3,180万円
-
- 借入ご希望金額
万円 - 借入期間
年 - 借入金利
% - 月々のお支払い金額
円
- 借入ご希望金額
※ 月々のお支払例は目安の試算となりますので、実際の金額とは異なる場合がございます。詳しくは店舗までお問合わせください。
- 三郷市彦糸1丁目
-
JR武蔵野線『新三郷』 徒歩34分 (約2700m)
JR武蔵野線『吉川美南』 徒歩32分 (約2500m)
三郷彦糸1丁目 新築戸建 3号棟一戸建て | 物件情報
■広々4LDK■インナーバルコニー付き■全居室収納付き
開放的な対面キッチンやインナーバルコニーが、家族の時間をもっと豊かにします
物件の設備
- 公営水道
- 下水道
- 公共下水
- 都市ガス
- 浄水器
- コンロ三口
- グリル
- ガスオーブン
- バス
- ユニットバス
- バス1坪以上
- 追焚機能
- 浴室暖房
- 浴室乾燥機
- 浴室に窓
- トイレ
- トイレ2箇所
- 室内洗濯機置場
- 洗髪洗面化粧台
- ダブルロックキー
- 非接触型ICカードキー
- 静脈認証
- モニタ付インターホン
- 火災警報器/報知機
- LDK15畳以上
- 複層ガラス
- シャッター雨戸
- クローゼット2箇所
- ウォークインクローゼット
- バルコニー
- ワイドバルコニー
- 南面バルコニー
物件の特徴
- 全室南向
- 前道6m以上
- スーパーが近い
- 2階建
- 外壁サイディング
物件詳細情報
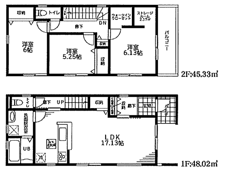
| 価格 | 3,180万円 | 間取り | 3LDK |
|---|---|---|---|
| 物件種別 | 新築一戸建て | ||
| 所在地 | 埼玉県三郷市彦糸1丁目 | ||
| アクセス |
|
||
| 建物面積 | 公93.35㎡ | 駐車場 | あり 普通:2台 |
| 築年月 | 2025年(令和7年)12月予定 | 建築確認 | 第25UDHW建05515号 |
| 建物構造 | 木造 2階建 | 工法 | |
| 主要採光 | 南向 | バルコニー | 南向5.40㎡ |
| 保証・評価 | |||
| 土地面積 | 公143.52㎡(43.41坪) | 接道 | 東側(公道)幅 約6.0m 間口 約3.00m |
| 私道 | セットバック | ||
| 地目 | 宅地 | 地勢 | 平坦 |
| 権利 | 所有権 |
||
| 都市計画 | 市街化区域 |
用途地域 | 1種低層 |
| 建ぺい/容積率 | 60% / 100% | 土地国土法 | |
| 許可番号 | 建築基準法 | ||
| 法令制限 | |||
| 小学区 | 彦糸小学校 徒歩14分 (約1100m) | 中学区 | 彦糸中学校 徒歩14分 (約1100m) |
| 現況 | 建築中 | 引渡 | 期日指定:2025年12月 |
| その他費用 | |||
| 周辺環境 | ミニストップ三郷彦音店 徒歩5分 (約400m) 彦成保育所 徒歩10分 (約750m) ドラッグセイムス 吉川けやき通り店 徒歩10分 (約760m) 三愛会総合病院 徒歩11分 (約840m) セブンイレブン 三郷彦成2丁目店 徒歩13分 (約980m) 三郷市立彦糸中学校 徒歩15分 (約1170m) 三郷市立彦糸小学校 徒歩16分 (約1210m) ドラッグストアセキ 中曽根店 徒歩18分 (約1420m) 美南4丁目公園 徒歩18分 (約1400m) 中曽根公園 徒歩17分 (約1330m) |
||
| 備考 | |||
| 物件番号 | 4462432 | 取引態様 | 媒介 |
取扱店舗情報
ハウスドゥ 吉川駅前 不二光エステート株式会社 店舗詳細ページへ
| 電話番号 | 048-940-2747 |
|---|---|
| 所在地 | 〒342-0045 埼玉県吉川市木売1丁目9番地4-101 |
| 営業時間 | 10:00~18:30 |
| 定休日 | 水曜日、GW、夏季、年末年始 |
| 宅建免許番号 | 埼玉県知事(1)第25510号 |
| アクセス | 店舗への地図はこちら |

来店ご予約
埼玉県三郷市で価格が似ている物件はこちら
- 埼玉県
マイページ物件数 - 3,698件
最近見た物件
-
-

-
- 中古マンション
- 2,490万円
-
熊本市中央区国府3丁目
-
JR豊肥本線新水前寺
-
-
-

-
- 中古一戸建て
- 1億5,300万円
-
名古屋市中村区二ツ橋町1丁目
-
名古屋市桜通線太閤通
-
埼玉県新築一戸建て新着物件
- お近くの店舗を探す
-
おすすめ物件
-
-

-
- 新築一戸建て
- 2,999万円
-
上尾市藤波2丁目
-
JR高崎線桶川
-
-
-

-
- 新築一戸建て
- 3,599万円
-
桶川市大字上日出谷
-
JR高崎線桶川
-
-
-

-
- 新築一戸建て
- 3,699万円
-
蕨市南町2丁目
-
JR京浜東北・根岸線西川口
-
-
-

-
- 新築一戸建て
- 4,480万円
-
新座市東3丁目
-
東武東上線志木
-
-
-

-
- 新築一戸建て
- 4,080万円
-
新座市新座1丁目
-
東武東上線志木
-
-
-

-
- 新築一戸建て
- 4,280万円
-
吉川市大字保
-
JR武蔵野線吉川
-
-
-

-
- 新築一戸建て
- 3,790万円
-
戸田市美女木1丁目
-
JR埼京線武蔵浦和
-
-
-

-
- 新築一戸建て
- 4,480万円
-
蕨市錦町2丁目
-
JR埼京線戸田
-
-
-

-
- 新築一戸建て
- 3,780万円
-
川口市元郷5丁目
-
埼玉高速鉄道川口元郷
-
-
-

-
- 新築一戸建て
- 3,990万円
-
三郷市幸房
-
JR武蔵野線三郷
-



























担当エージェント:島田 諭
【今だけ!新築戸建×仲介手数料0円キャンペーン中!!】
新築戸建をご検討中の方へ。当社では、仲介手数料“0円”でご案内しております。初期費用を抑えながら、理想のマイホームを実現。丁寧なサポートで、安心の住まい探しをお手伝いします。仲介手数料0円でご案内できる物件を多数取り揃えております。