高崎市下之城町の新築戸建
NEW 10.26掲載情報更新日:2025年10月25日 次回更新予定日:2025年11月08日
- 4,380万円
- 
                    - 借入ご希望金額
 万円
-  借入期間
 年
-  借入金利
 %
-  月々のお支払い金額
 円
 
- 借入ご希望金額
※ 月々のお支払例は目安の試算となりますので、実際の金額とは異なる場合がございます。詳しくは店舗までお問合わせください。
- 高崎市下之城町
- 
                    JR高崎線『倉賀野』 徒歩30分 (約2400m)
 JR高崎線『高崎』 徒歩37分 (約2960m)
 
高崎市下之城町一戸建て | 物件情報
光あふれる平屋で、家族時間がもっと心地よく
             
        
            穏やかな住宅街にたたずむ、陽だまりの平屋。南向きのリビングには大きな窓から光が差し込み、家族の笑い声がふんわり広がります。キッチンにはパントリーがあり、まとめ買いした食品もすっきり収納。リビング横のファミリークロークには、季節の服やお子さまの学用品もひとまとめにでき、片づけが自然と習慣になります。各居室にも収納をしっかり確保しているので、生活スペースをゆったり使えるのも魅力。休日はリビングで映画を見たり、ウッドデッキに椅子を出してティータイムを楽しんだり。平屋ならではの動線の良さが、家族の時間をいっそう心地よくしてくれます。
――日々の暮らしに“ちょうどいい快適さ”が詰まった住まいです。        
物件の設備
- 電気
- 公営水道
- 公共下水
- 都市ガス
- 食品庫
- コンロ三口
- システムキッチン
- 浴室に窓
- トイレ2箇所
- 室内洗濯機置場
- 洗髪洗面化粧台
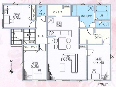
- LDK15畳以上
- LDK18畳以上
- クローゼット
- ウォークスルークローゼット
- 床下収納
- 全居室収納
物件の特徴
- 南向
- スーパーが近い
- 通風良好
- 陽当り良好
- 角地
物件詳細情報
| 価格 | 4,380万円 | 間取り | 3LDK | 
|---|---|---|---|
| 物件種別 | 新築一戸建て | ||
| 所在地 | 群馬県高崎市下之城町 | ||
| アクセス | 
 | ||
| 建物面積 | 公92.74㎡ | 駐車場 | あり 普通:3台 | 
| 築年月 | 2026年(令和8年)02月予定 | 建築確認 | 第25UD1W建06809号 | 
| 建物構造 | 木造 1階建 | 工法 | |
| 主要採光 | 南向 | バルコニー | |
| 保証・評価 | |||
| 土地面積 | 公258.25㎡(78.12坪) | 接道 | |
| 私道 | セットバック | ||
| 地目 | 田 | 地勢 | |
| 権利 | 所有権 | ||
| 都市計画 | 市街化区域 | 用途地域 | 準工業 | 
| 建ぺい/容積率 | 60% / 200% | 土地国土法 | |
| 許可番号 | 建築基準法 | ||
| 法令制限 | 法22条区域 | ||
| 小学区 | 佐野小学校 徒歩10分 (約765m) | 中学区 | 佐野中学校 徒歩22分 (約1731m) | 
| 現況 | 建築中 | 引渡 | 未記入 | 
| その他費用 | |||
| 備考 | ■周辺環境■ セブンイレブン 高崎上佐野町店 距離:997m コメリハード&グリーン倉賀野店 距離:528m ウエルシア高崎上佐野店 距離:383m クスリのアオキ 上佐野店 距離:916m | ||
| 物件番号 | 4465291 | 取引態様 | 媒介 | 
取扱店舗情報
ハウスドゥ 高崎倉賀野 株式会社未来ワーク 店舗詳細ページへ
| 電話番号 | 027-386-4447 | 
|---|---|
| 所在地 | 〒370-1201 群馬県高崎市倉賀野町4573-1 | 
| 営業時間 | 10:00~18:00 | 
| 定休日 | 水曜日 | 
| 宅建免許番号 | 群馬県知事(1)第7819号 | 
| アクセス | 店舗への地図はこちら | 

来店ご予約
群馬県高崎市で価格が似ている物件はこちら
- 群馬県
 マイページ物件数
- 2,528件
最近見た物件
- 
                        - 
									                                     
- 
                                - 新築一戸建て
- 3,799万円
- 
                                        
                                            静岡市駿河区中島 
- 
                                        JR東海道本線静岡 
 
 
- 
									                                    
- 
                        - 
									                                     
- 
                                - 中古一戸建て
- 2,200万円
- 
                                        
                                            鹿児島市原良4丁目 
- 
                                        かけごしバス停 
 
 
- 
									                                    
- 
                        - 
									                                     
- 
                                - 中古マンション
- 5,980万円
- 
                                        
                                            名古屋市東区芳野1丁目 
- 
                                        名鉄瀬戸線尼ヶ坂 
 
 
- 
									                                    
群馬県新築一戸建て新着物件
- お近くの店舗を探す
- 
            
            
            
 
     
                         
                         
                         
                    







 
                

 
                 
             
                    

 
                                            
 
                                             
                                             
                                             
                                             
                                             
                                             
                                             
                                             
                                     
                                            











 
						 
						
担当エージェント:田村 彩
ハウスドゥ高崎倉賀野は、感謝を忘れず頂いたご縁に一生懸命対応させていただきます♪お気軽にご相談ください♪