岡崎市中島町字戸井の新築戸建
掲載情報更新日:2026年03月02日 次回更新予定日:2026年03月16日
- 2,490万円
-
- 借入ご希望金額
万円 - 借入期間
年 - 借入金利
% - 月々のお支払い金額
円
- 借入ご希望金額
※ 月々のお支払例は目安の試算となりますので、実際の金額とは異なる場合がございます。詳しくは店舗までお問合わせください。
- 岡崎市中島町字戸井
-
JR東海道本線『岡崎』 バス乗車16分 91岡崎・西尾線 南中島 停 徒歩3分 (約240m)
愛知環状鉄道『岡崎』 車16分(約7.6km)
名鉄西尾線『南桜井』 車13分(約6.2km)
岡崎市中島町字戸井一戸建て | 物件情報
【即見学、現地待ち合わせできます】■月6万円台■六ツ美南部小・六ツ美中■キャンペーン開催中■
☆★ハウスドゥ幸田限定プレゼント★☆
エアコン1台設置!又は豊富なオプションカタログから「選べる5万円分」プレゼント!
2026/3/31までにご成約のお客様限定!
★イチオシポイント★
◎住宅性能評価・耐震等級3を取得
◎防犯カメラ&モニター付きインターホン
◎全居室複層ガラス!
【返済例】
月々62,472円
2590万円借入、変動金利0.75%、40年、ボーナス払い0円。別途諸費用。
※月々のお支払いはボーナス有無や、ご返済年数など様々なプランをご相談できます!
○ご見学予約は○
フリーダイヤル 【0120-222-651】
お気軽にお問い合わせくださいませ♪
【学校】
◎六ツ美南部小学校 徒歩約24分
◎六ツ美中学校 徒歩約52分
◎JR東海道本線 岡崎駅
物件の設備
- 電気
- 上水道
- 公営水道
- 下水道
- 公共下水
- プロパンガス
- 個別プロパン
- 給湯
- 浄水器
- カウンターキッチン
- システムキッチン
- バス
- ユニットバス
- オートバス
- 追焚機能
- 浴室乾燥機
- 浴室に窓
- トイレ
- トイレ2箇所
- 温水洗浄便座
- 室内洗濯機置場
- 洗髪洗面化粧台
- 洗面所独立
- 人感照明センサー
- ディンプルキー
- モニタ付インターホン
- 防犯カメラ
- 火災警報器/報知機
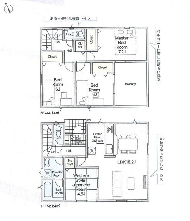
- LDK18畳以上
- 和室
- 2面採光
- 複層ガラス
- 全居室複層ガラス
- フローリング
- 24時間換気システム
- クローゼット
- クローゼット3箇所
- 床下収納
- 全居室収納
- シューズWIC
- シューズボックス
- ルーフバルコニー
- ワイドバルコニー
- インナーバルコニー
物件の特徴
- 南向
- ノンホルムアルデヒド
- 地盤調査済
- 耐震構造
- 制震構造
- 始発駅
- 3沿線以上利用可
- 閑静な住宅街
- 田園風景
- 通風良好
- 陽当り良好
- 2階建
- 平坦地
- 耐震基準適合証明書有
- フラット35
- S適合証明書
- 即入居可
- フラット35Sに対応
物件詳細情報
| 価格 | 2,490万円 | 間取り | 4LDK |
|---|---|---|---|
| 物件種別 | 新築一戸建て | ||
| 所在地 | 愛知県岡崎市中島町字戸井 3号棟 | ||
| アクセス |
|
||
| 建物面積 | 公96.38㎡ | 駐車場 | あり 普通:1台 軽:1台 |
| 築年月 | 2025年(令和7年)12月築 | 建築確認 | 第HPA-25-10847-1号 |
| 建物構造 | 木造 アスファルトシングル葺 2階建 | 工法 | |
| 主要採光 | 南向 | バルコニー | 9.72㎡ |
| 保証・評価 | フラット35S適合証明書・耐震基準適合証明書 |
||
| 分譲情報 | 【販売戸数】:3戸 【価格】:2,890万円 ~2,990万円 【土地面積】:125.39㎡ ~127.68㎡ |
||
| 土地面積 | 公127.65㎡(38.61坪) | 接道 | 東側(公道)幅 約4.5m 間口 約9.10m 北側(公道)幅 約4.5m 間口 約7.20m |
| 私道 | セットバック | 無 | |
| 地目 | 宅地 | 地勢 | |
| 権利 | 所有権 |
||
| 都市計画 | 市街化区域 |
用途地域 | 2種中高 |
| 建ぺい/容積率 | 60% / 180% | 土地国土法 | |
| 許可番号 | 建築基準法 | ||
| 法令制限 | 宅地造成工事規制区域・法22条区域・容積率:前面道路幅員制限・第1種高度地区(18m) | ||
| 小学区 | 六ツ美南部小学校 徒歩24分 (約1893m) | 中学区 | 六ツ美中学校 徒歩52分 (約4100m) |
| 現況 | 完工済 | 引渡 | 即 |
| その他費用 | |||
| 周辺環境 | セブンイレブン岡崎中島店 徒歩4分 (約290m) フェルナ中島店 徒歩5分 (約380m) ながら幼稚園 徒歩8分 (約630m) マグフーズ中島店 徒歩9分 (約660m) 中島保育園 徒歩8分 (約640m) ローソンストア100岡崎中島町店 徒歩15分 (約1170m) JA西三河 三和支店 徒歩16分 (約1260m) ゲンキー中島上町店 徒歩20分 (約1580m) 六ッ美南部小学校 徒歩25分 (約1970m) |
||
| 備考 | ※TVアンテナ・網戸・居室照明・カーテンレール・雨戸別途 ※敷地内電柱及び支線が入る場合がある ◎子育てグリーン住宅対象!(諸条件有) |
||
| 物件番号 | 4467897 | 取引態様 | 媒介 |
取扱店舗情報
ハウスドゥ 幸田 株式会社アールクローバー 店舗詳細ページへ
| 電話番号 | 0564-73-1620 |
|---|---|
| 所在地 | 〒444-0117 愛知県額田郡幸田町大字相見字沖原69番地 アヴニール相見101号室 |
| 営業時間 | 9:00~18:00 |
| 定休日 | 水曜日 |
| 宅建免許番号 | 愛知県知事(1)第26226号 |
| アクセス | 店舗への地図はこちら |

来店ご予約
愛知県岡崎市で価格が似ている物件はこちら
- 愛知県
マイページ物件数 - 32,313件
最近見た物件
-
-

-
- 中古一戸建て
- 1,480万円
-
青森市大字筒井字八ツ橋
-
青い森鉄道筒井
-
-
-

-
- 中古一戸建て
- 880万円
-
玉野市長尾
-
「長尾馬継」バス停
-
愛知県新築一戸建て新着物件
-
-

-
- 新築一戸建て
- 3,340万円
-
春日井市林島町4丁目
-
JR中央本線春日井駅
-
-
-

-
- 新築一戸建て
- 4,499万円
-
刈谷市小垣江町清水
-
名鉄三河線小垣江駅
-
-
-

-
- 新築一戸建て
- 3,340万円
-
春日井市林島町4丁目
-
JR中央本線春日井駅
-
-
-

-
- 新築一戸建て
- 3,190万円
-
春日井市林島町4丁目
-
JR中央本線春日井駅
-
-
-

-
- 新築一戸建て
- 3,290万円
-
春日井市林島町4丁目
-
JR中央本線春日井駅
-
-
-

-
- 新築一戸建て
- 2,999万円
-
刈谷市泉田町大久屋
-
名鉄名古屋本線富士松駅
-
-
-

-
- 新築一戸建て
- 4,980万円
-
名古屋市緑区桶狭間巻山
-
名鉄名古屋本線有松駅
-
- お近くの店舗を探す
-
おすすめ物件
-
-

-
- 新築一戸建て
- 3,300万円
-
豊田市白山町七曲
-
名鉄豊田線豊田市
-
-
-

-
- 新築一戸建て
- 2,890万円
-
あま市坂牧北浦
-
名鉄津島線甚目寺
-
-
-

-
- 新築一戸建て
- 6,980万円
-
名古屋市千種区豊年町
-
名古屋市桜通線車道
-
-
-

-
- 新築一戸建て
- 3,990万円
-
名古屋市南区滝春町
-
名鉄常滑線大同町
-
-
-

-
- 新築一戸建て
- 2,490万円
-
愛西市大井町浦田面
-
JR関西本線永和
-
-
-

-
- 新築一戸建て
- 2,590万円
-
高浜市稗田町5丁目
-
名鉄三河線高浜港
-
-
-

-
- 新築一戸建て
- 3,390万円
-
高浜市湯山町8丁目
-
名鉄三河線三河高浜
-
-
-

-
- 新築一戸建て
- 2,690万円
-
津島市江東町3丁目
-
名鉄津島線津島
-
-
-

-
- 新築一戸建て
- 3,790万円
-
半田市亀崎高根町8丁目
-
JR武豊線亀崎
-
-
-

-
- 新築一戸建て
- 2,680万円
-
碧南市善明町1丁目
-
名鉄三河線碧南中央
-































【ハウスドゥ幸田】
■何を相談してよいか分からなくても大丈夫♪
■ライフプランに寄り添ったご提案♪
■自己資金0円で購入可能な方法も♪
■支払いに不安な方もお気軽にどうぞ♪