日光市森友の新築戸建
NEW 10.30掲載情報更新日:2025年10月21日 次回更新予定日:2025年11月04日
- 1,990万円
-
- 借入ご希望金額
万円 - 借入期間
年 - 借入金利
% - 月々のお支払い金額
円
- 借入ご希望金額
※ 月々のお支払例は目安の試算となりますので、実際の金額とは異なる場合がございます。詳しくは店舗までお問合わせください。
- 日光市森友
-
東武日光線『下今市』 徒歩44分 (約3500m)
JR日光線『今市』 徒歩53分 (約4200m)
東武鬼怒川線『大谷向』 徒歩49分 (約3900m)
日光市森友一戸建て | 物件情報
物件の設備
- 電気
- 上水道
- 公営水道
- 下水道
- 公共下水
- プロパンガス
- 個別プロパン
- 浄水器
- カウンターキッチン
- システムキッチン
- ユニットバス
- 追焚機能
- 浴室乾燥機
- トイレ2箇所
- 温水洗浄便座
- 洗髪洗面化粧台
- 洗面所独立
- モニタ付インターホン
- 床下収納
物件の特徴
- 2階建
物件詳細情報
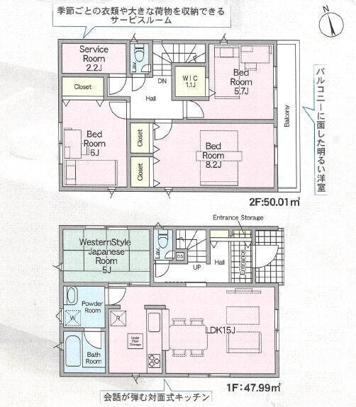
| 価格 | 1,990万円 | 間取り | 4LDK |
|---|---|---|---|
| 物件種別 | 新築一戸建て | ||
| 所在地 | 栃木県日光市森友 | ||
| アクセス |
|
||
| 建物面積 | 公98㎡ | 駐車場 | あり 普通:3台 |
| 築年月 | 2025年(令和7年)09月築 | 建築確認 | HPAー25ー05402ー1 |
| 建物構造 | 木造 2階建 | 工法 | 軸組工法 |
| 主要採光 | バルコニー | ||
| 保証・評価 | |||
| 土地面積 | 公164.12㎡(49.64坪) | 接道 | 東側(公道)幅 約4.0m 間口 約10.34m |
| 私道 | セットバック | ||
| 地目 | 宅地 | 地勢 | 平坦 |
| 権利 | 所有権 |
||
| 都市計画 | 非線引区域 |
用途地域 | 1種住居 |
| 建ぺい/容積率 | 60% / 200% | 土地国土法 | |
| 許可番号 | 建築基準法 | ||
| 法令制限 | 水防法・景観法・法22条区域 | ||
| 小学区 | 大室小学校 徒歩28分 (約2200m) | 中学区 | 今市中学校 徒歩22分 (約1700m) |
| 現況 | 完工済 | 引渡 | 期日指定:2025年09月 |
| その他費用 | |||
| 周辺環境 | 大室小学校 徒歩28分 (約2180m) 日光市立今市中学校 徒歩22分 (約1710m) ローソン今市工業高校前店 徒歩10分 (約760m) ドラッグストアコスモス森友店 徒歩13分 (約1030m) しばやま保育園 徒歩19分 (約1460m) たいらや今市店 徒歩24分 (約1920m) |
||
| 備考 | フラット35S金利Aプラン | ||
| 物件番号 | 4468883 | 取引態様 | 媒介 |
取扱店舗情報
| 電話番号 | 028-678-2888 |
|---|---|
| 所在地 | 〒320-0826 栃木県宇都宮市西原町466-1 |
| 営業時間 | 10:00~18:30 |
| 定休日 | 水曜日 |
| 宅建免許番号 | 栃木県知事(2)第5075号 |
| アクセス | 店舗への地図はこちら |

来店ご予約
- 栃木県
マイページ物件数 - 6,640件
最近見た物件
-
-

-
- 新築一戸建て
- 2,790万円
-
さくら市櫻野
-
JR東北本線氏家
-
-
-

-
- 新築一戸建て
- 3,099万円
-
下都賀郡壬生町幸町1丁目
-
東武宇都宮線おもちゃのまち
-
栃木県新築一戸建て新着物件
- お近くの店舗を探す
-

























