習志野市香澄3丁目の新築戸建
NEW 10.30掲載情報更新日:2025年10月24日 次回更新予定日:2025年11月07日
- 5,490万円
- 
                    - 借入ご希望金額
 万円
-  借入期間
 年
-  借入金利
 %
-  月々のお支払い金額
 円
 
- 借入ご希望金額
※ 月々のお支払例は目安の試算となりますので、実際の金額とは異なる場合がございます。詳しくは店舗までお問合わせください。
- 習志野市香澄3丁目
- 
                    JR京葉線『新習志野』 徒歩21分 (約1680m)
 JR総武・中央緩行線『幕張本郷』 徒歩25分 (約2000m)
 
習志野市香澄3丁目一戸建て | 物件情報
★近隣モデルハウス即日ご案内可能 ★資料請求のみ大歓迎 ★カースペース2台
             
        
            ◇エアコン1台プレゼント中◇
本物件をご成約のお客様へプレゼント!
※本プレゼントはご成約物件のみが対象です。
※ご成約時期によりモデルが変更となる場合がございます。
※取付費用別途        
物件の設備
- 上水道
- 公営水道
- 下水道
- 都市ガス
- コンロ三口
- システムキッチン
- バス
- バス1坪以上
- 追焚機能
- 浴室乾燥機
- 浴室に窓
- トイレ
- トイレ2箇所
- 温水洗浄便座
- 室内洗濯機置場
- 洗髪洗面化粧台
- 洗面所独立
- モニタ付インターホン
- LDK15畳以上
- フローリング
- 全室フローリング
- クローゼット
- クローゼット2箇所
- ウォークインクローゼット
- シューズボックス
物件の特徴
- 小学校徒歩10分以内
- 2階建
物件詳細情報
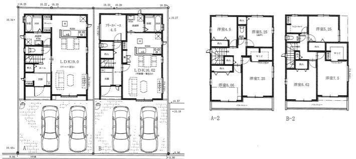
| 価格 | 5,490万円 | 間取り | 3LDK | 
|---|---|---|---|
| 物件種別 | 新築一戸建て | ||
| 所在地 | 千葉県習志野市香澄3丁目1-24 | ||
| アクセス | 
 | ||
| 建物面積 | 103.09㎡ | 駐車場 | なし | 
| 築年月 | 2026年(令和8年)02月予定 | 建築確認 | HPA-25-12336-1号 | 
| 建物構造 | 木造 2階建 | 工法 | |
| 主要採光 | バルコニー | ||
| 保証・評価 | |||
| 土地面積 | 114.88㎡(34.75坪) | 接道 | |
| 私道 | セットバック | ||
| 地目 | 宅地 | 地勢 | |
| 権利 | 所有権 | ||
| 都市計画 | 市街化区域 | 用途地域 | 1種低層 | 
| 建ぺい/容積率 | 50% / 100% | 土地国土法 | |
| 許可番号 | 建築基準法 | ||
| 法令制限 | |||
| 小学区 | 香澄小学校 徒歩3分 (約220m) | 中学区 | 第七中学校 徒歩12分 (約930m) | 
| 現況 | 建築中 | 引渡 | 期日指定:2026年02月上旬 | 
| その他費用 | |||
| 周辺環境 | 香澄小学校 徒歩3分 (約220m) 袖ヶ浦東小学校 徒歩15分 (約1160m) かすみ保育園 徒歩11分 (約850m) 幕張豊砂駅 徒歩40分 (約3200m) 習志野市立第七中学校 徒歩12分 (約930m) 幕張海浜こども園 徒歩16分 (約1250m) 袖ケ浦運動公園 徒歩18分 (約1390m) | ||
| 備考 | |||
| 物件番号 | 4469540 | 取引態様 | 媒介 | 
取扱店舗情報
ハウスドゥ 東習志野 株式会社Delta company 店舗詳細ページへ
| 電話番号 | 047-411-6912 | 
|---|---|
| 所在地 | 〒275-0001 千葉県習志野市東習志野5丁目19-17 宮澤マンションC号室 | 
| 営業時間 | 平日9:30~18:30 土日祝日8:30~17:30 | 
| 定休日 | 水曜日 | 
| 宅建免許番号 | 千葉県知事(1)第18367号 | 
| アクセス | 店舗への地図はこちら | 

来店ご予約
千葉県習志野市で価格が似ている物件はこちら
- 千葉県
 マイページ物件数
- 2,851件
最近見た物件
千葉県新築一戸建て新着物件
- 
				- 
							                             
- 
						- 新築一戸建て
- 3,899万円
- 
								
									八千代市八千代台北17丁目 
- 
                                京成本線京成大和田駅 
 
 
- 
							                            
- 
				- 
							                             
- 
						- 新築一戸建て
- 2,590万円
- 
								
									鎌ケ谷市東鎌ケ谷2丁目 
- 
                                京成電鉄松戸線鎌ヶ谷大仏駅 
 
 
- 
							                            
- 
				- 
							                             
- 
						- 新築一戸建て
- 3,990万円
- 
								
									千葉市稲毛区天台1丁目 
- 
                                千葉都市モノレール天台駅 
 
 
- 
							                            
- 
				- 
							                             
- 
						- 新築一戸建て
- 6,480万円
- 
								
									市川市香取1丁目 
- 
                                東京メトロ東西線行徳駅 
 
 
- 
							                            
- 
				- 
							                             
- 
						- 新築一戸建て
- 6,880万円
- 
								
									市川市香取1丁目 
- 
                                東京メトロ東西線行徳駅 
 
 
- 
							                            
- 
				- 
							                             
- 
						- 新築一戸建て
- 4,490万円
- 
								
									松戸市三矢小台4丁目 
- 
                                北総鉄道矢切駅 
 
 
- 
							                            
- 
				- 
							                             
- 
						- 新築一戸建て
- 5,490万円
- 
								
									習志野市香澄3丁目 
- 
                                JR京葉線新習志野駅 
 
 
- 
							                            
- お近くの店舗を探す
- 
            
            
            
おすすめ物件
- 
				- 
														 
- 
						- 新築一戸建て
- 4,280万円
- 
								
									流山市駒木台 
- 
								つくばエクスプレス柏の葉キャンパス 
 
 
- 
														
- 
				- 
														 
- 
						- 新築一戸建て
- 4,499万円
- 
								
									松戸市平賀 
- 
								JR千代田・常磐緩行線北小金 
 
 
- 
														
- 
				- 
														 
- 
						- 新築一戸建て
- 5,599万円
- 
								
									流山市鰭ケ崎 
- 
								つくばエクスプレス南流山 
 
 
- 
														
- 
				- 
														 
- 
						- 新築一戸建て
- 4,999万円
- 
								
									流山市東初石1丁目 
- 
								東武野田線初石 
 
 
- 
														
- 
				- 
														 
- 
						- 新築一戸建て
- 4,280万円
- 
								
									流山市大字鰭ケ崎 
- 
								JR武蔵野線南流山 
 
 
- 
														
- 
				- 
														 
- 
						- 新築一戸建て
- 3,680万円
- 
								
									成田市寺台 
- 
								JR成田線成田 
 
 
- 
														
- 
				- 
														 
- 
						- 新築一戸建て
- 8,780万円
- 
								
									流山市野々下3丁目 
- 
								東武野田線豊四季 
 
 
- 
														
- 
				- 
														 
- 
						- 新築一戸建て
- 3,680万円
- 
								
									成田市寺台 
- 
								JR成田線成田 
 
 
- 
														
- 
				- 
														 
- 
						- 新築一戸建て
- 3,780万円
- 
								
									成田市寺台 
- 
								JR成田線成田 
 
 
- 
														
- 
				- 
														 
- 
						- 新築一戸建て
- 4,980万円
- 
								
									流山市野々下5丁目 
- 
								東武野田線豊四季 
 
 
- 
														
 
     
                         
                         
                         
                    







 
                




 
                 
             
                    

 
                                            
 
                                             
                                             
                                             
                                             
                                             
                                             
                                     
                                             
                                            


 
						 
						
□当社は住宅ローンに『自信』があります。是非一度ご相談下さい□
「他社で断られた」 「頭金が無いからな」
「他の返済があるからな」
住宅ローンがご不安な方もお気軽にご相談下さい♪
親身にご相談させていただき、お客様に最適な金融機関をご紹介いたします。
◇頭金0円からのご購入可能(諸費用もOK)
◇他の物件も見てみたい!などお気軽にお申し付け下さい♪
■現地案内会
平日のご見学もお電話1本で駆けつけます。
047-411-6912までお電話下さい。
■ご案内方法
ご来店できないお客様は、ご自宅への送迎やご指定の場所で待ち合わせてご案内。ご希望に合わせ周辺情報もご案内!
■キッズスペース
お子様が退屈しないようDVD、ぬりえ、おもちゃなどをご用意していますので安心してご来店ください。
■専用駐車場
お客様専用駐車場完備!お気軽にご来店お待ちいたしております。
■売却査定買取
仲介による売却はもちろん、ご近所に知られたくない、急いで売却したいときには高額査定で買取します!!
地元密着の情報量とフットワークの良さでお手伝いさせて頂きます。