- TOP>
- 中国>
- 島根県のイベント・オープンハウス情報>
- 新築建売完成見学会【ドゥハウス】
【建売】ステラビレッジ1号地
掲載情報更新日:2026年03月26日 次回更新予定日:2026年04月09日
- 3,450万円
-
- 借入ご希望金額
万円 - 借入期間
年 - 借入金利
% - 月々のお支払い金額
円
- 借入ご希望金額
※ 月々のお支払例は目安の試算となりますので、実際の金額とは異なる場合がございます。詳しくは店舗までお問合わせください。
- 松江市東出雲町揖屋
-
広域生活『新町』 徒歩2分 (約156m)
【建売】ステラビレッジ1号地一戸建て | 物件情報
LDK+和室、WIC・納戸・室内物干し有の充実の間取り。スーパーやコンビニ飲食店も徒歩圏内で生活便利
ガスト東出雲店 約740m(徒歩10分)
最寄りセブンイレブン 約840m(徒歩11分)
ザ・ビック東出雲店 約970m(徒歩13分)
アイパルテ東出雲店 約970m(徒歩13分)
ホック揖屋店 約1060m(徒歩14分)
標準仕様が高性能
・ZEHオリエンテッド基準:高断熱、省エネ
・耐震等級3:地震保険50%割引
・劣化対策等級3:75~90年の耐久性
・光セラ外壁:365日お掃除不要!紫外線に強く劣化しにくい高耐候
・見た目の美しい瓦屋根
物件の設備
- 電気
- オール電化
- 公営水道
- 公共下水
- 側溝
- 給湯
- 浄水器
- 食器洗浄乾燥機
- IHクッキングヒータ
- コンロ三口
- グリル
- カウンターキッチン
- システムキッチン
- 独立キッチン
- オープンキッチン
- ユニットバス
- オートバス
- バス1坪以上
- 追焚機能
- 浴室暖房
- 浴室乾燥機
- 浴室に窓
- トイレ
- トイレ2箇所
- 温水洗浄便座
- 室内洗濯機置場
- 洗髪洗面化粧台
- 洗面所独立
- エアコン
- 照明器具
- 省エネ給湯器
- ディンプルキー
- ダブルロックキー
- 非接触型ICカードキー
- モニタ付インターホン
- 火災警報器/報知機
- 和室
- 全居室複層ガラス
- フローリング
- フラットフロア
- 網戸
- クローゼット3箇所
- ウォークインクローゼット
- 床下収納
- 全居室収納
- シューズボックス
物件の特徴
- 高断熱住宅
- 地盤調査済
- 耐震構造
- 前道6m以上
- スーパーが近い
- 閑静な住宅街
- 市街地が近い
- 通風良好
- 陽当り良好
- 2階建
- 前面棟無
- 平坦地
- 開発分譲地内
- 外壁サイディング
- バリアフリー
- 設計住宅性能評価付
- 建築確認完了検査済証
- 新築
- 増改築設計図書
- BELS/省エネ基準適合
- 設備保証付
- 省エネルギー対策
オープンハウス・イベント情報
開催日時:公開中 10:00~16:00
開催場所:島根県松江市
【ドゥハウスNEOが選ばれる理由】 ☆不動産のプロが厳選した土地の仕入れ 不動産ノウハウで好立地の土地を低価格で提供することが可能。 ☆ZEH水準の高い省エネ性能 断熱性能と省エネルギー性能が高く、電気代を削減できる高性能住宅。 ☆耐震等級3(最高等級) 震度6強~7レベルの揺れに耐えら…
物件詳細情報
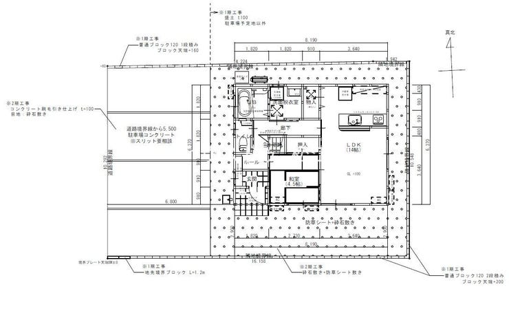
| 価格 | 3,450万円 | 間取り | 4LDK+S |
|---|---|---|---|
| 物件種別 | 新築一戸建て | ||
| 所在地 | 島根県松江市東出雲町揖屋 1号地 | ||
| アクセス |
|
||
| 建物面積 | 実102.68㎡ | 駐車場 | あり 普通:4台 |
| 築年月 | 2026年(令和8年)08月予定 | 建築確認 | 第07-859号 |
| 建物構造 | 木造 2階建 | 工法 | |
| 主要採光 | バルコニー | ||
| 保証・評価 | 設計住宅性能評価書 |
||
| 土地面積 | 公168.62㎡(51坪) | 接道 | 西側(公道)幅 約6.0m 間口 約10.29m |
| 私道 | セットバック | 無 | |
| 地目 | 宅地 | 地勢 | 平坦 |
| 権利 | 所有権 |
||
| 都市計画 | 市街化区域 |
用途地域 | 1種住居 |
| 建ぺい/容積率 | 60% / 200% | 土地国土法 | |
| 許可番号 | 建築基準法 | ||
| 法令制限 | |||
| 小学区 | 揖屋小学校 徒歩19分 (約1469m) | 中学区 | 東出雲中学校 徒歩12分 (約902m) |
| 現況 | 建築中 | 引渡 | 期日指定:2026年08月末以降 |
| その他費用 | その他負担金:174070円 上下水道負担金 |
||
| 備考 | *上水道敷地内引き込みあり(上水道加入金110,000円要) *下水道敷地内引き込みあり(下水道受公共桝設置金64,070円別途精算あり) *売主より司法書士の指定があります。 【建売カタログはこちら】 |
||
| 物件番号 | 4474741 | 取引態様 | 売主 |
取扱店舗情報
| 電話番号 | 0852-33-7778 |
|---|---|
| 所在地 | 〒690-0017 島根県松江市西津田5-1-1 |
| 営業時間 | 10:00-18:00 |
| 定休日 | お盆・年末年始・毎週水曜日 |
| 宅建免許番号 | 国土交通大臣(3)第8218号 |
| アクセス | 店舗への地図はこちら |

来店ご予約
島根県松江市で価格が似ている物件はこちら
- 島根県
マイページ物件数 - 802件
最近見た物件
-
-

-
- 新築一戸建て
- 1,698万円
-
菊池市亘
-
熊本電気鉄道御代志
-
-
-

-
- 新築一戸建て
- 3,498万円
-
北九州市小倉南区朽網東2丁目
-
JR日豊本線朽網
-
島根県新築一戸建て新着物件
- お近くの店舗を探す
-



















