川崎市多摩区東三田2丁目の新築戸建
掲載情報更新日:2026年04月10日 次回更新予定日:2026年04月24日
- 4,780万円
-
- 借入ご希望金額
万円 - 借入期間
年 - 借入金利
% - 月々のお支払い金額
円
- 借入ご希望金額
※ 月々のお支払例は目安の試算となりますので、実際の金額とは異なる場合がございます。詳しくは店舗までお問合わせください。
- 川崎市多摩区東三田2丁目
-
小田急小田原線『向ヶ丘遊園』 徒歩22分 (約1710m)
小田急小田原線『向ヶ丘遊園』 バス乗車7分 専修大学120年記念会館前 停 徒歩6分 (約480m)
小田急小田原線『生田』 徒歩21分 (約1620m)
川崎市多摩区東三田2丁目一戸建て | 物件情報
〇開放的なLDK上部吹き抜け
〇吹抜のある3LDK+S
〇会話が弾む対面式システムキッチン
物件の設備
- 公営水道
- 公共下水
- 都市ガス
- 浄水器
- 食器洗浄乾燥機
- コンロ三口
- カウンターキッチン
- システムキッチン
- ユニットバス
- オートバス
- 浴室暖房
- 浴室乾燥機
- トイレ2箇所
- 温水洗浄便座
- 室内洗濯機置場
- 洗髪洗面化粧台
- 照明器具
- ディンプルキー
- モニタ付インターホン
- LDK15畳以上
- 2面採光
- 吹抜
- フローリング
- 24時間換気システム
- クローゼット2箇所
- ウォークインクローゼット
- シューズインクローク
物件の特徴
- 2沿線利用可
- 駅まで平坦
- 2階建
- 外壁サイディング
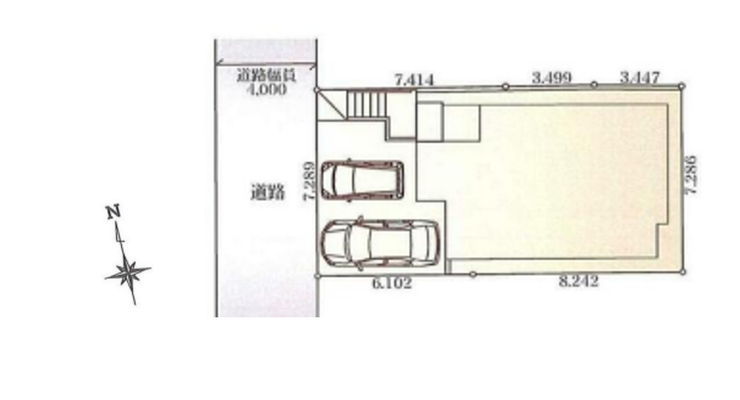
物件詳細情報
| 価格 | 4,780万円 | 間取り | 3LDK+S |
|---|---|---|---|
| 物件種別 | 新築一戸建て | ||
| 所在地 | 神奈川県川崎市多摩区東三田2丁目 | ||
| アクセス |
|
||
| 建物面積 | 102.69㎡ | 駐車場 | あり |
| 築年月 | 2026年(令和8年)03月予定 | 建築確認 | 第BNV確済25-674号 |
| 建物構造 | 木造 2階建 | 工法 | |
| 主要採光 | 南西向 | バルコニー | |
| 保証・評価 | |||
| 土地面積 | 105.02㎡(31.76坪) | 接道 | |
| 私道 | セットバック | ||
| 地目 | 宅地 | 地勢 | |
| 権利 | 所有権 |
||
| 都市計画 | 市街化区域 |
用途地域 | 1種中高 |
| 建ぺい/容積率 | 60% / 200% | 土地国土法 | |
| 許可番号 | 建築基準法 | ||
| 法令制限 | |||
| 小学区 | 東生田小学校 徒歩14分 (約1110m) | 中学区 | 生田中学校 徒歩15分 (約1130m) |
| 現況 | 建築中 | 引渡 | 期日指定:2026年05月以降 |
| その他費用 | |||
| 周辺環境 | 川崎市立東生田小学校 徒歩14分 (約1110m) 川崎市立生田中学校 徒歩15分 (約1130m) 専修大学生田キャンパス 徒歩6分 (約420m) セブンイレブン専修大学生田校舎店 徒歩3分 (約200m) 川崎国際生田緑地ゴルフ場 徒歩6分 (約430m) クリエイトS・D川崎三田店 徒歩8分 (約580m) 明治大学 生田キャンパス 徒歩14分 (約1060m) 川崎市三田こども文化センター 徒歩10分 (約760m) FitCareDEPOT菅生2丁目店 徒歩11分 (約860m) オーケー生田店 徒歩14分 (約1050m) |
||
| 備考 | |||
| 物件番号 | 4475957 | 取引態様 | 媒介 |
取扱店舗情報
ハウスドゥ 向ヶ丘遊園 株式会社パワーラッシュ 店舗詳細ページへ
| 電話番号 | 044-299-8081 |
|---|---|
| 所在地 | 〒214-0014 神奈川県川崎市多摩区登戸2777-2 N100ビル201号室 |
| 営業時間 | 9:00~18:00 |
| 定休日 | 水曜日、年末年始 |
| 宅建免許番号 | 神奈川県知事(1)第32601号 |
| アクセス | 店舗への地図はこちら |

来店ご予約
- 神奈川県
マイページ物件数 - 2,990件
最近見た物件
-
-

-
- 新築一戸建て
- 3,798万円
-
宇治市開町
-
近鉄京都線伊勢田
-
-
-

-
- 土地
- 380万円
-
土岐市泉町大富
-
土岐市駅約5000m車で
-
-
-

-
- 土地
- 1,150万円
-
四日市市あかつき台2丁目
-
三岐鉄道三岐線暁学園前
-
神奈川県新築一戸建て新着物件
-
-

-
- 新築一戸建て
- 2,580万円
-
平塚市公所
-
JR東海道本線平塚駅
-
-
-

-
- 新築一戸建て
- 5,480万円
-
川崎市麻生区千代ケ丘6丁目
-
小田急小田原線百合ヶ丘駅
-
-
-

-
- 新築一戸建て
- 4,980万円
-
川崎市麻生区千代ケ丘6丁目
-
小田急小田原線百合ヶ丘駅
-
-
-

-
- 新築一戸建て
- 3,880万円
-
伊勢原市高森台3丁目
-
小田急小田原線愛甲石田駅
-
-
-

-
- 新築一戸建て
- 3,680万円
-
伊勢原市高森台3丁目
-
小田急小田原線愛甲石田駅
-
-
-

-
- 新築一戸建て
- 3,530万円
-
伊勢原市高森台3丁目
-
小田急小田原線愛甲石田駅
-
-
-

-
- 新築一戸建て
- 3,480万円
-
平塚市御殿4丁目
-
JR東海道本線平塚駅
-
- お近くの店舗を探す
-









