新築戸建 本郷町分譲 A棟
掲載情報更新日:2026年04月24日 次回更新予定日:2026年05月08日
- 2,650万円
-
- 借入ご希望金額
万円 - 借入期間
年 - 借入金利
% - 月々のお支払い金額
円
- 借入ご希望金額
※ 月々のお支払例は目安の試算となりますので、実際の金額とは異なる場合がございます。詳しくは店舗までお問合わせください。
- 富山市本郷町
-
富山地鉄不二越上滝線『上堀』 徒歩20分 (約1600m)
『清住町口』 徒歩7分 (約560m)
新築戸建 本郷町分譲 A棟一戸建て | 物件情報
【2024年12月新築】高気密高断熱住宅☆冬でもあったか!本郷町で新生活におすすめ(*^_^*)
■オール電化で安全・安心な暮らし方
■高気密高断熱住宅のため、冬でも室内はぽかぽかあったか♪
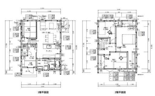
■どなたでも使いやすい4LDK!
■スーパーやコンビニ、ドラッグストア徒歩5分以内♪いくつになっても生活しやすい立地!
物件の設備
- 電気
- オール電化
- 上水道
- 下水道
- 側溝
- IHクッキングヒータ
- コンロ三口
- システムキッチン
- オートバス
- バス1坪以上
- 追焚機能
- 浴室に窓
- トイレ
- 温水洗浄便座
- 洗髪洗面化粧台
- エアコン2基
- ディンプルキー
- ダブルロックキー
- モニタ付インターホン
- 和室
- 複層ガラス
- クローゼット
物件の特徴
- 南向
- 高気密高断熱住宅
- 閑静な住宅街
- 前面棟無
- 建築確認完了検査済証
- 新築
- 増改築設計図書
物件詳細情報
| 価格 | 2,650万円 | 間取り | 4LDK |
|---|---|---|---|
| 物件種別 | 新築一戸建て | ||
| 所在地 | 富山県富山市本郷町262-4 | ||
| アクセス |
|
||
| 建物面積 | 90.46㎡ | 駐車場 | あり 普通:2台 |
| 築年月 | 2024年(令和6年)12月築 | 建築確認 | 第R6確認建築富建セ0923号 |
| 建物構造 | 木造 | 工法 | |
| 主要採光 | バルコニー | ||
| 保証・評価 | |||
| 土地面積 | 公153.58㎡(46.45坪) | 接道 | 北側(公道)幅 約5.1m 間口 約15.90m 西側(公道)幅 約5.3m 間口 約13.80m |
| 私道 | セットバック | ||
| 地目 | 宅地 | 地勢 | |
| 権利 | 所有権 |
||
| 都市計画 | 市街化区域 |
用途地域 | 1種低層 |
| 建ぺい/容積率 | 50% / 80% | 土地国土法 | |
| 許可番号 | 建築基準法 | ||
| 法令制限 | |||
| 小学区 | 堀川南小学校 徒歩9分 (約685m) | 中学区 | 堀川中学校 徒歩29分 (約2273m) |
| 現況 | 完工済 | 引渡 | 相談 |
| その他費用 | |||
| 備考 | 内見可能♪お気軽にお問合せくださいませ(*^^*) ☆周辺環境☆ ・大阪屋ショップ本郷南店まで徒歩4分(約343m) ・ファミリーマート富山本郷店まで徒歩5分(約418m) ・クスリのアオキ本郷店まで徒歩3分(約262m) ・本郷町保育園まで徒歩6分(約508m) ・富山上堀郵便局まで徒歩14分(約1138m) ☆当社は2024年10月~12月度 LIFULL HOMESの富山市お問合せ件数 No.1☆ ハウスドゥ富山駅北はお客様のお住まい探しを全力でお手伝いいたします!! 元銀行員のスタッフが、ローンのご相談も承ります(^^)/ その他リフォームやお住まいのことならなんでもお気軽にお問い合わせください☆ |
||
| 物件番号 | 4479294 | 取引態様 | 媒介 |
取扱店舗情報
ハウスドゥ 富山駅北 セブン不動産株式会社 店舗詳細ページへ
| 電話番号 | 076-464-6351 |
|---|---|
| 所在地 | 〒930-0853 富山県富山市永楽町27-16 |
| 営業時間 | 9:30~17:30 |
| 定休日 | 水曜日、祝日、年末年始 |
| 宅建免許番号 | 富山県知事(1)第3250号 |
| アクセス | 店舗への地図はこちら |

来店ご予約
富山県富山市で価格が似ている物件はこちら
- 富山県
マイページ物件数 - 618件
富山県新築一戸建て新着物件
- お近くの店舗を探す
-
おすすめ物件
-
-

-
- 新築一戸建て
- 3,980万円
-
富山市婦中町田島
-
JR高山本線婦中鵜坂
-
-
-

-
- 新築一戸建て
- 2,480万円
-
富山市東田地方町2丁目
-
富山地鉄富山市内線電気ビル前
-
-
-

-
- 新築一戸建て
- 3,368万円
-
高岡市角三島
-
JR氷見線能町
-
-
-

-
- 新築一戸建て
- 2,880万円
-
高岡市戸出町1丁目
-
JR城端線戸出
-
-
-

-
- 新築一戸建て
- 3,250万円
-
高岡市赤祖父
-
JR城端線新高岡
-
-
-

-
- 新築一戸建て
- 2,680万円
-
富山市下堀
-
富山地鉄不二越上滝線朝菜町
-
-
-

-
- 新築一戸建て
- 3,465万円
-
富山市秋吉
-
富山地鉄不二越上滝線不二越
-
-
-

-
- 新築一戸建て
- 2,180万円
-
中新川郡立山町前沢新町
-
富山地鉄立山線五百石
-
-
-

-
- 新築一戸建て
- 3,200万円
-
富山市山室
-
富山地鉄不二越上滝線大泉
-
-
-

-
- 新築一戸建て
- 2,180万円
-
高岡市中川園町
-
JR氷見線越中中川
-




















