松山市小栗2丁目の新築戸建
掲載情報更新日:2026年03月16日 次回更新予定日:2026年03月30日
- 3,380万円
-
- 借入ご希望金額
万円 - 借入期間
年 - 借入金利
% - 月々のお支払い金額
円
- 借入ご希望金額
※ 月々のお支払例は目安の試算となりますので、実際の金額とは異なる場合がございます。詳しくは店舗までお問合わせください。
- 松山市小栗2丁目
-
伊予鉄道郡中線『土橋』 徒歩16分 (約1280m)
松山市小栗2丁目一戸建て | 物件情報
物件の設備
- 電気
- オール電化
- 上水道
- 下水道
- カウンターキッチン
- トイレ2箇所
- ウォークインクローゼット
- 床下収納
物件の特徴
- 2階建
物件詳細情報
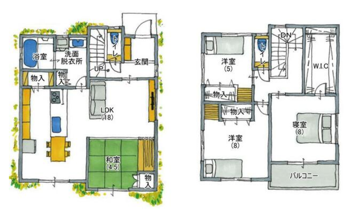
| 価格 | 3,380万円 | 間取り | 3LDK |
|---|---|---|---|
| 物件種別 | 新築一戸建て | ||
| 所在地 | 愛媛県松山市小栗2丁目 | ||
| アクセス |
|
||
| 建物面積 | 公113.44㎡ | 駐車場 | なし |
| 築年月 | 2026年(令和8年)03月予定 | 建築確認 | 第2025建確-1513号 |
| 建物構造 | 木造 2階建 | 工法 | |
| 主要採光 | バルコニー | ||
| 保証・評価 | |||
| 土地面積 | 公132.34㎡(40.03坪) | 接道 | 東側(私道)幅 約4.0m 北側(私道)幅 約4.0m |
| 私道 | セットバック | ||
| 地目 | 宅地 | 地勢 | 平坦 |
| 権利 | 所有権 |
||
| 都市計画 | 市街化区域 |
用途地域 | 1種住居 |
| 建ぺい/容積率 | 60% / 200% | 土地国土法 | |
| 許可番号 | 建築基準法 | ||
| 法令制限 | |||
| 小学区 | 雄郡小学校 徒歩14分 (約1100m) | 中学区 | 雄新中学校 徒歩9分 (約650m) |
| 現況 | 建築中 | 引渡 | 期日指定:2026年03月以降 |
| その他費用 | 上水道負担金:300000円・エコキュート費用:350000円 |
||
| 周辺環境 | 業務スーパー 松山和泉店 徒歩8分 (約580m) 雄新中学校 徒歩9分 (約650m) 土橋駅 徒歩16分 (約1250m) ドン・キホーテ 松山店 徒歩17分 (約1300m) いよ立花駅 徒歩23分 (約1790m) 南松山病院 徒歩23分 (約1800m) ファミリーマート 朝生田町一丁目店 徒歩25分 (約1950m) |
||
| 備考 | 耐震等級3、省令準耐火構造♪ 使い方いろいろ、 LDKに小上がり畳コーナー付き♪ 住宅設備10年保証付き | ||
| 物件番号 | 4479458 | 取引態様 | 媒介 |
取扱店舗情報
ハウスドゥ 松山富久 リビング・ハーモニー株式会社 店舗詳細ページへ
| 電話番号 | 089-971-0077 |
|---|---|
| 所在地 | 〒791-8034 愛媛県松山市富久町430-2 |
| 営業時間 | 10:00~18:00 |
| 定休日 | 火曜日、水曜日、GW、お盆、年末年始 |
| 宅建免許番号 | 愛媛県知事(1)第5862号 |
| アクセス | 店舗への地図はこちら |

来店ご予約
愛媛県松山市で価格が似ている物件はこちら
![]()
![]()
-
- 新築一戸建て 2023.10.21
-
-
- 3,399万円
-
松山市越智2丁目
-
伊予鉄道横河原線「北久米駅」まで車9分
- 3LDK
-
-
- 新築一戸建て 2025.03.07
-
-
- 3,320万円
-
松山市別府町
-
伊予鉄道高浜線「山西駅」まで車3分
- 4LDK
-
-
- 新築一戸建て 2025.06.20
-
-
- 3,390万円
-
松山市枝松2丁目
-
伊予鉄道環状線「勝山町駅」まで徒歩17分
- 5LDK
-
-
- 新築一戸建て 2025.07.11
-
-
- 3,480万円
-
松山市吉藤5丁目
-
鴨川団地前 バス停まで徒歩10分
- 3LDK
-
-
- 新築一戸建て 2025.08.22
-
-
- 3,430万円
-
松山市北久米町
-
伊予鉄道横河原線「北久米駅」まで徒歩8分
- 2LDK
-
-
- 新築一戸建て 2025.09.26
-
-
- 3,320万円
-
松山市別府町
-
伊予鉄道高浜線「山西駅」まで徒歩13分
- 4LDK
-
-
- 新築一戸建て 2025.11.01
-
-
- 3,380万円
-
松山市小栗2丁目
-
伊予鉄道郡中線「土橋駅」まで車5分
- 4LDK
-
-
- 新築一戸建て 2025.11.06
-
-
- 3,290万円
-
松山市余戸西5丁目
-
伊予鉄バス柳井田まで徒歩5分
- 4LDK+S
-
-
- 新築一戸建て 2025.11.06
-
-
- 3,290万円
-
松山市余戸西5丁目
-
伊予鉄道郡中線「鎌田駅」まで車4分
- 4LDK
-
-
- 新築一戸建て 2025.11.07
-
-
- 3,430万円
-
松山市北久米町
-
伊予鉄道横河原線「北久米駅」まで徒歩8分
- 3LDK
-
-
- 新築一戸建て 2025.11.08
-
-
- 3,330万円
-
松山市空港通3丁目
-
伊予鉄道郡中線「土居田駅」まで徒歩12分
- 4LDK
-
-
- 新築一戸建て 2025.11.08
-
-
- 3,280万円
-
松山市空港通3丁目
-
伊予鉄道郡中線「土居田駅」まで徒歩12分
- 4LDK
-
-
- 新築一戸建て 2025.11.14
-
-
- 3,290万円
-
松山市余戸西5丁目
-
伊予鉄道郡中線「余戸駅」まで徒歩16分
- 4LDK+S
-
-
- 新築一戸建て 2025.11.15
-
-
- 3,290万円
-
松山市余戸西5丁目
-
柳井田バス停まで徒歩5分
- 4LDK+S
-
-
- 新築一戸建て 2026.01.06
-
-
- 3,390万円
-
松山市土居田町
-
伊予鉄道郡中線「土居田駅」まで徒歩1分
- 3LDK
-
-
- 新築一戸建て 2026.01.09
-
-
- 3,390万円
-
松山市土居田町
-
伊予鉄道郡中線「土居田駅」まで徒歩1分
- 3LDK+S
-
-
- 新築一戸建て 2026.01.16
-
-
- 3,378万円
-
松山市鴨川3丁目
-
伊予鉄道高浜線「衣山駅」まで車10分
- 4LDK
-
-
- 新築一戸建て 2026.01.17
-
-
- 3,350万円
-
松山市久米窪田町
-
伊予鉄道横河原線「鷹ノ子駅」まで車5分
- 3LDK+S
-
-
- 新築一戸建て 2026.01.17
-
-
- 3,450万円
-
松山市久米窪田町
-
伊予鉄道横河原線「鷹ノ子駅」まで車5分
- 3LDK+S
-
-
- 新築一戸建て 2026.01.17
-
-
- 3,378万円
-
松山市生石町
-
伊予鉄道郡中線「土居田駅」まで車4分
- 4LDK
-
-
- 新築一戸建て 2026.01.22
-
-
- 3,378万円
-
松山市生石町
-
伊予鉄道郡中線「土居田駅」まで徒歩12分
- 4LDK
-
-
- 新築一戸建て 2026.01.24
-
-
- 3,378万円
-
松山市鴨川3丁目
-
JR予讃線「伊予和気駅」まで徒歩30分
- 4LDK
-
-
- 新築一戸建て 2026.01.29
-
-
- 3,390万円
-
松山市土居田町
-
伊予鉄道郡中線「土居田駅」まで徒歩6分
- 4LDK
-
-
- 新築一戸建て 2026.01.29
-
-
- 3,450万円
-
松山市土居田町
-
伊予鉄道郡中線「土居田駅」まで徒歩6分
- 4LDK
-
-
- 新築一戸建て 2026.01.30
-
-
- 3,390万円
-
松山市土居田町
-
伊予鉄道郡中線「土居田駅」まで徒歩7分
- 4LDK+S
-
-
- 新築一戸建て 2026.01.30
-
-
- 3,450万円
-
松山市土居田町
-
伊予鉄道郡中線「土居田駅」まで徒歩7分
- 4LDK+S
-
-
- 新築一戸建て 2026.01.30
-
-
- 3,450万円
-
松山市土居田町
-
伊予鉄道郡中線「土居田駅」まで徒歩7分
- 4LDK+S
-
-
- 新築一戸建て 2026.01.31
-
-
- 3,378万円
-
松山市生石町
-
伊予鉄道郡中線「土居田駅」まで徒歩13分
- 4LDK
-
-
- 新築一戸建て 2026.02.08
-
-
- 3,378万円
-
松山市鴨川3丁目
-
JR予讃線「伊予和気駅」まで徒歩30分
- 4LDK
-
-
- 新築一戸建て 2026.02.18
-
-
- 3,378万円
-
松山市生石町
-
伊予鉄道郡中線「土居田駅」まで徒歩12分
- 4LDK
-
-
-
新築一戸建て
2026.02.26
-
-
- 3,390万円
-
松山市南江戸4丁目
-
JR予讃線「松山駅」まで車6分
- 3LDK
-
-
新築一戸建て
2026.02.26
-
-
新築一戸建て
2026.03.01
-
-
- 3,398万円
-
松山市南江戸4丁目
-
JR予讃線「松山駅」まで徒歩10分
- 3LDK
-
-
新築一戸建て
2026.03.01
-
-
新築一戸建て
2026.03.01
-
-
- 3,398万円
-
松山市南江戸4丁目
-
JR予讃線「松山駅」まで徒歩13分
- 3LDK
-
-
新築一戸建て
2026.03.01
-
-
新築一戸建て
2026.03.02
-
-
- 3,390万円
-
松山市別府町
-
伊予鉄道高浜線「山西駅」まで車3分
- 4LDK
-
-
新築一戸建て
2026.03.02
-
-
新築一戸建て
2026.03.03
-
-
- 3,390万円
-
松山市土居田町
-
伊予鉄道郡中線「土居田駅」まで徒歩6分
- 4LDK+S
-
-
新築一戸建て
2026.03.03
-
-
新築一戸建て
2026.03.03
-
-
- 3,450万円
-
松山市土居田町
-
伊予鉄道郡中線「土居田駅」まで徒歩6分
- 4LDK+S
-
-
新築一戸建て
2026.03.03
-
-
新築一戸建て
2026.03.03
-
-
- 3,450万円
-
松山市土居田町
-
伊予鉄道郡中線「土居田駅」まで徒歩6分
- 4LDK+S
-
-
新築一戸建て
2026.03.03
-
-
新築一戸建て
2026.03.07
-
-
- 3,298万円
-
松山市桑原6丁目
-
伊予鉄道横河原線「福音寺駅」まで車7分
- 4LDK
-
-
新築一戸建て
2026.03.07
-
-
新築一戸建て
2026.03.12
-
-
- 3,398万円
-
松山市南江戸4丁目
-
JR予讃線「松山駅」まで徒歩12分
- 3LDK
-
-
新築一戸建て
2026.03.12
-
-
新築一戸建て
2026.03.12
-
-
- 3,298万円
-
松山市桑原6丁目
-
伊予鉄道横河原線「福音寺駅」まで徒歩16分
- 4LDK
-
-
新築一戸建て
2026.03.12
-
-
新築一戸建て
2026.03.14
-
-
- 3,298万円
-
松山市桑原6丁目
-
伊予鉄道横河原線「福音寺駅」まで徒歩15分
- 4LDK
-
-
新築一戸建て
2026.03.14
-
-
新築一戸建て
2026.03.15
-
-
- 3,298万円
-
松山市桑原6丁目
-
伊予鉄道横河原線「福音寺駅」まで徒歩15分
- 4LDK
-
-
新築一戸建て
2026.03.15
-
-
新築一戸建て
2026.03.15
-
-
- 3,398万円
-
松山市南江戸4丁目
-
JR予讃線「松山駅」まで徒歩13分
- 3LDK
-
-
新築一戸建て
2026.03.15
-
-
新築一戸建て
2026.03.17
-
-
- 3,390万円
-
松山市別府町
-
伊予鉄道高浜線「山西駅」まで徒歩13分
- 4LDK
-
-
新築一戸建て
2026.03.17
- 愛媛県
マイページ物件数 - 3,718件
愛媛県新築一戸建て新着物件
- お近くの店舗を探す
-










