高槻市富田町5丁目の新築戸建
NEW 11.08掲載情報更新日:2025年11月08日 次回更新予定日:2025年11月22日
- 6,394万円
-
- 借入ご希望金額
万円 - 借入期間
年 - 借入金利
% - 月々のお支払い金額
円
- 借入ご希望金額
※ 月々のお支払例は目安の試算となりますので、実際の金額とは異なる場合がございます。詳しくは店舗までお問合わせください。
- 高槻市富田町5丁目
-
JR東海道線『摂津富田』 徒歩13分 (約1040m)
阪急電鉄京都線『富田』 徒歩10分 (約800m)
阪急電鉄京都線『総持寺』 徒歩23分 (約1840m)
高槻市富田町5丁目一戸建て | 物件情報
物件の設備
- 電気
- 公営水道
- 公共下水
- 都市ガス
- カウンターキッチン
- システムキッチン
- バス
- 浴室に窓
- トイレ2箇所
- 室内洗濯機置場
- 洗面所独立
- LDK20畳以上
- 和室
- 吹抜
- ウォークインクローゼット
- 全居室収納
- シューズボックス
- バルコニー
- ワイドバルコニー
- 南面バルコニー
物件の特徴
- 2沿線利用可
- 駅まで平坦
- 陽当り良好
- 2階建
物件詳細情報
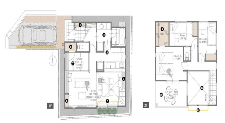
| 価格 | 6,394万円 | 間取り | 3LDK |
|---|---|---|---|
| 物件種別 | 新築一戸建て | ||
| 所在地 | 大阪府高槻市富田町5丁目 4号地 | ||
| アクセス |
|
||
| 建物面積 | 実98.63㎡ | 駐車場 | あり 普通:1台 |
| 築年月 | 2025年(令和7年)05月築 | 建築確認 | 第OKBC24C01-03429号 |
| 建物構造 | 木造 2階建 | 工法 | |
| 主要採光 | 西向 | バルコニー | 南向9.72㎡ |
| 保証・評価 | |||
| 土地面積 | 実99.5㎡(30.09坪) | 接道 | |
| 私道 | セットバック | ||
| 地目 | 宅地 | 地勢 | |
| 権利 | 所有権 |
||
| 都市計画 | 市街化区域 |
用途地域 | 2種中高 |
| 建ぺい/容積率 | 60% / 200% | 土地国土法 | |
| 許可番号 | 建築基準法 | ||
| 法令制限 | 高度利用地区・準防火地域 | ||
| 小学区 | 富田小学校 徒歩12分 (約890m) | 中学区 | 第四中学校 徒歩16分 (約1240m) |
| 現況 | 空 | 引渡 | 相談 |
| その他費用 | |||
| 周辺環境 | 高槻市立富田小学校 徒歩12分 (約890m) 高槻市立第四中学校 徒歩16分 (約1240m) セブンイレブン 高槻富田5丁目店 徒歩6分 (約410m) ミニストップ 高槻寿町1丁目店 徒歩7分 (約500m) ファミリーマート 富田駅南店 徒歩8分 (約600m) マルヤス登美の里店 徒歩3分 (約170m) トップワールド富田店 徒歩9分 (約690m) ミートモリタ屋富田店 徒歩12分 (約900m) ココカラファインライフォート富田東店 徒歩4分 (約260m) 筒井池公園 徒歩7分 (約530m) |
||
| 備考 | |||
| 物件番号 | 4480829 | 取引態様 | 媒介 |
取扱店舗情報
ハウスドゥ 茨木総持寺駅前 株式会社Life Ark 店舗詳細ページへ
| 電話番号 | 072-657-9237 |
|---|---|
| 所在地 | 〒567-0802 大阪府茨木市総持寺駅前町6-13 大紅ビル101 |
| 営業時間 | 10:00~20:00 |
| 定休日 | 水曜日、年末年始 |
| 宅建免許番号 | 大阪府知事(1)第63128号 |
| アクセス | 店舗への地図はこちら |

来店ご予約
大阪府高槻市で価格が似ている物件はこちら
- 大阪府
マイページ物件数 - 15,707件
最近見た物件
-
-

-
- 新築一戸建て
- 4,890万円
-
八王子市上柚木
-
京王相模原線南大沢
-
大阪府新築一戸建て新着物件
- お近くの店舗を探す
-
おすすめ物件
-
-

-
- 新築一戸建て
- 4,580万円
-
大阪市淀川区新北野3丁目
-
JR東海道線塚本
-
-
-

-
- 新築一戸建て
- 2,599万円
-
泉大津市東助松町3丁目
-
南海電鉄本線北助松
-
-
-

-
- 新築一戸建て
- 5,080万円
-
大阪市住之江区粉浜西3丁目
-
南海電鉄本線住吉大社
-
-
-

-
- 新築一戸建て
- 4,780万円
-
堺市北区新金岡町5丁
-
大阪市御堂筋線新金岡
-
-
-

-
- 新築一戸建て
- 2,380万円
-
松原市天美北3丁目
-
近鉄南大阪線河内天美
-
-
-

-
- 新築一戸建て
- 4,580万円
-
大阪市西淀川区佃3丁目
-
阪神電鉄本線千船
-
-
-

-
- 新築一戸建て
- 4,580万円
-
堺市北区長曽根町
-
大阪市御堂筋線新金岡
-
-
-

-
- 新築一戸建て
- 5,180万円
-
高槻市北昭和台町
-
阪急電鉄京都線総持寺
-
-
-

-
- 新築一戸建て
- 3,480万円
-
茨木市橋の内1丁目
-
阪急電鉄京都線総持寺
-
-
-

-
- 新築一戸建て
- 2,948万円
-
泉大津市松之浜町2丁目
-
南海電鉄本線松ノ浜
-





















