厚木市三田の新築戸建
NEW 11.10掲載情報更新日:2025年11月10日 次回更新予定日:2025年11月24日
- 3,580万円
-
- 借入ご希望金額
万円 - 借入期間
年 - 借入金利
% - 月々のお支払い金額
円
- 借入ご希望金額
※ 月々のお支払例は目安の試算となりますので、実際の金額とは異なる場合がございます。詳しくは店舗までお問合わせください。
- 厚木市三田
-
小田急小田原線『本厚木』 バス乗車23分 下谷 停 徒歩2分 (約160m)
厚木市三田一戸建て | 物件情報
□南側道路 □カースペース2台可(車種による) □和室・マルチスキップ採用
物件の設備
- 電気
- 公営水道
- 下水道
- プロパンガス
- 個別プロパン
- 食器洗浄乾燥機
- カウンターキッチン
- 浴室乾燥機
- 浴室に窓
- トイレ2箇所
- 室内洗濯機置場
- 室内物干機
- モニタ付インターホン
- LDK15畳以上
- 吹抜
- 全居室複層ガラス
- 24時間換気システム
- ウォークインクローゼット
- 床下収納
- 全居室収納
- インナーバルコニー
- 宅配BOX
物件の特徴
- 南向
- 陽当り良好
- 2階建
物件詳細情報
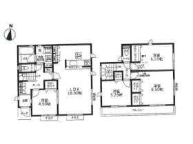
| 価格 | 3,580万円 | 間取り | 3LDK |
|---|---|---|---|
| 物件種別 | 新築一戸建て | ||
| 所在地 | 神奈川県厚木市三田 | ||
| アクセス |
|
||
| 建物面積 | 公108.06㎡ | 駐車場 | あり 普通:2台 |
| 築年月 | 2025年(令和7年)11月予定 | 建築確認 | 第R07SHC114115号 |
| 建物構造 | 木造 2階建 | 工法 | |
| 主要採光 | 南向 | バルコニー | |
| 保証・評価 | |||
| 分譲情報 | |||
| 土地面積 | 公132.6㎡(40.11坪) | 接道 | 北側(公道)幅 約4.0m |
| 私道 | セットバック | ||
| 地目 | 畑 | 地勢 | |
| 権利 | 所有権 |
||
| 都市計画 | 市街化区域 |
用途地域 | 工業 |
| 建ぺい/容積率 | 60% / 200% | 土地国土法 | |
| 許可番号 | 建築基準法 | ||
| 法令制限 | 都市再生特別措置法・景観法・宅地造成及び特定盛土等規制法・法22条区域・農地法 | ||
| 小学区 | 三田小学校 徒歩20分 (約1600m) | 中学区 | 睦合中学校 徒歩23分 (約1800m) |
| 現況 | 建築中 | 引渡 | 期日指定:2025年12月上旬以降 |
| その他費用 | |||
| 備考 | □南側道路 □カースペース2台可(車種による) □和室・マルチスキップ採用 |
||
| 物件番号 | 4484302 | 取引態様 | 媒介 |
取扱店舗情報
| 電話番号 | 046-297-7353 |
|---|---|
| 所在地 | 〒243-0815 神奈川県厚木市妻田西1丁目20-8 |
| 営業時間 | 9:00~18:00 |
| 定休日 | 水曜日 |
| 宅建免許番号 | 神奈川県知事(1)第32223号 |
| アクセス | 店舗への地図はこちら |

来店ご予約
神奈川県厚木市で価格が似ている物件はこちら
- 神奈川県
マイページ物件数 - 3,191件
最近見た物件
-
-

-
- 新築一戸建て
- 4,790万円
-
高槻市氷室町5丁目
-
JR東海道線摂津富田
-
-
-

-
- 土地
- 3,090万円
-
上尾市谷津1丁目
-
JR高崎線上尾
-
-
-

-
- 中古マンション
- 2,349万円
-
名古屋市名東区平和が丘3丁目
-
名古屋市東山線一社
-
神奈川県新築一戸建て新着物件
-
-

-
- 新築一戸建て
- 3,180万円
-
平塚市四之宮7丁目
-
JR東海道本線平塚駅
-
-
-

-
- 新築一戸建て
- 3,280万円
-
平塚市四之宮7丁目
-
JR東海道本線平塚駅
-
-
-

-
- 新築一戸建て
- 3,680万円
-
横須賀市佐野町6丁目
-
JR横須賀線衣笠駅
-
-
-

-
- 新築一戸建て
- 3,880万円
-
横須賀市佐野町6丁目
-
JR横須賀線衣笠駅
-
-
-

-
- 新築一戸建て
- 4,380万円
-
川崎市宮前区南平台
-
東急田園都市線宮前平駅
-
-
-

-
- 新築一戸建て
- 4,080万円
-
平塚市千石河岸
-
JR東海道本線平塚駅
-
-
-

-
- 新築一戸建て
- 3,390万円
-
横須賀市岩戸2丁目
-
京急久里浜線北久里浜駅
-
- お近くの店舗を探す
-










