熊本市南区富合町杉島の新築戸建
NEW 11.15掲載情報更新日:2025年11月30日 次回更新予定日:2025年12月14日
- 2,288万円
-
- 借入ご希望金額
万円 - 借入期間
年 - 借入金利
% - 月々のお支払い金額
円
- 借入ご希望金額
※ 月々のお支払例は目安の試算となりますので、実際の金額とは異なる場合がございます。詳しくは店舗までお問合わせください。
- 熊本市南区富合町杉島
-
JR三角線『富合』 徒歩21分 (約1680m)
熊本市南区富合町杉島一戸建て | 物件情報
12月末までご来店のお客様に社長が栽培販売の南阿蘇の新米2㌔か冷凍ブルーべりー500gプレゼント
12月末までご来店のお客様に社長が自ら栽培販売している南阿蘇の新米『湧湧こんこん』2キロか冷凍ブルーべりー500gプレゼント♪
売却も購入もクリーンに誠実に。お客様の理想をかたちに出来るよう誠心誠意お手伝い致します。
<オプション工事>
弊社には建築部門があるため、エアコン・網戸・フロアコーティング等のオプション工事をお安くご提供可能です♪ぜひご相談ください♪
<お引越し・太陽光・火災保険等>
提携企業多数ございます。割引等ございますので、こちらもご相談ください♪
☆最適な住宅ローンのご紹介
お客様の代わりに銀行を比較し、一番メリットのある銀行をご紹介します!♪
☆熊本県全域の物件をご紹介可能です!
店舗でしか公開できない物件もございますので是非一度ご来店ください♪
全国720店舗展開中のハウスドゥのノウハウと強みを活かし,お客様に寄り添い対応致します♪
物件の設備
- 電気
- 上水道
- 下水道
- プロパンガス
- 給湯
- 浄水器
- 食器乾燥機
- 食器洗浄乾燥機
- コンロ三口
- グリル
- カウンターキッチン
- システムキッチン
- オートバス
- 浴室に窓
- ディンプルキー
- モニタ付インターホン
- 火災警報器/報知機
- LDK20畳以上
- 複層ガラス
- 全居室複層ガラス
- フローリング
- 24時間換気システム
- クローゼット
- ウォークインクローゼット
- 床下収納
- シューズボックス
物件の特徴
- 南向
- 南側道路面す
- 閑静な住宅街
- 陽当り良好
- 前面棟無
- 角地
- 整形地
- 即入居可
物件詳細情報
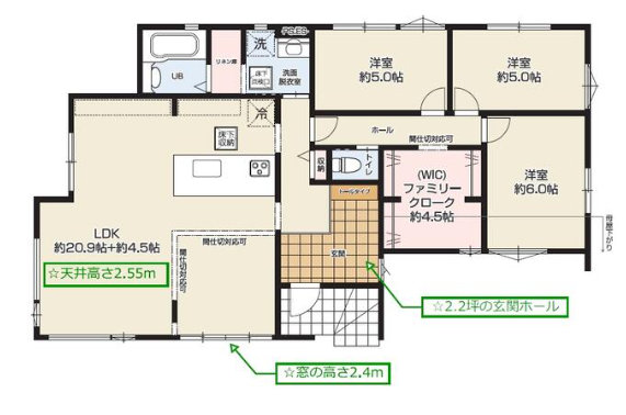
| 価格 | 2,288万円 | 間取り | |
|---|---|---|---|
| 物件種別 | 新築一戸建て | ||
| 所在地 | 熊本県熊本市南区富合町杉島 1号棟 | ||
| アクセス |
|
||
| 建物面積 | 95.64㎡ | 駐車場 | あり 普通:3台 |
| 築年月 | 2025年(令和7年)01月築 | 建築確認 | 第R06SHC119620号 |
| 建物構造 | 木造 1階建 | 工法 | |
| 主要採光 | バルコニー | ||
| 保証・評価 | |||
| 土地面積 | 公182.22㎡(55.12坪) | 接道 | 南側(公道)幅 約4.0m 西側(公道)幅 約4.0m |
| 私道 | セットバック | ||
| 地目 | 宅地 | 地勢 | |
| 権利 | 所有権 |
||
| 都市計画 | 市街化区域 |
用途地域 | 2種住居 |
| 建ぺい/容積率 | 70% / 200% | 土地国土法 | |
| 許可番号 | 建築基準法 | ||
| 法令制限 | 法22条区域 | ||
| 小学区 | 富合小学校 徒歩33分 (約2640m) | 中学区 | 富合中学校 徒歩47分 (約3760m) |
| 現況 | 完工済 | 引渡 | 即 |
| その他費用 | |||
| 周辺環境 | ファミリーマート熊本富合小岩瀬店 徒歩8分 (約610m) ナフコ富合店 徒歩12分 (約940m) イワサキエース川尻店 徒歩16分 (約1250m) 熊本南区役所 徒歩17分 (約1340m) 富合町コミュニティーセンター 徒歩17分 (約1310m) ローソン熊本野田二丁目店 徒歩18分 (約1410m) 第一幼育園 徒歩22分 (約1730m) 川尻尾崎内科 徒歩24分 (約1920m) 富合中学校 徒歩32分 (約2550m) 富合小学校 徒歩21分 (約1660m) |
||
| 備考 | |||
| 物件番号 | 4490425 | 取引態様 | 媒介 |
取扱店舗情報
| 電話番号 | 096-221-2925 |
|---|---|
| 所在地 | 〒862-0933 熊本県熊本市東区小峯2丁目6-68 グレイハウンド101 |
| 営業時間 | 10:00~18:00 |
| 定休日 | 水曜日 |
| 宅建免許番号 | 熊本県知事(1)第5721号 |
| アクセス | 店舗への地図はこちら |

来店ご予約
熊本県熊本市南区で価格が似ている物件はこちら
- 熊本県
マイページ物件数 - 2,950件
最近見た物件
-
-

-
- 新築一戸建て
- 2,298万円
-
熊本市南区御幸木部3丁目
-
御幸木部
-
熊本県新築一戸建て新着物件
-
-

-
- 新築一戸建て
- 3,298万円
-
熊本市西区小島5丁目
-
JR鹿児島本線西熊本駅
-
-
-

-
- 新築一戸建て
- 3,358万円
-
熊本市西区小島5丁目
-
JR鹿児島本線西熊本駅
-
-
-

-
- 新築一戸建て
- 3,358万円
-
熊本市西区小島5丁目
-
JR鹿児島本線西熊本駅
-
-
-

-
- 新築一戸建て
- 3,990万円
-
熊本市東区月出7丁目
-
JR豊肥本線水前寺駅
-
-
-

-
- 新築一戸建て
- 3,690万円
-
熊本市東区月出7丁目
-
JR豊肥本線水前寺駅
-
-
-

-
- 新築一戸建て
- 2,990万円
-
熊本市東区月出7丁目
-
JR豊肥本線水前寺駅
-
-
-

-
- 新築一戸建て
- 3,290万円
-
熊本市東区月出7丁目
-
JR豊肥本線水前寺駅
-
- お近くの店舗を探す
-
おすすめ物件
-
-

-
- 新築一戸建て
- 3,298万円
-
熊本市北区清水新地1丁目
-
熊本電気鉄道堀川
-
-
-

-
- 新築一戸建て
- 3,499万円
-
熊本市東区尾ノ上3丁目
-
熊本市健軍線神水交差点
-
-
-

-
- 新築一戸建て
- 2,880万円
-
熊本市中央区出水6丁目
-
JR豊肥本線南熊本
-
-
-

-
- 新築一戸建て
- 3,198万円
-
合志市御代志
-
熊本電気鉄道御代志
-
-
-

-
- 新築一戸建て
- 2,998万円
-
熊本市南区幸田2丁目
-
JR豊肥本線平成
-











担当エージェント:工藤 安紗
『売却も購入もクリーンに誠実に。お客様の理想をかたちに出来るよう誠心誠意お手伝いいたします。』
お客様のご要望を丁寧にヒアリングしながら納得のいくお住まい選びをお手伝いさせていただきます!内覧いつでもご案内いたします!
「資金面が不安」
⇒ご予算が明確になることで、スムーズな物件選びができ、また、返済への不安も解消できます♪
将来も考慮し無理のない返済計画をご提案いたします。
「問い合わせた物件の他にも紹介してほしい」
⇒熊本県全域の物件をご紹介可能です!
店舗でしか公開できない物件もございますので是非一度ご来店ください♪
「毎回ポータルサイトを開いて、希望条件を設定したり、エリアを選択したり、手間がかかる…!」
⇒一度ご希望条件を教えていただければ、私たちがぴったりの物件をお探しします!
カフェのような落ち着いた雰囲気の店舗で,リラックスしてお過ごし出来ます.
キッズスペースも完備♪お気軽にお問い合わせください♪