刈谷市今川町山脇の新築戸建
掲載情報更新日:2026年05月08日 次回更新予定日:2026年05月22日
- 4,590万円
-
- 借入ご希望金額
万円 - 借入期間
年 - 借入金利
% - 月々のお支払い金額
円
- 借入ご希望金額
※ 月々のお支払例は目安の試算となりますので、実際の金額とは異なる場合がございます。詳しくは店舗までお問合わせください。
- 刈谷市今川町山脇
-
名鉄名古屋本線『富士松』 徒歩7分 (約560m)
刈谷市今川町山脇一戸建て | 物件情報
81坪の静寂に抱かれて。庭と一体になる、20.8帖の大空間フラットライフ。
【81坪の敷地に描く、太陽と暮らす贅沢な平屋。】
刈谷市今川町に誕生する、2026年3月完成予定の次世代型平屋 。
太陽光発電やEV充電設備を備えたオール電化仕様で、地球にも家計にも優しい暮らしを叶えます 。
最大20.8帖のLDKは、ワイドサッシ越しに庭との一体感を愉しめる開放的な特等席 。
小学校へも徒歩1分と近く、並列3台駐車可能なゆとりある一邸で、心豊かな物語を始めませんか 。
物件の設備
- 電気
- オール電化
- 公営水道
- 公共下水
- 浄水器
- 食器洗浄乾燥機
- IHクッキングヒータ
- コンロ三口
- グリル
- システムキッチン
- 追焚機能
- 浴室暖房
- 浴室乾燥機
- トイレ
- 温水洗浄便座
- 室内洗濯機置場
- 洗髪洗面化粧台
- エアコン
- 洗濯乾燥機
- 照明器具
- ダウンライト
- 太陽光発電システム
- 人感照明センサー
- 省エネ給湯器
- EV車充電設備
- モニタ付インターホン
- LDK15畳以上
- 複層ガラス
- クローゼット2箇所
- ウォークインクローゼット
- 床下収納
- シューズWIC
物件詳細情報
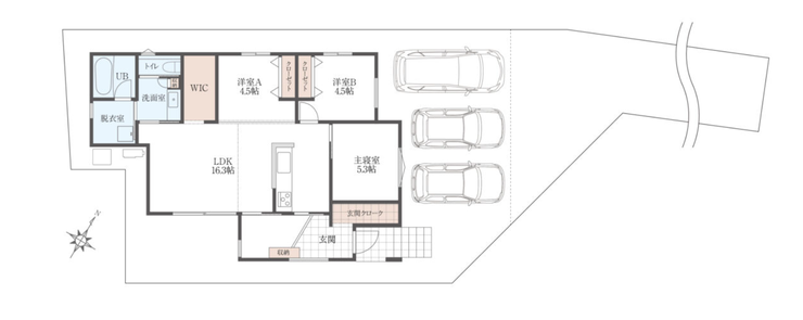
| 価格 | 4,590万円 | 間取り | 3LDK+S |
|---|---|---|---|
| 物件種別 | 新築一戸建て | ||
| 所在地 | 愛知県刈谷市今川町山脇 3号棟 | ||
| アクセス |
|
||
| 建物面積 | 78.66㎡ | 駐車場 | あり 普通:3台 |
| 築年月 | 2026年(令和8年)03月予定 | 建築確認 | 第愛建2025建築確認02141号 |
| 建物構造 | 木造 1階建 | 工法 | |
| 主要採光 | バルコニー | ||
| 保証・評価 | |||
| 分譲情報 | |||
| 土地面積 | 268.06㎡(81.08坪) | 接道 | 北東側(公道)幅 約4.8m |
| 私道 | セットバック | ||
| 地目 | 宅地 | 地勢 | |
| 権利 | 所有権 |
||
| 都市計画 | 市街化区域 |
用途地域 | 1種住居 |
| 建ぺい/容積率 | 60% / 100% | 土地国土法 | |
| 許可番号 | 建築基準法 | ||
| 法令制限 | |||
| 小学区 | 富士松南小学校 徒歩1分 (約47m) | 中学区 | 富士松中学校 徒歩19分 (約1500m) |
| 現況 | 建築中 | 引渡 | 未記入 |
| その他費用 | |||
| 周辺環境 | 富士松南幼児園 徒歩2分 (約130m) 富士松南保育園 徒歩2分 (約140m) 富士松南小学校 徒歩3分 (約200m) 富士松郵便局 徒歩5分 (約350m) スギドラッグ 富士松店 徒歩7分 (約530m) スギドラッグ 富士松北店 徒歩7分 (約530m) ミニストップ 刈谷今川町店 徒歩5分 (約360m) ミニストップ 刈谷泉田町店 徒歩8分 (約620m) 刈谷警察署 富士松駅前交番 徒歩8分 (約610m) 富士松 徒歩9分 (約650m) |
||
| 備考 | ●太陽光発電システム ●Kダンパー標準搭載! ●間仕切り可能な最大20.8帖のLDK+庭との一体感 ●たっぷり収納のシューズBOX+1.5帖の玄関クローク ●洗濯動線が嬉しい◎ ●洗面脱衣に近いWIC ●最大駐車並列で3台可能 ●洗面脱衣別でプライバシーも◎ ●使いやすいおしゃれな造作洗面台 ●開放感のあるLDKのワイドサッシ |
||
| 物件番号 | 4491230 | 取引態様 | 媒介 |
取扱店舗情報
ハウスドゥ 刈谷R155 株式会社エネチタ 店舗詳細ページへ
| 電話番号 | 0566-45-6391 |
|---|---|
| 所在地 | 〒448-0038 愛知県刈谷市稲場町5丁目612 |
| 営業時間 | 9:00~18:00 |
| 定休日 | 水曜日 |
| 宅建免許番号 | 愛知県知事(3)第23049号 |
| アクセス | 店舗への地図はこちら |

来店ご予約
愛知県刈谷市で価格が似ている物件はこちら
- 愛知県
マイページ物件数 - 32,331件
最近見た物件
-
-

-
- 土地
- 99万円
-
可児市塩
-
名鉄広見線西可児
-
-
-

-
- 新築一戸建て
- 2,980万円
-
浜松市中央区寺脇町
-
JR東海道本線浜松
-
-
-

-
- 新築一戸建て
- 2,280万円
-
四日市市楠町北五味塚
-
近鉄名古屋線楠
-
愛知県新築一戸建て新着物件
-
-

-
- 新築一戸建て
- 3,680万円
-
東海市富木島町南島
-
名鉄常滑線太田川駅
-
-
-

-
- 新築一戸建て
- 3,780万円
-
東海市富木島町南島
-
名鉄常滑線太田川駅
-
-
-

-
- 新築一戸建て
- 3,290万円
-
尾張旭市柏井町公園通
-
名鉄瀬戸線三郷駅
-
-
-

-
- 新築一戸建て
- 3,290万円
-
尾張旭市柏井町公園通
-
名鉄瀬戸線三郷駅
-
-
-

-
- 新築一戸建て
- 4,580万円
-
刈谷市半城土中町1丁目
-
JR東海道本線野田新町駅
-
-
-

-
- 新築一戸建て
- 4,690万円
-
刈谷市半城土中町1丁目
-
JR東海道本線野田新町駅
-
-
-

-
- 新築一戸建て
- 3,790万円
-
尾張旭市晴丘町池上
-
名鉄瀬戸線尾張旭駅
-
- お近くの店舗を探す
-
おすすめ物件
-
-

-
- 新築一戸建て
- 2,830万円
-
津島市新開町3丁目
-
名鉄津島線津島
-
-
-

-
- 新築一戸建て
- 3,090万円
-
西尾市田貫町西荒古
-
名鉄西尾線西尾
-
-
-

-
- 新築一戸建て
- 2,390万円
-
高浜市稗田町5丁目
-
名鉄三河線高浜港
-
-
-

-
- 新築一戸建て
- 2,390万円
-
一宮市起字西生出
-
名鉄尾西線奥町
-
-
-

-
- 新築一戸建て
- 4,780万円
-
豊田市永覚新町1丁目
-
愛知環状鉄道末野原
-
-
-

-
- 新築一戸建て
- 3,790万円
-
名古屋市千種区東千種台
-
名古屋市名城線茶屋ヶ坂
-
-
-

-
- 新築一戸建て
- 2,890万円
-
一宮市今伊勢町馬寄字上畑田
-
名鉄名古屋本線石刀
-
-
-

-
- 新築一戸建て
- 4,080万円
-
豊田市若林東町雁股
-
名鉄三河線若林
-
-
-

-
- 新築一戸建て
- 4,190万円
-
尾張旭市南新町白山
-
名古屋市東山線藤が丘
-
-
-

-
- 新築一戸建て
- 4,990万円
-
刈谷市築地町3丁目
-
名鉄名古屋本線一ツ木
-










担当エージェント:荻野 宏太郎
【ハウスドゥ 刈谷R155】新規ご来店予約でQUOカード2,000円分プレゼント実施中! お気軽に『0120ー45-6393(通話料無料) 』までお問合せ下さい!
●光を採り込むワイドサッシ: LDKは最大20.8帖もの広さを誇り、ワイドサッシ越しに庭との繋がりを愉しめる開放的な設計です 。
●階段のない、一生モノの暮らし: 延床約23坪のコンパクトかつ機能的な平屋は、将来にわたって階段の負担がない快適な住まいを叶えます 。
●自家発電でスマートに: 太陽光発電システムを標準搭載し、日中の電気を賢く賄う地球に優しい住まいです 。
●EV時代のカースペース: EV車充電設備を完備しており、次世代のカーライフにもスマートに対応します