大田原市富士見1丁目の新築戸建
NEW 11.20掲載情報更新日:2025年11月20日 次回更新予定日:2025年12月04日
- 1,680万円
-
- 借入ご希望金額
万円 - 借入期間
年 - 借入金利
% - 月々のお支払い金額
円
- 借入ご希望金額
※ 月々のお支払例は目安の試算となりますので、実際の金額とは異なる場合がございます。詳しくは店舗までお問合わせください。
- 大田原市富士見1丁目
-
JR東北本線『西那須野』 徒歩70分 (約5600m)
JR東北本線『野崎』 徒歩89分 (約7120m)
JR東北本線『那須塩原』 徒歩98分 (約7840m)
大田原市富士見1丁目一戸建て | 物件情報
物件の設備
- 電気
- 上水道
- 下水道
- プロパンガス
- 個別プロパン
- 浄水器
- コンロ三口
- カウンターキッチン
- システムキッチン
- オープンキッチン
- オートバス
- 追焚機能
- 浴室暖房
- 浴室乾燥機
- 浴室に窓
- トイレ2箇所
- 温水洗浄便座
- 人感照明センサー
- カードキー
- ディンプルキー
- ダブルロックキー
- モニタ付インターホン
- LDK15畳以上
- 複層ガラス
- 全居室複層ガラス
- フローリング
- 全室フローリング
- クローゼット
- 床下収納
- 全居室収納
- 庭
物件の特徴
- 閑静な住宅街
- 陽当り良好
- 2階建
- 平坦地
- 整形地
物件詳細情報
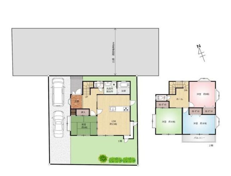
| 価格 | 1,680万円 | 間取り | 3LDK |
|---|---|---|---|
| 物件種別 | 新築一戸建て | ||
| 所在地 | 栃木県大田原市富士見1丁目 3号棟 | ||
| アクセス |
|
||
| 建物面積 | 公83.02㎡ | 駐車場 | あり 普通:2台 |
| 築年月 | 2025年(令和7年)10月予定 | 建築確認 | 第R07SHC109952号 |
| 建物構造 | 木造 2階建 | 工法 | |
| 主要採光 | バルコニー | ||
| 保証・評価 | |||
| 土地面積 | 公118.09㎡(35.72坪) | 接道 | 東側(公道)幅 約4.2m 間口 約7.50m |
| 私道 | セットバック | ||
| 地目 | 畑 | 地勢 | 平坦 |
| 権利 | 所有権 |
||
| 都市計画 | 非線引区域 |
用途地域 | 指定無 |
| 建ぺい/容積率 | 60% / 200% | 土地国土法 | |
| 許可番号 | 建築基準法 | ||
| 法令制限 | 景観法・宅地造成工事規制区域・日影制限有・法22条区域 | ||
| 小学区 | 大田原小学校 徒歩18分 (約1376m) | 中学区 | 若草中学校 徒歩19分 (約1483m) |
| 現況 | 建築中 | 引渡 | 期日指定:2025年10月下旬以降 |
| その他費用 | |||
| 周辺環境 | 大田原市立大田原小学校 徒歩18分 (約1376m) 大田原市立若草中学校 徒歩19分 (約1483m) ダイユー東那須店 徒歩107分 (約8530m) イオンタウン那須塩原 徒歩109分 (約8690m) ローソン那須塩原駅東店 徒歩110分 (約8770m) 東那須野郵便局 徒歩112分 (約8930m) |
||
| 備考 | |||
| 物件番号 | 4495249 | 取引態様 | 媒介 |
取扱店舗情報
| 電話番号 | 028-678-2888 |
|---|---|
| 所在地 | 〒320-0826 栃木県宇都宮市西原町466-1 |
| 営業時間 | 10:00~18:30 |
| 定休日 | 水曜日 |
| 宅建免許番号 | 栃木県知事(2)第5075号 |
| アクセス | 店舗への地図はこちら |

来店ご予約
栃木県大田原市で価格が似ている物件はこちら
- 栃木県
マイページ物件数 - 6,640件
最近見た物件
-
-

-
- 中古一戸建て
- 2,280万円
-
福山市奈良津町1丁目
-
JR山陽本線福山
-
-
-

-
- 新築一戸建て
- 3,490万円
-
郡山市富田町字坦ノ腰
-
JR東北本線郡山
-
栃木県新築一戸建て新着物件
-
-

-
- 新築一戸建て
- 2,290万円
-
宇都宮市雀の宮4丁目
-
JR東北本線雀宮駅
-
-
-

-
- 新築一戸建て
- 2,980万円
-
宇都宮市今宮1丁目
-
東武宇都宮線西川田駅
-
-
-

-
- 新築一戸建て
- 3,280万円
-
宇都宮市今宮1丁目
-
東武宇都宮線江曾島駅
-
-
-

-
- 新築一戸建て
- 3,490万円
-
宇都宮市岩曽町
-
JR東北本線宇都宮駅
-
-
-

-
- 新築一戸建て
- 3,290万円
-
宇都宮市岩曽町
-
JR東北本線宇都宮駅
-
-
-

-
- 新築一戸建て
- 2,899万円
-
下都賀郡壬生町幸町1丁目
-
東武宇都宮線おもちゃのまち駅
-
-
-

-
- 新築一戸建て
- 1,780万円
-
大田原市末広2丁目
-
JR東北本線西那須野駅
-
- お近くの店舗を探す
-




