新築戸建 堺市美原区黒山
掲載情報更新日:2026年01月05日 次回更新予定日:2026年01月19日
- 2,690万円
-
- 借入ご希望金額
万円 - 借入期間
年 - 借入金利
% - 月々のお支払い金額
円
- 借入ご希望金額
※ 月々のお支払例は目安の試算となりますので、実際の金額とは異なる場合がございます。詳しくは店舗までお問合わせください。
- 堺市美原区黒山
-
南海電鉄高野線『初芝』 バス乗車10分 黒山 停 徒歩2分 (約160m)
南海電鉄高野線『萩原天神』 徒歩34分 (約2720m)
南海電鉄高野線『北野田』 徒歩35分 (約2800m)
新築戸建 堺市美原区黒山一戸建て | 物件情報
★R7年10月完成!小学校徒歩約1分、3LDKのお家★
★R7年10月完成!小学校徒歩約1分、3LDKのお家★
●オススメポイント●
・1.2階にそれぞれトイレ完備
・全居室収納あり
・食洗器付システムキッチン
・小学校まで徒歩約1分♪
●教育機関●
・黒山小学校 徒歩1分
・美原中学校 徒歩10分
~Instagramにて室内動画公開中!是非チェックしてください☆彡~
物件の設備
- 電気
- 公営水道
- 公共下水
- 都市ガス
- 給湯
- 浄水器
- 食器洗浄乾燥機
- コンロ三口
- グリル
- システムキッチン
- バス
- ユニットバス
- バス1坪以上
- 追焚機能
- 浴室に窓
- トイレ
- トイレ2箇所
- 温水洗浄便座
- 室内洗濯機置場
- 洗面所独立
- ダウンライト
- モニタ付インターホン
- LDK15畳以上
- 複層ガラス
- フローリング
- 24時間換気システム
- クローゼット3箇所
- 床下収納
- 全居室収納
- シューズボックス
- ハイルーフ駐車可能
物件の特徴
- 整備された歩道
- スーパーが近い
- 閑静な住宅街
- 通風良好
- 陽当り良好
- 2階建
- 平坦地
- 外壁サイディング
- 即入居可
物件詳細情報
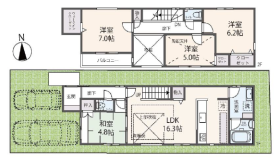
| 価格 | 2,690万円 | 間取り | 3LDK |
|---|---|---|---|
| 物件種別 | 新築一戸建て | ||
| 所在地 | 大阪府堺市美原区黒山 | ||
| アクセス |
|
||
| 建物面積 | 公80.32㎡ | 駐車場 | あり 普通:1台 |
| 築年月 | 2025年(令和7年)10月築 | 建築確認 | 第KS125-6120-51371号 |
| 建物構造 | 木造 2階建 | 工法 | |
| 主要採光 | 北向 | バルコニー | |
| 保証・評価 | |||
| 土地面積 | 公82.36㎡(24.91坪) | 接道 | 北側(公道)幅 約2.3m |
| 私道 | セットバック | ||
| 地目 | 宅地 | 地勢 | |
| 権利 | 所有権 |
||
| 都市計画 | 市街化区域 |
用途地域 | 1種住居 |
| 建ぺい/容積率 | 60% / 200% | 土地国土法 | 届出不要 |
| 許可番号 | 建築基準法 | ||
| 法令制限 | 高度地区・景観法 | ||
| 小学区 | 黒山小学校 徒歩1分 (約60m) | 中学区 | 美原中学校 徒歩10分 (約800m) |
| 現況 | 空 | 引渡 | 即 |
| その他費用 | |||
| 周辺環境 | くろやまこども園 徒歩5分 (約370m) 堺市立黒山小学校 徒歩2分 (約120m) 堺市立美原中学校 徒歩11分 (約870m) 大阪府立農芸高等学校 徒歩8分 (約590m) ローソン美原阿弥店 徒歩2分 (約140m) オークワ堺美原店 徒歩8分 (約580m) ららぽーと堺 徒歩12分 (約890m) ビバモール美原南インター店 徒歩14分 (約1080m) |
||
| 備考 | ・くろやまこども園まで徒歩5分(約370m) ・堺市立黒山小学校まで徒歩2分(約120m) ・堺市立美原中学校まで徒歩11分(約870m) ・大阪府立農芸高等学校まで徒歩8分(約590m) ・ローソン美原阿弥店まで徒歩2分(約140m) ・オークワ堺美原店まで徒歩8分(約580m) ・ららぽーと堺まで徒歩12分(約890m) ・ビバモール美原南インター店まで徒歩14分(約1080m) |
||
| 物件番号 | 4496166 | 取引態様 | 媒介 |
取扱店舗情報
ハウスドゥ 松原阿保 Tacoo home株式会社 店舗詳細ページへ
| 電話番号 | 072-247-5294 |
|---|---|
| 所在地 | 〒580-0043 大阪府松原市阿保1丁目4-11コーポイン松原102 |
| 営業時間 | 平日:10:00~20:00/土日祝:9:00~20:00 |
| 定休日 | 水曜日 |
| 宅建免許番号 | 大阪府知事(1)第65754号 |
| アクセス | 店舗への地図はこちら |

来店ご予約
大阪府堺市美原区で価格が似ている物件はこちら
- 大阪府
マイページ物件数 - 16,363件
最近見た物件
-
-

-
- 新築一戸建て
- 3,690万円
-
豊田市東新町3丁目
-
名鉄三河線土橋
-
-
-

-
- 中古一戸建て
- 3,980万円
-
大阪市鶴見区緑3丁目
-
大阪市今里筋線新森古市
-
-
-

-
- 中古一戸建て
- 350万円
-
山口市大内矢田北6丁目
-
JR山口線山口
-
大阪府新築一戸建て新着物件
- お近くの店舗を探す
-
おすすめ物件
-
-

-
- 新築一戸建て
- 4,680万円
-
茨木市島2丁目
-
阪急電鉄京都線南茨木
-
-
-

-
- 新築一戸建て
- 3,080万円
-
泉大津市下条町
-
南海電鉄本線泉大津
-
-
-

-
- 新築一戸建て
- 3,850万円
-
泉大津市昭和町
-
南海電鉄本線泉大津
-
-
-

-
- 新築一戸建て
- 4,680万円
-
茨木市島2丁目
-
阪急電鉄京都線南茨木
-
-
-

-
- 新築一戸建て
- 3,899万円
-
高槻市川西町1丁目
-
JR東海道線高槻
-
-
-

-
- 新築一戸建て
- 4,580万円
-
茨木市島2丁目
-
阪急電鉄京都線南茨木
-
-
-

-
- 新築一戸建て
- 3,080万円
-
高槻市西町
-
阪急電鉄京都線富田
-
-
-

-
- 新築一戸建て
- 6,800万円
-
箕面市稲5丁目
-
北大阪急行南北線箕面船場阪大前
-
-
-

-
- 新築一戸建て
- 3,280万円
-
泉大津市下条町
-
南海電鉄本線泉大津
-
-
-

-
- 新築一戸建て
- 2,380万円
-
松原市天美北3丁目
-
近鉄南大阪線河内天美
-

















担当エージェント:福田 亜翔
【複数件併せてのご案内可能です】気になるあのマンション、エリア内・沿線近くの物件などお客様のご要望に沿った物件を一度にご紹介いたします♪