熊本市南区良町5丁目の新築戸建
掲載情報更新日:2026年01月19日 次回更新予定日:2026年02月02日
- 2,880万円
-
- 借入ご希望金額
万円 - 借入期間
年 - 借入金利
% - 月々のお支払い金額
円
- 借入ご希望金額
※ 月々のお支払例は目安の試算となりますので、実際の金額とは異なる場合がございます。詳しくは店舗までお問合わせください。
- 熊本市南区良町5丁目
-
JR豊肥本線『南熊本』 徒歩48分 (約3800m)
JR豊肥本線『平成』 徒歩49分 (約3900m)
JR鹿児島本線『西熊本』 徒歩57分 (約4500m)
熊本市南区良町5丁目一戸建て | 物件情報
物件の設備
- 電気
- オール電化
- 公営水道
- 公共下水
- IHクッキングヒータ
- コンロ三口
- グリル
- カウンターキッチン
- システムキッチン
- バス
- オートバス
- バス1坪以上
- 追焚機能
- 浴室暖房
- 浴室乾燥機
- トイレ2箇所
- 温水洗浄便座
- 室内洗濯機置場
- ディンプルキー
- ダブルロックキー
- モニタ付インターホン
- 火災警報器/報知機
- LDK20畳以上
- 和室
- 吹抜
- フローリング
- 24時間換気システム
- クローゼット2箇所
- ウォークインクローゼット
- インナーバルコニー
物件の特徴
- 閑静な住宅街
- 2階建
物件詳細情報
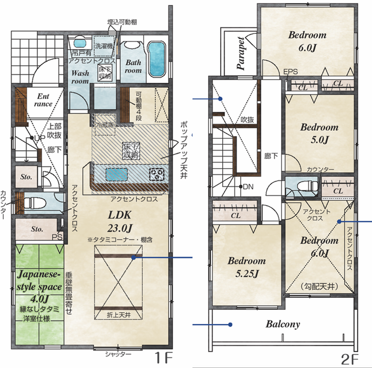
| 価格 | 2,880万円 | 間取り | 4LDK |
|---|---|---|---|
| 物件種別 | 新築一戸建て | ||
| 所在地 | 熊本県熊本市南区良町5丁目 2号 | ||
| アクセス |
|
||
| 建物面積 | 108.26㎡ | 駐車場 | あり 普通:2台 |
| 築年月 | 2025年(令和7年)12月築 | 建築確認 | 第R07SHC114366号 |
| 建物構造 | 木造 2階建 | 工法 | |
| 主要採光 | バルコニー | ||
| 保証・評価 | |||
| 土地面積 | 175.95㎡(53.22坪) | 接道 | |
| 私道 | セットバック | ||
| 地目 | 宅地 | 地勢 | |
| 権利 | 所有権 |
||
| 都市計画 | 市街化区域 |
用途地域 | 1種中高 |
| 建ぺい/容積率 | 60% / 150% | 土地国土法 | |
| 許可番号 | 建築基準法 | ||
| 法令制限 | |||
| 小学区 | 田迎南小学校 徒歩15分 (約1200m) | 中学区 | 託麻中学校 徒歩27分 (約2100m) |
| 現況 | 完工済 | 引渡 | 相談 |
| その他費用 | |||
| 周辺環境 | ファミリーマート サンロード熊本良町店 徒歩9分 (約670m) マックスバリュ御幸笛田店 徒歩15分 (約1180m) 熊本田迎郵便局 徒歩12分 (約950m) 田迎南小学校 徒歩20分 (約1550m) 託麻中学校 徒歩27分 (約2120m) |
||
| 備考 | |||
| 物件番号 | 4498979 | 取引態様 | 媒介 |
取扱店舗情報
ハウスドゥ 大江 まつばや百貨店不動産株式会社 店舗詳細ページへ
| 電話番号 | 096-206-1230 |
|---|---|
| 所在地 | 〒862-0971 熊本県熊本市中央区大江1丁目2-19 |
| 営業時間 | 9:00~18:00 |
| 定休日 | 水曜日 |
| 宅建免許番号 | 熊本県知事(1)第5729号 |
| アクセス | 店舗への地図はこちら |

来店ご予約
熊本県熊本市南区で価格が似ている物件はこちら
- 熊本県
マイページ物件数 - 2,585件
最近見た物件
熊本県新築一戸建て新着物件
-
-

-
- 新築一戸建て
- 2,898万円
-
上益城郡御船町大字小坂
-
熊本市健軍線健軍町駅
-
-
-

-
- 新築一戸建て
- 2,798万円
-
上益城郡御船町大字小坂
-
熊本市健軍線健軍町駅
-
-
-

-
- 新築一戸建て
- 4,090万円
-
熊本市中央区壺川1丁目
-
熊本電気鉄道藤崎宮前駅
-
-
-

-
- 新築一戸建て
- 3,890万円
-
熊本市中央区壺川1丁目
-
熊本電気鉄道藤崎宮前駅
-
-
-

-
- 新築一戸建て
- 3,698万円
-
熊本市東区湖東2丁目
-
熊本市健軍線健軍校前駅
-
-
-

-
- 新築一戸建て
- 3,898万円
-
熊本市東区湖東2丁目
-
熊本市健軍線健軍校前駅
-
-
-

-
- 新築一戸建て
- 3,798万円
-
熊本市東区湖東2丁目
-
熊本市健軍線健軍校前駅
-
- お近くの店舗を探す
-
おすすめ物件
-
-

-
- 新築一戸建て
- 2,590万円
-
熊本市南区御幸笛田1丁目
-
JR豊肥本線南熊本
-
-
-

-
- 新築一戸建て
- 3,198万円
-
合志市御代志
-
熊本電気鉄道御代志
-
-
-

-
- 新築一戸建て
- 2,580万円
-
熊本市南区御幸笛田1丁目
-
JR豊肥本線南熊本
-
-
-

-
- 新築一戸建て
- 2,388万円
-
熊本市東区八反田1丁目
-
JR豊肥本線東海学園前
-
-
-

-
- 新築一戸建て
- 3,298万円
-
熊本市北区清水新地1丁目
-
熊本電気鉄道堀川
-
-
-

-
- 新築一戸建て
- 3,380万円
-
熊本市東区榎町
-
熊本市健軍線健軍町
-
-
-

-
- 新築一戸建て
- 2,998万円
-
熊本市南区幸田2丁目
-
JR豊肥本線平成
-






