福岡市南区曰佐3丁目の新築戸建
掲載情報更新日:2026年01月08日 次回更新予定日:2026年01月22日
- 3,898万円
-
- 借入ご希望金額
万円 - 借入期間
年 - 借入金利
% - 月々のお支払い金額
円
- 借入ご希望金額
※ 月々のお支払例は目安の試算となりますので、実際の金額とは異なる場合がございます。詳しくは店舗までお問合わせください。
- 福岡市南区曰佐3丁目
-
西鉄天神大牟田線『井尻』 徒歩24分 (約1900m)
JR鹿児島本線『笹原』 徒歩29分 (約2300m)
JR鹿児島本線『南福岡』 徒歩32分 (約2500m)
西鉄バス『曰佐二丁目』 徒歩9分 (約650m)
福岡市南区曰佐3丁目一戸建て | 物件情報
車庫付き+車2台OK+中学校徒歩2分♪スーパー徒歩3分の便利な立地です♪建物30坪超
〈車庫付き〉
雨の日や日差しの強い日の荷物の出し入れに大変助かります。
〈車2台OK〉
1台は車庫、1台は玄関前に並列で駐車可能です♪
〈収納豊富〉
WIC2ヶ所+クローゼット2ヶ所+パントリー+シューズボックス+SIC+リビング収納
\充実の周辺環境♪/
曰佐中学校 徒歩2分♪
トライアルGO曰佐店 徒歩3分♪
上瀧内科医院 徒歩9分♪
ホームセンターグッデイ 須玖店 徒歩5分♪
ドラッグストアコスモス 曰佐店 徒歩7分♪
物件の設備
- 公営水道
- 下水道
- プロパンガス
- 個別プロパン
- 食品庫
- コンロ三口
- カウンターキッチン
- システムキッチン
- オープンキッチン
- 室内洗濯機置場
- 洗面所独立
- LDK15畳以上
- 2面採光
- 全室フローリング
- シャッター雨戸
- クローゼット
- クローゼット2箇所
- ウォークインクローゼット
- ウォークインクローゼット2箇所
- 全居室収納
- シューズボックス
- シューズインクローク
物件の特徴
- 南向
- 2沿線利用可
- 前道6m以上
- 南側道路面す
- スーパーが近い
- 陽当り良好
- 2階建
- 整形地
- フラット35Sに対応
物件詳細情報
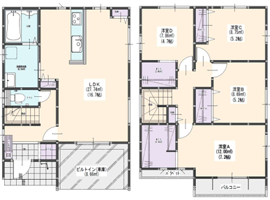
| 価格 | 3,898万円 | 間取り | 4LDK |
|---|---|---|---|
| 物件種別 | 新築一戸建て | ||
| 所在地 | 福岡県福岡市南区曰佐3丁目 1号棟 | ||
| アクセス |
|
||
| 建物面積 | 108.43㎡ | 駐車場 | あり 普通:1台 軽:1台 |
| 築年月 | 2026年(令和8年)02月予定 | 建築確認 | 第R07SHC122310号 |
| 建物構造 | 木造 2階建 | 工法 | |
| 主要採光 | 南東向 | バルコニー | |
| 保証・評価 | |||
| 分譲情報 | |||
| 土地面積 | 110.19㎡(33.33坪) | 接道 | 南側(公道)幅 約6.0m |
| 私道 | セットバック | ||
| 地目 | 宅地 | 地勢 | |
| 権利 | 所有権 |
||
| 都市計画 | 市街化区域 |
用途地域 | 1種中高 |
| 建ぺい/容積率 | 60% / 100% | 土地国土法 | |
| 許可番号 | 建築基準法 | ||
| 法令制限 | 高度地区・宅地造成工事規制区域・法22条区域 | ||
| 小学区 | 弥永小学校 徒歩17分 (約1300m) | 中学区 | 曰佐中学校 徒歩2分 (約140m) |
| 現況 | 建築中 | 引渡 | 期日指定:2026年03月中旬以降 |
| その他費用 | |||
| 周辺環境 | みやい内科 徒歩10分 (約750m) 佐賀銀行春日支店 須玖出張所 徒歩11分 (約830m) ひろた歯科医院 徒歩12分 (約890m) ファミリーマート須玖南5丁目店 徒歩12分 (約890m) 春日須玖郵便局 徒歩12分 (約950m) 須玖南親水公園 徒歩12分 (約950m) またけ胃腸科内科クリニック 徒歩12分 (約950m) フォレスト歯科・こども歯科 徒歩14分 (約1090m) 中村整形外科 徒歩19分 (約1460m) マルキョウ春日店 徒歩15分 (約1140m) |
||
| 備考 | |||
| 物件番号 | 4500736 | 取引態様 | 媒介 |
取扱店舗情報
ハウスドゥ 春日白水公園前 株式会社みらい 店舗詳細ページへ
| 電話番号 | 092-581-8888 |
|---|---|
| 所在地 | 〒816-0847 福岡県春日市大土居1丁目123番地 |
| 営業時間 | 10:00~18:30 |
| 定休日 | 火曜日 水曜日 |
| 宅建免許番号 | 福岡県知事(2)第18997号 |
| アクセス | 店舗への地図はこちら |

来店ご予約
福岡県福岡市南区で価格が似ている物件はこちら
- 福岡県
マイページ物件数 - 9,040件
福岡県新築一戸建て新着物件
-
-

-
- 新築一戸建て
- 3,598万円
-
北九州市小倉南区中吉田3丁目
-
JR日豊本線下曽根駅
-
-
-

-
- 新築一戸建て
- 3,398万円
-
北九州市小倉南区中吉田3丁目
-
JR日豊本線下曽根駅
-
-
-

-
- 新築一戸建て
- 3,198万円
-
北九州市小倉南区上吉田4丁目
-
西鉄バス吉田団地第一 停
-
-
-

-
- 新築一戸建て
- 2,998万円
-
久留米市上津町
-
JR久大本線南久留米駅
-
-
-

-
- 新築一戸建て
- 3,598万円
-
久留米市南4丁目
-
西鉄バス本山停留所
-
-
-

-
- 新築一戸建て
- 3,398万円
-
久留米市南4丁目
-
西鉄バス本山停留所
-
-
-

-
- 新築一戸建て
- 3,498万円
-
久留米市南4丁目
-
西鉄バス本山停留所
-
- お近くの店舗を探す
-
おすすめ物件
-
-

-
- 新築一戸建て
- 3,388万円
-
糟屋郡須惠町大字植木
-
JR香椎線酒殿
-
-
-

-
- 新築一戸建て
- 3,498万円
-
大野城市南ケ丘6丁目
-
JR鹿児島本線水城
-
-
-

-
- 新築一戸建て
- 4,398万円
-
福岡市早良区原4丁目
-
福岡市空港線室見
-
-
-

-
- 新築一戸建て
- 3,188万円
-
福岡市東区舞松原6丁目
-
JR香椎線舞松原
-
-
-

-
- 新築一戸建て
- 4,398万円
-
福岡市早良区重留1丁目
-
福岡市七隈線野芥
-
-
-

-
- 新築一戸建て
- 5,500万円
-
福岡市早良区賀茂4丁目
-
福岡市七隈線賀茂
-
-
-

-
- 新築一戸建て
- 2,398万円
-
宗像市ひかりヶ丘4丁目
-
JR鹿児島本線東郷
-
-
-

-
- 新築一戸建て
- 2,798万円
-
鞍手郡鞍手町大字中山
-
JR筑豊本線鞍手
-
-
-

-
- 新築一戸建て
- 5,098万円
-
糟屋郡粕屋町酒殿2丁目
-
JR香椎線酒殿
-
-
-

-
- 新築一戸建て
- 3,098万円
-
北九州市小倉南区津田3丁目
-
JR日豊本線下曽根
-








担当エージェント:盛田 享佑
〈車庫+スーパー徒歩3分♪〉 まずはご相談から始めてみませんか? \複数部門で全国1位受賞店舗/お客様のご要望に沿ってマイホーム探しをお手伝いいたします♪