北九州市小倉南区山手2丁目の新築戸建
掲載情報更新日:2026年01月12日 次回更新予定日:2026年01月26日
- 4,298万円
-
- 借入ご希望金額
万円 - 借入期間
年 - 借入金利
% - 月々のお支払い金額
円
- 借入ご希望金額
※ 月々のお支払例は目安の試算となりますので、実際の金額とは異なる場合がございます。詳しくは店舗までお問合わせください。
- 北九州市小倉南区山手2丁目
-
北九州高速鉄道『徳力公団前』 徒歩16分 (約1210m)
北九州市小倉南区山手2丁目一戸建て | 物件情報
仲介手数料無料キャンペーン実施中♪(新築物件のみ)年度内のお引越しを考えるなら、今がチャンス♪
■企救丘小学校まで徒歩9分♪
■志徳中学校まで徒歩5分!!
■マルショク企救丘店まで徒歩12分♪
■システムキッチンは食器洗い乾燥機付き♪
■パントリーもあるので、食材の保管もOK♪
■ウォークインクローゼットでお部屋スッキリ♪
■浴室乾燥機で雨の日も洗濯物が安心ですね!
■2階の洋室3部屋はお子様が成長しても使える広さです♪
■南面バルコニーで陽当たり良好♪
■アフターサポート10年!フラット35S対応!ZEH水準物件です♪
お家の購入はワクワクと不安の連続だと思います。その「不安」の部分を小さくしていくことが、私達の出番だと考えています!
内見したから購入しなきゃ・・・ではありません♪たくさん内見することが、購入の第一歩です!是非お気軽に予約してくださいね♪
物件の設備
- 電気
- 公営水道
- 公共下水
- 側溝
- 都市ガス
- 浄水器
- 食器洗浄乾燥機
- 食品庫
- コンロ三口
- カウンターキッチン
- システムキッチン
- オートバス
- 追焚機能
- 浴室暖房
- 浴室乾燥機
- トイレ2箇所
- 温水洗浄便座
- 室内洗濯機置場
- 洗髪洗面化粧台
- ダブルロックキー
- モニタ付インターホン
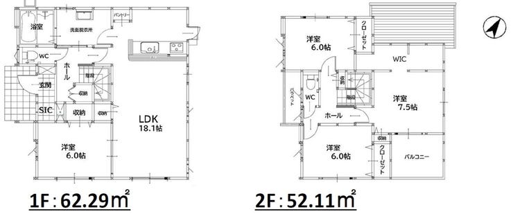
- LDK18畳以上
- 全居室6畳以上
- 複層ガラス
- 全室フローリング
- シャッター雨戸
- ウォークインクローゼット
- 全居室収納
- シューズインクローク
物件の特徴
- 地盤調査済
- 小学校徒歩10分以内
- スーパーが近い
- 閑静な住宅街
- 2階建
- フラット35
- S適合証明書
- フラット35Sに対応
物件詳細情報
| 価格 | 4,298万円 | 間取り | 4LDK |
|---|---|---|---|
| 物件種別 | 新築一戸建て | ||
| 所在地 | 福岡県北九州市小倉南区山手2丁目 | ||
| アクセス |
|
||
| 建物面積 | 114.4㎡ | 駐車場 | あり 普通:4台 |
| 築年月 | 2026年(令和8年)03月予定 | 建築確認 | 第KJH25-02037-1号 |
| 建物構造 | 木造 2階建 | 工法 | |
| 主要採光 | バルコニー | ||
| 保証・評価 | フラット35S適合証明書 |
||
| 土地面積 | 191.25㎡(57.85坪) | 接道 | 西側(公道)幅 約4.4m |
| 私道 | セットバック | ||
| 地目 | 宅地 | 地勢 | |
| 権利 | 所有権 |
||
| 都市計画 | 市街化区域 |
用途地域 | 1種低層 |
| 建ぺい/容積率 | 50% / 80% | 土地国土法 | |
| 許可番号 | 建築基準法 | ||
| 法令制限 | 宅地造成工事規制区域・高さ最高限度有・法22条区域・壁面後退有 | ||
| 小学区 | 企救丘小学校 徒歩9分 (約690m) | 中学区 | 志徳中学校 徒歩5分 (約360m) |
| 現況 | 建築中 | 引渡 | 期日指定:2026年04月中旬 |
| その他費用 | |||
| 周辺環境 | 北九州市立 志徳中学校 徒歩5分 (約360m) 北九州市立 企救丘小学校 徒歩9分 (約690m) まつもと歯科 徒歩12分 (約890m) 小倉志位郵便局 徒歩18分 (約1400m) マルショク新守恒店 徒歩13分 (約1020m) セブンイレブン 小倉企救丘2丁目店 徒歩12分 (約940m) エフコープ 志位店 徒歩15分 (約1200m) もものクリニック 徒歩20分 (約1580m) ドラックイレブン 企救丘店 徒歩13分 (約970m) ハローデイ 徳力本店 徒歩13分 (約980m) |
||
| 備考 | ■企救丘小学校まで徒歩9分♪ ■志徳中学校まで徒歩5分!! ■マルショク企救丘店まで徒歩12分♪ ■システムキッチンは食器洗い乾燥機付き♪ ■パントリーもあるので、食材の保管もOK♪ ■ウォークインクローゼットでお部屋スッキリ♪ ■浴室乾燥機で雨の日も洗濯物が安心ですね! ■2階の洋室3部屋はお子様が成長しても使える広さです♪ ■南面バルコニーで陽当たり良好♪ ■アフターサポート10年!フラット35S対応!ZEH水準物件です♪ お家の購入はワクワクと不安の連続だと思います。その「不安」の部分を小さくしていくことが、私達の出番だと考えています! 内見したから購入しなきゃ・・・ではありません♪たくさん内見することが、購入の第一歩です!是非お気軽に予約してくださいね♪ |
||
| 物件番号 | 4500818 | 取引態様 | 媒介 |
取扱店舗情報
ハウスドゥ 片野四丁目 株式会社J factories 店舗詳細ページへ
| 電話番号 | 093-330-1255 |
|---|---|
| 所在地 | 〒802-0064 福岡県北九州市小倉北区片野四丁目19-8 ラクーレV片野 103号 |
| 営業時間 | 10:00~18:00 |
| 定休日 | 水曜日、年末年始 |
| 宅建免許番号 | 福岡県知事(1)第20904号 |
| アクセス | 店舗への地図はこちら |

来店ご予約
福岡県北九州市小倉南区で価格が似ている物件はこちら
- 福岡県
マイページ物件数 - 9,022件
最近見た物件
-
-

-
- 中古一戸建て
- 380万円
-
可児市鳩吹台5丁目
-
名鉄広見線西可児
-
-
-

-
- 新築一戸建て
- 3,380万円
-
江南市江森町西
-
名鉄犬山線柏森
-
-
-

-
- 中古一戸建て
- 1,999万円
-
豊橋市西口町字西ノ口
-
豊橋鉄道東田本線運動公園前
-
福岡県新築一戸建て新着物件
-
-

-
- 新築一戸建て
- 2,588万円
-
遠賀郡遠賀町大字今古賀
-
JR鹿児島本線遠賀川駅
-
-
-

-
- 新築一戸建て
- 2,888万円
-
遠賀郡遠賀町大字今古賀
-
JR鹿児島本線遠賀川駅
-
-
-

-
- 新築一戸建て
- 2,688万円
-
遠賀郡遠賀町大字今古賀
-
JR鹿児島本線遠賀川駅
-
-
-

-
- 新築一戸建て
- 3,998万円
-
福岡市東区三苫4丁目
-
西鉄貝塚線三苫駅
-
-
-

-
- 新築一戸建て
- 4,498万円
-
大野城市緑ケ丘2丁目
-
西鉄天神大牟田線下大利駅
-
-
-

-
- 新築一戸建て
- 4,688万円
-
大野城市山田2丁目
-
西鉄天神大牟田線桜並木駅
-
-
-

-
- 新築一戸建て
- 2,998万円
-
久留米市宮ノ陣5丁目
-
西鉄天神大牟田線宮の陣駅
-
- お近くの店舗を探す
-
おすすめ物件
-
-

-
- 新築一戸建て
- 4,698万円
-
福岡市早良区原4丁目
-
福岡市空港線室見
-
-
-

-
- 新築一戸建て
- 3,299万円
-
古賀市花見東3丁目
-
JR鹿児島本線千鳥
-
-
-

-
- 新築一戸建て
- 4,788万円
-
大野城市下大利3丁目
-
JR鹿児島本線水城
-
-
-

-
- 新築一戸建て
- 4,398万円
-
福岡市早良区重留1丁目
-
福岡市七隈線野芥
-
-
-

-
- 新築一戸建て
- 3,998万円
-
北九州市小倉北区三郎丸3丁目
-
北九州高速鉄道片野
-
-
-

-
- 新築一戸建て
- 3,698万円
-
福岡市南区曰佐5丁目
-
JR博多南線博多南
-
-
-

-
- 新築一戸建て
- 4,188万円
-
福岡市南区鶴田4丁目
-
西鉄天神大牟田線高宮
-
-
-

-
- 新築一戸建て
- 4,598万円
-
福岡市早良区賀茂2丁目
-
福岡市七隈線野芥
-
-
-

-
- 新築一戸建て
- 4,398万円
-
福岡市早良区原4丁目
-
福岡市空港線室見
-
-
-

-
- 新築一戸建て
- 2,998万円
-
北九州市小倉南区北方3丁目
-
北九州高速鉄道北方
-






新築戸建、仲介手数料無料キャンペーン実施中♪
全国729店舗展開中のハウスドゥだから安心・丁寧なご案内♪物件のご案内から資金計画、ご契約までフルサポートさせて頂きます!平日・土日問わずご案内可能ですので、お気軽に御連絡下さいね!
不動産所有権移転登記、抵当権設定登記(住宅ローン購入時)、銀行手数料(住宅ローン購入時)、固定資産税等の税金、火災保険など…お家購入は諸費用があります!案内時に御説明OKです♪