【御殿4丁目】大型開発分譲地内
掲載情報更新日:2026年04月30日 次回更新予定日:2026年05月14日
- 3,280万円
-
- 借入ご希望金額
万円 - 借入期間
年 - 借入金利
% - 月々のお支払い金額
円
- 借入ご希望金額
※ 月々のお支払例は目安の試算となりますので、実際の金額とは異なる場合がございます。詳しくは店舗までお問合わせください。
- 平塚市御殿4丁目
-
JR東海道本線『平塚』 バス乗車17分 大縄橋 停 徒歩5分 (約400m)
【御殿4丁目】大型開発分譲地内一戸建て | 物件情報
【御殿4丁目】大型開発分譲地内
■新規大型開発分譲地内
■カースペース並列2台分駐車可能(車種による)
物件の設備
- 電気
- 公営水道
- 公共下水
- プロパンガス
- 個別プロパン
- 浄水器
- コンロ三口
- カウンターキッチン
- システムキッチン
- オートバス
- 追焚機能
- 浴室暖房
- 浴室乾燥機
- 浴室に窓
- トイレ2箇所
- 温水洗浄便座
- 室内洗濯機置場
- 洗髪洗面化粧台
- 人感照明センサー
- ディンプルキー
- モニタ付インターホン
- 火災警報器/報知機
- LDK15畳以上
- 複層ガラス
- 24時間換気システム
- 床下収納
- 全居室収納
物件の特徴
- 耐震構造
- 制震構造
- 前道6m以上
- 2階建
- 建設住宅性能評価付
- 設計住宅性能評価付
物件詳細情報
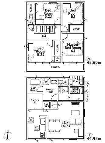
| 価格 | 3,280万円 | 間取り | 4LDK |
|---|---|---|---|
| 物件種別 | 新築一戸建て | ||
| 所在地 | 神奈川県平塚市御殿4丁目 5号棟 | ||
| アクセス |
|
||
| 建物面積 | 公95.58㎡ | 駐車場 | あり 普通:2台 |
| 築年月 | 2026年(令和8年)05月予定 | 建築確認 | 第KBI-SGM25-10-3986号 |
| 建物構造 | 木造 2階建 | 工法 | |
| 主要採光 | バルコニー | ||
| 保証・評価 | 設計住宅性能評価書・建設住宅性能評価書(新築時) |
||
| 分譲情報 | |||
| 土地面積 | 公122.98㎡(37.20坪) | 接道 | 北側(公道)幅 約6.1m |
| 私道 | セットバック | ||
| 地目 | 宅地 | 地勢 | |
| 権利 | 所有権 |
||
| 都市計画 | 市街化区域 |
用途地域 | 1種中高 |
| 建ぺい/容積率 | 60% / 200% | 土地国土法 | |
| 許可番号 | 【開発】第326号(令和7年1月27日) | 建築基準法 | |
| 法令制限 | 高度地区・宅地造成工事規制区域・準防火地域 | ||
| 小学区 | 中原小学校 徒歩14分 (約1100m) | 中学区 | 中原中学校 徒歩3分 (約180m) |
| 現況 | 建築中 | 引渡 | 期日指定:2026年06月 |
| その他費用 | |||
| 周辺環境 | 中原小学校 徒歩14分 (約1100m) 中原中学校 徒歩3分 (約180m) ひばり幼稚園 徒歩12分 (約910m) 中原保育園 徒歩7分 (約490m) ファミリーマート 大縄店 徒歩6分 (約412m) ユーコープ 中原店 徒歩9分 (約715m) |
||
| 備考 | ■新規大型開発分譲地内 ■カースペース並列2台分駐車可能(車種による) |
||
| 物件番号 | 4510300 | 取引態様 | 媒介 |
取扱店舗情報
| 電話番号 | 0463-24-8885 |
|---|---|
| 所在地 | 〒254-0073 神奈川県平塚市西八幡2丁目9-1 |
| 営業時間 | 9:00~18:00 |
| 定休日 | 第1・3火曜日、水曜日、年末年始 |
| 宅建免許番号 | 神奈川県知事(3)第28824号 |
| アクセス | 店舗への地図はこちら |

来店ご予約
神奈川県平塚市で価格が似ている物件はこちら
- 神奈川県
マイページ物件数 - 3,309件
神奈川県新築一戸建て新着物件
-
-

-
- 新築一戸建て
- 2,980万円
-
伊勢原市下落合
-
小田急小田原線愛甲石田駅
-
-
-

-
- 新築一戸建て
- 3,180万円
-
伊勢原市下落合
-
小田急小田原線愛甲石田駅
-
-
-

-
- 新築一戸建て
- 5,180万円
-
相模原市南区東大沼2丁目
-
小田急小田原線相模大野駅
-
-
-

-
- 新築一戸建て
- 4,090万円
-
相模原市南区御園3丁目
-
小田急小田原線相模大野駅
-
-
-

-
- 新築一戸建て
- 5,980万円
-
川崎市多摩区栗谷1丁目
-
小田急小田原線読売ランド前駅
-
-
-

-
- 新築一戸建て
- 5,980万円
-
川崎市多摩区栗谷1丁目
-
小田急小田原線読売ランド前駅
-
-
-

-
- 新築一戸建て
- 4,099万円
-
厚木市上荻野
-
小田急小田原線本厚木駅
-
- お近くの店舗を探す
-
おすすめ物件
-
-

-
- 新築一戸建て
- 4,480万円
-
横浜市中区本牧原
-
JR根岸線石川町
-
-
-

-
- 新築一戸建て
- 2,580万円
-
平塚市公所
-
JR東海道本線平塚
-
-
-

-
- 新築一戸建て
- 4,790万円
-
相模原市南区御園4丁目
-
小田急小田原線相模大野
-
-
-

-
- 新築一戸建て
- 3,480万円
-
平塚市達上ケ丘
-
JR東海道本線平塚
-
-
-

-
- 新築一戸建て
- 6,998万円
-
相模原市南区上鶴間8丁目
-
小田急江ノ島線中央林間
-
-
-

-
- 新築一戸建て
- 4,999万円
-
相模原市南区豊町
-
小田急小田原線相模大野
-
-
-

-
- 新築一戸建て
- 4,799万円
-
相模原市南区若松3丁目
-
小田急小田原線相模大野
-














ハウスドゥ 湘南平塚(株式会社プレジャー)
[営業時間]9:00~18:00
[定休日]第1週・第3週の火曜日、及び毎週水曜日
JR東海道線「平塚」駅よりバス乗車6分
「八幡」停留所 目の前です。
●店舗前に5台分の駐車スペースがございます。
●平塚駅など近隣地への送迎いたします。
●キッズスペース、授乳室を完備しております。
お子様連れのお客様もご安心してご来店ください。
●すぐにご来店が難しいお客様もお気軽にご相談ください。