浜松市浜名区引佐町金指 第1 2号棟 新築戸建
NEW 12.05掲載情報更新日:2025年12月09日 次回更新予定日:2025年12月23日
- 2,490万円
-
- 借入ご希望金額
万円 - 借入期間
年 - 借入金利
% - 月々のお支払い金額
円
- 借入ご希望金額
※ 月々のお支払例は目安の試算となりますので、実際の金額とは異なる場合がございます。詳しくは店舗までお問合わせください。
- 浜松市浜名区引佐町金指
-
天竜浜名湖鉄道『金指』 徒歩14分 (約1120m)
浜松市浜名区引佐町金指 第1 2号棟 新築戸建一戸建て | 物件情報
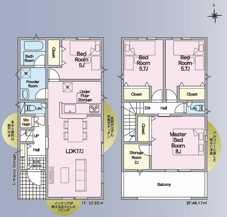
■駐車スペース4台分■対面式キッチン■納戸付き■屋根付きバルコニー
4LDK+Sの木造2階建て♪(LDK17帖・1階1部屋・2階3部屋)
※Sは納戸
【この物件のココに注目】
■駐車スペース4台分(車種によります)
■会話弾む対面式キッチン
■納戸付き
■屋根付きバルコニー
【周辺施設】
スーパー:バロー引佐店まで707m(徒歩9分)
コンビニ:ローソン浜松引佐金指店まで362m(徒歩5分)
金指小学校まで1041m(徒歩14分)
引佐南部中学校まで3131m(徒歩40分)
※周辺の学校と学区は異なる場合がございます。
楽しい暮らしのサポートを【ハウスドゥ浜北貴布祢 株式会社共和不動産センター】へお任せください!
物件の設備
- 電気
- 上水道
- 公営水道
- 下水道
- 公共下水
- プロパンガス
- 個別プロパン
- システムキッチン
- 浴室乾燥機
- トイレ2箇所
- 温水洗浄便座
- 洗髪洗面化粧台
- 人感照明センサー
- モニタ付インターホン
- LDK15畳以上
- 複層ガラス
- 全居室複層ガラス
- クローゼット
- 納戸
- 床下収納
- シューズボックス
- バルコニー
- 南面バルコニー
- インナーバルコニー
物件の特徴
- 南側道路面す
- 2階建
物件詳細情報
| 価格 | 2,490万円 | 間取り | 4LDK+S |
|---|---|---|---|
| 物件種別 | 新築一戸建て | ||
| 所在地 | 静岡県浜松市浜名区引佐町金指 | ||
| アクセス |
|
||
| 建物面積 | 98.82㎡ | 駐車場 | あり 普通:4台 |
| 築年月 | 2026年(令和8年)02月予定 | 建築確認 | 第R07SHC118139号 |
| 建物構造 | 木造 2階建 | 工法 | |
| 主要採光 | バルコニー | 南向9.72㎡ | |
| 保証・評価 | |||
| 土地面積 | 169.03㎡(51.13坪) | 接道 | 南側(公道)幅 約4.2m |
| 私道 | セットバック | ||
| 地目 | 宅地 | 地勢 | |
| 権利 | 所有権 |
||
| 都市計画 | 市街化区域 |
用途地域 | 1種低層 |
| 建ぺい/容積率 | 50% / 80% | 土地国土法 | |
| 許可番号 | 建築基準法 | ||
| 法令制限 | 宅地造成及び特定盛土等規制法・建基法22条指定区域 | ||
| 小学区 | 金指小学校 徒歩13分 (約1041m) | 中学区 | 引佐南部中学校 徒歩40分 (約3131m) |
| 現況 | 建築中 | 引渡 | 期日指定:2026年02月 |
| その他費用 | |||
| 備考 | |||
| 物件番号 | 4514862 | 取引態様 | 媒介 |
取扱店舗情報
ハウスドゥ 浜北貴布祢 株式会社共和不動産センター 店舗詳細ページへ
| 電話番号 | 053-581-7730 |
|---|---|
| 所在地 | 〒434-0037 静岡県浜松市浜名区沼317-1 グラード103 |
| 営業時間 | 9:00~18:00 |
| 定休日 | 水曜日、第2、第4日曜日、GW、年末年始、夏季休暇 |
| 宅建免許番号 | 静岡県知事(1)第14628号 |
| アクセス | 店舗への地図はこちら |

来店ご予約
静岡県浜松市浜名区で価格が似ている物件はこちら
- 静岡県
マイページ物件数 - 2,689件
最近見た物件
-
-

-
- 新築一戸建て
- 2,992万円
-
北名古屋市六ツ師宮西
-
名鉄犬山線徳重・名古屋芸大
-
-
-

-
- 新築一戸建て
- 4,990万円
-
仙台市宮城野区仙石
-
JR仙石線福田町
-
静岡県新築一戸建て新着物件
- お近くの店舗を探す
-
























担当エージェント:澤木 望
着工しました!現地確認をご希望の際はお問い合わせください!【建築士が在籍しておりますので建築目線でのアドバイス付き♪なお、ご入居前の収納棚・カーポート・コンセント増設などの総合相談も承っております♪】