知多郡東浦町大字石浜字三本松の新築戸建
掲載情報更新日:2026年02月19日 次回更新予定日:2026年03月05日
- 4,299万円
-
- 借入ご希望金額
万円 - 借入期間
年 - 借入金利
% - 月々のお支払い金額
円
- 借入ご希望金額
※ 月々のお支払例は目安の試算となりますので、実際の金額とは異なる場合がございます。詳しくは店舗までお問合わせください。
- 知多郡東浦町大字石浜字三本松
-
JR武豊線『石浜』 徒歩17分 (約1360m)
知多郡東浦町大字石浜字三本松一戸建て | 物件情報
太陽光と外断熱の機能美。高台の安心と利便を享受する、駐車場3台完備のこだわり邸宅で豊かな日常を。
太陽光や外断熱が紡ぐ快適な日々。駐車場3台のゆとりと、徒歩15分圏内に利便が揃う贅沢。標高12m超の高台はハザードマップも安心の好立地です。意匠と安全が共鳴する、こだわりが詰まった邸宅で理想の暮らしを。
物件の設備
- 電気
- 公営水道
- 公共下水
- 都市ガス
- 食器洗浄乾燥機
- コンロ三口
- カウンターキッチン
- システムキッチン
- オートバス
- バス1坪以上
- 浴室暖房
- 浴室に窓
- トイレ2箇所
- 温水洗浄便座
- 室内洗濯機置場
- 洗髪洗面化粧台
- 室内物干機
- 太陽光発電システム
- モニタ付インターホン
- 火災警報器/報知機
- LDK20畳以上
- 2面採光
- 複層ガラス
- 全居室複層ガラス
- フローリング
- 全室フローリング
- 24時間換気システム
- ウォークインクローゼット
- ウォークインクローゼット2箇所
- 床下収納
- 全居室収納
- 宅配BOX
物件の特徴
- 小学校徒歩10分以内
- 前道6m以上
- 南側道路面す
- 閑静な住宅街
- 眺望良好
- 通風良好
- 陽当り良好
- 2階建
- IT重説
物件詳細情報
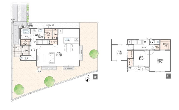
| 価格 | 4,299万円 | 間取り | 3LDK |
|---|---|---|---|
| 物件種別 | 新築一戸建て | ||
| 所在地 | 愛知県知多郡東浦町大字石浜字三本松 W-25 | ||
| アクセス |
|
||
| 建物面積 | 104.45㎡ | 駐車場 | あり 普通:2台 軽:1台 |
| 築年月 | 2026年(令和8年)03月予定 | 建築確認 | 第R07確認建築愛建住セ22139号 |
| 建物構造 | 木造 2階建 | 工法 | |
| 主要採光 | バルコニー | ||
| 保証・評価 | |||
| 分譲情報 | |||
| 土地面積 | 198.34㎡(59.99坪) | 接道 | 北側(公道)幅 約6.0m 南側(公道)幅 約15.0m |
| 私道 | セットバック | ||
| 地目 | 宅地 | 地勢 | |
| 権利 | 所有権 |
||
| 都市計画 | 市街化区域 |
用途地域 | 1種中高 |
| 建ぺい/容積率 | 60% / 200% | 土地国土法 | |
| 許可番号 | 建築基準法 | ||
| 法令制限 | 宅地造成工事規制区域 | ||
| 小学区 | 石浜西小学校 徒歩10分 (約730m) | 中学区 | 東浦中学校 徒歩18分 (約1400m) |
| 現況 | 建築中 | 引渡 | 期日指定:2026年03月以降 |
| その他費用 | |||
| 周辺環境 | あしたがすき保育園 徒歩5分 (約330m) うららん ひがしうら総合子育て支援センター 徒歩5分 (約340m) アイプラザ東浦石浜 徒歩7分 (約550m) 石浜西小学校 徒歩9分 (約660m) ショッピングマルス 本店 徒歩7分 (約510m) 石浜保育園 徒歩10分 (約790m) にぎわい市場マルス本店 徒歩7分 (約530m) ファミリーマート東浦南ヶ丘店 徒歩7分 (約550m) やまもとクリニック 徒歩8分 (約570m) 片葩小学校 徒歩13分 (約1030m) |
||
| 備考 | ●太陽光パネル、電動シャッター、全窓網戸標準、LED照明付き、駐車場3台(車種による)などこだわりが詰まったサーラの壁外断熱分譲! ●スーパー、ドラッグストア、保育園、小学校が徒歩15分以内にそろっています! ●標高12~17mに位置し、水害・水災などのハザードマップも安心な好立地! |
||
| 物件番号 | 4520101 | 取引態様 | 媒介 |
取扱店舗情報
ハウスドゥ 東浦・阿久比 株式会社エネチタ 店舗詳細ページへ
| 電話番号 | 0562-38-7713 |
|---|---|
| 所在地 | 〒470-2102 愛知県知多郡東浦町大字緒川字下出口24番1 |
| 営業時間 | 10:00~18:00 |
| 定休日 | 水曜日 |
| 宅建免許番号 | 愛知県知事(3)第23049号 |
| アクセス | 店舗への地図はこちら |

来店ご予約
- 愛知県
マイページ物件数 - 31,976件
最近見た物件
-
-

-
- 土地
- 2,847万円
-
豊橋市飯村南4丁目
-
「飯村小学校北」停
-
-
-

-
- 新築一戸建て
- 3,780万円
-
春日井市六軒屋町1丁目
-
JR中央本線春日井
-
-
-

-
- 新築一戸建て
- 3,350万円
-
尼崎市稲葉荘4丁目
-
JR東海道線立花
-
愛知県新築一戸建て新着物件
-
-

-
- 新築一戸建て
- 5,998万円
-
豊田市花園町才兼
-
名鉄三河線三河八橋駅
-
-
-

-
- 新築一戸建て
- 6,388万円
-
豊田市花園町才兼
-
名鉄三河線三河八橋駅
-
-
-

-
- 新築一戸建て
- 3,390万円
-
丹羽郡大口町中小口2丁目
-
名鉄犬山線柏森駅
-
-
-

-
- 新築一戸建て
- 3,390万円
-
丹羽郡大口町中小口2丁目
-
名鉄犬山線柏森駅
-
-
-

-
- 新築一戸建て
- 3,280万円
-
高浜市呉竹町7丁目
-
名鉄三河線吉浜駅
-
-
-

-
- 新築一戸建て
- 3,880万円
-
春日井市不二ガ丘3丁目
-
JR中央本線神領駅
-
-
-

-
- 新築一戸建て
- 5,299万円
-
名古屋市緑区鳴海町字中汐田
-
名鉄名古屋本線鳴海駅
-
- お近くの店舗を探す
-
おすすめ物件
-
-

-
- 新築一戸建て
- 4,999万円
-
名古屋市緑区浦里5丁目
-
名鉄名古屋本線本星崎
-
-
-

-
- 新築一戸建て
- 4,480万円
-
岡崎市上地6丁目
-
JR東海道本線相見
-
-
-

-
- 新築一戸建て
- 3,330万円
-
半田市花田町1丁目
-
JR武豊線亀崎
-
-
-

-
- 新築一戸建て
- 2,980万円
-
小牧市藤島町中島
-
名鉄犬山線大山寺
-
-
-

-
- 新築一戸建て
- 3,980万円
-
西尾市中畑町前山
-
名鉄西尾線西尾
-
-
-

-
- 新築一戸建て
- 5,999万円
-
名古屋市千種区小松町7丁目
-
名古屋市桜通線吹上
-
-
-

-
- 新築一戸建て
- 3,199万円
-
名古屋市南区上浜町
-
JR東海道本線大高
-
-
-

-
- 新築一戸建て
- 2,690万円
-
名古屋市港区東茶屋1丁目
-
名古屋臨海高速鉄道港北
-
-
-

-
- 新築一戸建て
- 2,990万円
-
常滑市小倉町8丁目
-
名鉄常滑線大野町
-
-
-

-
- 新築一戸建て
- 2,890万円
-
知多郡阿久比町大字草木字東郷
-
名鉄河和線坂部
-




















担当エージェント:高瀬 幸之介
太陽光や外断熱が紡ぐ快適な日々。駐車場3台のゆとりと、徒歩15分圏内に利便が揃う贅沢。標高12m超の高台はハザードマップも安心の好立地です。意匠と安全が共鳴する、こだわりが詰まった邸宅で理想の暮らしを。