明石市大久保町松陰の新築戸建
NEW 12.11掲載情報更新日:2025年12月11日 次回更新予定日:2025年12月25日
- 2,880万円
-
- 借入ご希望金額
万円 - 借入期間
年 - 借入金利
% - 月々のお支払い金額
円
- 借入ご希望金額
※ 月々のお支払例は目安の試算となりますので、実際の金額とは異なる場合がございます。詳しくは店舗までお問合わせください。
- 明石市大久保町松陰
-
JR山陽本線『大久保』 徒歩20分 (約1600m)
山陽電鉄本線『中八木』 徒歩35分 (約2800m)
JR山陽新幹線『西明石』 バス乗車8分 大久保小学校前 停 徒歩10分 (約800m)
明石市大久保町松陰一戸建て | 物件情報
不動産会社のイメージを変えたい。全国700店舗展開中!不動産はハウスドゥ明石藤江におまかせください!
【ハウスドゥ明石藤江】おすすめ
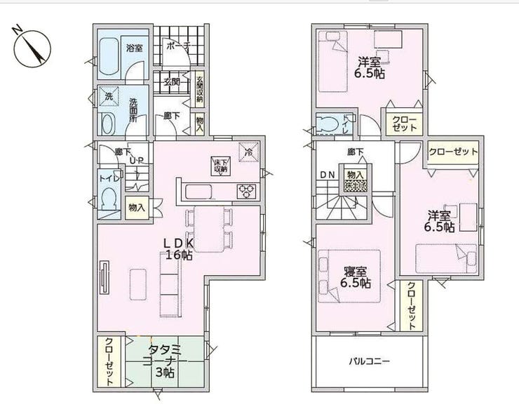
■リビングに3帖タタミコーナー
■リビング階段
□浄水栓つきシステムキッチン
□温水洗浄便座
□浴室乾燥機
□床下収納,ディンプルキー,モニター付きインターホン,火災警報器等設置済,セットバック
現地へ行って陽当りや周辺環境、街並みを確かめよう!
お気軽にお問合せください!
大久保小学校 約1100m(徒歩約14分)
大久保北中学校 約1500m(徒歩約19分)
【ハウスドゥ明石藤江】ご来店サービス♪
♪お客様を駅まで送迎いたします!JR「西明石」「大久保」駅 山陽電鉄線もご相談ください♪
♪ご来店のお客様へウェルカムドリンクのご提供♪ゆっくりと店内でご相談ください♪
どんな小さな事でもご相談ください!エージェントが全力でお手伝い・サポートさせていただきます!
【ハウスドゥ明石藤江】はお客様のより近くにある安心・便利・信頼されるお店づくりを展開中!
【ハウスドゥ明石藤江】はすべての物件情報を公開中!
お問合せはこちらまで →0120-077-712
物件の設備
- 電気
- 上水道
- 公営水道
- 下水道
- 公共下水
- 都市ガス
- 給湯
- 浄水器
- コンロ三口
- カウンターキッチン
- システムキッチン
- バス
- オートバス
- バス1坪以上
- 浴室乾燥機
- 浴室に窓
- トイレ
- トイレ2箇所
- 温水洗浄便座
- 高機能トイレ
- 室内洗濯機置場
- 洗髪洗面化粧台
- 洗面所独立
- リビング階段
- 省エネ給湯器
- モニタ付インターホン
- LDK15畳以上
- 和室
- 2面採光
- 複層ガラス
- クローゼット
- 床下収納
- 全居室収納
- シューズボックス
- 庭
物件の特徴
- 2沿線利用可
- 3沿線以上利用可
- 駅まで平坦
- 閑静な住宅街
- 周辺交通量少なめ
- 通風良好
- 陽当り良好
- 2階建
- 平坦地
- フラット35Sに対応
物件詳細情報
| 価格 | 2,880万円 | 間取り | 4LDK |
|---|---|---|---|
| 物件種別 | 新築一戸建て | ||
| 所在地 | 兵庫県明石市大久保町松陰 2号棟 | ||
| アクセス |
|
||
| 建物面積 | 91.53㎡ | 駐車場 | あり 普通:2台 |
| 築年月 | 2025年(令和7年)06月築 | 建築確認 | 第R07SHC102716号 |
| 建物構造 | 木造 2階建 | 工法 | |
| 主要採光 | 南向 | バルコニー | |
| 保証・評価 | |||
| 土地面積 | 113.18㎡(34.23坪) | 接道 | 北東側幅 約3.6m |
| 私道 | セットバック | ||
| 地目 | 宅地 | 地勢 | 平坦 |
| 権利 | 所有権 |
||
| 都市計画 | 市街化区域 |
用途地域 | 1種中高 |
| 建ぺい/容積率 | 70% / 160% | 土地国土法 | |
| 許可番号 | 建築基準法 | ||
| 法令制限 | |||
| 小学区 | 大久保小学校 徒歩14分 (約1100m) | 中学区 | 大久保北中学校 徒歩19分 (約1500m) |
| 現況 | 空 | 引渡 | 相談 |
| その他費用 | |||
| 周辺環境 | キリン堂 明石松陰店 徒歩7分 (約500m) 松陰公園 徒歩7分 (約540m) 松陰保育所 徒歩7分 (約550m) セブンイレブン明石大久保町松陰店 徒歩9分 (約680m) きのこ歯科こども歯科 徒歩9分 (約710m) 明石市立大久保幼稚園 徒歩9分 (約720m) ファミリーマート明石大久保町店 徒歩9分 (約680m) 明石岡田郵便局 徒歩10分 (約790m) 明石市立大久保小学校 徒歩15分 (約1140m) いぬまるドッグサロン 徒歩16分 (約1230m) |
||
| 備考 | ■リビングに3帖タタミコーナー □浄水栓つきシステムキッチン □温水洗浄便座 □浴室乾燥機 □床下収納,ディンプルキー,モニター付きインターホン,火災警報器等設置済,セットバック |
||
| 物件番号 | 4521153 | 取引態様 | 媒介 |
取扱店舗情報
| 電話番号 | 078-962-7712 |
|---|---|
| 所在地 | 〒673-0044 兵庫県明石市藤江927-5 |
| 営業時間 | 10:00~18:00 |
| 定休日 | 水曜日 |
| 宅建免許番号 | 兵庫県知事(1)第401744号 |
| アクセス | 店舗への地図はこちら |

来店ご予約
兵庫県明石市で価格が似ている物件はこちら
- 兵庫県
マイページ物件数 - 2,982件
兵庫県新築一戸建て新着物件
-
-

-
- 新築一戸建て
- 2,380万円
-
加古川市平岡町新在家
-
JR山陽本線東加古川駅
-
-
-

-
- 新築一戸建て
- 3,690万円
-
姫路市飾磨区加茂
-
山陽電鉄網干線西飾磨駅
-
-
-

-
- 新築一戸建て
- 2,980万円
-
明石市魚住町清水
-
JR山陽本線土山駅
-
-
-

-
- 新築一戸建て
- 3,280万円
-
姫路市北新在家1丁目
-
JR播但線野里駅
-
-
-

-
- 新築一戸建て
- 4,080万円
-
明石市藤が丘1丁目
-
山陽電鉄本線藤江駅
-
-
-

-
- 新築一戸建て
- 3,580万円
-
明石市藤江
-
山陽電鉄本線藤江駅
-
-
-

-
- 新築一戸建て
- 2,690万円
-
明石市東朝霧丘
-
山陽電鉄本線大蔵谷駅
-
- お近くの店舗を探す
-
おすすめ物件
-
-

-
- 新築一戸建て
- 2,680万円
-
加古川市加古川町中津
-
JR山陽本線加古川
-
-
-

-
- 新築一戸建て
- 3,190万円
-
加古川市野口町坂元
-
JR山陽本線加古川
-
-
-

-
- 新築一戸建て
- 2,798万円
-
姫路市上大野4丁目
-
JR播但線野里
-
-
-

-
- 新築一戸建て
- 2,580万円
-
姫路市上大野4丁目
-
JR山陽本線姫路
-
-
-

-
- 新築一戸建て
- 2,580万円
-
加古川市野口町長砂
-
山陽電鉄本線浜の宮
-
-
-

-
- 新築一戸建て
- 2,080万円
-
高砂市百合丘
-
JR山陽本線宝殿
-
-
-

-
- 新築一戸建て
- 2,898万円
-
姫路市上大野4丁目
-
JR播但線野里
-
-
-

-
- 新築一戸建て
- 2,290万円
-
加古川市野口町二屋
-
JR山陽本線東加古川
-
-
-

-
- 新築一戸建て
- 3,398万円
-
加古川市加古川町美乃利
-
JR山陽本線加古川
-
-
-

-
- 新築一戸建て
- 2,480万円
-
加古川市野口町長砂
-
山陽電鉄本線浜の宮
-








































担当エージェント:春木 宏友
納得のお住まい購入をお手伝い。より多くの住まい情報をお客様に迅速にお届けし、お住まいをご自由にお選びいただける環境を作り出すよう最善を尽くします。お客様の10年後、20年後の将来を考えたお住まいのご提案を目指します。お住まいのご購入が終わった後も、末永いお付き合いをお約束し誠意を持って対応させていただくことを誓います。全国のネットワークを通じ、情報収集し、お客様に最良のお住まいをご提案いたします。