福岡市東区三苫1丁目の新築戸建
掲載情報更新日:2026年04月13日 次回更新予定日:2026年04月27日
- 3,598万円
-
- 借入ご希望金額
万円 - 借入期間
年 - 借入金利
% - 月々のお支払い金額
円
- 借入ご希望金額
※ 月々のお支払例は目安の試算となりますので、実際の金額とは異なる場合がございます。詳しくは店舗までお問合わせください。
- 福岡市東区三苫1丁目
-
西鉄貝塚線『三苫』 徒歩14分 (約1100m)
西鉄貝塚線『三苫』 バス乗車4分 西鉄バス 和白中学校入口 停 徒歩7分 (約500m)
JR香椎線『奈多』 徒歩20分 (約1600m)
福岡市東区三苫1丁目一戸建て | 物件情報
\LDKは広々19帖越え!/●○2沿線使用可能●○ご家族で使用できるファミリークローゼット付き●○
+・建売ブランドfor.M フォルムの魅力・+
◎For.M
…家族との“つながり”をテーマにした建売ブランド
◎階段やスイッチの高さに配慮した住宅
…階段の高さを一般住宅より低くし昇降しやすく、
またスイッチの高さはお子様でも届くよう低い位置にございます^^
◎多種多様な住まい方にも対応できるようにデザイン!
…リビングで家族との団欒を楽しんだり、それぞれで時間を過ごしたり♪
◎自然と調和するデザインに暖かさを感じていただける外装♪
…建物の凹凸を生かし、16mmの外壁を一部に使用することによる重厚感を演出
◎Designに特化した住宅♪
…天井とキッチン前の壁には、温かみのあるアクセントを施し、居心地の良い雰囲気に仕上げています
物件の設備
- 電気
- 上水道
- 公営水道
- 下水道
- 側溝
- 都市ガス
- 浄水器
- 食器洗浄乾燥機
- コンロ三口
- カウンターキッチン
- システムキッチン
- 追焚機能
- 浴室暖房
- 浴室乾燥機
- トイレ2箇所
- 温水洗浄便座
- 室内洗濯機置場
- 洗髪洗面化粧台
- 洗面所独立
- ダウンライト
- リビング階段
- 省エネ給湯器
- モニタ付インターホン
- 火災警報器/報知機
- LDK18畳以上
- 複層ガラス
- 全室フローリング
- シャッター雨戸
- 24時間換気システム
- クローゼット2箇所
- ウォークインクローゼット
- ウォークインクローゼット2箇所
- 床下収納
- 全居室収納
- シューズボックス
物件の特徴
- 2沿線利用可
- スーパーが近い
- 閑静な住宅街
- 陽当り良好
- 2階建
物件詳細情報
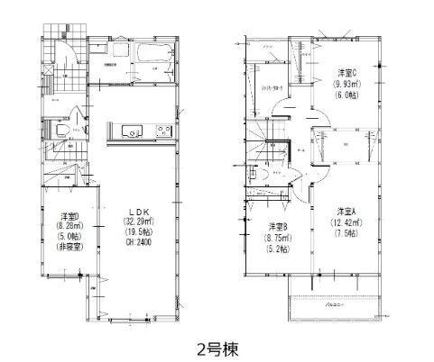
| 価格 | 3,598万円 | 間取り | 4LDK |
|---|---|---|---|
| 物件種別 | 新築一戸建て | ||
| 所在地 | 福岡県福岡市東区三苫1丁目 2号棟 | ||
| アクセス |
|
||
| 建物面積 | 108.03㎡ | 駐車場 | あり 普通:2台 |
| 築年月 | 2026年(令和8年)04月予定 | 建築確認 | 第KJH25-00994-1号 |
| 建物構造 | 木造 2階建 | 工法 | |
| 主要採光 | バルコニー | ||
| 保証・評価 | |||
| 分譲情報 | 【販売戸数】:4戸 【価格】:3,598万円 ~4,298万円 【最多価格】:4,100万円 ~4,200万円(1戸) 【土地面積】:169.23㎡ ~233.58㎡ |
||
| 土地面積 | 205.2㎡(62.07坪) | 接道 | 北側(公道)幅 約4.0m |
| 私道 | セットバック | ||
| 地目 | 雑種地 | 地勢 | |
| 権利 | 所有権 |
||
| 都市計画 | 市街化区域 |
用途地域 | 1種低層 |
| 建ぺい/容積率 | 50% / 80% | 土地国土法 | |
| 許可番号 | 建築基準法 | ||
| 法令制限 | |||
| 小学区 | 三苫小学校 徒歩17分 (約1300m) | 中学区 | 和白中学校 徒歩5分 (約350m) |
| 現況 | 建築中 | 引渡 | 期日指定:2026年04月中旬 |
| その他費用 | |||
| 周辺環境 | 三苫小学校 徒歩17分 (約1300m) 和白中学校 徒歩5分 (約350m) マルショク三苫店 徒歩9分 (約700m) TRIAL GO 和白店 徒歩10分 (約800m) セブンイレブン 福岡塩浜1丁目店 徒歩5分 (約400m) セブンイレブン 福岡三苫3丁目店 徒歩7分 (約550m) ドラッグストアモリ 三苫店 徒歩5分 (約350m) 吉田歯科医院 徒歩3分 (約170m) 福岡銀行 美和台支店 徒歩8分 (約600m) 和白郵便局 徒歩11分 (約850m) |
||
| 備考 | |||
| 物件番号 | 4524232 | 取引態様 | 媒介 |
取扱店舗情報
| 電話番号 | 0940-62-6292 |
|---|---|
| 所在地 | 〒811-3217 福岡県福津市中央2丁目23番12号 |
| 営業時間 | 9:00~18:00 |
| 定休日 | 水曜日、年末年始 |
| 宅建免許番号 | 福岡県知事(2)第19529号 |
| アクセス | 店舗への地図はこちら |

来店ご予約
福岡県福岡市東区で価格が似ている物件はこちら
- 福岡県
マイページ物件数 - 8,431件
最近見た物件
福岡県新築一戸建て新着物件
-
-

-
- 新築一戸建て
- 3,188万円
-
福津市津屋崎3丁目
-
JR鹿児島本線福間駅
-
-
-

-
- 新築一戸建て
- 2,988万円
-
福津市津屋崎3丁目
-
JR鹿児島本線福間駅
-
-
-

-
- 新築一戸建て
- 4,888万円
-
福岡市東区八田1丁目
-
JR香椎線土井駅
-
-
-

-
- 新築一戸建て
- 4,498万円
-
福岡市南区和田4丁目
-
西鉄天神大牟田線大橋駅
-
-
-

-
- 新築一戸建て
- 4,398万円
-
福岡市南区和田4丁目
-
西鉄天神大牟田線大橋駅
-
-
-

-
- 新築一戸建て
- 4,598万円
-
福岡市南区和田4丁目
-
西鉄天神大牟田線大橋駅
-
-
-

-
- 新築一戸建て
- 4,499万円
-
福岡市東区三苫2丁目
-
JR香椎線奈多駅
-
- お近くの店舗を探す
-
おすすめ物件
-
-

-
- 新築一戸建て
- 4,098万円
-
福岡市南区屋形原1丁目
-
西鉄天神大牟田線高宮
-
-
-

-
- 新築一戸建て
- 3,790万円
-
福岡市東区美和台5丁目
-
西鉄貝塚線三苫
-
-
-

-
- 新築一戸建て
- 2,798万円
-
福津市津屋崎8丁目
-
JR鹿児島本線福間
-
-
-

-
- 新築一戸建て
- 2,698万円
-
宗像市東郷5丁目
-
JR鹿児島本線東郷
-
-
-

-
- 新築一戸建て
- 3,298万円
-
北九州市小倉南区中貫2丁目
-
西鉄バス貫入口停
-
-
-

-
- 新築一戸建て
- 3,498万円
-
宗像市自由ヶ丘7丁目
-
JR鹿児島本線赤間
-
-
-

-
- 新築一戸建て
- 3,798万円
-
北九州市門司区大里本町2丁目
-
JR鹿児島本線門司
-
-
-

-
- 新築一戸建て
- 3,398万円
-
北九州市小倉南区朽網西1丁目
-
JR日豊本線朽網
-
-
-

-
- 新築一戸建て
- 3,380万円
-
直方市大字感田
-
筑豊電気鉄道遠賀野
-
-
-

-
- 新築一戸建て
- 3,799万円
-
宗像市青葉台2丁目
-
JR鹿児島本線赤間
-









担当エージェント:山口安奈
◇◆安心の全国チェーン店 ハウスドゥ福津◇◆
マイホーム購入にあたり、こんな不安有りませんか?
〇頭金0で購入したいんだけど…
〇車を買ったばかりなんだけど…
〇何円借りれるんだろう
〇今住んでいる家を売って買いたいんだけど…
その悩み我々にお任せください。
お客様に合ったプランをご提案させていただきます。
まずは、一度ご相談ください(^^)
当店には、キッズコーナーもございます♪
お子様用のおもちゃ等おいてありますので、ぜひご利用くださいませ。