三苫1丁目 新築戸建
掲載情報更新日:2026年04月12日 次回更新予定日:2026年04月26日
- 3,898万円
-
- 借入ご希望金額
万円 - 借入期間
年 - 借入金利
% - 月々のお支払い金額
円
- 借入ご希望金額
※ 月々のお支払例は目安の試算となりますので、実際の金額とは異なる場合がございます。詳しくは店舗までお問合わせください。
- 福岡市東区三苫1丁目
-
西鉄貝塚線『三苫』 徒歩15分 (約1200m)
三苫1丁目 新築戸建一戸建て | 物件情報
物件の設備
- 電気
- 公営水道
- 下水道
- 側溝
- 都市ガス
- 給湯
- 浄水器
- 食器洗浄乾燥機
- 食品庫
- コンロ三口
- グリル
- カウンターキッチン
- システムキッチン
- ユニットバス
- オートバス
- 追焚機能
- 浴室暖房
- 浴室乾燥機
- トイレ
- トイレ2箇所
- 温水洗浄便座
- 室内洗濯機置場
- 洗髪洗面化粧台
- ダウンライト
- 省エネ給湯器
- モニタ付インターホン
- 火災警報器/報知機
- 和室
- 全居室複層ガラス
- 24時間換気システム
- クローゼット
- ウォークインクローゼット
- 床下収納
- 全居室収納
- シューズボックス
- シューズインクローク
- インナーバルコニー
物件の特徴
- 南側道路面す
- 2階建
- 建築確認完了検査済証
- フラット35Sに対応
物件詳細情報
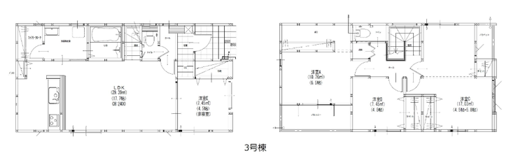
| 価格 | 3,898万円 | 間取り | 4LDK |
|---|---|---|---|
| 物件種別 | 新築一戸建て | ||
| 所在地 | 福岡県福岡市東区三苫1丁目 3号棟 | ||
| アクセス |
|
||
| 建物面積 | 109.68㎡ | 駐車場 | あり |
| 築年月 | 2026年(令和8年)03月築 | 建築確認 | 第KJH25-01019-1号 |
| 建物構造 | 木造 2階建 | 工法 | |
| 主要採光 | バルコニー | ||
| 保証・評価 | |||
| 土地面積 | 192.57㎡(58.25坪) | 接道 | 北側(公道)幅 約4.0m 南側(公道)幅 約5.0m |
| 私道 | セットバック | ||
| 地目 | 雑種地 | 地勢 | |
| 権利 | 所有権 |
||
| 都市計画 | 市街化区域 |
用途地域 | 1種低層 |
| 建ぺい/容積率 | 50% / 80% | 土地国土法 | |
| 許可番号 | 建築基準法 | ||
| 法令制限 | 法22条区域 | ||
| 小学区 | 三苫小学校 徒歩17分 (約1300m) | 中学区 | 和白中学校 徒歩5分 (約350m) |
| 現況 | 完工済 | 引渡 | 期日指定:2026年03月中旬 |
| その他費用 | |||
| 周辺環境 | 和白中学校 徒歩5分 (約350m) ドラッグストアモリ 三苫店 徒歩5分 (約360m) セブンイレブン 福岡塩浜1丁目店 徒歩6分 (約420m) オリーブ保育園 徒歩5分 (約400m) 福岡銀行 美和台支店 徒歩8分 (約620m) マルショク三苫店 徒歩8分 (約590m) 医療法人和仁会 東福岡和仁会病院 徒歩11分 (約850m) ホームワイド和白店 徒歩11分 (約880m) 三苫小学校 徒歩17分 (約1300m) |
||
| 備考 | |||
| 物件番号 | 4525949 | 取引態様 | 媒介 |
取扱店舗情報
ハウスドゥ 福岡流通センター 有限会社セゾン 店舗詳細ページへ
| 電話番号 | 092-260-7722 |
|---|---|
| 所在地 | 〒813-0034 福岡県福岡市東区多の津4丁目9-1 103 |
| 営業時間 | 9:00~19:00 |
| 定休日 | 年末年始、GW、お盆休み |
| 宅建免許番号 | 福岡県知事(1)第20006号 |
| アクセス | 店舗への地図はこちら |

来店ご予約
福岡県福岡市東区で価格が似ている物件はこちら
- 福岡県
マイページ物件数 - 8,485件
最近見た物件
-
-

-
- 中古一戸建て
- 4,280万円
-
南城市大里字稲嶺
-
バス停 保地原
-
福岡県新築一戸建て新着物件
-
-

-
- 新築一戸建て
- 3,498万円
-
北九州市小倉南区葛原東2丁目
-
JR日豊本線下曽根駅
-
-
-

-
- 新築一戸建て
- 4,298万円
-
北九州市八幡西区青山3丁目
-
筑豊電気鉄道萩原駅
-
-
-

-
- 新築一戸建て
- 4,098万円
-
春日市弥生2丁目
-
西鉄天神大牟田線井尻駅
-
-
-

-
- 新築一戸建て
- 4,888万円
-
福岡市東区八田1丁目
-
JR香椎線土井駅
-
-
-

-
- 新築一戸建て
- 5,199万円
-
福岡市東区若宮4丁目
-
JR鹿児島本線千早駅
-
-
-

-
- 新築一戸建て
- 5,199万円
-
福岡市東区若宮4丁目
-
JR鹿児島本線千早駅
-
-
-

-
- 新築一戸建て
- 4,298万円
-
福岡市東区青葉7丁目
-
JR香椎線土井駅
-
- お近くの店舗を探す
-
おすすめ物件
-
-

-
- 新築一戸建て
- 4,398万円
-
福岡市南区長住1丁目
-
西鉄天神大牟田線高宮
-
-
-

-
- 新築一戸建て
- 4,748万円
-
糟屋郡粕屋町大字柚須
-
JR篠栗線柚須
-
-
-

-
- 新築一戸建て
- 3,598万円
-
宗像市原町
-
JR鹿児島本線東郷
-
-
-

-
- 新築一戸建て
- 4,298万円
-
福岡市南区長住1丁目
-
西鉄天神大牟田線高宮
-
-
-

-
- 新築一戸建て
- 2,798万円
-
宗像市ひかりヶ丘1丁目
-
JR鹿児島本線東郷
-
-
-

-
- 新築一戸建て
- 3,790万円
-
福岡市東区美和台5丁目
-
西鉄貝塚線三苫
-
-
-

-
- 新築一戸建て
- 2,998万円
-
北九州市小倉南区北方3丁目
-
北九州高速鉄道北方
-
-
-

-
- 新築一戸建て
- 3,998万円
-
北九州市小倉北区皿山町
-
JR日豊本線南小倉
-
-
-

-
- 新築一戸建て
- 2,998万円
-
宗像市徳重
-
JR鹿児島本線教育大前
-
-
-

-
- 新築一戸建て
- 3,998万円
-
北九州市小倉北区三郎丸3丁目
-
北九州高速鉄道片野
-




































