北九州市八幡西区下上津役3丁目の新築戸建
掲載情報更新日:2026年02月03日 次回更新予定日:2026年02月17日
- 2,598万円
-
- 借入ご希望金額
万円 - 借入期間
年 - 借入金利
% - 月々のお支払い金額
円
- 借入ご希望金額
※ 月々のお支払例は目安の試算となりますので、実際の金額とは異なる場合がございます。詳しくは店舗までお問合わせください。
- 北九州市八幡西区下上津役3丁目
-
筑豊電気鉄道『西山』 徒歩21分 (約1680m)
北九州市八幡西区下上津役3丁目一戸建て | 物件情報
仲介手数料無料キャンペーン実施中♪(新築物件のみ)年度内のお引越しを考えるなら、今がチャンス♪
仲介手数料無料キャンペーン実施中♪(新築物件のみ)年度内のお引越しを考えるなら、今がチャンス♪
■塔野小学校まで徒歩10分♪
■沖田中学校まで徒歩16分!!
■ハローディ下上津役店まで徒歩8分♪
■システムキッチンは食器洗い乾燥機付き♪
■パントリーもあるので、食材の保管もOK♪
■ウォークインクローゼットでお部屋スッキリ♪
■浴室乾燥機で雨の日も洗濯物が安心ですね!
■2階の洋室3部屋はお子様が成長しても使える広さです♪
■南面バルコニーで陽当たり良好♪
■アフターサポート10年!フラット35S対応!ZEH水準物件です♪
お家の購入はワクワクと不安の連続だと思います。その「不安」の部分を小さくしていくことが、私達の出番だと考えています!
内見したから購入しなきゃ・・・ではありません♪たくさん内見することが、購入の第一歩です!是非お気軽に予約してくださいね♪
物件の設備
- 電気
- 公営水道
- 公共下水
- 側溝
- 都市ガス
- 浄水器
- 食器乾燥機
- 食器洗浄乾燥機
- コンロ三口
- カウンターキッチン
- システムキッチン
- オートバス
- 追焚機能
- 浴室暖房
- 浴室乾燥機
- トイレ2箇所
- 温水洗浄便座
- 室内洗濯機置場
- 洗髪洗面化粧台
- ダブルロックキー
- モニタ付インターホン
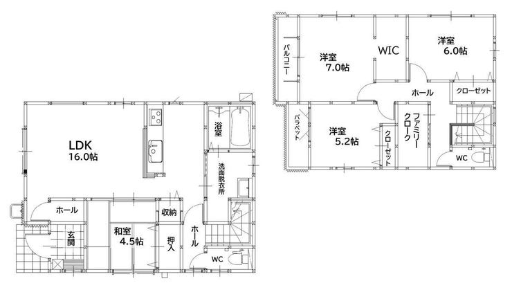
- LDK18畳以上
- 複層ガラス
- 全室フローリング
- シャッター雨戸
- ウォークインクローゼット
- 全居室収納
物件の特徴
- 地盤調査済
- 小学校徒歩10分以内
- 閑静な住宅街
- 陽当り良好
- 2階建
- 建築確認完了検査済証
- フラット35
- S適合証明書
- フラット35Sに対応
物件詳細情報
| 価格 | 2,598万円 | 間取り | 4LDK |
|---|---|---|---|
| 物件種別 | 新築一戸建て | ||
| 所在地 | 福岡県北九州市八幡西区下上津役3丁目 | ||
| アクセス |
|
||
| 建物面積 | 102.47㎡ | 駐車場 | あり 普通:2台 |
| 築年月 | 2026年(令和8年)01月予定 | 建築確認 | 第KJH25-01357-1号 |
| 建物構造 | 木造 2階建 | 工法 | |
| 主要採光 | バルコニー | ||
| 保証・評価 | フラット35S適合証明書 |
||
| 土地面積 | 150.41㎡(45.49坪) | 接道 | 南西側幅 約4.0m 間口 約9.00m |
| 私道 | セットバック | ||
| 地目 | 宅地 | 地勢 | |
| 権利 | 所有権 |
||
| 都市計画 | 市街化区域 |
用途地域 | 1種低層 |
| 建ぺい/容積率 | 50% / 80% | 土地国土法 | |
| 許可番号 | 建築基準法 | ||
| 法令制限 | 宅地造成工事規制区域・景観地区・高さ最高限度有・法22条区域・壁面後退有 | ||
| 小学区 | 塔野小学校 徒歩10分 (約777m) | 中学区 | 沖田中学校 徒歩16分 (約1224m) |
| 現況 | 建築中 | 引渡 | 期日指定:2026年01月 |
| その他費用 | |||
| 備考 | 仲介手数料無料キャンペーン実施中♪(新築物件のみ)年度内のお引越しを考えるなら、今がチャンス♪ ■塔野小学校まで徒歩10分♪ ■沖田中学校まで徒歩16分!! ■ハローディ下上津役店まで徒歩8分♪ ■システムキッチンは食器洗い乾燥機付き♪ ■パントリーもあるので、食材の保管もOK♪ ■ウォークインクローゼットでお部屋スッキリ♪ ■浴室乾燥機で雨の日も洗濯物が安心ですね! ■2階の洋室3部屋はお子様が成長しても使える広さです♪ ■南面バルコニーで陽当たり良好♪ ■アフターサポート10年!フラット35S対応!ZEH水準物件です♪ お家の購入はワクワクと不安の連続だと思います。その「不安」の部分を小さくしていくことが、私達の出番だと考えています! 内見したから購入しなきゃ・・・ではありません♪たくさん内見することが、購入の第一歩です!是非お気軽に予約してくださいね♪ |
||
| 物件番号 | 4526040 | 取引態様 | 媒介 |
取扱店舗情報
ハウスドゥ 片野四丁目 株式会社J factories 店舗詳細ページへ
| 電話番号 | 093-330-1255 |
|---|---|
| 所在地 | 〒802-0064 福岡県北九州市小倉北区片野四丁目19-8 ラクーレV片野 103号 |
| 営業時間 | 10:00~18:00 |
| 定休日 | 水曜日、年末年始 |
| 宅建免許番号 | 福岡県知事(1)第20904号 |
| アクセス | 店舗への地図はこちら |

来店ご予約
福岡県北九州市八幡西区で価格が似ている物件はこちら
- 福岡県
マイページ物件数 - 9,089件
最近見た物件
-
-

-
- 新築一戸建て
- 2,980万円
-
春日井市田楽町
-
名鉄小牧線間内
-
-
-

-
- 土地
- 2,130万円
-
大津市竜が丘
-
JR東海道線膳所
-
-
-

-
- 新築一戸建て
- 4,080万円
-
八王子市散田町2丁目
-
JR中央本線西八王子
-
福岡県新築一戸建て新着物件
-
-

-
- 新築一戸建て
- 4,698万円
-
福岡市東区三苫2丁目
-
西鉄貝塚線三苫駅
-
-
-

-
- 新築一戸建て
- 4,298万円
-
福岡市東区三苫2丁目
-
西鉄貝塚線三苫駅
-
-
-

-
- 新築一戸建て
- 3,698万円
-
北九州市小倉南区東貫1丁目
-
JR日豊本線下曽根駅
-
-
-

-
- 新築一戸建て
- 4,498万円
-
福岡市東区三苫2丁目
-
西鉄貝塚線三苫駅
-
-
-

-
- 新築一戸建て
- 2,480万円
-
久留米市三潴町西牟田
-
JR鹿児島本線西牟田駅
-
-
-

-
- 新築一戸建て
- 4,498万円
-
福岡市南区長住1丁目
-
西鉄天神大牟田線高宮駅
-
-
-

-
- 新築一戸建て
- 4,298万円
-
福岡市南区長住1丁目
-
西鉄天神大牟田線高宮駅
-
- お近くの店舗を探す
-
おすすめ物件
-
-

-
- 新築一戸建て
- 4,198万円
-
福岡市南区弥永2丁目
-
JR博多南線博多南
-
-
-

-
- 新築一戸建て
- 3,998万円
-
北九州市小倉北区皿山町
-
JR日豊本線南小倉
-
-
-

-
- 新築一戸建て
- 3,898万円
-
福岡市東区三苫4丁目
-
西鉄貝塚線三苫
-
-
-

-
- 新築一戸建て
- 4,188万円
-
福岡市南区鶴田4丁目
-
西鉄天神大牟田線高宮
-
-
-

-
- 新築一戸建て
- 3,498万円
-
古賀市久保
-
JR鹿児島本線千鳥
-
-
-

-
- 新築一戸建て
- 3,898万円
-
福岡市南区弥永2丁目
-
JR博多南線博多南
-
-
-

-
- 新築一戸建て
- 3,998万円
-
北九州市小倉北区三郎丸3丁目
-
北九州高速鉄道片野
-
-
-

-
- 新築一戸建て
- 3,398万円
-
太宰府市青山2丁目
-
西鉄太宰府線西鉄五条
-
-
-

-
- 新築一戸建て
- 3,298万円
-
福岡市東区下原2丁目
-
JR鹿児島本線九産大前
-
-
-

-
- 新築一戸建て
- 5,798万円
-
福岡市博多区諸岡3丁目
-
JR鹿児島本線笹原
-







担当エージェント:長島 孝憲
新築戸建、仲介手数料無料キャンペーン実施中♪
全国729店舗展開中のハウスドゥだから安心・丁寧なご案内♪物件のご案内から資金計画、ご契約までフルサポートさせて頂きます!平日・土日問わずご案内可能ですので、お気軽に御連絡下さいね!
不動産所有権移転登記、抵当権設定登記(住宅ローン購入時)、銀行手数料(住宅ローン購入時)、固定資産税等の税金、火災保険など…お家購入は諸費用があります!案内時に御説明OKです♪