高岡市戸出町1丁目の新築戸建
掲載情報更新日:2026年02月19日 次回更新予定日:2026年03月05日
- 2,880万円
-
- 借入ご希望金額
万円 - 借入期間
年 - 借入金利
% - 月々のお支払い金額
円
- 借入ご希望金額
※ 月々のお支払例は目安の試算となりますので、実際の金額とは異なる場合がございます。詳しくは店舗までお問合わせください。
- 高岡市戸出町1丁目
-
JR城端線『戸出』 徒歩8分 (約580m)
高岡市戸出町1丁目一戸建て | 物件情報
「ただいま、から会話がはじまる家。」 リビング階段×対面キッチンで、家族が自然につながる住まい
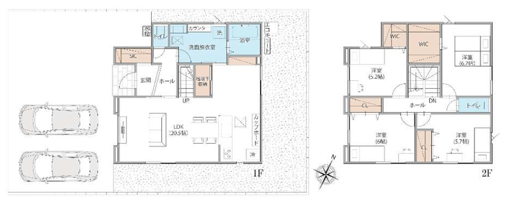
LDK20.5帖のゆとりある4LDK
家族が集まっても窮屈さを感じない、開放感のあるLDK。
リビング階段×対面キッチン
帰宅時や外出時に自然と顔を合わせ、日々のコミュニケーションが生まれる間取り。
洗面脱衣室にホスクリーン設置
天候や時間を気にせず室内干しができ、共働き世帯にも嬉しい設備。
収納力に優れた住まい
WIC・SIC・キッチンカップボード完備で、家の中がすっきり片付きます。
駐車並列2台可能
ご夫婦それぞれのお車や来客時にも安心。
玄関キーはファミロック採用
荷物が多い日でもスムーズに出入りでき、防犯面でも安心。
物件の設備
- オール電化
- 公営水道
- 公共下水
- 浄水器
- 食器洗浄乾燥機
- IHクッキングヒータ
- バス1坪以上
- 洗髪洗面化粧台
- 省エネ給湯器
- モニタ付インターホン
- 天井高2.5m以上
- 複層ガラス
物件の特徴
- 前道6m以上
- 2階建
物件詳細情報
| 価格 | 2,880万円 | 間取り | 4LDK |
|---|---|---|---|
| 物件種別 | 新築一戸建て | ||
| 所在地 | 富山県高岡市戸出町1丁目 1号棟 | ||
| アクセス |
|
||
| 建物面積 | 113.23㎡ | 駐車場 | なし |
| 築年月 | 2025年(令和7年)09月築 | 建築確認 | |
| 建物構造 | 木造 2階建 | 工法 | |
| 主要採光 | バルコニー | ||
| 保証・評価 | |||
| 分譲情報 | |||
| 土地面積 | 165.4㎡(50.03坪) | 接道 | 南西側(公道)幅 約8.1m |
| 私道 | セットバック | ||
| 地目 | 宅地 | 地勢 | |
| 権利 | 所有権 |
||
| 都市計画 | 市街化区域 |
用途地域 | 1種住居 |
| 建ぺい/容積率 | 60% / 200% | 土地国土法 | |
| 許可番号 | 建築基準法 | ||
| 法令制限 | 水防法・都市再生特別措置法・景観法 | ||
| 小学区 | 戸出東部小学校 徒歩7分 (約510m) | 中学区 | 戸出中学校 徒歩12分 (約930m) |
| 現況 | 空 | 引渡 | 相談 |
| その他費用 | |||
| 備考 | ◆LDK20.5帖の4LDK・駐車並列2台 ◆洗面脱衣室に便利なホスクリーン設置 ◆WIC、SIC、キッチンカップボードなど収納充実! ◆玄関キーは便利なファミロック |
||
| 物件番号 | 4530280 | 取引態様 | 媒介 |
取扱店舗情報
ハウスドゥ 高岡野村 株式会社ことぶき不動産 店舗詳細ページへ
| 電話番号 | 0766-23-2030 |
|---|---|
| 所在地 | 〒933-0014 富山県高岡市野村1536番地17 アーバンビル1階B号室 |
| 営業時間 | 10:00~18:00 |
| 定休日 | 水曜日・祝日 |
| 宅建免許番号 | 富山県知事(1)第3303号 |
| アクセス | 店舗への地図はこちら |

来店ご予約
- 富山県
マイページ物件数 - 714件
富山県新築一戸建て新着物件
- お近くの店舗を探す
-
おすすめ物件
-
-

-
- 新築一戸建て
- 3,170万円
-
富山市新庄町
-
富山地鉄本線東新庄
-
-
-

-
- 新築一戸建て
- 2,380万円
-
高岡市中川園町
-
JR氷見線越中中川
-
-
-

-
- 新築一戸建て
- 2,380万円
-
中新川郡立山町前沢新町
-
富山地鉄立山線五百石
-
-
-

-
- 新築一戸建て
- 3,368万円
-
高岡市角三島
-
JR氷見線能町
-
-
-

-
- 新築一戸建て
- 3,250万円
-
高岡市赤祖父
-
JR城端線新高岡
-
-
-

-
- 新築一戸建て
- 3,280万円
-
富山市新庄銀座2丁目
-
富山地鉄本線越中荏原
-
-
-

-
- 新築一戸建て
- 2,298万円
-
富山市本郷町
-
富山地鉄不二越上滝線上堀
-
-
-

-
- 新築一戸建て
- 2,590万円
-
高岡市駅南3丁目
-
JR城端線高岡
-
-
-

-
- 新築一戸建て
- 3,465万円
-
富山市秋吉
-
富山地鉄不二越上滝線不二越
-
-
-

-
- 新築一戸建て
- 3,980万円
-
富山市婦中町田島
-
JR高山本線婦中鵜坂
-


















家族が自然と顔を合わせ、会話が生まれるように考えられた間取りが魅力の新築戸建です。
20.5帖の広々としたLDKを中心に、収納や家事動線にも配慮されており、日々の暮らしやすさを実感していただけます。
「家族との時間を大切にしたい」「家事も暮らしも無理なく楽しみたい」
そんな方にぜひ一度ご覧いただきたい住まいです。
実際の空間の広さや使い勝手は、ぜひ現地でご体感ください。